Gamle Åsvei 56C
4 250 000 kr
68 m²
1 soverom
Komplett salgsoppgave

Ski/Søndre Finstad
Rekkehus over ett plan med svært god beliggenhet. Gangavstand til Ski sentrum. Sørvendt usjenert 30m2 terrasse. Garasje.
Prisantydning
4 250 000 krOmkostninger
128 490 krTotalpris
4 378 490 kr
Pris
Bruksareal
86 m²BRA-I (internt bruksareal)
68 m²BRA-E (eksternt bruksareal)
18 m²TBA (terrasse-balkongareal)
30 m²
Areal
Etasje
1Byggeår
1974Soverom
1 soveromBad
1 badTomteareal
129 m² (eiet)Type
RekkehusEierform
EietFasiliteter
Garasje/P-plass og Balkong/TerrasseEnergimerke
Rød F
Nøkkelinfo
Unngå doble boligrenter
Vi tilbyr gunstig forsikring.
Vurderer du utleie?
Få et tilbud fra Utleie KrogsveenHva koster lånet?
Sjekk estimert lånekostnadBeskrivelse
Kort om eiendommen
- Boligen ligger i et etablert og rolig nabolag i Ski.
- Lettstelt med alt over ett plan.
- Rekkehuset har en tilbaketrukket og landlig beliggenhet med utsikt mot jorde samtidig som du har gangavstand til Ski sentrum og Ski stasjon.
- Fra Ski stasjon bruker toget 12 minutter til Oslo S
- Sørvendt beliggenhet som gir gode solforhold.
- Peisovn i stuen for varme og hygge.
- Plass for parkering rett utenfor inngangen til boligen, samt at du har egen garasje i felles rekke ved innkjøringen til boligområdet.
- Utebod på 4 m².
- Fin planløsning.
- Gulvvarme i entre og bad.
- Tv og internett inkludert i grendelagsavgiften.
- Vinduer fra 2018, samt ett fra 2013.
- 30 m2 terrasse, samt hageflekk.
Velkommen til visning!
Innhold og byggemåte
Innhold og byggemåte
Eiendommen
Gamle Åsvei 56C, 1424 SKI
Kommunenummer 3207, gårdsnummer 137, bruksnummer 356, ideell andel 1/1
Kommunenummer 3207, gårdsnummer 137, bruksnummer 304, ideell andel 1/63
Innhold
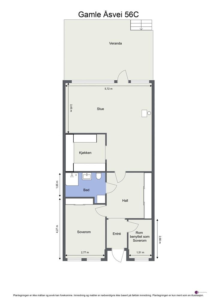
Totalt bruksareal BRA: 86 kvm.
BRA-i:
Rekkehus 68 kvm: Entré, hall, soverom, rom benyttet som soverom, bad, kjøkken, stue.
BRA-e:
Rekkehus 4 kvm: Bod med utvendig adkomst.
Garasje 14 kvm: Garasje.
Åpent areal:
Terrasse 30 kvm.
Vedlagte plantegninger er ikke målbare. De oppgitte arealer er hentet fra rapport med befaringsdato 07.04.2026, utført av Moss Eiendomstaksering AS v/Kristian Østmark.
Det gjøres oppmerksom på at et rom benyttet som soverom opprinnelig er byggemeldt som bod jf. byggetegninger. Se pkt. ferdigattest.
Byggemåte
Selger har innhentet en tilstandsrapport av boligen/eiendommen. Dersom det er registrert avvik, er disse klassifisert med tilstandsgrader (TGIU, TG2 og/eller TG3). Kjøper overtar ansvaret for de opplysninger som fremkommer av salgsdokumentasjonen, og kan ikke gjøre gjeldende som mangel noe som burde vært kjent eller som ikke kan anses å ha betydning for avtalen.
Bygningen er iht. tilstandsrapport en vertikaldelt rekkehusbebyggelse oppført i 1974. Bygningen er oppført i trekonstruksjoner på ett plan på punktfundamentering/pillarer. Yttervegger er oppført i isolert bindingsverk med fasader av liggende trepanel. Gulv er på bærende dekke med siporex-dekkeelementer (gassbetong). Takkonstruksjonen er et flatt tak i trekonstruksjon med banebelegg/folietekking, og har renner/nedløp og beslag i plastbelagt stål. Boligen har vinduer med ramme og karm i tre med 2-lags isolerglass fra 2018, et vindu på soverom med 3-lags isolerglass fra 2013, samt et overlys/takvindu over kjøkken. Ytterdøren er i tre med glassfelt og 2-lags isolerglass. Les for øvrig mer om byggemåte og den tekniske tilstanden i rapporten.
Det gjøres spesielt oppmerksom på at følgende bygningsdeler er gitt Tilstandsgrad 3 (TG3):
- Etasjeskille/gulv mot grunn: Målt høydeforskjell på over 30 mm. gjennom hele rommet.
Følgende bygningsdeler er gitt Tilstandsgrad 2 (TG2):
- Veggkonstruksjon: Stedvis noe oppsprekking i kledning.
- Vinduer: Det er påvist avvik rundt innsettingsdetaljer. Stålbenkbeslag uten oppkant på ende av beslag. Overlys med noe misfarging/fuktskjolder på karm.
- Dører: Sprekk i terskel.
- Vannledninger og avløpsrør: Pga. alder.
- Ventilasjon: Det er påvist begrenset ventilering/luftgjennomstrømning.
- Varmtvannstank: Pga. alder. Automatisk vannstoppventil ikke montert.
- Bad: Det er påvist at høydeforskjell fra topp slukrist til gulv/synlig topp membran ved dørterskel er mindre enn 25 mm. Målt høydeforskjell 15 mm fra topp sluk til topp gulv ved dør, ukjent detaljløsning bak feilist på dørterskel. Sluk, membran og tettesjikt pga. alder. Opprinnelig baderomsgulv med sluk og tettesjikt er senere ombygget med påstøp og nytt gulv med slukforhøyer avsluttet med ny toppdel av sluk med utsparring (utett) i sidekant. Opprinnelig tettesjikt er således lagt til grunn for vurderingen.
- Sanitærutstyr og innredning: Det mangler drenering fra innebygget sisterne.
- Kjøkken: Kjøkkenet har ventilator med omluft (kullfilter).
Følgende bygningsdeler er ikke undersøkt (TGIU):
- Grunnmur og fundamenter: Bygg med felles fundamentering, ikke tilstandsvurdert. Punktet bør sees i sammenheng med beskrevet avvik under etasjeskille. For å avdekke eventuell setning i punktfundamenter må byggets fundamenter nivelleres. Videre må vurdering gjøres over tid.
- Utvendige vann- og avløpsledninger: Felles stikkledninger, ikke vurdert.
Helse, miljø og sikkerhet:
- Det er ikke montert rekkverk på balkong eller terrasse.
Se supplerende tekst i tilstandsrapporten. Kjøper overtar ansvar og risiko for dette.
Selger beskriver også i egenerklæringsskjema:
Det er utført arbeid på bad i 2026, hvor servantinnredning og dusjkabinett ble skiftet. Arbeidet er utført av faglært (Stor-Oslo VVS AS), og dokumentasjon foreligger.
Moderniseringer og påkostninger
2026:
- Skiftet servantskap og dusjkabinett på bad.
2018:
- Vinduer med 2-lags isolerglass fra 2018 i hele boligen med unntak av vindu på rom benyttet som soverom. Det vinduet har 3-lags glass fra 2013.
Standard
Lyst og arealeffektivt rekkehus som går over ett plan, med stor terrasse på ca. 30 kvm. Boligen har gjennomgående 3-stavs eikeparkett på gulv, samt fliser i entré og på bad. Eiendommen disponerer en garasjeplass, i felles garasjerekke og en oppstillingsplass på egen opparbeidet gårdsplass. Her får man en særdeles barnevennlig og populær beliggenhet. Området har store fellesområder mellom bebyggelsen som gir masse boltreplass for barn.
Entré: Entréen har flislagt gulv med gulvvarme, og gir et innbydende første møte med boligen. Videre kommer man inn i en romslig hall med stor skyvedørsgarderobe.
Stue: Stuen har en god størrelse med slettmalte vegger i tidsriktige farger. En moderne vedovn er plassert sentralt i rommet, som bidrar til varme og hyggelige kvelder. Store vindusflater slipper inn rikelig med lys og skaper en luftig atmosfære. Fra stuen er det utgang til terrasse på ca. 30 kvm med gode solforhold. Fra terrassen har du en fri og landlig utsikt over jordene – en sjelden kvalitet så sentrumsnært. Terrassen er delvis skjermet, noe som gir en lun og privat uteplass. Fra terrassen er det adkomst til hageflekk med gressplen.
Kjøkken: Lys kjøkkeninnredning med profilerte fronter og benkeplate i laminat, kombinert med polert stein. Overskap i tilhørende stil med belysning under overskapene. Det er tapet på veggene, kombinert med gjennomsiktig backsplash mellom benkeplate og overskap. Kjøkkenet er utstyrt med oppvaskmaskin, komfyr og kombiskap, samt kjøkkenventilator med omluft og kullfilter. Varmtvannsbereder på 120 liter er plassert i benkeskap. I taket er det et takvindu som slipper inn naturlig lys. Hvitevarene på kjøkkenet medfølger salget.
Bad: Tidløst bad som i følge tidligere salgsoppgave ble oppgradert ca. 2012 med flislagt gulv og vegger. Finnes ikke dokumentasjon på oppgraderingen. Badet er utstyrt med veggmontert toalett med innebygget sisterne, servantskap og dusjkabinett. Det er opplegg for vaskemaskin, elektrisk gulvvarme og mekanisk avtrekk. Det ble skiftet servantskap og dusjkabinett på bad i 2026.
Soverom: Boligen har et romslig soverom. Rommet kan innredes med seng, nattbord og tilhørende soveromsmøbler.
Tidligere sportsbod er bygget om til et ekstra soverom. Dette er ikke søkt bruksendring for dette. Se punktet ferdigattest.
Lagring: Boligen disponerer en ekstern bod på 4 m², i tilknytning til inngangspartiet.
Løsøre og tilbehør
Vi viser til liste fra Norges Eiendomsmeglerforbund som gjelder fra 01.01.2020 angående løsøre og tilbehør så lenge ikke annet er nevnt i salgsoppgaven.
Hvitevarer på kjøkkenet medfølger salget.
Oppvarming
Boligen er elektrisk oppvarmet med panelovner. Det er gulvvarme i entré og på bad. Boligen er supplert med vedfyring via peisovn.
Dersom beboelsesrom ikke har vegg- eller fastmonterte varmekilder ved visning, følger dette heller ikke med.
Ferdigattest/brukstillatelse
Det foreligger ferdigattest på rekkehuset, datert 18.12.1975. Denne kan fås ved henvendelse til megler.
Det foreligger godkjente og byggemeldte tegninger datert august 1972.
Det gjøres oppmerksom på at et rom benyttet som soverom opprinnelig er byggemeldt som sportsbod med utvendig adkomst jf. byggetegninger og er ikke godkjent til varig opphold. Innredning av rommet til bruk for varig opphold er ikke bruksendret/omsøkt og er heller ikke godkjent av kommunen. Konsekvensen ved søknad kan være at rommet ikke godkjennes som varig opphold og at rommet da må brukes som bod/midlertidig oppbevaring.
Kjøper overtar alt ansvar, kostnad og risiko for dette videre.
Tinglyste heftelser og rettigheter
Eiendommen overdras fri for pengeheftelser.
Kommunen har legalpant i eiendommen for forfalte krav på eiendomsskatt og kommunale avgifter/gebyrer.
Det er tinglyst følgende servitutter på eiendommen:
Dagboknr 5066, tinglyst 13.08.1974, type heftelse: Pliktig medlemskap i Huseierforeningen. Kjøper av eiendommen forplikter seg til å være medlem i Grendelaget som blir opprettet for feltet.
Dagboknr 5067, tinglyst 13.08.1974, type heftelse: Bestemmelser om vann/kloakkreglement. Eieren av eiendommen er bundet av Ski kommunes vann- og kloakkreglement. Dette innebærer plikt til å melde fra før arbeid på ledningsanlegg, tillate inspeksjon, og koble til offentlig ledning ved krav. Eieren er ansvarlig for skader på offentlig ledning forårsaket av ulovlige stoffer. Erklæringen kan ikke slettes uten samtykke fra Ski vann- og kloakkverk.
Dagboknr 5073, tinglyst 13.08.1974, type heftelse: Erklæring/avtale. Eierne av gnr. 137 bnr. 354, 355, 356, 357 og 358 er forpliktet til å holde boligen godt ved like utvendig. Eierne har gjensidig rett til å føre vann- og kloakkledninger over de øvrige eiendommene, samt rett til nødvendig adkomst. Eierne er i fellesskap forpliktet til å vedlikeholde felles ledninger. Utvendige forandringer eller oppføring av andre hus krever samtykke fra Husbanken og de øvrige eierne. Ved brann plikter eier å gjenoppføre boligen innen 2 år. Avtalen kan ikke slettes uten Husbankens samtykke.
Servituttene vil følge eiendommen. Kjøpers bank vil få prioritet etter ovennevnte servitutter.
Eventuell adgang til utleie
Eiendommen har ikke separat utleieenhet. Det vil normalt være anledning til utleie av hele eiendommen eller enkeltrom, såfremt utleiearealet er bygningsmessig godkjent for varig opphold og har forsvarlige radonnivåer.
Diverse
Eiendommen inngår i et dødsbo hvor arvingene er selgere. Arvingene har ikke bebodd eiendommen og kjennskapen til eiendommens tilstand kan være mangelfull. Kjøper må derfor kunne påregne at det kan være flere feil og mangler som normalt oppdages ved bruk av boligen, men som selger av dødsbo ikke har mulighet å vite.
Vi er opptatt av verdiskapning, og har knyttet til oss samarbeidspartnere som skal sikre våre kunder de beste produkter og tjenester;
• I forbindelse med forberedelse av salget, innhenter vi informasjon om eiendommen hovedsakelig fra vår samarbeidspartner Ambita.
• Gjensidige leverer boligselgerforsikring og tilbyr bygningsforsikring
• Boligkjøperforsikring leveres av Hiscox og med Sedgwick som skadebehandler, og er formidlet gjennom Gjensidige.
• Trøgstad Sparebank tilbyr finansieringsløsninger
• Vår avdeling Krogsveen Pluss tilbyr flyttetjenester som utvask, visningsvask, lager, tømming og transport av flyttelass, i tillegg til å formidle kontakt med Flip for overflateoppussing.
• I forbindelse med overtagelse av eiendommen tilbyr Overo avtale om strøm, alarm og bredbånd.
• Krogsveen er, sammen med øvrige bransjeaktører, medeier i Bomega AS som tilbyr den digitale annonseringsplattformen Hjem.
Beliggenhet og tomteforhold
Beliggenhet og tomteforhold
Beliggenhet
Boligen ligger i et rolig, barnevennlig og etablert boligområde med ca. 15 minutter gangavstand til Ski sentrum. Her bor du tilbaketrukket fra byens kjas og mas, men med kort vei til alt en aktiv hverdag krever. Nabolaget består hovedsakelig av rekkehus og eneboliger, med grønne fellesområder og trygge interne veier.
Den daglige logistikken er enkel, med flere barnehager i gangavstand – nærmest er Eikeliveien barnehage, ca. 9 minutter til fots. For skolebarna er det gangavstand til nye Magasinparken ungdomsskole og Finstad barneskole. Fritidsaktiviteter finnes også i nærmiljøet, med blant annet Leikvollen ballplass og flere treningssentre.
Det er kort vei til flotte tur- og friluftsområder i Holstadskogen/Finstadskogen og Nøstvedtmarka. Her finner du et stort nett av turstier og veier. Området har også skiløyper, skistuer og akebakker om vinteren, samt terrengsykkelstier.
En kort kjøretur unna ligger den idylliske badeplassen ved Midtsjøvann. Det er også en kort biltur til Breivoll med deilig badestrand, langs Bunnefjorden. Det er heller ikke langt til Tusenfryd, Norges største fornøyelsespark.
For dagligvarehandel er det kort kjøretur til både Meny og Coop Extra. Ski Storsenter, et av regionens største kjøpesentre, tilbyr et bredt utvalg av butikker, spisesteder, apotek og vinmonopol. Fra Ski stasjon tar Follobanen deg til Oslo S på ca. 12 minutter. Bussen stopper i Linjeveien, bare noen minutters gange fra døren.
Adkomst
Se Google Maps - det er enkelt å finne frem i kartet.
Det vil bli skiltet med Krogsveen visningsskilt ved fellesvisninger.
Barnehager, skoler og fritid
Det er flere barnehager i nærområdet. Eikeliveien barnehage er nærmeste barnehage, og ligger ca. 700 meter fra boligen. Finstad barneskole, nye Magasinparken ungdomsskole, samt Ski vgs. ligger også innen gangavstand.
Informasjon om tilhørende skolekretser er hentet fra Prognosesenteret som dataleverandør, og tilhørigheten kan årlig endres av kommunen. Dersom skole- og barnehagetilbud er av betydning for kjøpet, ber vi om at det rettes en særskilt henvendelse til kommunen for oppdatert informasjon.
Beskrivelse av tomt
Eiet tomt på 128,6 kvm. Tomten er pent opparbeidet med terrasse og hageflekk med gressplen. Mot naboenes terrasser er det levegg og hekk, noe som gir en lun og usjenert uteplass. Fellesområder er pent opparbeidet med gressplen, asfalterte internveier, sitteområder og lekeplass.
Parkering
Eiendommen disponerer en garasjeplass i felles garasjerekke, og en oppstillingsplass på egen opparbeidet gårdsplass. Merk at garasjeplassen følger boligen, og kan ikke selges separat. Garasjeplassen er i den nærmeste rekken mot innkjøringsveien. Nummer 3 fra venstre når du står foran rekken.
Vei, vann og avløp
Eiendommen har adkomst via kommunal vei.
Eiendommen er tilknyttet kommunalt ledningsnett via private stikkledninger. Eier er selv ansvarlig for private stikkledninger til boligen.
Regulerings-og arealplaner
Eiendommen er regulert til konsentrert småhusbebyggelse i henhold til reguleringsplan for Søndre Finstad, Østre del datert 10.11.1993, med tilhørende reguleringsbestemmelser.
I kommuneplan Nordre Follo 2023-2034 fremkommer følgende hensynssone:
- H310_1: Ras- og skredfare.
Det pågår planarbeid i nærområdet. I tillegg er ny kommuneplan under arbeid. Dette kan medføre endringer i fremtiden. Interessenter oppfordres til å sette seg inn i pågående plansaker hos kommunen.
Pågående plansaker i nærområdet (innenfor 500 meter):
- Id 329: Detaljregulering for hensettingsanlegg Ski syd og ny avgrening Østre linje. Planlegging igangsatt.
- Id 202602: Fv.152 Åsveien. Planlegging igangsatt.
- Id 201903: Hensetting Ski syd og omlegging av Østre linje. Planlegging igangsatt.
Utsnitt av plan med tilhørende bestemmelser kan fås ved henvendelse til megler.
Økonomi
Økonomi
Kommunale utgifter
Kommunale avgifter er kr 12.905,- for inneværende år. I dette inngår gebyr for vann, avløp, renovasjon og feiing/tilsyn. Det tas forbehold om at kommunen kan justere gebyrene i løpet av året. Det gjøres oppmerksom på at kostnaden er stipulert etter tidligere eiers forbruk på 24m3 forbruk av vann/avløp. Dette er et lavt forbruk.
Grendelagsavgiften er på kr. 1.504,- pr. mnd. og inkluderer: TV, internett, drift og vedlikehold av fellesområder, veier og garasjeanlegg.
Selger har ikke bebodd eiendommen og har således ikke kjennskap til øvrige løpende utgifter for eiendommen.
Formuesverdi
Formuesverdi for 2024 var kr 994.737,- i følge selgers skatteetaten. Beløpet forutsetter at eier bor fast i boligen (primærbolig).
Ved eventuell øvrig bruk av eiendommen (f.eks. fritidsbolig, pendlerbolig, utleieobjekt) var formuesverdien for 2024 kr 3.978.949,-.
Fra 2026 har Stortinget vedtatt en oppdatert modell for beregning av formuesverdi for primærbolig, så avvik kan forekomme.
For mer informasjon se skatteetaten.no
Omkostninger
4 250 000,00 Prisantydning
Omkostninger
106 250,00 Dokumentavgift til staten (2,5% av kjøpesum)
1 250,00 Gebyr grendelag
19 900,00 Gjensidige Boligkjøperpakke* (valgfritt)
545,00 Tinglysing panterettsdokument
545,00 Tinglysing skjøte
--------------------------------------------------------
108 590,00 (Omkostninger totalt (uten Gjensidige Boligkjøperpakke))
128 490,00 Omkostninger totalt (med Gjensidige Boligkjøperpakke))
--------------------------------------------------------
4 358 590,00 Totalpris inkl. omkostninger
4 378 490,00 Totalpris inkl. omkostninger (med Gjensidige Boligkjøperpakke)
--------------------------------------------------------
Tilbud om lånefinansiering
Megler formidler gjerne kontakt med rådgiver hos Trøgstad Sparebank. De har konkurransedyktige betingelser samt rask og løsningsorientert behandling av din lånesøknad.
Betalingsbetingelser
Kjøpesum inkludert omkostninger, samt pantedokument tilknyttet eventuelt lån, skal være disponibelt hos megler 2 virkedager før overtagelsen.
Annen viktig informasjon
Annen viktig informasjon
Eier
Joachim Voie, Espen Sandvik Voie og Thomas Sandvik Voie
Overtakelse
Etter nærmere avtale.
Velforening
Søndre Finstad grendelag ble etablert i 1973, og består i dag av 63 husstander.
Hus og tomter er selveid, og garasjer, gangveier, samt friareal rundt husstandene er fellesareal, som man eier sammen i et realsameie.
- Det er ikke krav til styregodkjenning, men det skal sendes eierskiftemelding til styret.
- Dyrehold er tillatt.
- Ingen lån i sameiet.
På generalforsamlingen i 2025 ble det besluttet at de to ytterste garasjerekkene skulle renoveres, ved oppsett av saltak og bytting av kledning. Dette er utført.
Grendelaget avholder dugnad en gang i året over 2 dager. I år er dette 4. og 5. mai. Hvis man er tilstede og bidrar på dugnaden får man tilbake kr 1.500,- som er betalt i grendelagsavgift.
Man kan låne diverse hageutstyr og tilhenger av grendelaget, ved behov.
Se mer informasjon på grendelagets hjemmeside: https://www.sondrefinstad.no/
Boligselgerforsikring
Selger har i forbindelse med salget tegnet boligselgerforsikring levert av Gjensidige.
Boligselgerforsikringen dekker selgers ansvar etter avhendingsloven begrenset oppad til kr 14 millioner. Dersom kjøper oppdager forhold ved eiendommen som hen mener utgjør en mangel ved eiendommen, vil Gjensidige behandle reklamasjonen på vegne av selger. Forsikringsvilkår kan fås ved henvendelse til megler.
Vedlagt salgsoppgaven følger selgers egenerklæringsskjema og tilstandsrapport. Interessenter må sette seg inn i dokumentene før bud inngis.
Boligkjøperforsikring
Innen kontraktsmøtet må kjøper ta stilling til om det ønskes å bestille Boligkjøperpakken gjennom Gjensidige. I denne gunstige pakken er boligen ferdig forsikret og inkluderer rettshjelpsforsikring, også kalt Boligkjøperforsikring. Rettshjelpsforsikring gir trygghet og tilgang på profesjonell juridisk hjelp dersom det oppdages uventede feil eller mangler det første året etter overtagelse. Forsikringsselskapet behandler i så fall ethvert mangelskrav kjøper måtte ha overfor selger.
Boligkjøperpakken inkluderer bygningsforsikring for hus og hytte, innboforsikring, flytteforsikring og dobbel rentedekning - i situasjoner hvor kjøper ikke får solgt nåværende primærbolig.
Kjøper mottar ingen særskilt faktura for Boligkjøperpakken da kostnaden det første året legges til kjøpesummen for boligen. Det gjøres oppmerksom på Krogsveen mottar et honorar for denne formidlingen.
Produktark for Boligkjøperpakken ligger vedlagt i salgsoppgaven.
Dersom ikke boligkjøperpakke ønskes kan kun rettshjelpsforsikring, også kalt boligkjøperforsikring, tegnes særskilt via megler. Rettshjelpsforsikringen varer i 5 år fra overtagelse og leveres gjennom Gjensidige. Ta kontakt med megler for ytterligere informasjon.
Selskap og privatpersoner som driver med kjøp/salg/utvikling som ledd i egen næringsvirksomhet kan ikke tegne boligkjøperpakke eller rettshjelpsforsikring.
Budgivning
Forbrukerinformasjon om budgivning er vedlagt denne salgsoppgaven og er også på vår hjemmeside Krogsveen.no. Alle bud og budforhøyelser må inngis skriftlig. I tillegg må legitimasjon være fremlagt sammen med signatur fra budgiver.
Vi oppfordrer til å gi bud elektronisk via GI BUD-knappen på eiendommens hjemmeside på Krogsveen.no. Da vil samtlige vilkår bli oppfylt.
Eventuelle forhøyelser eller endringer av budet kan bekreftes pr SMS eller på e-post. Vi oppfordrer alltid til å kontakte megler pr. telefon i tillegg da forsinkelser i SMS og e-post kan forekomme.
For at budene skal kunne bli behandlet og videreformidlet skriftlig til alle involverte parter, må alle bud ha en tilstrekkelig lang akseptfrist, jf. eiendomsmeglingsforskriften § 6-3.
Selger må også skriftlig akseptere budet før aksept kan formidles til budgiver. Akseptfrist bør derfor være på minimum 30 minutter, og budforhøyelser må derfor skje i god tid før fristens utløp.
Bud i forbrukerforhold kan uansett ikke settes med kortere frist enn kl. 12.00 første virkedag etter siste annonserte visning. I tillegg kan ikke budet ha forbehold om at det skal holdes hemmelig ovenfor øvrige interessenter. Megler har iht lov om eiendomsmegling ikke anledning til å videreformidle disse budene, og de vil dermed heller ikke bli journalført.
Etter at eiendommen er solgt vil kjøper og selger få tilsendt budjournal. Øvrige budgivere kan få utlevert kopi av budjournalen i anonymisert form.
Hvitvaskingsreglene
I henhold til lov om hvitvasking og terrorfinansiering har megler plikt til å gjennomføre kontrolltiltak overfor kunder, herunder fullmektiger. Dette innebærer bl.a. å bekrefte kunders og reelle rettighetshaveres identitet på bakgrunn av fremvist gyldig legitimasjon eller på annen godkjent måte, samt å innhente opplysninger om kundeforholdets formål og tilsiktede art.
Dersom slike kundetiltak ikke kan gjennomføres, kan megler ikke etablere kundeforholdet eller utføre transaksjonen.
Hvis kjøper ikke bidrar til gjennomføring av kundekontrollen og dette fører til at transaksjonen blir forsinket eller ikke kan gjennomføres, vil dette ansees som mislighold av avtalen og gi selger rettigheter etter avhendingslova kapittel 5. I tilfeller der selger ikke bidrar til gjennomføring av løpende kundekontroll underveis i oppdraget, er det selger som misligholder sine forpliktelser etter avtalen og gi kjøper rettigheter etter avhendingslovens kapittel 4. Partene er selv ansvarlige for eventuelle kostnader og ansvar dette kan medføre. Eiendomsmegleren eller eiendomsmeglingsforetaket kan ikke holdes ansvarlig for de konsekvenser dette vil kunne få for partene eller andre som har interesser i eiendomshandelen.
Kjøper oppfordres til å innbetale kjøpesummen som ikke kommer fra låneinstitusjon i én samlet innbetaling fra egen konto i norsk bank. Megler har plikt til å melde fra til Økokrim om eiendomshandler som fremstår som mistenkelige. Melding sendes Økokrim uten at partene varsles.
Personopplysningsloven
I henhold til personopplysningsloven gjør vi oppmerksom på at interessenter kan bli registrert for videre oppfølging.
Lovanvendelse
Generelle bestemmelser
Salgsoppgaven er basert på de opplysningene selger har gitt til megler, den bygningssakyndiges tilstandsrapport, samt opplysninger innhentet fra kommunen, Kartverket og andre tilgjengelige kilder. Det er viktig at kjøper setter seg grundig inn i alle salgsdokumentene, herunder salgsoppgave, tilstandsrapport og selgers egenerklæring. Kjøper anses kjent med forhold som er tydelig beskrevet i salgsdokumentene, og slike forhold kan ikke påberopes som mangler. Dette gjelder uavhengig av om kjøper har lest dokumentene. Alle interessenter oppfordres til å undersøke eiendommen nøye, gjerne sammen med fagkyndig før bud inngis. Kjøper som velger å kjøpe usett kan ikke gjøre gjeldende som mangel noe han burde blitt kjent med ved undersøkelsen.
Dersom det er behov for avklaringer, anbefaler vi at interessenter rådfører seg med eiendomsmegler eller egne rådgivere før det legges inn bud.
En bolig som har blitt brukt i en viss tid, har vanligvis blitt utsatt for slitasje og skader kan ha oppstått. Slik bruksslitasje må kjøper regne med, og det kan avdekkes enkelte forhold etter overtakelse som nødvendiggjør utbedringer. Normal slitasje og skader som nødvendiggjør utbedring, er innenfor hva kjøper må forvente og vil ikke utgjøre en mangel.
Kjøper og selgers rettigheter og plikter reguleres av avtalen mellom partene, samt informasjonen som har vært tilgjengelig for kjøperen i forbindelse med handelen. Avtalen utfylles av avhendingsloven, og det gjelder ulike avtalevilkår avhengig av om kjøper er forbrukerkjøper eller ikke. Dette er nærmere beskrevet nedenfor.
På grunn av ulike avtalevilkår kan selger vurdere bud fra en som ikke er forbruker, ulikt fra en forbrukers bud. Dersom kjøper ikke er forbruker, er selger sitt mulige mangelsansvar begrenset fordi eiendommen selges "som den er". Selger kan ikke ta «som den er»- forbehold overfor en forbrukerkjøper. Selv et lavere bud fra en som ikke er forbruker kan foretrekkes fordi begrensningen i mulig mangelsansvar kan ha egenverdi for selger. Selger står fritt til å forkaste eller akseptere ethvert bud, og er for eksempel ikke forpliktet til å akseptere høyeste bud.
Budgiver skal i budskjema avgi egenerklæring om budgiver er forbruker eller næringsdrivende/ person som hovedsakelig handler som ledd i næringsvirksomhet. Budgivere får informasjon dersom andre bud er inngitt av en som ikke er forbruker.
Forbrukerkjøp - definisjon
Med forbrukerkjøp menes kjøp av eiendom når kjøperen er en fysisk person som ikke hovedsakelig handler som ledd i næringsvirksomhet.
Forbruker – avtalevilkår
Eiendommen har en mangel dersom den ikke er i samsvar med kravene som følger av avtalen, eller det foreligger brudd på bestemmelsene i avhendingsloven §§ 3-2 til 3-8. Hvis eiendommen ikke er i samsvar med det kjøperen må kunne forvente ut ifra alder, type og synlig tilstand, kan det være grunnlag for mangelskrav. Det samme gjelder hvis det er holdt tilbake eller gitt uriktige opplysninger om eiendommen. Dette gjelder likevel bare dersom man kan gå ut ifra at det virket inn på avtalen at opplysningen ikke ble gitt eller at mangelskravet ikke blir rettet i tide på en tydelig måte.
Boligen kan ha en mangel etter avhendingsloven § 3-3 andre ledd, dersom det er avvik mellom opplyst og faktisk innvendig areal, forutsatt at avviket er på 2% eller mer og minimum 1 kvm.
Ved beregning av et eventuelt prisavslag eller erstatning må kjøper selv dekke tap/kostnader opptil et beløp på kr 10 000 (egenandel).
Ikke-forbruker (næringsdrivende) – definisjon
Hvis kjøper er en juridisk person, eller en fysisk person som hovedsakelig handler som ledd i næringsvirksomhet, vil kjøpet ikke anses som et forbrukerkjøp.
Ikke-forbruker – avtalevilkår
Eiendommen har en mangel dersom den ikke er i samsvar med kravene som følger av avtalen.
Eiendommen selges «som den er», og selgers ansvar utover det konkret avtalte er da begrenset etter avhendingsloven § 3-9, første ledd andre setning.
Avhendingsloven § 3-3 andre ledd fravikes, og hvorvidt boligens arealsvikt utgjør en mangel vurderes etter avhendingsloven § 3-8.
Informasjon om kjøpers undersøkelsesplikt, herunder oppfordringen om å undersøke eiendommen nøye, gjelder også for kjøpere som ikke anses som forbrukere.
Det forutsettes at hjemmel overføres til kjøper. Hvis kjøper ikke ønsker hjemmelsoverføring av eiendommen, må det tas forbehold om dette i budet.
Meglers vederlag
Meglers vederlag betales av selger og er avtalt til:
Vederlag: 1,25 % av salgssummen.
Vederlag:
Kontroll av hjemmel og heftelser kr 3 900,00
Markedsføringspakke kr 29 900,00
Oppgjør kr 8 900,00
Tilrettelegging kr 19 900,00
Trykte salgsoppgaver kr 5 500,00
Visninger pr stk. kr 3 500,00
Utlegg:
Innhenting av offentlig opplysninger Nordre Follo kommune kr 3 300,00
Tinglysing hjemmelsovergang kr 545,00
Tinglysing sikring kr 545,00
Andre utgifter:
Boligselgerforsikring Gjensidige Eiet - regnes av prisantydning kr 24.267,50,-
Fotopakke kr 5 000,00
Tilstandsrapport fra bygningssakkyndig - faktura til megler kr 12 100,00
Vi er opptatt av verdiskapning, og har knyttet til oss samarbeidspartnere som skal sikre våre kunder de beste produkter og tjenester;
• I forbindelse med forberedelse av salget, innhenter vi informasjon om eiendommen hovedsakelig fra vår samarbeidspartner Ambita.
• Gjensidige leverer boligselgerforsikring og tilbyr bygningsforsikring
• Boligkjøperforsikring leveres av Hiscox og med Sedgwick som skadebehandler, og er formidlet gjennom Gjensidige.
• BN bank tilbyr finansieringsløsninger
• Vår avdeling Krogsveen Pluss tilbyr flyttetjenester som utvask, visningsvask, lager, tømming og transport av flyttelass, i tillegg til å formidle kontakt med Flip for overflateoppussing.
• I forbindelse med overtagelse av eiendommen tilbyr Overo avtale om strøm, alarm og bredbånd.
• Krogsveen er, sammen med øvrige bransjeaktører, medeier i Bomega AS som tilbyr den digitale annonseringsplattformen Hjem.
Opplysninger om oppdraget
Oppdragsnummer 46-0050/26
Eiendomsmegler Krogsveen AS, avd. Ski
Kirkeveien 2A, 1400, SKI
950 007 613
Oppdragets KR-kode KR46.2650
Dato
Sist oppdatert: 17. april 2026 kl. 14:26
Dokumenter
Dokumenter
PDF – 914 KB
PDF – 241 KB
PDF – 2 MB
PDF – 986 KB
PDF – 387 KB
PDF – 589 KB
PDF – 312 KB
PDF – 29 KB
PDF – 127 KB
PDF – 392 KB
Område
Legg til steder som er viktige for deg
Visning
For å delta på visning, ber vi om at du melder deg på. Da sikrer vi at du får nødvendig informasjon. Kontakt megler dersom annet tidspunkt ønskes. Husk å lese salgsoppgaven før visningen, så du stiller forberedt.
Ønsker du kun å bli holdt orientert, kan du fra eiendommens hjemmeside få varsel om solgtpris, eller kontakte megler.
Lurer du på noe?
Unngå doble boligrenter
Vi tilbyr gunstig forsikring.
Vurderer du utleie?
Få et tilbud fra Utleie KrogsveenHva koster lånet?
Sjekk estimert lånekostnadVil du varsles om lignende boliger?
Ved å lagre ditt boligsøk hos oss får du beskjed når vi har en bolig som ligner denne, før den legges ut på markedet!

