Elvebakken 12
5 500 000 kr
143 m²
3 soverom
Komplett salgsoppgave

Vestfossen
Enebolig med attraktiv beliggenhet ca 30 meter fra elva. Solrikt og flott utsikt. Stor dobbelgarasje med lagringsrom.
Prisantydning
5 500 000 krOmkostninger
158 490 krTotalpris
5 658 490 kr
Pris
Bruksareal
271 m²BRA-I (internt bruksareal)
143 m²BRA-E (eksternt bruksareal)
128 m²TBA (terrasse-balkongareal)
78 m²
Areal
Byggeår
1993Soverom
3 soveromBad
1 badTomteareal
791 m² (eiet)Type
Enebolig - FrittliggendeEierform
EietFasiliteter
Garasje/P-plass og Balkong/TerrasseEnergimerke
Oransje D
Nøkkelinfo
Unngå doble boligrenter
Vi tilbyr gunstig forsikring.
Vurderer du utleie?
Få et tilbud fra Utleie KrogsveenHva koster lånet?
Sjekk estimert lånekostnadBeskrivelse
Kort om eiendommen
- Pent kjøkken med IKEA innredning fra 2018 med integrerte hvitevarer som medfølger eiendommen
- Meget fin uteplass på balkong på 26 kvm med flott utsikt mot elva
- Parkering i stor dobbelgarasje på 64 kvm
- Romslig lagringsrom under garasjen på 57 kvm
- Fin og lys stue med heltregulv og downlights i himlingen
- Markterrasse på ca. 29 kvm og plen
- Muligheter for både soling, bading og fiske da huset er under 30 meter fra vannet
- Beliggende kun ca. 1,5 km fra Vestfossen sentrum med jernbanestasjon
- Vestfossen sentrum hvor det bl.a. er barne- og ungdomsskole, post, legekontor, matbutikker
Innhold og byggemåte
Innhold og byggemåte
Eiendommen
Elvebakken 12, 3320 VESTFOSSEN
Kommunenummer 3314, gårdsnummer 39, bruksnummer 453
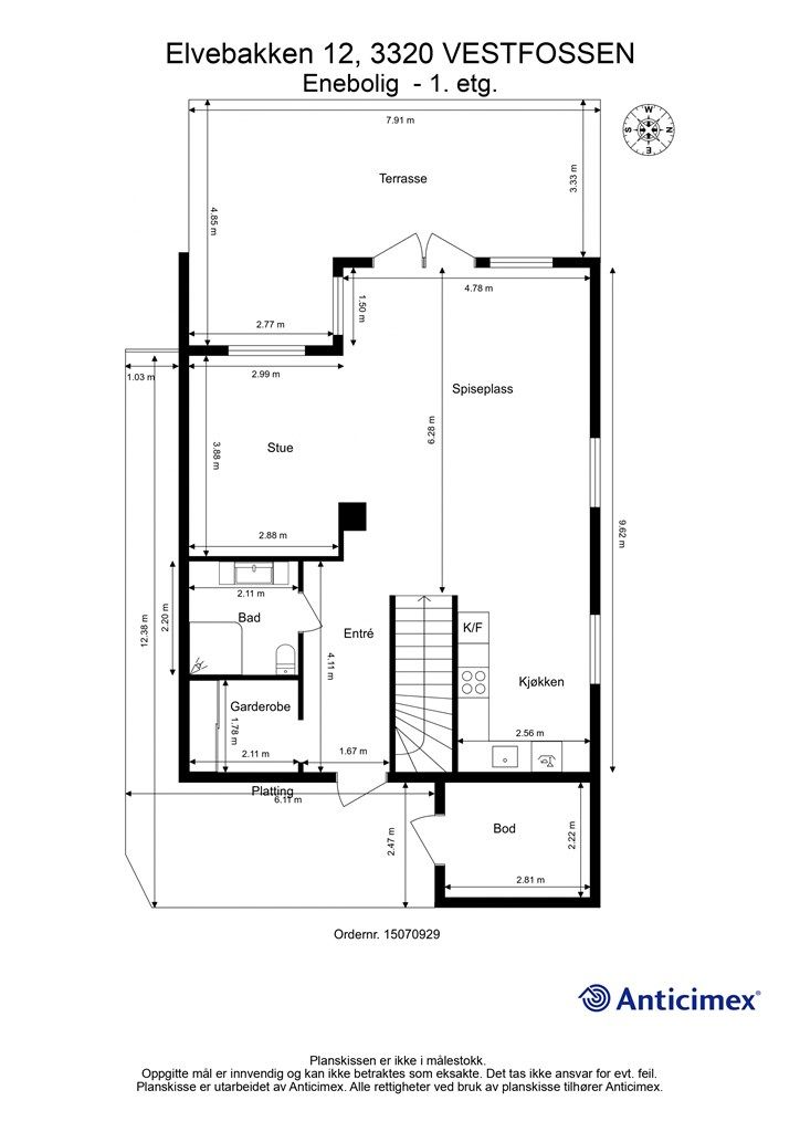
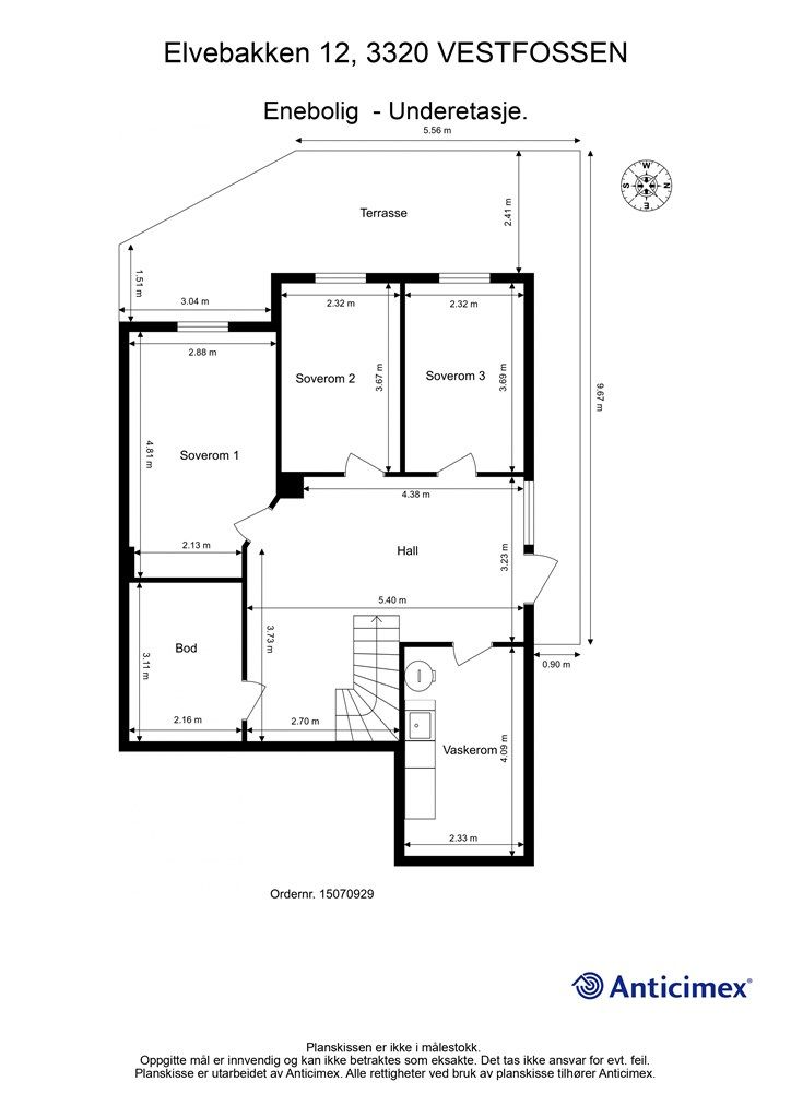
Innhold
BRA-i (Internt bruksareal):
Underetasje: 72 kvm: Hall, tre soverom, vaskerom og bod
1. etasje 71 kvm: Entré, garderobe, stue, kjøkken og ett bad.
BRA-e (Eksternt bruksareal):
Underetasje: 57 kvm: Lagringsrom under garasje
1. etasje 71 kvm: Garasje og utvendig bod.
Åpent areal (Terrasse- og balkongareal):
Underetasje: 29 kvm: Terrasse
1. etasje 49 kvm: Balkong og platting
Vedlagte plantegninger er ikke målbare. De oppgitte arealer er hentet fra rapport med befaringsdato 22.05.2025 utført av Anticimex Sandefjord AS. Arealene er beregnet og rom er definert etter dagens faktiske bruk, uavhengig av hva som er godkjent av bygningsmyndighetene. Deler av vaskerommet er opprinnelig ikke utgravd jf. byggetegninger og er ikke godkjent til varig opphold.
Byggemåte
Bygningen er iht. tilstandsrapporten oppført i oppført i trekonstruksjoner. Grunnmur av betong og lettklinkerblokker, fundamentert på ukjent byggegrunn. Bygget er oppført med støpt gulv mot grunn. Yttervegger av trekonstruksjoner. Fasaden er kledd med liggende trekledning. Etasjeskillere av trekonstruksjoner. Saltak i trekonstruksjoner. Yttertak er utvendig tekket med takstein. Entrédør med sikkerhetslås og glassfelt.
Vinduer og balkong/terrassedører med karmer av tre, og to-lags glass.
Les forøvrig mer om byggemåte og den tekniske tilstanden i rapporten og under punktet "Standard".
Standard
Enebolig med normal god standard. Boligen er pent oppusset i tidsriktige farger. Nydelig utsikt mot elva. Parkering i stor dobbelgarasje på 64 kvm. Lagringsrom under garasjen på 57 kvm. Påkostet garasje og noe utstyr kan kjøpes etter nærmere avtale.
Eier opplyser om at bla. følgende er utført i hans eiertid:
-Oppussing vaskerom og hall i underetasje i ca. 2005
-Oppussing bad 2011
-Ny varmepumpe desember 2023
-Betongdekker i garasje støpt av 2018
-Nytt el-anlegg i garasje i 2021 med samsvarserklæring
-Fliser og gulvvarme i garasje
-Det er avtrekk på bad i 1. etasje (ikke bare ventil som nevnt i tilstandsrapport)
-Bod/bad i underetasje har alt opplegg klart for å bli et baderom
-Smart Elbillader følger (montert i 2022 og har samsvarserklæring)
Overflater:
Gulv: Fliser, heltre og laminat
Vegger: Panel, tapet, malte flater
Himling: Panel, malte flater og takplater
Innhold:
1. etasje:
Entré med heltre gulv. Adkomst til garderoberom.
Garderoberom med skyvedørsgarderobe.
Fin og lys stue med heltregulv og downlights i himlingen. Plass til spisebord og sofagruppe. Oppvarming via varmepumpe. Utgang til uteplass på balkong på 26 kvm med god plass til utemøbler. Flott utsikt mot elva. Eier har fjernet en lettvegg mellom stue og tv-stue. TV-stue var opprinnelig et soverom.
Pent kjøkken med IKEA innredning fra 2018. Innredning med glatte fronter. Benkeplate av tre med nedfelt oppvaskkum. Glassplate montert mellom kjøkkenbenk og overskap. Benkeskapsbelysning over kjøkkenbenk. Integrert stekeovn, platetopp, oppvaskmaskin, mikrobølgeovn og kjøleskap med fryser som medfølger eiendommen. Ventilator i overskap med komfyrvakt.
Bad med heltregulv. Panel på vegger. Innredet med vegghengt servantinnredning med skuffer. Speil med overlys over servant. Dusjkabinett og gulvstående toalett.
Underetasje:
Romslig hall med fliser på gulv. Utgang fra hall til vestvendt markterrasse på ca. 29 kvm.
Tre soverom hvor ett har garderobeskap.
Vaskerom med flislagt gulv. Innredet med benkeplate over opplegg for vaskemaskin/tørketrommel av laminat med nedfelt oppvaskkum. Varmtvannsbereder plassert i hjørne.
Bod som er uinnredet. Selger opplyser om at det er lagt opp til å bygge et bad i boden. Det er lagt inn vann og avløp til rommet, samt varmekabler i gulvet.
Løftebukk og verktøytavle i garasje følger ikke med eiendommen. Løftebukk kan evt kjøpes etter nærmere avtale, men verkttøytavler og annet utstyr følger ikke og kan ikke kjøpes.
Videre vises det til liste fra Norges Eiendomsmeglerforbund angående løsøre og tilbehør. Produkter og installasjoner som medfølger overdras uten noen form for garantier, utover eventuell gjenværende leverandørgaranti.
Selger har fått utarbeidet en tilstandsrapport, dvs. en teknisk gjennomgang av boligen hvor eventuelle avvik, risiko for kjøper og prisoverslag for hva som bør gjøres av oppgradering, er skissert. Se særskilt TGIU (tilstandsgrad ikke undersøkt), samt TG2 og TG3 som viser hva som er avvik fra boligens normale slitasje, alder og type, eller som bør/må utbedres. Rapporten og selgers egenerklæring er en del av salgsoppgaven og må leses nøye før bud inngis. Kjøper overtar ansvaret for de opplysninger som fremkommer av salgsdokumentasjonen, og kan ikke gjøre gjeldende som mangel noe som burde vært kjent eller som ikke kan anses å ha betydning for avtalen.
TG2 gir uttrykk for forhold som avviker fra dagens byggetekniske krav i vesentlig og mindre grad. Dette betyr at konstruksjonen enten har feil utførelse, en skade eller tegn på skade, sterk slitasje eller nedsatt funksjon. Vedlikehold eller tiltak må påregnes i nær fremtid. TG3 gir uttrykk for forhold som har store eller alvorlige avvik. Det må påregnes utbedring straks eller utbedring innen kort tid. Ingen avvik er tildelt TG3 i tilstandsrapporten.
Følgende kontrollpunkter/forhold har blitt tildelt TG2:
-Badet er gitt TG2 for hele våtrommet på grunn av alder og slitasjegrad. Det er blant annet registrert følgende avvik: Det kan ikke verifiseres om det er benyttet tilstrekkelig tettesjikt på våtrommets gulvflater. Ikke mulig å verifisere om slukmansjett og klemring er benyttet eller om monteringen er korrekt. Gulvflater er tilnærmet flate og det er ingen nivåforskjell mellom topp overkant sluk til topp overkant flis ved dørterskel. Kan ikke verifiseres at det er oppkant på tettesjiktet bak flisene. Ingen, eller lite ventilasjon av rommet. Det er observert stedvis sprekker i tapet over sokkelflis og enkelte løse sokkelflis.
-Det er observert en større glipe/sprekk mellom to gulvbord i entré. Årsak skyldes nok av at bordene har tørket og dermed krympet i bredden.
-Ingen luftespalte over/under innerdører i underetasjen, som fører til redusert ventilasjon når dørene lukkes. Kun registrert ventiler i vinduskarmer.
-Deler av etasjen har vegger under bakkenivå som er utlektet fra grunnmuren. Konstruksjonen er lukket, og det er ikke kjent hvordan oppbyggingen er utført. Dette sammen med dreneringens alder tilsier risiko for fuktskader i konstruksjonen
-Fuktmerker/skjolder observert i undertak, spesielt ved pipeløpet. Tiltak for å stoppe fukt/lekkasjer må påregnes.
-Luftespaltene mellom taksperrene er i hovedsak tettet med isolasjon, noe som kan føre til redusert ventilering av kaldtloftet. Det ser ikke ut til at dette har hatt en negativ påvirkning, da det er registrert godt med
lufting andre steder på loftet.
-På bakgrunn av berederens alder er det grunn til å varsle om usikker restlevetid eller andre forhold som utvikles over tid. Det kan ikke utelukkes behov for reparasjon/utskiftning.
-Der er ikke foretatt radonmåling i boligen og verdiene er derfor ukjent.
-Det er ikke fremlagt samsvarserklæring på det elektriske anlegget (tilstandsgrad settes i henhold til NS3600)
-Kledningen er stedvis malingslitt og det er registrert råte i et kledningsbord ved siden av terrassedøren i underetasje.
-Det er usikkert om panelet er montert med lufting.
-Det er observert fuktskjolder i undertak og rundt pipeløp inne på kaldtloftet. Ytterligere undersøkelser og tiltak bør påregnes for å stoppe eventuelle lekkasjer. Snøfangerutstyr ikke etablert.
-Rekkverkshøyden er under 1 meter på balkongen.
-TG 2 er valgt på hele terrasseplattingen da terrasseplattingen bærer preg av slitasje og manglende vedlikehold. Det er også registrert skjevheter og tegn til svikt.
-Terrenget under plattingen ved inngangspartiet har fall mot grunnmur. Forholdet kan øke fuktbelastningen på grunnmuren. Grunnmurens utvendige fuktsperre er ikke avsluttet med beslag/topplist, noe som for
eksempel medfører at det kan komme vann bak fuktsperren. Dreneringen er nedgravd og skjult, og tilstanden vurderes derfor i hovedsak ut fra alder.
Øvrige TG2-punkter i rapporten har blitt tildelt tilstandsgraden ut i fra aldringsskader og slitasje.
Se vedlagt tilstandsrapport for supplerende informasjon vedrørende boligens tilstand.
Eier opplyser i tillegg:
-Sprekker/gliper i heltregulv på så mange kvm vil variere med årstider, luftfuktighet og temperatur.
-Hele el-anlegget i boligen nytt i 2018. Utført av fagmann på dugnad. Ingen samsvarserklæring på dette da firmaet til fagmannen opphørte for den ble utskrevet. Det ble utført kontroll, målinger og sjekk av hele
anlegget i mai 2025. Det er dokumentasjon på kontrollen av dette fra fagmann.
-Det er luftespalte/lektet ut kledning på bygget.
Tilstandsrapporten og selgers egenerklæring er vedlagt salgsoppgaven. Interessenter må sette seg inn i dokumentene før bud inngis.
Oppvarming
Oppvarming via varmepumpe. Dersom beboelsesrom ikke har vegg- eller fastmonterte varmekilder ved visning, følger dette heller ikke med.
Ferdigattest/brukstillatelse
Det foreligger ikke ferdigattest på eiendommen, men midlertidig brukstillatelse ble gitt 21.09.1993.
Tillatelsen er gitt på følgende vilkår: Kjeller ferdigstilles.
Deler av vaskerommet er opprinnelig ikke utgravd jf. byggetegninger og er ikke godkjent til varig opphold. Utgraving av rommet er ikke søkt om hos kommunen og bruk av rommet som vaskerom er derfor ikke godkjent.
Det gjøres oppmerksom på at det ikke lenger utstedes ferdigattest på tiltak det er søkt om før 1998 jf. plan- og bygningsloven § 21-10. Kommunen vil ikke kreve ferdigattest for disse tiltakene og vil avvise eventuelle søknader. Bestemmelsen innebærer ikke at tiltak med manglende søknad blir lovlige, men at man ikke trenger å avslutte gamle byggesaker. Normalt sett kreves ferdigattest for alle søknadspliktige tiltak som gjøres etter plan- og bygningsloven.
Kjøper overtar alt ansvar, kostnad og risiko for dette videre.
Det foreligger ferdigattest for støttemur og utvidelse av terrasse datert 28.05.2019
Ferdigattest på garasje med bod er gitt 15.05.2025. Kopi kan fåes ved henvendelse til megler.
Tinglyste heftelser og rettigheter
Eiendommen overdras fri for pengeheftelser.
Det er ingen tinglyste servitutter på eiendommen.
Eventuell adgang til utleie
Eiendommen har ikke separat utleieenhet. Det vil normalt være anledning til utleie av hele eiendommen eller enkeltrom, såfremt utleiearealet er bygningsmessig godkjent for varig opphold og har forsvarlige radonnivåer.
Beliggenhet og tomteforhold
Beliggenhet og tomteforhold
Beliggenhet
Meget attraktivt beliggenhet eiendommen. Utsikt mot Vestfosselva som går over i Fiskumvannet og deretter Eikern.
Kun ca. 1,5 km til Vestfossen sentrum hvor det bl.a. er barne- og ungdomsskole, post, legekontor, matbutikker (Kiwi og Coop Prix), div forretninger, restaurant, jernbanestasjon, treningssentere m.m.
Kulturhovedstad Vestfossen tilbyr Kunstlaboratorium og Galleri. På vei inn mot sentrum ligger Fossesholm herregård hvor det arrangeres flere konserter, utstillinger og andre kulturarrangementer.
Kommunikasjon:
Ca. 9 min. kjøring til Hokksund sentrum og ca. 15 min til Mjøndalen sentrum med de aller fleste servicetilbud. 18 minutters gange til Vestfossen togstasjon. Tog ca. hver 1/2 time morgen og ettermiddag. Ellers tog hver time til Kongsberg og Oslo S/Gardermoen. Toget tar i underkant av 1 time til Oslo. God kommunikasjon til Hokksund, Kongsberg og Drammen også med Buss. Ca. 15 min å kjøre til Drammen og ca. 15 min til Kongsberg. Ekspressbuss fra Vestfossen med avgang til Notodden, Kongsberg, Drammen og Oslo, se www.brakar.no
Fritidstilbud:
Det er over 200 lag og foreninger i Øvre Eiker. På Øvre Eiker Kommunes internettsider, www.ovre-eiker.kommune.no , finnes oversikt over alle registrerte lag og foreninger. Vestfossen har fin flerbrukshall, flere idrettsplasser og flere kunstinstitusjoner som Morten Viskums kunstlaboratorie, Galleri Møllabekken og Arena. Rutebåten M/S Eikeren har faste sommerruter til Eidsfoss. Det finnes flere aktive kor, Vestfossen Jente- og guttekorps, og aktiv revygruppe. Ny flott kirke i Vestfossen med kommunens beste konsertlokale. Vestfossen idrettslag er aktive med fotball, håndball, turn, tennis, allidrett og ski. I tillegg finnes det i Hokksund tilbud om bla. kor, musikkorps, pistolklubb, speider, teater og tensing. I Hokksund er det også svømmehall, bibliotek, fotballbaner (gress og kunstgress med undervarme), friidrettsbane mm.
Adkomst
Det vil bli skiltet med Krogsveen visningsskilt ved fellesvisninger. Se kart i nettannonse eller Google Maps for nærmere veibeskrivelse. Velkommen til visning!
Barnehager, skoler og fritid
Det finnes 5 kommunale barnehager og 11 private barnehager i Øvre Eiker kommune. For oversikt over barnehager og grunnskole, se: ovre-eiker.kommune.no
Vestfossen barneskole 1.-7. trinn.
Vestfossen Ungdomsskole 8.-10.- trinn.
Eiker videregående skole i Hokksund, Kongsberg videregående skole.
Universitetet i Sør-Øst Norge i Drammen og Kongsberg, se usn.no
Beskrivelse av tomt
Eiertomt er beregnet til ca. 791 kvm. Tomten er ikke oppmålt i nyere tid og har derfor usikre grenser. Tomten er opparbeidet med gruslagt innkjørsel, diverse beplantninger, plenareal og støttemur.
Det er kjent at det har vært en uenighet mellom eiendommene 39/453 (Elvebakken 12) og 39/91 (Tunveien 8). Begge parter har innhentet juridisk bistand.
Eier av Tunveien 8 har uttrykt bekymring for bevegelser i en stablesteinsmur langs eiendomsgrensen, og har ment at dette kan ha sammenheng med tidligere grunnarbeider på Elvebakken 12. Tunveien 8 har varslet mulig krav om ansvar og kostnader til utbedring.
Elvebakken 12 innhentet i den sammenheng en uavhengig fagkyndig vurdering fra VANEBO AS (datert 19.09.25). I vurderingen konkluderes det med at påviste setninger og bevegelser i muren skyldes forhold ved murens oppbygging og håndtering av grunn- og overvann over tid, og ikke arbeid på Elvebakken 12. På denne bakgrunn er kravet fra Tunveien 8 avvist.
Det har ikke kommet nye innsigelser fra Tunveien 8 etter dette, men naboen har gitt uttrykk for at de vil gjøre videre undersøkelser etter vinteren. Kjøper bør være oppmerksom på at saken kan få et videre etterspill, og overtar ansvar, risiko og eventuelle kostnader dersom forholdet blir fulgt opp videre.
Nærmere informasjon om saken, samt kopi av vurderingsnotatet, kan fås av megler på forespørsel.
Parkering
Parkering i stor dobbelgarasje på 64 kvm. Lagringsrom under garasjen på 57 kvm. Ellers parkering på gårdsplassen. Smart Elbillader følger med boligen.
Vei, vann og avløp
Eiendommen har adkomst via privat vei med felles vedlikeholdsansvar. Det er ingen tinglyst veirett til eiendommen.
Eiendommen er tilknyttet kommunalt ledningsnett via private stikkledninger. Eier er selv ansvarlig for private stikkledninger til boligen.
Regulerings-og arealplaner
Eiendommen ligger i et uregulert område, men er i kommuneplan datert 11.12.2024 er avsatt til: Boligbebyggelse nåværende
Eiendommen ligger innenfor hensynssone flomfare.
Utsnitt av plan med tilhørende bestemmelser kan fås ved henvendelse til megler.
Økonomi
Økonomi
Kommunale utgifter
Kommunale avgifter (vann og avløp): kr 8 903,- pr. år, fakturert på eiendommen i 2025. Det er installert vannmåler slik at avgiftene vil variere etter vannforbruket i boligen. Vannmåler leses av tre ganger i året, og det betales for faktisk forbruk. Øvre Eiker kommune løser dette ved å sende ut faktura hver mnd. Ni av fakturaene i året er kun fastledd, og tre av fakturaene i året vil være både forbruk for de fire siste månedene og fastledd.
Renovasjonskostnader: kr 5.201,- pr. år (2 terminer). Type renovasjonsordning: Standard, 2026.
I tillegg påløper det en kostnad på kr 608,- pr. år for boliger med minst ett aktivt røykrør (kostnad pr. 2026). Det påløper også kostnader for feiing av ildsted, kontroll av fyringsanlegg m.m. Frekvens på feiing samt tilsyn er avhengig av behov og vurderes av feieren.
Nåværende eier har et strømforbruk som tilsvarer ca. kr 18.000,- pr. år. (inkl. lading av el-bil). Selger har avtalt Norgespris på strøm på eiendommen for perioden XX-XX, og denne er pt på kr 50 øre inkl mva. Nettleie, avgifter og påslag fra kraftleverandøren kommer i tillegg.
Denne avtalen vil følge eiendommen i den avtalte perioden.
Les mer om Norgespris her: https://www.regjeringen.no/no/aktuelt/legg-fram-lov-om-norgespris-pa-straum-og-fjernvarme/id3102642/
Boligen har en årlig forsikringspremie via JBF på kr ca. 6.000,- pr. år.
Boligen er tilknyttet RiksTV som leverandør av tv og har kostet ca. kr 649,- pr. mnd avhengig av kanalvalg. Eier opplyser at det ligger klar 2xfiber inn til boligen så det kan byttes nettleverandør om ønskelig. Evt tilkoblingsavgift og montering i huset må dekkes av kjøper.
Boligen er tilknyttet NextGenTel fiber som leverandør av internett og har kostet ca. kr 699,- pr. mnd avhengig av hastighet på nettet.
Privat vei, men pr i dag ingen kostander til brøyting.
Det må påregnes kostnader til innboforsikring.
Ovenstående er basert på nåværende eier/husstands senere års forbruk/utgifter. Dette vil variere avhengig av antall familiemedlemmer i husstanden, ønsket innetemperatur, egne fordelsavtaler, kanalvalg, hastighet på bredbånd m.m.
Formuesverdi
Formuesverdi for 2024 var kr 994 825,- ifølge skatteetaten. Beløpet forutsetter at eier bor fast i boligen (primærbolig).
Ved eventuell øvrig bruk av eiendommen (f.eks. fritidsbolig, pendlerbolig, utleieobjekt) var formuesverdien for 2024 kr 3 979 300,-.
Formuesverdien justeres normalt årlig. Se skatteetaten.no for mer informasjon om fastsettelse av formuesverdien.
Omkostninger
5 500 000,00 Prisantydning
Omkostninger
137 500,00 Dokumentavgift til staten (2,5% av kjøpesum)
19 900,00 Gjensidige Boligkjøperpakke (valgfri)
545,00 Tinglysing panterettsdokument
545,00 Tinglysing skjøte
--------------------------------------------------------
158 490,00 Omkostninger totalt
--------------------------------------------------------
5 658 490,00 Totalpris inkl. omkostninger
--------------------------------------------------------
Totalpris inkl. omkostninger forutsetter kjøp til prisantydning.
Det tas forbehold om endringer i avgifter og gebyrer.
Betalingsbetingelser
Kjøpesum inkludert omkostninger, samt pantedokument tilknyttet eventuelt lån, skal være disponibelt hos megler 2 virkedager før overtagelsen.
Annen viktig informasjon
Annen viktig informasjon
Eier
Lasse Berg
Overtakelse
Etter nærmere avtale.
Boligselgerforsikring
Selger har i forbindelse med salget tegnet boligselgerforsikring levert av Gjensidige.
Boligselgerforsikringen dekker selgers ansvar etter avhendingsloven begrenset oppad til kr 14 millioner. Dersom kjøper oppdager forhold ved eiendommen som hen mener utgjør en mangel ved eiendommen, vil Gjensidige behandle reklamasjonen på vegne av selger. Forsikringsvilkår kan fås ved henvendelse til megler.
Vedlagt salgsoppgaven følger selgers egenerklæringsskjema og tilstandsrapport. Interessenter må sette seg inn i dokumentene før bud inngis.
Boligkjøperforsikring
Innen kontraktsmøtet må kjøper ta stilling til om det ønskes å bestille Boligkjøperpakken gjennom Gjensidige. I denne gunstige pakken er boligen ferdig forsikret og inkluderer rettshjelpsforsikring, også kalt Boligkjøperforsikring. Rettshjelpsforsikring gir trygghet og tilgang på profesjonell juridisk hjelp dersom det oppdages uventede feil eller mangler det første året etter overtagelse. Forsikringsselskapet behandler i så fall ethvert mangelskrav kjøper måtte ha overfor selger.
Boligkjøperpakken inkluderer bygningsforsikring for hus og hytte, innboforsikring, flytteforsikring og dobbel rentedekning - i situasjoner hvor kjøper ikke får solgt nåværende primærbolig.
Kjøper mottar ingen særskilt faktura for Boligkjøperpakken da kostnaden det første året legges til kjøpesummen for boligen. Det gjøres oppmerksom på Krogsveen mottar et honorar for denne formidlingen.
Produktark for Boligkjøperpakken ligger vedlagt i salgsoppgaven.
Dersom ikke boligkjøperpakke ønskes kan kun rettshjelpsforsikring, også kalt boligkjøperforsikring, tegnes særskilt via megler. Rettshjelpsforsikringen varer i 5 år fra overtagelse og leveres gjennom Gjensidige. Ta kontakt med megler for ytterligere informasjon.
Selskap og privatpersoner som driver med kjøp/salg/utvikling som ledd i egen næringsvirksomhet kan ikke tegne boligkjøperpakke eller rettshjelpsforsikring.
Budgivning
Forbrukerinformasjon om budgivning er vedlagt denne salgsoppgaven og er også på vår hjemmeside Krogsveen.no. Alle bud og budforhøyelser må inngis skriftlig. I tillegg må legitimasjon være fremlagt sammen med signatur fra budgiver.
Vi oppfordrer til å gi bud elektronisk via GI BUD-knappen på eiendommens hjemmeside på Krogsveen.no. Da vil samtlige vilkår bli oppfylt.
Eventuelle forhøyelser eller endringer av budet kan bekreftes pr SMS eller på e-post. Vi oppfordrer alltid til å kontakte megler pr. telefon i tillegg da forsinkelser i SMS og e-post kan forekomme.
For at budene skal kunne bli behandlet og videreformidlet skriftlig til alle involverte parter, må alle bud ha en tilstrekkelig lang akseptfrist, jf. eiendomsmeglingsforskriften § 6-3.
Selger må også skriftlig akseptere budet før aksept kan formidles til budgiver. Akseptfrist bør derfor være på minimum 30 minutter, og budforhøyelser må derfor skje i god tid før fristens utløp.
Bud i forbrukerforhold kan uansett ikke settes med kortere frist enn kl. 12.00 første virkedag etter siste annonserte visning. I tillegg kan ikke budet ha forbehold om at det skal holdes hemmelig ovenfor øvrige interessenter. Megler har iht lov om eiendomsmegling ikke anledning til å videreformidle disse budene, og de vil dermed heller ikke bli journalført.
Etter at eiendommen er solgt vil kjøper og selger få tilsendt budjournal. Øvrige budgivere kan få utlevert kopi av budjournalen i anonymisert form.
Hvitvaskingsreglene
I henhold til lov om hvitvasking og terrorfinansiering har megler plikt til å gjennomføre kontrolltiltak overfor kunder, herunder fullmektiger. Dette innebærer bl.a. å bekrefte kunders og reelle rettighetshaveres identitet på bakgrunn av fremvist gyldig legitimasjon eller på annen godkjent måte, samt å innhente opplysninger om kundeforholdets formål og tilsiktede art.
Dersom slike kundetiltak ikke kan gjennomføres, kan megler ikke etablere kundeforholdet eller utføre transaksjonen.
Hvis kjøper ikke bidrar til gjennomføring av kundekontrollen og dette fører til at transaksjonen blir forsinket eller ikke kan gjennomføres, vil dette ansees som mislighold av avtalen og gi selger rettigheter etter avhendingslova kapittel 5. I tilfeller der selger ikke bidrar til gjennomføring av løpende kundekontroll underveis i oppdraget, er det selger som misligholder sine forpliktelser etter avtalen og gi kjøper rettigheter etter avhendingslovens kapittel 4. Partene er selv ansvarlige for eventuelle kostnader og ansvar dette kan medføre. Eiendomsmegleren eller eiendomsmeglingsforetaket kan ikke holdes ansvarlig for de konsekvenser dette vil kunne få for partene eller andre som har interesser i eiendomshandelen.
Kjøper oppfordres til å innbetale kjøpesummen som ikke kommer fra låneinstitusjon i én samlet innbetaling fra egen konto i norsk bank. Megler har plikt til å melde fra til Økokrim om eiendomshandler som fremstår som mistenkelige. Melding sendes Økokrim uten at partene varsles.
Personopplysningsloven
I henhold til personopplysningsloven gjør vi oppmerksom på at interessenter kan bli registrert for videre oppfølging.
Lovanvendelse
Generelle bestemmelser
Salgsoppgaven er basert på de opplysningene selger har gitt til megler, den bygningssakyndiges tilstandsrapport, samt opplysninger innhentet fra kommunen, Kartverket og andre tilgjengelige kilder. Det er viktig at kjøper setter seg grundig inn i alle salgsdokumentene, herunder salgsoppgave, tilstandsrapport og selgers egenerklæring. Kjøper anses kjent med forhold som er tydelig beskrevet i salgsdokumentene, og slike forhold kan ikke påberopes som mangler. Dette gjelder uavhengig av om kjøper har lest dokumentene. Alle interessenter oppfordres til å undersøke eiendommen nøye, gjerne sammen med fagkyndig før bud inngis. Kjøper som velger å kjøpe usett kan ikke gjøre gjeldende som mangel noe han burde blitt kjent med ved undersøkelsen.
Dersom det er behov for avklaringer, anbefaler vi at interessenter rådfører seg med eiendomsmegler eller egne rådgivere før det legges inn bud.
En bolig som har blitt brukt i en viss tid, har vanligvis blitt utsatt for slitasje og skader kan ha oppstått. Slik bruksslitasje må kjøper regne med, og det kan avdekkes enkelte forhold etter overtakelse som nødvendiggjør utbedringer. Normal slitasje og skader som nødvendiggjør utbedring, er innenfor hva kjøper må forvente og vil ikke utgjøre en mangel.
Kjøper og selgers rettigheter og plikter reguleres av avtalen mellom partene, samt informasjonen som har vært tilgjengelig for kjøperen i forbindelse med handelen. Avtalen utfylles av avhendingsloven, og det gjelder ulike avtalevilkår avhengig av om kjøper er forbrukerkjøper eller ikke. Dette er nærmere beskrevet nedenfor.
På grunn av ulike avtalevilkår kan selger vurdere bud fra en som ikke er forbruker, ulikt fra en forbrukers bud. Dersom kjøper ikke er forbruker, er selger sitt mulige mangelsansvar begrenset fordi eiendommen selges "som den er". Selger kan ikke ta «som den er»- forbehold overfor en forbrukerkjøper. Selv et lavere bud fra en som ikke er forbruker kan foretrekkes fordi begrensningen i mulig mangelsansvar kan ha egenverdi for selger. Selger står fritt til å forkaste eller akseptere ethvert bud, og er for eksempel ikke forpliktet til å akseptere høyeste bud.
Budgiver skal i budskjema avgi egenerklæring om budgiver er forbruker eller næringsdrivende/ person som hovedsakelig handler som ledd i næringsvirksomhet. Budgivere får informasjon dersom andre bud er inngitt av en som ikke er forbruker.
Forbrukerkjøp - definisjon
Med forbrukerkjøp menes kjøp av eiendom når kjøperen er en fysisk person som ikke hovedsakelig handler som ledd i næringsvirksomhet.
Forbruker – avtalevilkår
Eiendommen har en mangel dersom den ikke er i samsvar med kravene som følger av avtalen, eller det foreligger brudd på bestemmelsene i avhendingsloven §§ 3-2 til 3-8. Hvis eiendommen ikke er i samsvar med det kjøperen må kunne forvente ut ifra alder, type og synlig tilstand, kan det være grunnlag for mangelskrav. Det samme gjelder hvis det er holdt tilbake eller gitt uriktige opplysninger om eiendommen. Dette gjelder likevel bare dersom man kan gå ut ifra at det virket inn på avtalen at opplysningen ikke ble gitt eller at mangelskravet ikke blir rettet i tide på en tydelig måte.
Boligen kan ha en mangel etter avhendingsloven § 3-3 andre ledd, dersom det er avvik mellom opplyst og faktisk innvendig areal, forutsatt at avviket er på 2% eller mer og minimum 1 kvm.
Ved beregning av et eventuelt prisavslag eller erstatning må kjøper selv dekke tap/kostnader opptil et beløp på kr 10 000 (egenandel).
Ikke-forbruker (næringsdrivende) – definisjon
Hvis kjøper er en juridisk person, eller en fysisk person som hovedsakelig handler som ledd i næringsvirksomhet, vil kjøpet ikke anses som et forbrukerkjøp.
Ikke-forbruker – avtalevilkår
Eiendommen har en mangel dersom den ikke er i samsvar med kravene som følger av avtalen.
Eiendommen selges «som den er», og selgers ansvar utover det konkret avtalte er da begrenset etter avhendingsloven § 3-9, første ledd andre setning.
Avhendingsloven § 3-3 andre ledd fravikes, og hvorvidt boligens arealsvikt utgjør en mangel vurderes etter avhendingsloven § 3-8.
Informasjon om kjøpers undersøkelsesplikt, herunder oppfordringen om å undersøke eiendommen nøye, gjelder også for kjøpere som ikke anses som forbrukere.
Det forutsettes at hjemmel overføres til kjøper. Hvis kjøper ikke ønsker hjemmelsoverføring av eiendommen, må det tas forbehold om dette i budet.
Meglers vederlag
Meglers vederlag betales av selger og er avtalt til:
Vederlag: 0,85 % av salgssummen.
Minimumsprovisjon er kr 50 000,00
Vederlag:
Kontroll av hjemmel og heftelser kr 2 900,00
Markedsføringspakke Ekstra kr 27 250,00
Oppgjør kr 7 500,00
Tilrettelegging kr 17 000,00
Visninger pr stk kr 4 000,00
Utlegg:
Innhenting av off. oppl. Øvre Eiker kommune - kommunale gebyrer kr 505,38
Innhenting av off. opplysninger Øvre Eiker - byggetegn.+ Rfd kr 5 846,63
Tinglysing sikring kr 545,00
Innhenting av servitutter fra grunnboken: kr 260,00 pr. stk.
Andre utgifter:
Foto 20 bilder + drone + bilderedigering fix kr 5 650,00
Boligselgerforsikring Gjensidige regnet av prisantydning og tilstandsrapport: ca. kr 41 730,00
Vi er opptatt av verdiskapning, og har knyttet til oss samarbeidspartnere som skal sikre våre kunder de beste produkter og tjenester;
• I forbindelse med forberedelse av salget, innhenter vi informasjon om eiendommen hovedsakelig fra vår samarbeidspartner Amibita.
• Gjensidige leverer boligselgerforsikring og tilbyr bygningsforsikring
• Boligkjøperforsikring leveres av Hiscox og med Sedgwick som skadebehandler, og er formidlet gjennom Gjensidige.
• BN bank tilbyr finansieringsløsninger
• Vår avdeling Krogsveen Pluss tilbyr flyttetjenester som utvask, visningsvask, lager, tømming og transport av flyttelass, i tillegg til å formidle kontakt med Flip for overflateoppussing.
• I forbindelse med overtagelse av eiendommen tilbyr Overo avtale om strøm, alarm og bredbånd.
• Krogsveen er, sammen med øvrige bransjeaktører, medeier i den digitale annonseringsplattformen Hjem som eies av Bomega AS.
Opplysninger om oppdraget
Oppdragsnummer 20-0416/24
Eiendomsmegler Krogsveen AS, avd. Drammen
Nedre Storgate 16, 3015, DRAMMEN
950 007 613
Oppdragets KR-kode KR20.24416
Dato
Sist oppdatert: 05. mai 2026 kl. 12:16
Dokumenter
Dokumenter
PDF – 655 KB
PDF – 943 KB
PDF – 1 MB
PDF – 977 KB
PDF – 312 KB
PDF – 29 KB
PDF – 127 KB
PDF – 392 KB
Område
Legg til steder som er viktige for deg
Visning
Ta kontakt med megler for avtale om privatvisning. Ønsker du kun å bli holdt orientert, kan du fra eiendommens hjemmeside få varsel om solgtpris, eller kontakte megler.
Lurer du på noe?
Unngå doble boligrenter
Vi tilbyr gunstig forsikring.
Vurderer du utleie?
Få et tilbud fra Utleie KrogsveenHva koster lånet?
Sjekk estimert lånekostnadVil du varsles om lignende boliger?
Ved å lagre ditt boligsøk hos oss får du beskjed når vi har en bolig som ligner denne, før den legges ut på markedet!




































