Mosseveien 71
16 500 000 kr
172 m²
3 soverom
Komplett salgsoppgave

Seut Brygge
Enestående penthouseleilighet med panoramautsikt, 74 kvm. uteareal og 15 m. båtplass rett nedenfor. 3 garasjeplasser.
Prisantydning
16 500 000 krOmkostninger
423 540 krTotalpris
16 923 540 kr
Pris
Bruksareal
179 m²BRA-I (internt bruksareal)
172 m²BRA-E (eksternt bruksareal)
7 m²TBA (terrasse-balkongareal)
74 m²
Areal
Etasje
11Byggeår
2021Soverom
3 soveromBad
2 badType
EierleilighetEierform
EierseksjonFasiliteter
Garasje/P-plass, Heis og Balkong/TerrasseFellesutgifter
8 270 krEnergimerke
Grønn C
Nøkkelinfo
Unngå doble boligrenter
Vi tilbyr gunstig forsikring.
Vurderer du utleie?
Få et tilbud fra Utleie KrogsveenHva koster lånet?
Sjekk estimert lånekostnadBeskrivelse
Kort om eiendommen
- Usjenert i høyden av øverst etasje med 74 kvm. uteareal fordel på balkonger og stor, skjermet takaltan
- 15 m. longside båtplass rett nedenfor leiligheten
- Tre store garasjeplasser i garasjeanlegget, like ved heisen
- 74 kvm. uteareal fordel på balkonger og takaltan med hev/senk panoramavinduer
- Meget velholdt, moderne standard med vannbåren gulvvarme i alle rom
- Stort, velutrustet og elegant kvalitetskjøkken fra Sigdal
- Master bedroom med balkong, walk-in closet og eget bad
- Påkostet med flere plassbyggede løsninger, soverom innredet som bibliotek/TV-stue
- To inviterende bad og meget praktisk vaskerom
- Enkel adkomst med heis i bygget
Innhold og byggemåte
Innhold og byggemåte
Eiendommen
Mosseveien 71, 1610 FREDRIKSTAD
Kommunenummer 3107, gårdsnummer 210, bruksnummer 67, seksjonsnummer 40, ideell andel 1/1
Kommunenummer 3107, gårdsnummer 210, bruksnummer 67, seksjonsnummer 112, ideell andel 18/329
Innhold
Totalt bruksareal BRA: 179 kvm
BRA-i:
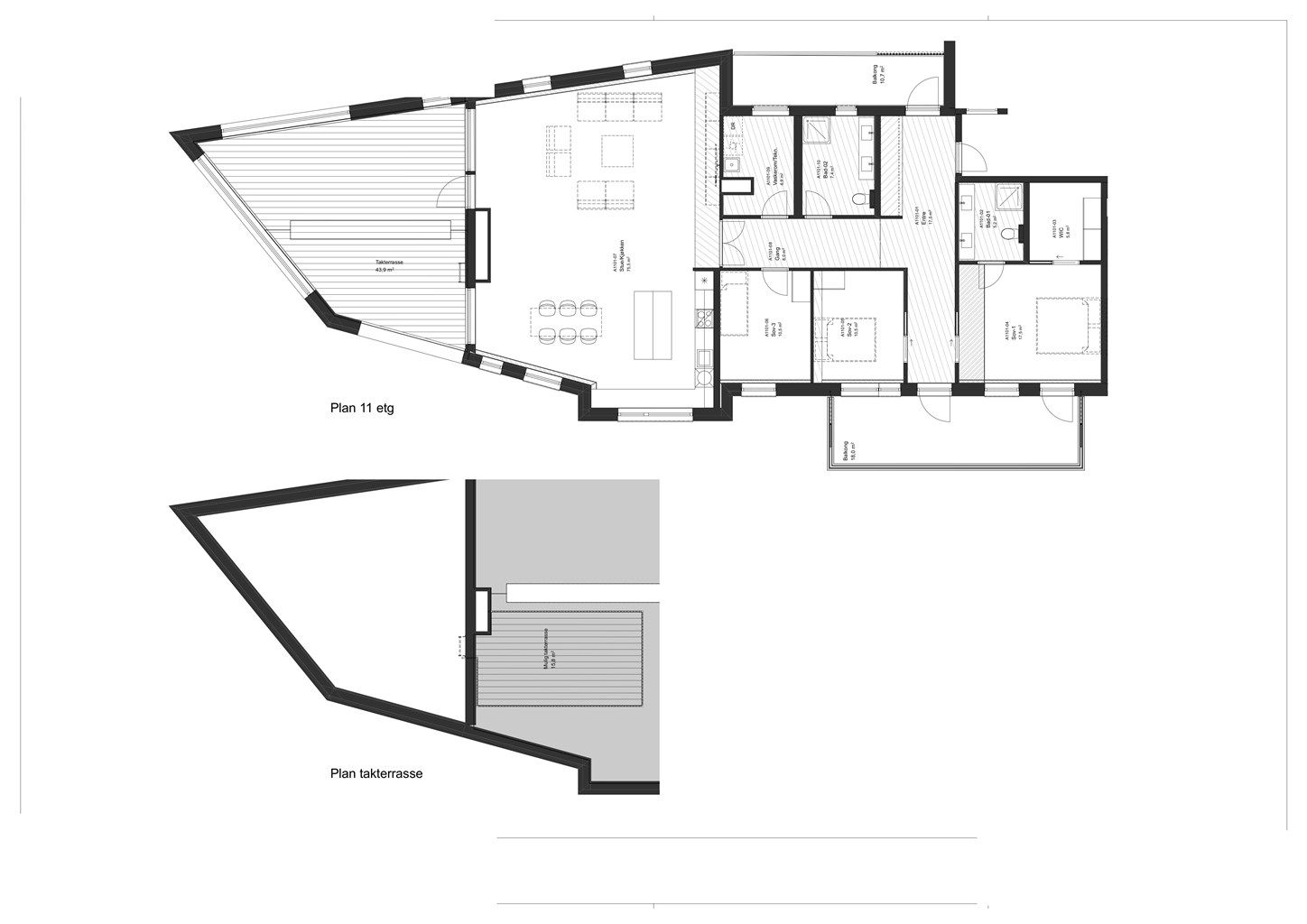
11. etasje - 172 kvm: Hall, kjøkken, to bad, bod/teknisk rom/vaskerom, stue, TV-stue/soverom, Master soverom m/garderobe og soverom
BRA-e:
Kjeller - 7 kvm: Bod i kjeller
Åpent areal:
11. etasje - 74 kvm: Terrasse
Boligen er tegnet, og godkjent, med ekstra takterrasse over stuens tak på ca. 15 kvm. Denne har pt. ingen adkomst og uteplassen er ikke sikret med gjerde.
Boligen disponerer 1 bod i kjeller. Boden er tinglyst som en tilleggsdel til seksjonen i tilknytning av garasjeanlegget som er en egen seksjon.
Vedlagte plantegninger er ikke målbare. De oppgitte arealer er hentet fra rapport med befaringsdato 22.08.2025 utført av Svein Nesøen. Arealene er beregnet og rom er definert etter dagens faktiske bruk, uavhengig av hva som er godkjent av bygningsmyndighetene.
Byggemåte
Selger har fått utarbeidet en tilstandsrapport, dvs. en teknisk gjennomgang av boligen hvor eventuelle avvik, risiko for kjøper og prisoverslag for hva som bør gjøres av oppgradering, er skissert. Se særskilt TGIU (tilstandsgrad ikke undersøkt), samt TG2 og TG3 som viser hva som er boligens normale slitasje, alder og type, hva som er avvik fra dette og hva som bør/må utbedres. Rapporten og selgers egenerklæring er en del av salgsoppgaven og må leses nøye før bud inngis. Kjøper overtar ansvaret for de opplysninger som fremkommer av salgsdokumentasjonen, og kan ikke gjøre gjeldende som mangel noe som burde vært kjent eller som ikke kan anses å ha betydning for avtalen.
Toppleilighet oppført i 2021. Taktekke, takkonstruksjon, samt renner/nedløp og beslag på tak er ikke sjekket. Teglstein og trekledning på vegger utvendig. Etasjeskille i betong eller elementer. Vinduer med trelags isolerglass - disse er aluminiumsbeslått utvendig. Terrassedører med trelags isolerglass - disse er aluminiumsbeslått utvendig. Takterrasse på ca. 44 m2. Vegger i tre og store vinduer rundt. Rekkverk av aluminium og glass. Balkong på ca. 11 m2. Aluminiumsrekkverk.
Les forøvrig mer om byggemåte og den tekniske tilstanden i rapporten.
Tiltak/påkostning utført av eier i den senere tid:
Nye garderober og innredninger,
Nye marmor benkeplater
Bygget faste innredninger på vaskerom, i stue og soverom.
Det gjøres spesielt oppmerksom på:
Det er gitt tilstandsgrad 3 (TG3) på følgende:
Andre innvendige forhold - Bod/teknisk rom/vaskerom er ikke bygd som våtrom. Det er ikke synlig sluk og ikke vannstopper.
Tiltak: Sette opp vannstopper eller sikre på en annen måte for mulige lekkasjer.
Kostnadsestimat: 10 000 - 50 000
Forøvrig TG1 på resterende kontrollpunkter fra takstmann
Se supplerende tekst i tilstandsrapporten om rommet/bygningsdelen for nærmere informasjon og beskrivelse. Kjøper overtar ansvar og risiko for dette.
Det er påvist forekomst av skjeggkre i bygget. Skjeggkre kan ifølge skadedyrfirmaene bekjempes ved sanering av skadedyrfirmaer, bruk av limfeller samt regelmessig støvsuging/rengjøring. Kjøper overtar risikoen for dette forholdet.
Sameiet har innstilt en samlet felles bekjempelse og arbeider videre med dette
Standard
Leiligheten ble oppført med moderne standard for byggeåret og er gjennom påfølgende år ytterligere påkostet med blant annet skreddersydde innredninger i flere rom. Stuen har integrert lydanlegg med Bowers & Wilkins høyttalere med Sonosstyring. Alt er i dag meget velholdt.
Det sjeldent store interne bruksarealet på hele 171 kvm. er i seg selv blant leilighetens fremste kvaliteter. En imponerende stue på 75 kvm. er strategisk plassert i byggets ende, der nær 180 grader vid utsikt sees. Stuen inneholder også et sømløst integrert og elegant kjøkken fra den anerkjente kvalitetsprodusenten Sigdal, med smart barløsning.
Kjøkkenets innredning fra Sigdal er både velutrustet og bruksvennlig. Benkeplatene er skiftet ut til fordel for nye i marmor, med meterlange arbeids- og avlastningsflater. Blant flere nevneverdige innretninger er det spesielt verdt å fremheve Quooker som gir kokende vann rett fra kjøkkenkranen. Hvitevarene er alle integrert og inkluderer blant annet platetopp av 60 cm. bredde, kaffemaskin og temperaturskap dedikert til vin.
Leilighetens tre soverom er alle tilbaketrukne fra den sosiale sonen og kan avskjermes med to-fløyet glassdør mellom stuen og soveromskorridoren. Hovedsoverommet har både eget bad og walk-in closet med plassbygget innredning fra Huseby som rettferdiggjør benevnelsen master bedroom. Blant de øvrige to soverommene fyller ett i dag rollen som bibliotek/TV-stue, med en omfangsrik skreddersydd og plassbygget innredning fra Huseby. Innredningen har i tillegg en integrert nedfellbar skapseng.
Romløsningen med to moderne bad utgjør en betydelig komfort, især tilgangen til eget bad for hovedsoverommet. Badene er fullt utstyrt med blant annet dusj og innredet med møbler fra Sigdal, begge med dobbel servant som muliggjør samtidig bruk av to personer.
I tillegg til to komfortable bad inkluderer romløsningen et meget praktisk anlagt vaskerom. Som flere av de øvrige rom har også dette skreddersydd innredning fra Huseby der både vaskemaskin og tørketrommel kan plasseres i elevert og hendig arbeidshøyde.
Overflater og innredninger:
Gulv: Parkett og fliser.
Innervegger: Malte glatte flater og fliser.
Himlinger: Malte glatte flater. Innfelte spotter i flere rom.
Kjøkken: Skapinnredning med glatte og profilerte grå fronter. Lyse marmor benkeplater. Underlimt vask med sort ett-greps blandebatteri og Quooker. Integrert platetopp, stekeovn, mikrobølgeovn, kaffemaskin, oppvaskmaskin, kombiskap og vinskap. Veggmontert ventilator.
Bad x2: Servantskap med glatte hvite fronter og heldekkende dobbel keramisk servant med ett-greps blandebatterier. Veggspeil med bakgrunnsbelysning. Dusjhjørne med glassdører og to-greps blandebatteri med hånddusj. Toalett montert på innbygget sisterne.
Vaskerom: Skapinnredning med glatte hvite fronter. Laminert grå benkeplate med underlimt stålvask. Veggmontert ett-greps blandebatteri. Rør-opplegg til vaskemaskin.
Løsøre og tilbehør
Vi viser til liste fra Norges Eiendomsmeglerforbund som gjelder fra 01.01.2020 angående løsøre og tilbehør.
Kjøleskap, fryseskap, vinskap, komfyr, micro og kaffemaskin medfølger.
Oppvarming
Eiendommen er oppvarmet med vannbåren gulvvarme. Flexit ventilasjonsanlegg med varmegjenvinning.
Ferdigattest/brukstillatelse
Det foreligger ferdigattest på nybygg boliger, datert 21.10.2021 med tegninger. Denne kan fås ved henvendelse til megler.
Det er uvisst om det er gjort endringer etter at ferdigattest ble gitt, men selger opplyser at det ikke er foretatt endringer i selgers eiertid.
Endring fra byggemeldte tegninger opp mot dagens bruk:
Soverommet som i dag er innredet som bibliotek er gjort mindre til fordel for større entré og enklere tilgang til den vestre balkongen.
Tinglyste heftelser og rettigheter
Leiligheten overdras fri for pengeheftelser.
Sameiet har legalpant for krav mot sameieren som følger av sameieforholdet iht. eierseksjonsloven § 31. Pantet er begrenset oppad til 2G, (G = folketrygdens grunnbeløp).
Det er tinglyst 2 servitutter på sameiets eiendom. Disse omhandler blant annet bestemmelse om elektriske kraftlinjer og bestemmelse om tilknytning til fjernvarmeanlegget.
Servituttene vil følge eiendommen. Kjøpers bank vil få prioritet etter ovennevnte heftelser og servitutter.
I tillegg er det tinglyst tre eldre servitutter som er håndskrevet og vanskelig å tyde, men hefter i sameiets eiendom. Kjøper overtar ansvaret for servitutten.
- Bestemmelse om gjerde den 28.11.1916, med dagboknr. 920344.
- Plikt til veivedlikehold den 05.08.1919, med dagboknr. 920632.
- Elektrisk kraftlinjer den 09.10.1931, med dagboknr. 920194.
Eventuell adgang til utleie
Leiligheten kan leies ut såfremt leiligheten har forsvarlige radonverdier. Leietaker må følge sameiets vedtekter og ordensregler på lik linje som eier.
Diverse
Vi er opptatt av verdiskapning, og har knyttet til oss samarbeidspartnere som skal sikre våre kunder de beste produkter og tjenester;
• Gjensidige leverer boligselgerforsikring og tilbyr bygningsforsikring
• Boligkjøperforsikring leveres av Hiscox og med Sedgwick som skadebehandler, og er formidlet gjennom Gjensidige.
• BN bank tilbyr finansieringsløsninger
• Vår avdeling Krogsveen Pluss tilbyr flyttetjenester som utvask, visningsvask, lager, tømming og transport av flyttelass, i tillegg til å formidle kontakt med Flip for overflateoppussing.
• I forbindelse med overtagelse av eiendommen tilbyr Overo avtale om strøm, alarm og bredbånd.
• Krogsveen er, sammen med øvrige bransjeaktører, medeier i den digitale annonseringsplattformen Hjem.
Beliggenhet og tomteforhold
Beliggenhet og tomteforhold
Beliggenhet
Seut Brygge er som navnet antyder idyllisk beliggende helt inntil Seutelven. Her bor du i sentrale omgivelser like utenfor bykjernen og nyter i tillegg godt av umiddelbar nærhet til så vel forretninger som tjenestetilbud.
I nærområdet finnes blant annet et større utvalg dagligvareforretninger, den nærmeste rett på andre siden av elven - en kort rusletur unna. En rekke helserelaterte tjenester er også lett tilgjengelig, deriblant lege og tannlege - med mer.
Til byen tar det få minutter å sykle, dedikerte sykkelveier leder helt frem til sentrumskjernen fra Seut. Det er også enkelt å reise kollektivt i det daglige. En rekke busslinjer passerer forbi, blant annet til byen og til Oslo. Holdeplasser ligger like ovenfor hovedinngangen.
Plasseringen rett utenfor bykjernen innebærer også fordelen av enkel tilgang til fine turområder. Både Fredrikstadmarka og Gressvikmarka er lett tilgjengelig, begge har lysløype og sesong-åpen ski-/trimhytte som kan være naturlige utfartsmål.
Adkomst
Det vil bli skiltet med Krogsveen visningsskilt ved fellesvisninger.
Barnehager, skoler og fritid
Barnehager
Trosvik Doremi barnehage (0-5 år) 0.9 km
Trosvik barnehage (1-5 år) 1.1 km
Christianslund barnehage (1-5 år) 1.2 km
Skoler
Trosvik skole (1-7 kl.) 1.2 km
Hurrød skole (1-7 kl.) 1.4 km
Wang Ung Fredrikstad (8-10 kl.) 2.4 km
Kvernhuset ungdomsskole (8-10 kl.) 3.7 km
Gressvik ungdomsskole (8-10 kl.) 3.5 km
Frederik II videregående skole 1.2 km
WANG Toppidrett Fredrikstad 2.4 km
Informasjon om tilhørende skolekretser er hentet fra Prognosesenteret som dataleverandør, og tilhørigheten kan årlig endres av kommunen. Dersom skole- og barnehagetilbud er av betydning for kjøpet, ber vi om at det rettes en særskilt henvendelse til kommunen/bydelsadministrasjonen for oppdatert informasjon.
Beskrivelse av tomt
Eiertomt på 7 294 kvm som tilhører sameiet. Tomten er fellesareal. Felles tomt for sameiet opparbeidet med asfalterte biloppstillingsplasser og gangveier, brygge, lekeapparater, benker, gressplen og diverse beplantning.
Parkering
Med boligen følger det med 3 parkeringsplasser rett ved heis til leilighet i byggets parkeringsanlegg Hus A. Montert elbillader. Plassene er tinglyst som en ideell andel 18/329 av snr. 112 som utgjør parkering/bod/bryggeplass.
Etter eierseksjonsloven § 26 kan styret, etter krav fra en seksjonseier med nedsatt funksjonsevne, pålegge en annen seksjonseier uten behov for å tilrettelagt plass å bytte parkeringsplass. Dette gjelder kun dersom seksjonseieren med nedsatt funksjonsevne allerede disponerer en parkeringsplass i sameiet.
Vei, vann og avløp
Eiendommen har adkomst via privat vei med felles vedlikeholdsansvar for Sameiet.
Eiendommen er tilknyttet kommunalt ledningsnett via private stikkledninger. Sameiet er ansvarlig for private stikkledninger til bygningen.
Regulerings-og arealplaner
Eiendommen er regulert til flomfare, ras- og skredfare, annet uteoppholdsareal, kombinert bebyggelse og anleggsformål, kjøreveg, gatetun/gågate, flomfare, ras- og skredfare, annet uteoppholdsareal, kombinert bebyggebelse og anleggsformål kjøreveg og gatetun/gågate i henhold til reguleringsplan Mosseveien 63-65 datert 24.03.2011 og RV 110 Simo - Ørebekk datert 18.10.2012 med tilhørende reguleringsbestemmelser.
Eiendommen omfattes også av kommuneplan fredrikstad 2023-2035 datert 15.06.2023 med formål- og henssynssone: ras- og skredfare, flomfare, hensyn naturmiljø, bebyggelse og anlegg, samferdsanlegg og teknisk infrastruktur og friområde.
I Fredrikstad er fire dobbeltsporstrekninger/-prosjekter under planlegging, men planarbeidet ligger i ro på grunn av usikkerhet rundt videre framdrift. Se Bane Nors prosjektsider med mer informasjon.
Eiendommen er plassert i et område som har gjennomgått tidligere miljøundersøkelser hvor det er registrert forurenset grunn på eiendommen da dette tidligere var et skipsverft. Dersom det skal gjøres terrenginngrep, må tiltakshaver gjøre nødvendige undersøkelser ihht forurensningsforskriften kap. 2.
Utsnitt av plan med tilhørende bestemmelser kan fås ved henvendelse til megler.
Økonomi
Økonomi
Boligens kostnader
Fellesutgiftene er kr 8 270,- pr. mnd. og inkluderer: oppvarming og varmtvann, kabel-tv og internett, parkering, båtplass, kommunale avgifter, forretningsfører, drift og vedlikehold, felles bygningsforsikring, mm.
Kostnader for fjernvarme avregnes årlig etter forbruk og ved eierskifte, dette betales som et månedlig á-konto beløp i felleskostnader. Beløpet fastsettes av styret årlig etter avregning. Det er installert målere slik at avgiftene vil variere etter forbruket i leiligheten. Avlesning av forbruk gjøres etter henvendelse fra kommunen. Gebyret betales à konto basert på siste avlesning. Avregning foretas i forbindelse med neste forfall på kommunale avgifter.
Fellesutgiftene fordeles således:
Felleskostnader kr 7 330,-
Parkering kr 375,-
Båtplass kr 450,-
Tv/bredbånd kr 489,-
Fellesutgiftene justeres normalt en til to ganger årlig i forhold til sameiets faktiske utgifter. Det tas forbehold om at felleskostnadene kan justeres fortløpende.
Nåværende eier har ikke oppgitt årlig strømforbruk
Boligen er tilknyttet Viken fiber/Altibox som leverandør av tv/internett og avgift er inkludert i felleskostnader. Tv-tuner/dekoder medfølger
Utgiftene er basert på nåværende eiers forbruk. Kjøper må selv tegne innboforsikring.
Utgiftene er basert på nåværende eiers forbruk. Kjøper må selv tegne innboforsikring.
Formuesverdi
Formuesverdi for 2023 var kr 2 118 575,- ifølge skatteetaten. Beløpet forutsetter at eier bor fast i boligen (primærbolig).
Ved eventuell øvrig bruk av eiendommen (f.eks. fritidsbolig, pendlerbolig, utleieobjekt) var formuesverdien for 2023 kr 8 474 300,-.
Formuesverdien justeres normalt årlig. Se skatteetaten.no for mer informasjon om fastsettelse av formuesverdien.
Eiendomsskatt
Eiendomsskatten utgjør kr. 22 291 ,-pr år.
Omkostninger
16 500 000,00 Prisantydning
Omkostninger
412 500,00 Dokumentavgift til staten (2,5% av kjøpesum)
9 950,00 Gjensidige Boligkjøperpakke (valgfri)
545,00 Tinglysing panterettsdokument
545,00 Tinglysing skjøte
--------------------------------------------------------
423 540,00 Omkostninger totalt
--------------------------------------------------------
16 923 540,00 Totalpris inkl. omkostninger
--------------------------------------------------------
Dersom sameiet har fellesgjeld, vil leilighetens andel av fellesgjelden komme i tillegg til kjøpesummen. Denne gjelden skal ikke innbetales i oppgjøret, men følger leiligheten.
Totalpris inkl. omkostninger forutsetter kjøp til prisantydning.
Det tas forbehold om endringer i avgifter og gebyrer.
Tilbud om lånefinansiering
Megler formidler gjerne kontakt med rådgiver hos vår samarbeidspartner BN Bank. De har konkurransedyktige betingelser samt rask og løsningsorientert behandling av din lånesøknad. Krogsveen mottar et honorar for denne formidlingen.
Betalingsbetingelser
Kjøpesum inkludert omkostninger, samt pantedokument tilknyttet eventuelt lån, skal være disponibelt hos megler 2 virkedager før overtagelsen.
Annen viktig informasjon
Annen viktig informasjon
Eier
Bjørn Viggo Asgeir Nilsen
Informasjon om forkjøpsrett
Eiendommen er seksjonert, og leiligheten er tilknyttet sameie Seut Brygge, med sameiebrøk 172/9829
Sameiet består av 112 leiligheter og 1 næringsseksjon. Næringsseksjonen består av 139 parkeringsplasser, 112 boder (en bod til hver leilighet i sameiet) og 190 løpemeter med bryggeplass langs Seut-elven.
Forretningsfører er OBOS Eiendomsforvaltning AS.
Felles takterrasse
Sameiet har 9 elektriske sykler til utlån i sommersesongen. Det er utarbeidet regler for bruk av syklene, og disse finnes på VIBBO og som oppslag ved syklene
Dugnad må påregnes.
Dyrehold er tillatt.
Det foreligger ingen oversikt over foretatte påkostninger.
Sakset fra årsmøte 2025:
Ekstraordinære arbeidsoppgaver utført i 2024/2025
• Installert video overvåking i inngangspartiene (posthylle samt utvendig postkasse).
• Gjennomført statustelling av Skjeggkre etter rapporter om slike fra enkelte beboere.
• Installert varmepumpe for oppvarming og kjøling i Glasshuset.
• Installert ekstra varsellampe ved garasjenedkjøring.
• Gjennomført impregnering av garasjegulv, inklusive et antall svabere til ‘selvhjelp’.
• Implementert ny avtale med Altibox/Viken Fiber AS med utstyrsskifte.
• Anskaffet møbler for sofagruppe i Glasshuset.
• Registrert en rekke feil og mangler i APEX for fellesområder, bla byttet og utbedret ventilasjon i bodområdene.
• Bistått arbeidet til ‘Garasje gruppen’ og håndtert reklamasjoner mot Entreprenør
• Gjennomført service på våre elsykler.
• Solgt unna kanoer som var svært lite brukt.
• Avklart deponeringsområde for snø med kommunen.
• Det er satt opp nye parkeringsskilt ved gjesteparkeringen i syd og ved nr. 71.
Styret informere i mail:
Det er ingen større planlagte utbedringer eller påkostinger utover normal drift.
Felleskostnader har nå vært urørt i 3 år og det må forventes en mindre økning i 2026. Budsjett for 2026 er ennå ikke ferdigstilt slik at eksakte data ikke er tilgjengelig. Det vises for øvrig til årsmøte avholdt mai 2025. Sameiet har vært under utbyggers 5 års garanti. Det opphører 1. juli 2026. Det vil uvergelig medføre noe høyere driftskostnader.
Vi gjør videre oppmerksom på at det iht. eierseksjonsloven ikke er anledning å erverve mer enn 2 seksjoner i sameiet, her teller også eierskap via. firma, nærstående og familie. Kjøper har risikoen for at overskjøting på denne bakgrunn kan nektes av Statens Kartverk. I så fall vil kjøper uansett være forpliktet til å gjennomføre handelen, og oppgjør til selger vil finne sted tross manglende overskjøting.
Konferer med megler for mer informasjon.
Dokumenter for sameiet og kopi av seksjonsbegjæringen kan fås ved henvendelse til megler.
Overtakelse
Etter nærmere avtale.
Boligselgerforsikring
Det gjøres oppmerksom på at selger ikke har tegnet boligselgerforsikring som dekker selgers ansvar etter avhendingsloven. Likevel foreligger selgers egenerklæring og godkjent tilstandsrapport som interessenter må sette seg inn i før bud inngis. Eventuelle reklamasjoner må rettes direkte til selger.
Boligkjøperforsikring
Innen kontraktsmøtet må kjøper ta stilling til om det ønskes å bestille Boligkjøperpakken gjennom Gjensidige. I denne gunstige pakken er boligen ferdig forsikret og inkluderer rettshjelpsforsikring, også kalt Boligkjøperforsikring. Rettshjelpsforsikring gir trygghet og tilgang på profesjonell juridisk hjelp dersom det oppdages uventede feil eller mangler det første året etter overtagelse. Forsikringsselskapet behandler i så fall ethvert mangelskrav kjøper måtte ha overfor selger.
Boligkjøperpakken inkluderer bygningsforsikring for hus og hytte, innboforsikring, flytteforsikring og dobbel rentedekning - i situasjoner hvor kjøper ikke får solgt nåværende primærbolig.
Kjøper mottar ingen særskilt faktura for Boligkjøperpakken da kostnaden det første året legges til kjøpesummen for boligen. Det gjøres oppmerksom på Krogsveen mottar et honorar for denne formidlingen.
Produktark for Boligkjøperpakken ligger vedlagt i salgsoppgaven.
Dersom ikke boligkjøperpakke ønskes kan kun rettshjelpsforsikring, også kalt boligkjøperforsikring, tegnes særskilt via megler. Rettshjelpsforsikringen varer i 5 år fra overtagelse og leveres gjennom Gjensidige. Ta kontakt med megler for ytterligere informasjon.
Selskap og privatpersoner som driver med kjøp/salg/utvikling som ledd i egen næringsvirksomhet kan ikke tegne boligkjøperpakke eller rettshjelpsforsikring.
Budgivning
Forbrukerinformasjon om budgivning er vedlagt denne salgsoppgaven og er også på vår hjemmeside Krogsveen.no. Alle bud og budforhøyelser må inngis skriftlig. I tillegg må legitimasjon være fremlagt sammen med signatur fra budgiver.
Vi oppfordrer til å gi bud elektronisk via GI BUD-knappen på eiendommens hjemmeside på Krogsveen.no. Da vil samtlige vilkår bli oppfylt.
Eventuelle forhøyelser eller endringer av budet kan bekreftes pr SMS eller på e-post. Vi oppfordrer alltid til å kontakte megler pr. telefon i tillegg da forsinkelser i SMS og e-post kan forekomme.
For at budene skal kunne bli behandlet og videreformidlet skriftlig til alle involverte parter, må alle bud ha en tilstrekkelig lang akseptfrist, jf. eiendomsmeglingsforskriften § 6-3.
Selger må også skriftlig akseptere budet før aksept kan formidles til budgiver. Akseptfrist bør derfor være på minimum 30 minutter, og budforhøyelser må derfor skje i god tid før fristens utløp.
Bud i forbrukerforhold kan uansett ikke settes med kortere frist enn kl. 12.00 første virkedag etter siste annonserte visning. I tillegg kan ikke budet ha forbehold om at det skal holdes hemmelig ovenfor øvrige interessenter. Megler har iht lov om eiendomsmegling ikke anledning til å videreformidle disse budene, og de vil dermed heller ikke bli journalført.
Etter at eiendommen er solgt vil kjøper og selger få tilsendt budjournal. Øvrige budgivere kan få utlevert kopi av budjournalen i anonymisert form.
Hvitvaskingsreglene
I henhold til lov om hvitvasking og terrorfinansiering har megler plikt til å gjennomføre kontrolltiltak overfor kunder, herunder fullmektiger. Dette innebærer bl.a. å bekrefte kunders og reelle rettighetshaveres identitet på bakgrunn av fremvist gyldig legitimasjon eller på annen godkjent måte, samt å innhente opplysninger om kundeforholdets formål og tilsiktede art.
Dersom slike kundetiltak ikke kan gjennomføres, kan megler ikke etablere kundeforholdet eller utføre transaksjonen.
Hvis kjøper ikke bidrar til gjennomføring av kundekontrollen og dette fører til at transaksjonen blir forsinket eller ikke kan gjennomføres, vil dette ansees som mislighold av avtalen og gi selger rettigheter etter avhendingslova kapittel 5. I tilfeller der selger ikke bidrar til gjennomføring av løpende kundekontroll underveis i oppdraget, er det selger som misligholder sine forpliktelser etter avtalen og gi kjøper rettigheter etter avhendingslovens kapittel 4. Partene er selv ansvarlige for eventuelle kostnader og ansvar dette kan medføre. Eiendomsmegleren eller eiendomsmeglingsforetaket kan ikke holdes ansvarlig for de konsekvenser dette vil kunne få for partene eller andre som har interesser i eiendomshandelen.
Kjøper oppfordres til å innbetale kjøpesummen som ikke kommer fra låneinstitusjon i én samlet innbetaling fra egen konto i norsk bank. Megler har plikt til å melde fra til Økokrim om eiendomshandler som fremstår som mistenkelige. Melding sendes Økokrim uten at partene varsles.
Personopplysningsloven
I henhold til personopplysningsloven gjør vi oppmerksom på at interessenter kan bli registrert for videre oppfølging.
Lovanvendelse
Generelle bestemmelser
Salgsoppgaven er basert på de opplysningene selger har gitt til megler, den bygningssakyndiges tilstandsrapport, samt opplysninger innhentet fra kommunen, Kartverket og andre tilgjengelige kilder. Det er viktig at kjøper setter seg grundig inn i alle salgsdokumentene, herunder salgsoppgave, tilstandsrapport og selgers egenerklæring. Kjøper anses kjent med forhold som er tydelig beskrevet i salgsdokumentene, og slike forhold kan ikke påberopes som mangler. Dette gjelder uavhengig av om kjøper har lest dokumentene. Alle interessenter oppfordres til å undersøke eiendommen nøye, gjerne sammen med fagkyndig før bud inngis. Kjøper som velger å kjøpe usett kan ikke gjøre gjeldende som mangel noe han burde blitt kjent med ved undersøkelsen.
Dersom det er behov for avklaringer, anbefaler vi at interessenter rådfører seg med eiendomsmegler eller egne rådgivere før det legges inn bud.
En bolig som har blitt brukt i en viss tid, har vanligvis blitt utsatt for slitasje og skader kan ha oppstått. Slik bruksslitasje må kjøper regne med, og det kan avdekkes enkelte forhold etter overtakelse som nødvendiggjør utbedringer. Normal slitasje og skader som nødvendiggjør utbedring, er innenfor hva kjøper må forvente og vil ikke utgjøre en mangel.
Kjøper og selgers rettigheter og plikter reguleres av avtalen mellom partene, samt informasjonen som har vært tilgjengelig for kjøperen i forbindelse med handelen. Avtalen utfylles av avhendingsloven, og det gjelder ulike avtalevilkår avhengig av om kjøper er forbrukerkjøper eller ikke. Dette er nærmere beskrevet nedenfor.
På grunn av ulike avtalevilkår kan selger vurdere bud fra en som ikke er forbruker, ulikt fra en forbrukers bud. Dersom kjøper ikke er forbruker, er selger sitt mulige mangelsansvar begrenset fordi eiendommen selges "som den er". Selger kan ikke ta «som den er»- forbehold overfor en forbrukerkjøper. Selv et lavere bud fra en som ikke er forbruker kan foretrekkes fordi begrensningen i mulig mangelsansvar kan ha egenverdi for selger. Selger står fritt til å forkaste eller akseptere ethvert bud, og er for eksempel ikke forpliktet til å akseptere høyeste bud.
Budgiver skal i budskjema avgi egenerklæring om budgiver er forbruker eller næringsdrivende/ person som hovedsakelig handler som ledd i næringsvirksomhet. Budgivere får informasjon dersom andre bud er inngitt av en som ikke er forbruker.
Forbrukerkjøp - definisjon
Med forbrukerkjøp menes kjøp av eiendom når kjøperen er en fysisk person som ikke hovedsakelig handler som ledd i næringsvirksomhet.
Forbruker – avtalevilkår
Eiendommen har en mangel dersom den ikke er i samsvar med kravene som følger av avtalen, eller det foreligger brudd på bestemmelsene i avhendingsloven §§ 3-2 til 3-8. Hvis eiendommen ikke er i samsvar med det kjøperen må kunne forvente ut ifra alder, type og synlig tilstand, kan det være grunnlag for mangelskrav. Det samme gjelder hvis det er holdt tilbake eller gitt uriktige opplysninger om eiendommen. Dette gjelder likevel bare dersom man kan gå ut ifra at det virket inn på avtalen at opplysningen ikke ble gitt eller at mangelskravet ikke blir rettet i tide på en tydelig måte.
Boligen kan ha en mangel etter avhendingsloven § 3-3 andre ledd, dersom det er avvik mellom opplyst og faktisk innvendig areal, forutsatt at avviket er på 2% eller mer og minimum 1 kvm.
Ved beregning av et eventuelt prisavslag eller erstatning må kjøper selv dekke tap/kostnader opptil et beløp på kr 10 000 (egenandel).
Ikke-forbruker (næringsdrivende) – definisjon
Hvis kjøper er en juridisk person, eller en fysisk person som hovedsakelig handler som ledd i næringsvirksomhet, vil kjøpet ikke anses som et forbrukerkjøp.
Ikke-forbruker – avtalevilkår
Eiendommen har en mangel dersom den ikke er i samsvar med kravene som følger av avtalen.
Eiendommen selges «som den er», og selgers ansvar utover det konkret avtalte er da begrenset etter avhendingsloven § 3-9, første ledd andre setning.
Avhendingsloven § 3-3 andre ledd fravikes, og hvorvidt boligens arealsvikt utgjør en mangel vurderes etter avhendingsloven § 3-8.
Informasjon om kjøpers undersøkelsesplikt, herunder oppfordringen om å undersøke eiendommen nøye, gjelder også for kjøpere som ikke anses som forbrukere.
Det forutsettes at hjemmel overføres til kjøper. Hvis kjøper ikke ønsker hjemmelsoverføring av eiendommen, må det tas forbehold om dette i budet.
Meglers vederlag
Meglers vederlag betales av selger og er avtalt til:
Vederlag: 1,00 % av salgssummen inkl. eventuell fellesgjeld.
Vederlag
Kontroll av hjemmel og heftelser kr 2 900,00
Markedsføringspakke kr 27 400,00
Oppgjør kr 7 500,00
Tilrettelegging (inkl. visninger, tekstforfatter og overtagelse) kr 19 000,00
Utlegg
Eierskiftegebyr forretningsfører kr 6 570,00
Innhenting av informasjon forretningsfører kr 4 758,00
Innhenting av offentlig opplysninger Fredrikstad - inkl tegning kr 4 477,00
Tinglysing sikring kr 545,00
Andre utgifter
Boligselgerforsikring Gjensidige Seksjoner kr 40 000,00
Foto PBF - full pakke (dag/kveld/drone/interiørveiledning) kr 11 900,00
Rapport fra takstmann - leilighet kr 11 000,00
Opplysninger om oppdraget
Oppdragsnummer 67-0250/25
Eiendomsmegler Krogsveen AS, avd. Fredrikstad og Sarpsborg
Dikeveien 14, 1661, ROLVSØY
950 007 613
Oppdragets KR-kode KR67.25250
Dato
Sist oppdatert: 20. februar 2026 kl. 14:34
Dokumenter
Dokumenter
PDF – 939 KB
PDF – 1 MB
PDF – 688 KB
PDF – 2 MB
PDF – 312 KB
PDF – 29 KB
PDF – 127 KB
PDF – 392 KB
Område
Legg til steder som er viktige for deg
Visning
Det er ingen planlagte visninger. Meld deg på for å avtale en tid som passer.
Lurer du på noe?
Unngå doble boligrenter
Vi tilbyr gunstig forsikring.
Vurderer du utleie?
Få et tilbud fra Utleie KrogsveenHva koster lånet?
Sjekk estimert lånekostnadVil du varsles om lignende boliger?
Ved å lagre ditt boligsøk hos oss får du beskjed når vi har en bolig som ligner denne, før den legges ut på markedet!

