Jektvikveien 34
4 490 000 kr
121 m²
3 soverom
Komplett salgsoppgave

Ansnes/Hitra
Innholdsrik enebolig beliggende i idylliske omgivelser | Vinterhage | Fantastisk utsikt | 3 mål | Naust med flytebrygge
Prisantydning
4 490 000 krOmkostninger
133 240 krTotalpris
4 623 240 kr
Pris
Bruksareal
247 m²BRA-I (internt bruksareal)
121 m²BRA-E (eksternt bruksareal)
102 m²TBA (terrasse-balkongareal)
47 m²
Areal
Etasje
2Byggeår
1984Soverom
3 soveromBad
1 badTomteareal
3 002 m² (eiet)Type
Enebolig - FrittliggendeEierform
EietFasiliteter
Garasje/P-plass og Balkong/TerrasseEnergimerke
Gul F
Nøkkelinfo
Unngå doble boligrenter
Vi tilbyr gunstig forsikring.
Vurderer du utleie?
Få et tilbud fra Utleie KrogsveenHva koster lånet?
Sjekk estimert lånekostnadBeskrivelse
Kort om eiendommen
Innhold og byggemåte
Innhold og byggemåte
Eiendommen
Jektvikveien 34, 7241 ANSNES
Kommunenummer 5056, gårdsnummer 87, bruksnummer 146, ideell andel 1/1
Kommunenummer 5056, gårdsnummer 87, bruksnummer 214, ideell andel 1/3
Innhold
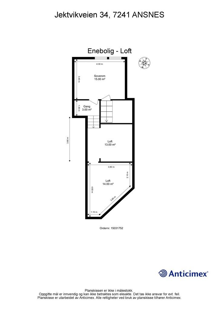
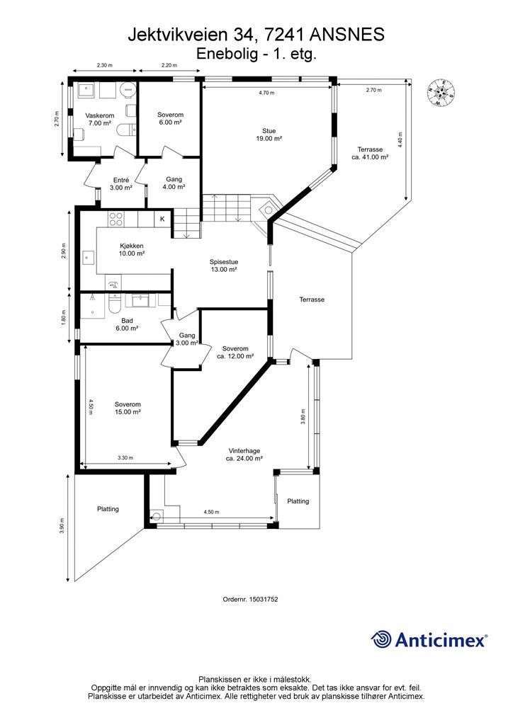
Totalt bruksareal BRA: 247 kvm
BRA-i:
Enebolig:
1. etasje 105 kvm: Stue, kjøkken, gang, entrè, bad, vaskerom og 3 soverom
2. etasje 16 kvm: Kontor og gang
BRA-e:
Anneks:
1. etasje 21 kvm:
Garasje:
1. etasje 61 kvm:
Utvendig boder:
1. etasje 12 kvm:
1. etasje 8 kvm:
BRA-b:
Enebolig:
1. etasje 24 kvm: Vinterhage
Åpent areal:
Enebolig:
1. etasje 47 kvm: Terrasser
Loftsetasjen har et totalt gulvareal (GUA) på 50 m2, men grunnet skråtak/lav takhøyde er kun 16 m2 av arealet måleverdig som bruksareal. De delene av arealene som har lav himlingshøyde (ALH) utgjør 34 m2.
Utvendig bod har et totalt gulvareal (GUA) på 13 m2, men grunnet skråtak/lav takhøyde er kun 8 m2 av arealet måleverdig som bruksareal. De delene av arealene som har lav himlingshøyde (ALH) utgjør 5 m2.
Ifølge huseier er naust et sameie med to naboer. Naust er oppmålt til 46 m2, men er ikke medregnet i boligens samlede BRA i denne rapporten.
Vedlagte plantegninger er ikke målbare. De oppgitte arealer er hentet fra rapport med befaringsdato 29.04.2025 utført av Anticimex AS. Arealene er beregnet og rom er definert etter dagens faktiske bruk, uavhengig av hva som er godkjent av bygningsmyndighetene.
Byggemåte
Selger har fått utarbeidet en tilstandsrapport, dvs. en teknisk gjennomgang av boligen hvor eventuelle avvik, risiko for kjøper og prisoverslag for hva som bør gjøres av oppgradering, er skissert. Se særskilt TGIU (tilstandsgrad ikke undersøkt), samt TG2 og TG3 som viser hva som er boligens normale slitasje, alder og type, hva som er avvik fra dette og hva som bør/må utbedres. Rapporten og selgers egenerklæring er en del av salgsoppgaven og må leses nøye før bud inngis. Kjøper overtar ansvaret for de opplysninger som fremkommer av salgsdokumentasjonen, og kan ikke gjøre gjeldende som mangel noe som burde vært kjent eller som ikke kan anses å ha betydning for avtalen.
Bygningen er iht. tilstandsrapporten oppført med grunnmur i betong. Fundamentert på ukjent byggegrunn. Bygget er oppført med støpt gulv mot grunn. Yttervegger av trekonstruksjoner. Fasaden er kledd med liggende trekledning. Etasjeskillere av trekonstruksjoner. Saltak i trekonstruksjoner (ikke besiktiget). Yttertak er utvendig tekket med takstein. Les forøvrig mer om byggemåte og den tekniske tilstanden i rapporten.
Oppsummering tilstandsgrad 2 i tilstandsrapporten, datert 29.04.2025:
- Baderomsplater på badet er ikke montert iht. anvisning. Membran/slukmansjett er ikke klemt med klemring. Vannrør på badet pga. alder.
- Vaskerom etter en helhetsvurdering pga. alder og avvik fra gjeldende forskrifter.
- Vannrør på kjøkken pga. at det ikke er montert automatisk lekkasjestopper.
- Overflater gulv på øvrige rom pga. stedvis riper og skader. Det mangler gulvlist i deler av boligen. Det er stedvis knirk i gulvet.
- Innvendige trapper pga. at trappen ikke har håndløper på begge sider. Inntrinn er mindre enn 0,25 meter.
- Ytterkledning/Fasade pga. stedvis slitt overflatebehandling og stedvis malingsbobler. Det er ikke montert musesperre bak trekledning. Panel på vegger er i ettertid av befaring skiftet ut, dette er ikke kontrollert, men bilder er framlagt til bygningssakyndig.
- Vinduer pga. at enkelte vinduer bærer preg av slitasje og elde.
- Yttertak etter en helhetsvurdering. Symptomer på slitasje og elde er registrert.
- Drenering etter en helhetsvurdering. Nedløpsrør drenerer ikke takvannet tilstrekkelig vekk fra grunnmuren.
- Forstøtningsmurer pga. sprekker og tegn til skjevsetninger på forstøtningsmur ved garasje.
- Utebod på ca. 8 kvm etter en helhetsvurdering. Kledning har slitt overflatebehandling. Stedvis riss/sprekk i grunnmur er observert.
- Utebod på ca. 12 kvm etter en helhetsvurdering. Kledningen har slitt overflatebehandling. Symptomer på slitasje, elde og nedsatt funksjon i taktekkingen er registrert.
- Anneks etter en helhetsvurdering. Kledningen har slitt overflatebehandling. Usikker restlevetid.
- Dobbelgarasje etter en helhetsvurdering. Slitt overflatebehandling. Stedvis råteskader på kledningen er observert.
Moderniseringer og påkostninger
Boligen er påkostet i følge selger:
- Skiftet sikringsskap i 2017, samt lagt ny kurs til kjøkken og bad.
- Nytt sikringsskap og komfyrvakt Desember 2017.
- Revet og pusset opp baderom i 2017/2018.
- Skiftet vinduer, bordkledning og platting på framside mot sjøen sommeren 2019.
- Skiftet dekke, landgang og flytebrygge nede ved naust i 2019.
- Pusset opp 3/4 soverom gjennom perioden, det siste i 2021.
- Skiftet vindu på soverom nordside 2022.
- Nytt sikringsskap i anneks samt elbillader og spotter på bad, Desember 2024.
- Skiftet 1 stk. vindu (soverom nede) samt bordkledning på østside 2025.
- Skifte av bordkledning er under arbeid.
- Ellers diverse maling innendørs.
Løsøre og tilbehør
Vi viser til liste fra Norges Eiendomsmeglerforbund som gjelder fra 01.01.2020 angående løsøre og tilbehør.
Oppvarming
Varmepumpe samt peisovn i stue. Elektrisk oppvarming.
Ferdigattest/brukstillatelse
Eiendommen har vært brukt til boligformål siden 1984. Kommunen opplyser at det ikke foreligger ferdigattest eller midlertidig brukstillatelse for eiendommen. Det finnes av den grunn ikke dokumentasjon over eiendommens lovlighet.
Det foreligger derimot:
- Godkjent søknad for oppføring av enebolig, uthus og garasje datert 23.08.1983.
- Opprinnelige tegninger for enebolig, uthus og garasje datert 27.07.1982.
- Opprinnelige tegninger for påbygg til garasje datert 29.04.1987.
- Opprinnelig tegninger for uthus datert mars 1988.
Dagens plantegninger avviker fra opprinnelige tegninger:
- Soverommet på 6 kvm er opprinnelig byggemeldt som disponibelt rom, men er ettergodkjent av kommunen som soverom.
- Det foreligger ikke opprinnelige tegninger for boligens andre etasje, og det er derfor uvisst om soverommet er godkjent for varig opphold.
- Det foreligger ikke opprinnelige tegninger for uthuset lengst nord, og det er derfor uvisst om uthuset er godkjent.
Innredning av rommene til bruk for varig opphold er ikke bruksendret/omsøkt og er heller ikke godkjent for denne bruk av kommunen. Konsekvensen ved søknad kan være at rommene ikke godkjennes som varig opphold og at rommene da må brukes som bod/midlertidig oppbevaring. Kjøper overtar alt ansvar, kostnad og risiko for dette videre.
To av uthusene samt garasjen ligger noe utenfor tomtegrensen. Kjøper overtar alt ansvar, eventuell kostnad og risiko forbundet med dette.
Det gjøres oppmerksom at det ikke lenger utstedes ferdigattest på tiltak det er søkt om før 1998 jf. plan- og bygningsloven § 21-10. Kommunen vil ikke kreve ferdigattest for disse tiltakene og vil avvise eventuelle søknader. Bestemmelsen innebærer ikke at tiltak med manglende søknad blir lovlige, men at man ikke trenger å avslutte gamle byggesaker. Normalt sett kreves ferdigattest for alle søknadspliktige tiltak som gjøres etter plan- og bygningsloven.
Kjøper overtar eiendommen slik den fremstår på visning med risiko og ansvaret for eventuelle pålegg fra kommunen og kostnader forbundet med dette.
Tinglyste heftelser og rettigheter
Eiendommen overdras fri for pengeheftelser.
Eiendommen har andel i realsameie:
- Knr: 5056 Gnr: 87 Bnr: 146 Ideell andel: 1/3: Nausttomt.
Det er tinglyst 1 servitutt på eiendommen som antas å ha betydning for kjøpers bruk:
- Dagboknr. 875, tinglyst 11.02.1983, type heftelse: Bestemmelse om gjerde. Inngjerding av eiendommen påhviler kjøperen.
Servitutten vil følge eiendommen. Kjøpers bank vil få pant etter ovennevnte heftelser og servitutter.
Eiendommen har tinglyst rett til å legge, ha liggende og vedlikeholde/utbedre vann- og kloakklesninger over gnr. 87, bnr. 6. I tillegg har eiendommen rett til å sette kloakkavløp i steinsatt grøft på hovedeiendommen.
Eventuell adgang til utleie
Eiendommen har ikke separat utleieenhet. Det vil normalt være anledning til utleie av hele eiendommen eller enkeltrom, såfremt utleiearealet er bygningsmessig godkjent for varig opphold og har forsvarlige radonnivåer.
Diverse
Tilbud av produkter og tjenester fra våre samarbeidspartnere. Vi er opptatt av verdiskapning, og har knyttet til oss samarbeidspartnere som skal sikre våre kunder de beste produkter og tjenester:
- Gjensidige leverer boligselgerforsikring og tilbyr bygningsforsikring.
- Boligkjøperforsikring levers av Hiscox og med Sedgwick som skadebehandler, og er formidlet gjennom Gjensidige.
- BN bank tilbyr finansieringsløsninger.
- Vår avdeling Krogsveen Pluss tilbyr flyttetjenester som utvask, visningsvask, lager, tømming og transport av flyttelass, i tillegg til å formidle kontakt med Flip for overflateoppussing.
- I forbindelse med overtagelse av eiendommen tilbyr Overo avtale om strøm, alarm og bredbånd.
- Krogsveen er, sammen med øvrige bransjeaktører, medeier i den digitale annonseringsplattformen Hjem.
Selger opplyser om følgende:
- Det er et gammelt hus uten musebånd, men nåværende eier har ikke hatt store plager med mus. Det har blitt fanget 3-4 stk mus i løpet av de 6 siste årene. Selger opplyser at det ble påbegynt montering av musebånd påsken 2025.
- Huset skiftet farge fra rød til grå sommeren 2019. Nåværende eier sliter med at maling ikke sitter der det ikke ble skiftet bordkledning. Selger skrapte veggen på nordsiden av huset i april/mai 2023. Prøvde så å male opp igjen, ser dessverre fortsatt at malingen slipper/bobler noen plasser.
- Vindu på soverom ved siden av bad ble skiftet i fjor.
Beliggenhet og tomteforhold
Beliggenhet og tomteforhold
Beliggenhet
Boligen har en fantastisk beliggenhet i Hitra kommune. Man har kort avstand fra kystlinjen med utsikt ut over Krabbsundet! Her kan du nyte roen med umiddelbar nærhet til alt naturen har å tilby, ca. 2 timer med bil fra Trondheim sentrum.
Ansnes har blant annet et yrende båtliv. Her er det særs gode mulighet for fiske, vannsport, padling og en rekke andre sommeraktiviteter. Med båt er det kort vei til mange av de vakre holmene i den vakre skjærgården. Det arrangeres årlig festivaler, sommershow, konserter og utstillinger, både på Ansnes og Knarrlagsund, som du når kun 8 minutter med bil unna. Brygga i Knarrlagsund og Ansnes kan ellers by på særdeles hyggelige spisesteder med god mat basert på tradisjonelle oppskrifter.
Av dagligvarebutikker ligger Joker Knarrlagsund ca. 10 minutter unna med bil, og på Hjorten Kjøpesenter finner du Coop Extra Hitra ca. 10 minutter unna med bil. Her har du flere servicefasiliteter som blant annet Vinmonopolet, Vitus Apotek, Hjorten frisør og Cubus. I området ligger også Rema 1000 Hitra, Europris Hitra, Bygger'n Hitra, Bowlinghall Hitra og Trimfit.
Hitra er den største øya i Sør-Norge, og er forbundet med fastlandet via en undersjøisk tunnel. Her vil du oppleve en svært vakker og varierende natur, med nær tilknytning til havet. Øya har en lang kystlinje, fjorder, holmer, innsjøer, elver, fjell og skog som gir gode muligheter for naturopplevelser hele året. Øya har mye å tilby for de som ønsker å bo i et vakkert og trygt miljø, med gode muligheter for friluftsliv og arbeid.
Adkomst
Følg E6 mot Oslo deretter E39 mot Ålesund/Orkanger. Ta til høyre og følg Fv714/Snillfjordsveien, så Fv714/Knarrlagsundveien. Sving så til venstre og inn på Jektvikveien. Nummer 34 ligger på din venstre side.
Det vil bli godt skiltet av Eiendomsmegler Krogsveen på visningsdagen.
Barnehager, skoler og fritid
Skoler
Hitra ungdomsskole/Fillan sentralskole (1-109 kml.)in
281 elever, 14 klasser 8.1 km
Guri Kunna vgs Hitra 9 min
180 elever 8.1 km
Guri Kunna vgs. (Sistranda) 31 min
160 elever 29.4 km
Barnehager
Fillan barnehage (0-5 år) 9 min
64 barn, 3 avdelinger 8.1 km
Knarrlagsund oppvekstsenter barneha... 10 min
18 barn, 1 avdeling 8.1 km
Dolmøy og Melandsjø bhg.- Melandsjø... 24 min
27 barn, 2 avdelinger 22.2 km
Offentlig transport
Kystmuseet 8 min
Linje 420, 422 7.4 km
Dagligvare
Coop Extra Hitra 10 min
Joker Knarrlagsund 10 min
Sport
Ansnes balløkke 2.4 km
Knarrlagsund 10 min
Informasjon om tilhørende skolekretser er hentet fra Prognosesenteret som dataleverandør, og tilhørigheten kan årlig endres av kommunen. Dersom skole- og barnehagetilbud er av betydning for kjøpet, ber vi om at det rettes en særskilt henvendelse til kommunen/bydelsadministrasjonen for oppdatert informasjon.
Beskrivelse av tomt
Tomt på 3.002,4 kvm opparbeidet med gruslagte veier, diverse beplantninger, plenareal, biloppstillingsplass og sittegrupper. Frittstående dobbel garasje, naust og anneks.
Nausttomten på ca. 150 kvm eies i realsameie fordelt på tre eiendommer, med eierandel på 1/3 hver.
Parkering
Det er oppført en dobbel garasje i tillegg til flere biloppstillingsplasser på tomten.
Vei, vann og avløp
Eiendommen har adkomst via privat vei med felles vedlikeholdsansvar.
Eiendommen er tilknyttet kommunalt vann og privat slam via private stikkledninger. Eier er selv ansvarlig for private stikkledninger til boligen.
Regulerings-og arealplaner
Eiendommen er regulert til småhusbebyggelse og naust i henhold til reguleringsplan for eiendommen Myren datert 21.01.2005 med tilhørende reguleringsbestemmelser.
Reguleringsplan legger opp til utvikling av naustområdet med blant annet parkeringsplasser, bolig/kontor/utleie, utleiebrygge og småbåthavn, samt påbygg på nabonaust. I tillegg er det regulert til småhusbebyggelse rundt eiendommen, noe som kan ha innvirkning for eiendommen.
Utsnitt av plan med tilhørende bestemmelser kan fås ved henvendelse til megler.
Økonomi
Økonomi
Kommunale utgifter
Fakturerte kommunale avgifter for 2022 er kr 5.049,-. I dette inngår gebyr for vann og feiing.
Årlige kostnader for renovasjon og slam utgjør kr 6.468,75,- + eventuelle kommunale påslag.
Nåværende eier har et strømforbruk som tilsvarer ca. kr 12.000,- per år / 15.000 kwh. per år. Årlig nettleie utgjør ca. kr 4.800,-.
Boligen har en årlig forsikringspremie på kr 8.000,-.
Boligen er tilknyttet Sodvind som leverandør av internett (fiber) og har avgift på kr 438,- per mnd.
Boligen er tilknyttet Verisure alarmselskap som koster kr 8.280,- per år. Abonnement medfølger.
Utgiftene er basert på nåværende eiers forbruk og avtaler.
Formuesverdi
Formuesverdi for 2021 var kr 464.163,- ifølge skatteetaten. Beløpet forutsetter at eier bor fast i boligen (primærbolig).
Ved eventuell øvrig bruk av eiendommen (f.eks. fritidsbolig, pendlerbolig, utleieobjekt) vil formuesverdien for 2021 bli kr 1.670.986,-.
Formuesverdien justeres normalt årlig. Se skatteetaten.no for mer informasjon om fastsettelse av formuesverdien.
Omkostninger
4 490 000,00 Prisantydning
Omkostninger
112 250,00 Dokumentavgift til staten (2,5% av kjøpesum)
545,00 Tinglysing panterettsdokument
545,00 Tinglysing skjøte
19 900,00 Tryg Boligkjøperpakke (valgfri)
--------------------------------------------------------
133 240,00 Omkostninger totalt
--------------------------------------------------------
4 623 240,00 Totalpris inkl. omkostninger
--------------------------------------------------------
Betalingsbetingelser
Kjøpesum inkludert omkostninger, samt pantedokument tilknyttet eventuelt lån, skal være disponibelt hos megler 2 virkedager før overtagelsen.
Annen viktig informasjon
Annen viktig informasjon
Eier
Tobias Grønning
Konsesjon
Da eiendommen er over 2 mål er den i utgangspunktet underlagt konsesjonslovgivning, og kjøper må ved kontrakt undertegne egenerklæring om konsesjonsfrihet. Denne erklæringen må godkjennes fra kommunen før eiendommen kan overskjøtes til kjøper.
Overtakelse
Etter nærmere avtale.
Boligselgerforsikring
Selger har i forbindelse med salget tegnet boligselgerforsikring levert av Gjensidige.
Boligselgerforsikringen dekker selgers ansvar etter avhendingsloven begrenset oppad til kr 14 millioner. Dersom kjøper oppdager forhold ved eiendommen som hen mener utgjør en mangel ved eiendommen, vil Gjensidige behandle reklamasjonen på vegne av selger. Forsikringsvilkår kan fås ved henvendelse til megler.
Vedlagt salgsoppgaven følger selgers egenerklæringsskjema og tilstandsrapport. Interessenter må sette seg inn i dokumentene før bud inngis.
Boligkjøperforsikring
Innen kontraktsmøtet må kjøper ta stilling til om det ønskes å bestille Boligkjøperpakken gjennom Gjensidige. I denne gunstige pakken er boligen ferdig forsikret og inkluderer rettshjelpsforsikring, også kalt Boligkjøperforsikring. Rettshjelpsforsikring gir trygghet og tilgang på profesjonell juridisk hjelp dersom det oppdages uventede feil eller mangler det første året etter overtagelse. Forsikringsselskapet behandler i så fall ethvert mangelskrav kjøper måtte ha overfor selger.
Boligkjøperpakken inkluderer bygningsforsikring for hus og hytte, innboforsikring, flytteforsikring og dobbel rentedekning - i situasjoner hvor kjøper ikke får solgt nåværende primærbolig.
Kjøper mottar ingen særskilt faktura for Boligkjøperpakken da kostnaden det første året legges til kjøpesummen for boligen. Det gjøres oppmerksom på Krogsveen mottar et honorar for denne formidlingen.
Produktark for Boligkjøperpakken ligger vedlagt i salgsoppgaven.
Dersom ikke boligkjøperpakke ønskes kan kun rettshjelpsforsikring, også kalt boligkjøperforsikring, tegnes særskilt via megler. Rettshjelpsforsikringen varer i 5 år fra overtagelse og leveres gjennom Gjensidige. Ta kontakt med megler for ytterligere informasjon.
Selskap og privatpersoner som driver med kjøp/salg/utvikling som ledd i egen næringsvirksomhet kan ikke tegne boligkjøperpakke eller rettshjelpsforsikring.
Budgivning
Forbrukerinformasjon om budgivning er vedlagt denne salgsoppgaven og er også på vår hjemmeside Krogsveen.no. Alle bud og budforhøyelser må inngis skriftlig. I tillegg må legitimasjon være fremlagt sammen med signatur fra budgiver.
Vi oppfordrer til å gi bud elektronisk via GI BUD-knappen på eiendommens hjemmeside på Krogsveen.no. Da vil samtlige vilkår bli oppfylt. Eventuelle forhøyelser eller endringer av budet kan bekreftes pr SMS eller på e-post. Vi oppfordrer alltid til å kontakte megler pr. telefon i tillegg da forsinkelser i SMS og e-post kan forekomme.
For at budene skal kunne bli behandlet og videreformidlet skriftlig til alle involverte parter, må alle bud ha en tilstrekkelig lang akseptfrist, jf. eiendomsmeglingsforskriften § 6-3.
Selger må også skriftlig akseptere budet før aksept kan formidles til budgiver. Akseptfrist bør derfor være på minimum 30 minutter, og budforhøyelser må derfor skje i god tid før fristens utløp.
Bud i forbrukerforhold kan uansett ikke settes med kortere frist enn kl. 12.00 første virkedag etter siste annonserte visning. I tillegg kan ikke budet ha forbehold om at det skal holdes hemmelig ovenfor øvrige interessenter. Megler har iht lov om eiendomsmegling ikke anledning til å videreformidle disse budene, og de vil dermed heller ikke bli journalført.
Etter at eiendommen er solgt vil kjøper og selger få tilsendt budjournal. Øvrige budgivere kan få utlevert kopi av budjournalen i anonymisert form.
Hvitvaskingsreglene
I henhold til lov om hvitvasking og terrorfinansiering har megler plikt til å gjennomføre kontrolltiltak overfor kunder, herunder fullmektiger. Dette innebærer bl.a. å bekrefte kunders og reelle rettighetshaveres identitet på bakgrunn av fremvist gyldig legitimasjon eller på annen godkjent måte, samt å innhente opplysninger om kundeforholdets formål og tilsiktede art.
Dersom slike kundetiltak ikke kan gjennomføres, kan megler ikke etablere kundeforholdet eller utføre transaksjonen.
Hvis kjøper ikke bidrar til gjennomføring av kundekontrollen og dette fører til at transaksjonen blir forsinket eller ikke kan gjennomføres, vil dette ansees som mislighold av avtalen og gi selger rettigheter etter avhendingslova kapittel 5. I tilfeller der selger ikke bidrar til gjennomføring av løpende kundekontroll underveis i oppdraget, er det selger som misligholder sine forpliktelser etter avtalen og gi kjøper rettigheter etter avhendingslovens kapittel 4. Partene er selv ansvarlige for eventuelle kostnader og ansvar dette kan medføre. Eiendomsmegleren eller eiendomsmeglingsforetaket kan ikke holdes ansvarlig for de konsekvenser dette vil kunne få for partene eller andre som har interesser i eiendomshandelen.
Kjøper oppfordres til å innbetale kjøpesummen som ikke kommer fra låneinstitusjon i én samlet innbetaling fra egen konto i norsk bank. Megler har plikt til å melde fra til Økokrim om eiendomshandler som fremstår som mistenkelige. Melding sendes Økokrim uten at partene varsles.
Personopplysningsloven
I henhold til personopplysningsloven gjør vi oppmerksom på at interessenter kan bli registrert for videre oppfølging.
Lovanvendelse
Generelle bestemmelser
Salgsoppgaven er basert på de opplysningene selger har gitt til megler, den bygningssakyndiges tilstandsrapport, samt opplysninger innhentet fra kommunen, Kartverket og andre tilgjengelige kilder. Det er viktig at kjøper setter seg grundig inn i alle salgsdokumentene, herunder salgsoppgave, tilstandsrapport og selgers egenerklæring. Kjøper anses kjent med forhold som er tydelig beskrevet i salgsdokumentene, og slike forhold kan ikke påberopes som mangler. Dette gjelder uavhengig av om kjøper har lest dokumentene. Alle interessenter oppfordres til å undersøke eiendommen nøye, gjerne sammen med fagkyndig før bud inngis. Kjøper som velger å kjøpe usett kan ikke gjøre gjeldende som mangel noe han burde blitt kjent med ved undersøkelsen.
Dersom det er behov for avklaringer, anbefaler vi at interessenter rådfører seg med eiendomsmegler eller egne rådgivere før det legges inn bud.
En bolig som har blitt brukt i en viss tid, har vanligvis blitt utsatt for slitasje og skader kan ha oppstått. Slik bruksslitasje må kjøper regne med, og det kan avdekkes enkelte forhold etter overtakelse som nødvendiggjør utbedringer. Normal slitasje og skader som nødvendiggjør utbedring, er innenfor hva kjøper må forvente og vil ikke utgjøre en mangel.
Kjøper og selgers rettigheter og plikter reguleres av avtalen mellom partene, samt informasjonen som har vært tilgjengelig for kjøperen i forbindelse med handelen. Avtalen utfylles av avhendingsloven, og det gjelder ulike avtalevilkår avhengig av om kjøper er forbrukerkjøper eller ikke. Dette er nærmere beskrevet nedenfor.
På grunn av ulike avtalevilkår kan selger vurdere bud fra en som ikke er forbruker, ulikt fra en forbrukers bud. Dersom kjøper ikke er forbruker, er selger sitt mulige mangelsansvar begrenset fordi eiendommen selges "som den er". Selger kan ikke ta «som den er»- forbehold overfor en forbrukerkjøper. Selv et lavere bud fra en som ikke er forbruker kan foretrekkes fordi begrensningen i mulig mangelsansvar kan ha egenverdi for selger. Selger står fritt til å forkaste eller akseptere ethvert bud, og er for eksempel ikke forpliktet til å akseptere høyeste bud.
Budgiver skal i budskjema avgi egenerklæring om budgiver er forbruker eller næringsdrivende/ person som hovedsakelig handler som ledd i næringsvirksomhet. Budgivere får informasjon dersom andre bud er inngitt av en som ikke er forbruker.
Forbrukerkjøp - definisjon
Med forbrukerkjøp menes kjøp av eiendom når kjøperen er en fysisk person som ikke hovedsakelig handler som ledd i næringsvirksomhet.
Forbruker – avtalevilkår
Eiendommen har en mangel dersom den ikke er i samsvar med kravene som følger av avtalen, eller det foreligger brudd på bestemmelsene i avhendingsloven §§ 3-2 til 3-8. Hvis eiendommen ikke er i samsvar med det kjøperen må kunne forvente ut ifra alder, type og synlig tilstand, kan det være grunnlag for mangelskrav. Det samme gjelder hvis det er holdt tilbake eller gitt uriktige opplysninger om eiendommen. Dette gjelder likevel bare dersom man kan gå ut ifra at det virket inn på avtalen at opplysningen ikke ble gitt eller at mangelskravet ikke blir rettet i tide på en tydelig måte.
Boligen kan ha en mangel etter avhendingsloven § 3-3 andre ledd, dersom det er avvik mellom opplyst og faktisk innvendig areal, forutsatt at avviket er på 2% eller mer og minimum 1 kvm.
Ved beregning av et eventuelt prisavslag eller erstatning må kjøper selv dekke tap/kostnader opptil et beløp på kr 10 000 (egenandel).
Ikke-forbruker (næringsdrivende) – definisjon
Hvis kjøper er en juridisk person, eller en fysisk person som hovedsakelig handler som ledd i næringsvirksomhet, vil kjøpet ikke anses som et forbrukerkjøp.
Ikke-forbruker – avtalevilkår
Eiendommen har en mangel dersom den ikke er i samsvar med kravene som følger av avtalen.
Eiendommen selges «som den er», og selgers ansvar utover det konkret avtalte er da begrenset etter avhendingsloven § 3-9, første ledd andre setning.
Avhendingsloven § 3-3 andre ledd fravikes, og hvorvidt boligens arealsvikt utgjør en mangel vurderes etter avhendingsloven § 3-8.
Informasjon om kjøpers undersøkelsesplikt, herunder oppfordringen om å undersøke eiendommen nøye, gjelder også for kjøpere som ikke anses som forbrukere.
Det forutsettes at hjemmel overføres til kjøper. Hvis kjøper ikke ønsker hjemmelsoverføring av eiendommen, må det tas forbehold om dette i budet.
Meglers vederlag
Meglers vederlag betales av selger og er avtalt til:
- Vederlag: 1,35% av salgssummen
- Tilrettelegging: kr 12.500,-
- Oppgjør: kr 5.550,-
- Visninger: kr 2.250,- pr. visning
- Oppslag eiendomsregister: kr 1.350,-
Utlegg
- Innhenting av offentlig opplysninger Hitra kommune: kr 4.185,-
- Tinglysing e-sikring - selveier: kr 540,-
Opplysninger om oppdraget
Oppdragsnummer 68-0074/22
Eiendomsmegler Krogsveen AS, avd. Trondheim
Fjordgata 82, 7010, TRONDHEIM
950 007 613
Oppdragets KR-kode KR68.2274
Dato
Sist oppdatert: 02. februar 2026 kl. 13:03
Dokumenter
Dokumenter
PDF – 241 KB
PDF – 2 MB
PDF – 441 KB
PDF – 946 KB
PDF – 312 KB
PDF – 29 KB
PDF – 127 KB
PDF – 392 KB
Område
Legg til steder som er viktige for deg
Visning
Ta kontakt med megler for avtale om privatvisning.
Ønsker du kun å bli holdt orientert, kan du fra eiendommens hjemmeside få varsel om solgtpris, eller kontakte megler.
Lurer du på noe?
Unngå doble boligrenter
Vi tilbyr gunstig forsikring.
Vurderer du utleie?
Få et tilbud fra Utleie KrogsveenHva koster lånet?
Sjekk estimert lånekostnadVil du varsles om lignende boliger?
Ved å lagre ditt boligsøk hos oss får du beskjed når vi har en bolig som ligner denne, før den legges ut på markedet!


