Krodalvegen 87
3 150 000 kr
75 m²
3 soverom
Komplett salgsoppgave

Vrådal Panorama
Delikat innredet hytte med flotte uteplasser - Utestue og stor terrasse - Badstue - Ski in/ski out
Prisantydning
3 150 000 krOmkostninger
99 740 krTotalpris
3 249 740 kr
Pris
Bruksareal
80 m²BRA-I (internt bruksareal)
75 m²BRA-E (eksternt bruksareal)
5 m²TBA (terrasse-balkongareal)
77 m²
Areal
Etasje
2Byggeår
2012Soverom
3 soveromBad
1 badTomteareal
727 m² (eiet)Type
Fritidseiendom på fjelletEierform
EietEnergimerke
Gul C
Nøkkelinfo
Vurderer du utleie?
Få et tilbud fra Utleie KrogsveenHva koster lånet?
Sjekk estimert lånekostnadBeskrivelse
Kort om eiendommen
Velkommen til Krodalvegen 87 på Rådyrtoppen 3!
*Hytten er frittliggende med nydelige utsikt og svært gode solforhold
*Fantastisk flott beliggende hytte med en praktisk og tradisjonell planløsning
*Koselig og fin romløsning i oppholdsrom, som har en god flyt mellom stue, spisestue og kjøkken. Her er god plass til familie og venner!
*Innredet for øvrig med bad med badstue, 3 soverom, boder og hems
*Deilig og lun utestue, hvor det er duket for lune og koselige dager med utsikt og gode solforhold. Svært lite innsyn!
*Gode parkeringsmuligheter på gruset gårdsplass
*Sentralt og populært beliggende med kort vei til alle fasiliteter som Vrådal har å by på!
Innhold og byggemåte
Innhold og byggemåte
Eiendommen
Krodalvegen 87, 3853 VRÅDAL
Kommunenummer 4028, gårdsnummer 1, bruksnummer 258, ideell andel 1/1
Innhold
Totalt bruksareal BRA: 80 kvm
BRA-i:
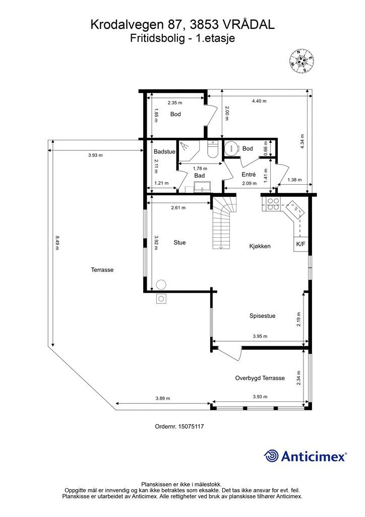
1. etasje 49 kvm: Entre, stue, kjøkken, spisestue, bad, bod og badstue.
2. etasje 26 kvm: Gang og tre soverom.
BRA-e:
1. etasje 5 kvm: Bod med utvendig adkomst.
Åpent areal:
1. etasje 77 kvm: Inngangsparti (12 kvm), terrasse (65 kvm).
Arealet på hems i 1.etasje måles til 9 m2 (ALH), men grunnet lav takhøyde er ingen deler av arealet måleverdig som bruksareal. Det gjøres oppmerksom på at vegg mellom bod og hoveddel er skjønnsmessig oppmålt. Avvik kan forekomme.
Bod med utvendig adkomst var ikke tilgjengelig for inspeksjon av takstmannen grunnet avlåst dør. Skjulte avvik kan ikke utelukkes.
På godkjente byggetegninger er det inntegnet overbygd terrasse, men denne delen av terrassen er ikke inntegnet med tette vegger. Fasadeendring kan være et søknadspliktig tiltak. Det er ikke kjent om tiltaket er omsøkt/godkjent, og det er heller ikke tatt stilling til om dette lar seg gjøre. Arealene er omtalt i rapporten etter bruken på befaringsdagen.
Vedlagte plantegninger er ikke målbare. De oppgitte arealer er hentet fra rapport med befaringsdato 1.9.2025 utført av Anticimex AS. Arealene er beregnet og rom er definert etter dagens faktiske bruk, uavhengig av hva som er godkjent av bygningsmyndighetene.
Byggemåte
Selger har fått utarbeidet en tilstandsrapport, dvs. en teknisk gjennomgang av boligen hvor eventuelle avvik, risiko for kjøper og prisoverslag for hva som bør gjøres av oppgradering, er skissert. Se særskilt TGIU (tilstandsgrad ikke undersøkt), samt TG2 og TG3 som viser hva som er avvik fra boligens normale slitasje, alder og type, eller som bør/må utbedres. Rapporten og selgers egenerklæring er en del av salgsoppgaven og må leses nøye før bud inngis. Kjøper overtar ansvaret for de opplysninger som fremkommer av salgsdokumentasjonen, og kan ikke gjøre gjeldende som mangel noe som burde vært kjent eller som ikke kan anses å ha betydning for avtalen.
Hytta er oppført i 2012 og er iht. tilstandsrapporten oppført på støpt betong mot grunn. Plate på mark. Yttervegger i laftet tømmer. Tak i trekonstruksjon. Saltak tekket med torv. Vinduer og terrassedør med to-lags isolerglass. Ytterdør i trekonstruksjon med isolerglassfelt.
Sammendrag av boligens tilstandsgrad:
TG1 : 62 % | TG2 : 21 % | TG3 : 5 % | TGIU : 12 %
Selger har fått utarbeidet en tilstandsrapport for eiendommen. Rapporten er en teknisk gjennomgang av boligen og angir eventuelle byggetekniske avvik. I rapportens sammendrag fremkommer det som takstmannen mener kjøper må være særskilt oppmerksom på utover normal elde og slitasje,
herunder TG3:
* Bad: Drypplekkasje fra tilkobling dusjkabinett. Det ble registrert forhøyede fuktverdier ved måling med pigg i treverk. Utbedring bør påregnes.
* Torvhaldstokker bærer preg av alder. Råteskader i større omfang er observert.
TG 2:
* Bad: Tilluftsspalte er ikke etablert. Utførelsen med hensyn til bruk av slukmansjett og tettesjikt er uoversiktlig. Det er ikke benyttet tilstrekkelig tettesjikt på våtrommets veggflater. Det er ikke mulig å måle fallet i sluksonen.
* Generelt: Bomlyd under enkelte gulvfliser. Innerdører har kontakt med gulv/dørterskel/dørkarm.
* Badstue/Bad: Elastiske flisfuger har stedvis manglende vedheft.
* Det er noe merkbare skjevheter i 2.etasje.
* Elektrisk anlegg, fra byggeår, uten dokumentasjon.
* Råteskader i taktro i området ved skorstein.
* Terrasse: Skjevheter i konstruksjonen. Innfesting av rekkverk har stedvise svakheter.
* Det registreres riss/sprekker på grunnmur enkelte steder.
Hytten ble utvendig malt av firma i 2024/25. Det er også installert varmepumpe i stuen, utført av firma.
Tilstandsrapporten følger vedlagt i salgsoppgaven for utfyllende informasjon. Interessenter må sette seg inn i denne før bud inngis.
Standard
Krogsveen ønsker velkommen til Krodalvegen 87!
Hytten ligger flott og solrikt til på Rådyrtoppen 3. Frittliggende hytte bygget i 2012. Praktisk og tradisjonelt innredet over 2 etasjer.
Man entrer hytten i gang med tilliggende bod/teknisk rom med vaskemaskin og hyller for oppbevaring. Her er det plass til å henge bort yttertøy.
Videre har man badet likefrem. Det er innredet med toalett, dusjkabinett og servant i innredning. Tilliggende badet er det praktisk badstue. Noe som for mange oppleves som ekstra luksus etter en lang dag ute i naturen!
Romslig hems over bad/badstue og bod som av selger har vært benyttet til overnattingsgjester og/eller som ekstra TV-stue/spillerom i tillegg til gode oppbevaringsmuligheter.
Fra gangen entrer man stue/kjøkken avdelingen. Det er åpen løsning, men inndelt i naturlige soner med god flyt og plass til både familie og gjester.
Kjøkkenet er smakfullt innredet med hvitprofilert innredning med integrerte hvitevarer. God arbeidsplass. I tilknytning til kjøkkenet er det fin plass til spisestuen, slik at man kan samles til lange deilige måltider. Det er fin plass til både salong og tv-stue, og store vindusflater gir godt naturlig lys til rommet og fin utsikt. Steinvegg og vedovn er med å gi god atmosfære til rommet. Varmepumpe i stuen er installert som ekstra varmekilde.
Fra stuen er det utgang til en lun og fin utestue. Den skjermer godt mot vind og vær, slik at man kan sitte ute og forlenge sesongen betraktelig. Her er installert stråleovn for varme på kjøligere årstider. I tillegg er det stor terrasse som strekker seg på hyttens fremside.
På terrassen har man gode solforhold, full kontroll på alpinbakken samt fin utsikt til fjellkjedene. Her kan de flotteste solnedganger nytes.
Tar vi turen opp i 2. etasje befinner det seg her gang og 3 soverom. Hovedsoverommet er stort og luftig, innredet med dobbelseng. De to øvrige soverommene er innredet med køyeseng og familiekøyeseng.
Praktisk med utebod i tilknytning til hytten. Denne er isolert og med innlagt strøm. Det er lagt inn 3-fas industriuttak på egen kurs på yttervegg, slik at man kan etablere elbil lader om ønskelig.
Dette er en velholdt og fin hytte som er verdt en titt!
Løsøre og tilbehør
Vi viser til liste fra Norges Eiendomsmeglerforbund som gjelder fra 01.01.2020 angående løsøre og tilbehør.
Hytten kan selges møblert, etter nærmere avtale med selger.
Oppvarming
Varmekabler i 1. etasje.
Peisovn i stue. Feier opplyser at det ble feiet der sist 24.3.2024. Det ble da også utført tilsyn med kun en merknad om at slukkeapparatet var utgått på dato. Dette skal i senere tid være fornyet iflg selger.
Varmepumpe i stue.
For øvrig elektrisk. Dersom beboelsesrom ikke har vegg- eller fastmonterte varmekilder ved visning følger dette heller ikke med.
Ferdigattest/brukstillatelse
Det foreligger ferdigattest på eiendommen datert 3.8.2012. Denne kan fås ved henvendelse til megler.
Ferdigattesten omfatter ikke utestuen. Terrassedøren er i tegninger plassert på annet sted enn reelt. Utestuen er tettet med vegg og vinduer, og dette er ikke medtatt i byggetegninger eller ferdigattest. Dette er en fasadeendring og vil således være pliktig å byggemelde.
Kjøper overtar eiendommen slik den framstår på visning.
Tinglyste heftelser og rettigheter
Eiendommen overdras fri for pengeheftelser.
Det er ingen tinglyste servitutter på eiendommen.
Eventuell adgang til utleie
Fritidseiendommen har ikke separat utleiedel. Det vil normalt være anledning til utleie av hele eiendommen eller enkeltrom, såfremt utleiearealet er bygningsmessig godkjent for varig opphold.
Ønsker man å leie ut så er det gode muligheter til dette gjennom Vrådal Booking/ eller i egen regi med finn.no eller Airbnb. Dog må man selv sørge for å sette seg inn i skatteregler for utleie.
Diverse
Tilbud av produkter og tjenester fra våre samarbeidspartnere
VI er opptatt av verdiskapning, og har knyttet til oss samarbeidspartnere som skal sikre våre kunder de beste produkter og tjenester;
• Gjensidige leverer boligselgerforsikring og tilbyr bygningsforsikring
• Boligkjøperforsikring levers av Hiscox og med Sedgwick som skadebehandler, og er formidlet gjennom Gjensidige.
• BN bank tilbyr finansieringsløsninger
• Vår avdeling Krogsveen Pluss tilbyr flyttetjenester som utvask, visningsvask, lager, tømming og transport av flyttelass, i tillegg til å formidle kontakt med Flip for overflateoppussing.
• I forbindelse med overtagelse av eiendommen tilbyr Overo avtale om strøm, alarm og bredbånd.
• Krogsveen er, sammen med øvrige bransjeaktører, medeier i den digitale annonseringsplattformen Hjem.
Beliggenhet og tomteforhold
Beliggenhet og tomteforhold
Beliggenhet
Vrådal Panorama Skisenter er et flott og attraktivt helårs feriested som har blitt veldig populært de siste årene. Her har man masse aktivitetstilbud, sommer som vinter.
Om sommeren bys det på vakker natur, flotte turområder i fjellet med merkede turer (korte og lange), 9 hulls golfbane, nydelig opparbeidet badestrand- og brygge med båtplasser og vannleker for ungdommen (trampoline og klatreborg), lekeplass med både klatrestativ, hoppepute, skateramp, huskestativ m.m., fotballøkke og dammer med turstier. For de som ønsker litt mer utfordrende aktiviteter er det mange som tar sykkelen fatt ut i naturen og oppmerkede sykkelløyper.
Vinterstid bys det på oppkjørte langrennsløyper på fjellet, korte og lange turer, alt etter ønske og form! Det er 18 nedfarter i slalom anlegget med 8 heiser inkl. 8-seters stolheis. Her er det sjelden kø.
Kafeteria og bar på området med tidvise aktivitetstilbud for store og små. Vrådal har et veldig hyggelig og inkluderende miljø hvor man kan slappe av og bare nyte roen, naturen og de aktiviteter man ønsker.
Velkommen!
Adkomst
Når man kommer til Vrådal sentrum følger man veien og skilting til Vrådal Panorama/alpinanlegg. Når man kommer inn på feltet holder man til venstre i "rundkjøringen" mot Rådyrtoppen 2 og 3. Følg veien rett frem og hold til vestre opp bakken mot Rådyrtoppen 3. Ta så 1. vei til høyre og hytten er beliggende rett frem.
Hytten er skiltet med Krogsveen Til salgs skilt.
Vrådal ligger i hjertet av Telemark, ca. 2,5 timer fra Oslo, 2,5 time fra Tønsberg og Kristiansand, ca 2 timer fra Sandefjord og Arendal.
Det er fine veier, sommer og vinter.
Beskrivelse av tomt
Eiet tomt på 726,8 kvm.
Naturtomt som ligger tilbaketrukket og solrikt til. Flott utsikt mot alpinanlegg og omkringliggende fjellkjeder. Meget gode solforhold på eiendommen.
Tomten er lettholdt med gode parkeringsmuligheter.
Ski in/ski out fra hytten, og akebakke finner man like utenfor hyttedøren. Gangavstand/skiavstand til skisenter med kafe og restaurant. Man har kort avstand til fine turområder. Badeplass og brygge med mulighet for leie av båtplass, ligger kun en kort spasertur fra hytta. Populær og flott golfbane med kafe/servering er også i nærmiljøet.
Her får man en flott beliggende fritidseiendom, midt i smørøyet og likevel fritt og åpent beliggende.
Parkering
Gode parkeringsmuligheter på gårdsplassen.
Det er lagt inn 3-fas industriuttak på egen kurs på yttervegg, slik at man kan etablere elbil lader om ønskelig.
Vei, vann og avløp
Eiendommen har adkomst via privat vei med felles vedlikeholdsansvar.
Eiendommen er tilknyttet kommunalt ledningsnett via private stikkledninger. Eier er selv ansvarlig for private stikkledninger til boligen.
Regulerings-og arealplaner
Eiendommen er regulert til fritidsbolig i henhold til reguleringsplan Rådyrtoppen III med tilhørende reguleringsbestemmelser.
Området er generelt under utvikling/utbygging. Det ligger ubebygde tomter i nærmiljøet. Konkrete planer utover dette er ikke kjent.
Utsnitt av plan med tilhørende bestemmelser kan fås ved henvendelse til megler.
Økonomi
Økonomi
Kommunale utgifter
Kommunale avgifter er kr 13 211,- for inneværende år. I dette inngår gebyr for vann, avløp, renovasjon og feiing/tilsyn.
Brannvesenet er pålagt å føre tilsyn med, og å feie pipeløp i alle fritidseiendommer. Det vil kunne medføre kostnader for kjøper til utbedring av evt. fremtidige pålegg og anmerkninger.
Nåværende eier har et strømforbruk på ca 7.300 kwh pr. år.
Hytten har en årlig forsikringspremie på kr 6.000,-.
Velavgift til Vrådal Panorama betales med ca kr. 4.900,- pr år. Dette gjelder vedlikehold og brøyting av veier, vann og avløp på området.
Brøyting av egen gårdsplass kan avtales med Vrådal Panorama og betales etter gjeldende satser. De har en klippekort ordning og bestilles i app. Klippekort kr 1.750,- (5 brøytinger inkludert). Valgfritt.
Velavgift er kr 300,- pr. år. Valgfritt.
Hytten er tilknyttet Telefiber som leverandør av kabel-tv og internett. Tv-tuner/dekoder medfølger. Kostnad varierer ihht valg av abonnement.
Utgiftene er basert på nåværende eiers forbruk og avtaler.
Formuesverdi
Formuesverdi for 2023 var kr 752 813,- ifølge skatteetaten.
Omkostninger
3 150 000,00 Prisantydning
Omkostninger
78 750,00 Dokumentavgift til staten (2,5% av kjøpesum)
19 900,00 Gjensidige Boligkjøperpakke (valgfri)
545,00 Tinglysing panterettsdokument
545,00 Tinglysing skjøte
--------------------------------------------------------
99 740,00 Omkostninger totalt
--------------------------------------------------------
3 249 740,00 Totalpris inkl. omkostninger
--------------------------------------------------------
Tilbud om lånefinansiering
Megler formidler gjerne kontakt med rådgiver hos vår samarbeidspartner BN Bank. De har konkurransedyktige betingelser samt rask og løsningsorientert behandling av din lånesøknad. Krogsveen mottar et honorar for denne formidlingen.
Betalingsbetingelser
Kjøpesum inkludert omkostninger, samt pantedokument tilknyttet eventuelt lån, skal være disponibelt hos megler 2 virkedager før overtagelsen.
Annen viktig informasjon
Annen viktig informasjon
Eier
Cindy Cordula Leon Van Goethem og Erik Josephus Florentina Voet
Konsesjon
Eiendommen er ikke konsesjonspliktig, men det er boplikt i Kviteseid kommune. For at eiendommen skal kunne overskjøtes må kjøper signere på egenerklæring om konsesjonsfrihet om at boplikten ikke gjelder for denne eiendommen.
Overtakelse
Etter nærmere avtale.
Boligselgerforsikring
Selger har i forbindelse med salget tegnet boligselgerforsikring levert av Gjensidige.
Boligselgerforsikringen dekker selgers ansvar etter avhendingsloven begrenset oppad til kr 14 millioner. Dersom kjøper oppdager forhold ved eiendommen som hen mener utgjør en mangel ved eiendommen, vil Gjensidige behandle reklamasjonen på vegne av selger. Forsikringsvilkår kan fås ved henvendelse til megler.
Vedlagt salgsoppgaven følger selgers egenerklæringsskjema og tilstandsrapport. Interessenter må sette seg inn i dokumentene før bud inngis.
Boligkjøperforsikring
Innen kontraktsmøtet må kjøper ta stilling til om det ønskes å bestille Boligkjøperpakken gjennom Gjensidige. I denne gunstige pakken er boligen ferdig forsikret og inkluderer rettshjelpsforsikring, også kalt Boligkjøperforsikring. Rettshjelpsforsikring gir trygghet og tilgang på profesjonell juridisk hjelp dersom det oppdages uventede feil eller mangler det første året etter overtagelse. Forsikringsselskapet behandler i så fall ethvert mangelskrav kjøper måtte ha overfor selger.
Boligkjøperpakken inkluderer bygningsforsikring for hus og hytte, innboforsikring, flytteforsikring og dobbel rentedekning - i situasjoner hvor kjøper ikke får solgt nåværende primærbolig.
Kjøper mottar ingen særskilt faktura for Boligkjøperpakken da kostnaden det første året legges til kjøpesummen for boligen. Det gjøres oppmerksom på Krogsveen mottar et honorar for denne formidlingen.
Produktark for Boligkjøperpakken ligger vedlagt i salgsoppgaven.
Dersom ikke boligkjøperpakke ønskes kan kun rettshjelpsforsikring, også kalt boligkjøperforsikring, tegnes særskilt via megler. Rettshjelpsforsikringen varer i 5 år fra overtagelse og leveres gjennom Gjensidige. Ta kontakt med megler for ytterligere informasjon.
Selskap og privatpersoner som driver med kjøp/salg/utvikling som ledd i egen næringsvirksomhet kan ikke tegne boligkjøperpakke eller rettshjelpsforsikring.
Budgivning
Forbrukerinformasjon om budgivning er vedlagt denne salgsoppgaven og er også på vår hjemmeside Krogsveen.no. Alle bud og budforhøyelser må inngis skriftlig. I tillegg må legitimasjon være fremlagt sammen med signatur fra budgiver.
Vi oppfordrer til å gi bud elektronisk via GI BUD-knappen på eiendommens hjemmeside på Krogsveen.no. Da vil samtlige vilkår bli oppfylt.
Eventuelle forhøyelser eller endringer av budet kan bekreftes pr SMS eller på e-post. Vi oppfordrer alltid til å kontakte megler pr. telefon i tillegg da forsinkelser i SMS og e-post kan forekomme.
For at budene skal kunne bli behandlet og videreformidlet skriftlig til alle involverte parter, må alle bud ha en tilstrekkelig lang akseptfrist, jf. eiendomsmeglingsforskriften § 6-3.
Selger må også skriftlig akseptere budet før aksept kan formidles til budgiver. Akseptfrist bør derfor være på minimum 30 minutter, og budforhøyelser må derfor skje i god tid før fristens utløp.
Bud i forbrukerforhold kan uansett ikke settes med kortere frist enn kl. 12.00 første virkedag etter siste annonserte visning. I tillegg kan ikke budet ha forbehold om at det skal holdes hemmelig ovenfor øvrige interessenter. Megler har iht lov om eiendomsmegling ikke anledning til å videreformidle disse budene, og de vil dermed heller ikke bli journalført.
Etter at eiendommen er solgt vil kjøper og selger få tilsendt budjournal. Øvrige budgivere kan få utlevert kopi av budjournalen i anonymisert form.
Hvitvaskingsreglene
I henhold til lov om hvitvasking og terrorfinansiering har megler plikt til å gjennomføre kontrolltiltak overfor kunder, herunder fullmektiger. Dette innebærer bl.a. å bekrefte kunders og reelle rettighetshaveres identitet på bakgrunn av fremvist gyldig legitimasjon eller på annen godkjent måte, samt å innhente opplysninger om kundeforholdets formål og tilsiktede art.
Dersom slike kundetiltak ikke kan gjennomføres, kan megler ikke etablere kundeforholdet eller utføre transaksjonen.
Hvis kjøper ikke bidrar til gjennomføring av kundekontrollen og dette fører til at transaksjonen blir forsinket eller ikke kan gjennomføres, vil dette ansees som mislighold av avtalen og gi selger rettigheter etter avhendingslova kapittel 5. I tilfeller der selger ikke bidrar til gjennomføring av løpende kundekontroll underveis i oppdraget, er det selger som misligholder sine forpliktelser etter avtalen og gi kjøper rettigheter etter avhendingslovens kapittel 4. Partene er selv ansvarlige for eventuelle kostnader og ansvar dette kan medføre. Eiendomsmegleren eller eiendomsmeglingsforetaket kan ikke holdes ansvarlig for de konsekvenser dette vil kunne få for partene eller andre som har interesser i eiendomshandelen.
Kjøper oppfordres til å innbetale kjøpesummen som ikke kommer fra låneinstitusjon i én samlet innbetaling fra egen konto i norsk bank. Megler har plikt til å melde fra til Økokrim om eiendomshandler som fremstår som mistenkelige. Melding sendes Økokrim uten at partene varsles.
Personopplysningsloven
I henhold til personopplysningsloven gjør vi oppmerksom på at interessenter kan bli registrert for videre oppfølging.
Lovanvendelse
Generelle bestemmelser
Salgsoppgaven er basert på de opplysningene selger har gitt til megler, den bygningssakyndiges tilstandsrapport, samt opplysninger innhentet fra kommunen, Kartverket og andre tilgjengelige kilder. Det er viktig at kjøper setter seg grundig inn i alle salgsdokumentene, herunder salgsoppgave, tilstandsrapport og selgers egenerklæring. Kjøper anses kjent med forhold som er tydelig beskrevet i salgsdokumentene, og slike forhold kan ikke påberopes som mangler. Dette gjelder uavhengig av om kjøper har lest dokumentene. Alle interessenter oppfordres til å undersøke eiendommen nøye, gjerne sammen med fagkyndig før bud inngis. Kjøper som velger å kjøpe usett kan ikke gjøre gjeldende som mangel noe han burde blitt kjent med ved undersøkelsen.
Dersom det er behov for avklaringer, anbefaler vi at interessenter rådfører seg med eiendomsmegler eller egne rådgivere før det legges inn bud.
En bolig som har blitt brukt i en viss tid, har vanligvis blitt utsatt for slitasje og skader kan ha oppstått. Slik bruksslitasje må kjøper regne med, og det kan avdekkes enkelte forhold etter overtakelse som nødvendiggjør utbedringer. Normal slitasje og skader som nødvendiggjør utbedring, er innenfor hva kjøper må forvente og vil ikke utgjøre en mangel.
Kjøper og selgers rettigheter og plikter reguleres av avtalen mellom partene, samt informasjonen som har vært tilgjengelig for kjøperen i forbindelse med handelen. Avtalen utfylles av avhendingsloven, og det gjelder ulike avtalevilkår avhengig av om kjøper er forbrukerkjøper eller ikke. Dette er nærmere beskrevet nedenfor.
På grunn av ulike avtalevilkår kan selger vurdere bud fra en som ikke er forbruker, ulikt fra en forbrukers bud. Dersom kjøper ikke er forbruker, er selger sitt mulige mangelsansvar begrenset fordi eiendommen selges "som den er". Selger kan ikke ta «som den er»- forbehold overfor en forbrukerkjøper. Selv et lavere bud fra en som ikke er forbruker kan foretrekkes fordi begrensningen i mulig mangelsansvar kan ha egenverdi for selger. Selger står fritt til å forkaste eller akseptere ethvert bud, og er for eksempel ikke forpliktet til å akseptere høyeste bud.
Budgiver skal i budskjema avgi egenerklæring om budgiver er forbruker eller næringsdrivende/ person som hovedsakelig handler som ledd i næringsvirksomhet. Budgivere får informasjon dersom andre bud er inngitt av en som ikke er forbruker.
Forbrukerkjøp - definisjon
Med forbrukerkjøp menes kjøp av eiendom når kjøperen er en fysisk person som ikke hovedsakelig handler som ledd i næringsvirksomhet.
Forbruker – avtalevilkår
Eiendommen har en mangel dersom den ikke er i samsvar med kravene som følger av avtalen, eller det foreligger brudd på bestemmelsene i avhendingsloven §§ 3-2 til 3-8. Hvis eiendommen ikke er i samsvar med det kjøperen må kunne forvente ut ifra alder, type og synlig tilstand, kan det være grunnlag for mangelskrav. Det samme gjelder hvis det er holdt tilbake eller gitt uriktige opplysninger om eiendommen. Dette gjelder likevel bare dersom man kan gå ut ifra at det virket inn på avtalen at opplysningen ikke ble gitt eller at mangelskravet ikke blir rettet i tide på en tydelig måte.
Boligen kan ha en mangel etter avhendingsloven § 3-3 andre ledd, dersom det er avvik mellom opplyst og faktisk innvendig areal, forutsatt at avviket er på 2% eller mer og minimum 1 kvm.
Ved beregning av et eventuelt prisavslag eller erstatning må kjøper selv dekke tap/kostnader opptil et beløp på kr 10 000 (egenandel).
Ikke-forbruker (næringsdrivende) – definisjon
Hvis kjøper er en juridisk person, eller en fysisk person som hovedsakelig handler som ledd i næringsvirksomhet, vil kjøpet ikke anses som et forbrukerkjøp.
Ikke-forbruker – avtalevilkår
Eiendommen har en mangel dersom den ikke er i samsvar med kravene som følger av avtalen.
Eiendommen selges «som den er», og selgers ansvar utover det konkret avtalte er da begrenset etter avhendingsloven § 3-9, første ledd andre setning.
Avhendingsloven § 3-3 andre ledd fravikes, og hvorvidt boligens arealsvikt utgjør en mangel vurderes etter avhendingsloven § 3-8.
Informasjon om kjøpers undersøkelsesplikt, herunder oppfordringen om å undersøke eiendommen nøye, gjelder også for kjøpere som ikke anses som forbrukere.
Det forutsettes at hjemmel overføres til kjøper. Hvis kjøper ikke ønsker hjemmelsoverføring av eiendommen, må det tas forbehold om dette i budet.
Meglers vederlag
Meglers vederlag betales av selger og er avtalt til:
Vederlag: 1,50 % av salgssummen. Minimumsprovisjon er kr 48.000,00
Vederlag
Fotopakke inkl foto kr 5 200,00
Kontroll av hjemmel og heftelser kr 2 900,00
Markedsføringspakke Fritid kr 27 400,00
Oppgjør kr 7 500,00
Tilrettelegging kr 17 000,00
Visninger pr stk / Overtagelse kr 2 500,00
Utlegg
Innhenting av offentlig opplysninger Kviteseid kr 2 200,00
Tinglysing sikring kr 545,00
Andre utgifter
AX tilstandsrapport Hytte under 150 kvm kr 17 500,00
Boligselgerforsikring Gjensidige Tomt Fritid kr 20 192,00
Opplysninger om oppdraget
Oppdragsnummer 22-0330/25
Eiendomsmegler Krogsveen AS, avd. Sandefjord
Jernbanealléen 13, 3210, SANDEFJORD
950 007 613
Oppdragets KR-kode KR22.25330
Dato
Sist oppdatert: 30. januar 2026 kl. 09:02
Dokumenter
Dokumenter
PDF – 490 KB
PDF – 744 KB
PDF – 773 KB
PDF – 4 MB
PDF – 312 KB
PDF – 29 KB
PDF – 127 KB
PDF – 392 KB
Område
Legg til steder som er viktige for deg
Visning
For å delta på visning, ber vi om at du melder deg på. Da sikrer vi at du får nødvendig informasjon og at det er satt av tilstrekkelig med tid. Kontakt megler dersom annet tidspunkt ønskes. Husk å lese salgsoppgaven før visningen, så du stiller forberedt. NB. Visning utgår dersom det ikke er noen påmeldte.
Ta kontakt med megler for avtale om privatvisning.
Ønsker du kun å bli holdt orientert, kan du fra eiendommens hjemmeside få varsel om solgtpris, eller kontakte megler.
Lurer du på noe?
Vurderer du utleie?
Få et tilbud fra Utleie KrogsveenHva koster lånet?
Sjekk estimert lånekostnadVil du varsles om lignende boliger?
Ved å lagre ditt boligsøk hos oss får du beskjed når vi har en bolig som ligner denne, før den legges ut på markedet!

