Hotvetveien 60
18 500 000 kr
566 m²
5 soverom
Solgt
Øren
Herskapelig & moderne villa som ble totalrenovert i 2010/2011. Unik spaavdeling. Parklignende hage på 5 mål. Utleiedel.
Prisantydning
18 500 000 krOmkostninger
483 490 krTotalpris
18 983 490 kr
Pris
Bruksareal
671 m²BRA-I (internt bruksareal)
566 m²BRA-E (eksternt bruksareal)
105 m²TBA (terrasse-balkongareal)
155 m²
Areal
Etasje
3Byggeår
1954Soverom
5 soveromBad
3 badTomteareal
5 071 m² (eiet)Type
Enebolig - FrittliggendeEierform
EietFasiliteter
Garasje/P-plass og Balkong/TerrasseEnergimerke
Gul E
Nøkkelinfo
Unngå doble boligrenter
Vi tilbyr gunstig forsikring.
Vurderer du utleie?
Få et tilbud fra Utleie KrogsveenHva koster lånet?
Sjekk estimert lånekostnadBeskrivelse
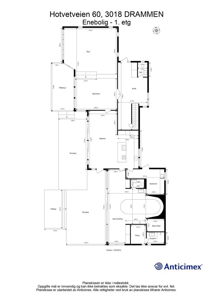
Kort om eiendommen
Velkommen til Hotvetveien 60 - en herskapelig & moderne villa, som må sees!
- Boligen ble totalrenovert i 2010/2011 og har en delikat samt moderne utførelse av høy standard
- Store og flotte sosiale rom i 1. etg med mulighet for å åpne ut til utearealene
- Gode fasiliteter i boligen som hovedsov med suiteløsning, vinkjeller m.m.
- Unik og luksuriøs spaavdeling med bl.a. motstrømsbasseng og steambad
- Balansert ventilasjon, vannbåren varme via bergvarme og gasspeiser i boligen
- 2 doblegarasjer med en 2-roms utleiedel i etasjen over den ene garasjen (god skattefri leieinntekt)
- Boligen har svært solrike og skjermet uteplasser med bl.a. jaccuzzi samt utekjøkken - flott utsikt er det også
- Stor tomt på over 5 mål med en nydelig parklignende hage som har både lysthus og egen andedam
Område
Legg til steder som er viktige for deg
På flyttefot? Tenk kjøp og salg samtidig.
Få din egen rådgiver gjennom hele kjøps- og salgsprosessen. Det starter med en verdivurdering.
Unngå doble boligrenter
Vi tilbyr gunstig forsikring.
Vurderer du utleie?
Få et tilbud fra Utleie KrogsveenHva koster lånet?
Sjekk estimert lånekostnadVil du varsles om lignende boliger?
Ved å lagre ditt boligsøk hos oss får du beskjed når vi har en bolig som ligner denne, før den legges ut på markedet!
På flyttefot? Slik gjør vi det enklere for deg
Skreddersydd flyttepakke
Vi fikser håndverkere, vask, pakking, lagring og transport, og legger ut for utgiftene underveis.
Hjelp med både kjøp og salg
Hos oss har du din egen rådgiver gjennom hele kjøps- og salgsprosessen.
Hjelp til finansiering
Vårt samarbeid med BN Bank sikrer deg rask og løsningsorientert hjelp, til konkurransedyktige betingelser.




