Velkommen til Viervegen 15 i Vrådal!

Viervegen 15

2 990 000 kr

98 m²

3 soverom

Solgt

BUD INNKOMMET! | Vrådal - stor duohytte med stor og usjenert uteplass| Helårshytte |Ski in/ ski out |3 soverom | Solrikt | Utsikt

    Pris

  • Prisantydning

    2 990 000 kr

  • Omkostninger

    85 790 kr

  • Totalpris

    3 075 790 kr

    Areal

  • Bruksareal

    105 m²

  • BRA-I (internt bruksareal)

    98 m²

  • BRA-E (eksternt bruksareal)

    7 m²

  • TBA (terrasse-balkongareal)

    103 m²

    Nøkkelinfo

  • Byggeår

    2007

  • Soverom

    3 soverom

  • Bad

    1 bad

  • Type

    Fritidseiendom på fjellet

  • Eierform

    Eierseksjon

  • Fasiliteter

    Balkong/Terrasse

  • Årlig velavgift

    4 700 kr

  • Energimerke

    Oransje D

Hva koster lånet?

Sjekk estimert lånekostnad

Beskrivelse

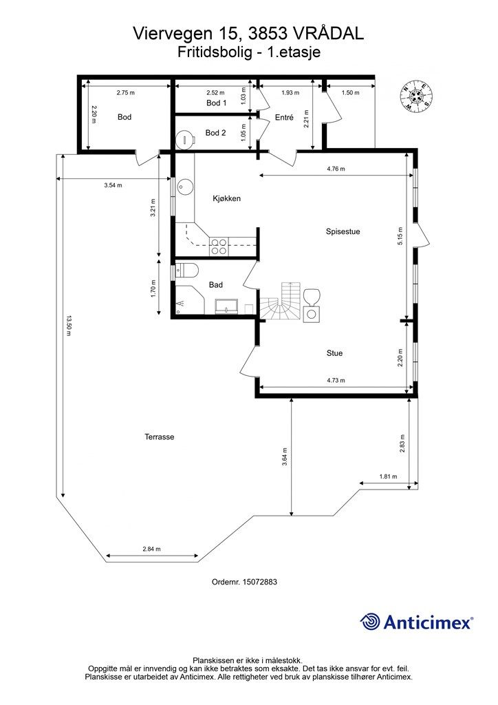
Kort om eiendommen

Innbydende tømmerhytte i populære Vrådal - med fantastisk intern beliggenhet innerst i en blindvei, usjenert og med flott utsikt over skibakkene. Her bor du med ekte ski in/ ski out, sol fra morgen til kveld og en imponerende terrasse på hele 95 kvm. Hytta er romslig og velholdt, med god planløsning, 3 soverom og sengeplasser til opptil 9 personer. Et perfekt sted for både aktive feriedager og rolige helger - sommer som vinter.

- Ski in/ ski out
- Meget solrikt
- Klassisk stor tømmerhytte
- Usjenert beliggenhet, men samtidig sentral intern beliggenhet
- Stilfull peisovn som kan roteres.
- 3 soverom
- Bad + separat toalett i 2.etasje
- Romslig stue med spisestuesofa og tv-krok
- Godt utstyrt kjøkken
- Nybeiset ute i 2023
- 95 kvm stor terrasse
- Parkering v/hytta

Velkommen!

Område

Legg til steder som er viktige for deg

Prisutvikling for området

Kvadratmeterpris

0 kr/m²

Endring

↘︎ % ()

På flyttefot? Tenk kjøp og salg samtidig.

Få din egen rådgiver gjennom hele kjøps- og salgsprosessen. Det starter med en verdivurdering.

Hva koster lånet?

Sjekk estimert lånekostnad

Vil du varsles om lignende boliger?

Ved å lagre ditt boligsøk hos oss får du beskjed når vi har en bolig som ligner denne, før den legges ut på markedet!

På flyttefot? Slik gjør vi det enklere for deg

Skreddersydd flyttepakke

Vi fikser håndverkere, vask, pakking, lagring og transport, og legger ut for utgiftene underveis.

Hjelp med både kjøp og salg

Hos oss har du din egen rådgiver gjennom hele kjøps- og salgsprosessen.

Hjelp til finansiering

Vårt samarbeid med BN Bank sikrer deg rask og løsningsorientert hjelp, til konkurransedyktige betingelser.