Tømtebakken 3
17 500 000 kr
236 m²
4 soverom
Komplett salgsoppgave
BILLINGSTAD
Innholdsrik, arkitekttegnet familiebolig med fantastisk utsikt og sol- Klassisk og moderne - Anneks, drivhus og garasje
Prisantydning
17 500 000 krOmkostninger
458 490 krTotalpris
17 958 490 kr
Pris
Bruksareal
308 m²BRA-I (internt bruksareal)
236 m²BRA-E (eksternt bruksareal)
72 m²TBA (terrasse-balkongareal)
132 m²
Areal
Byggeår
1910Soverom
4 soveromBad
3 badTomteareal
1 377 m² (eiet)Type
Enebolig - FrittliggendeEierform
EietFasiliteter
Garasje/P-plass og Balkong/TerrasseEnergimerke
E
Nøkkelinfo
Unngå doble boligrenter
Vi tilbyr gunstig forsikring.
Vurderer du utleie?
Få et tilbud fra Utleie KrogsveenHva koster lånet?
Sjekk estimert lånekostnadBeskrivelse
Kort om eiendommen
Attraktiv eiendom med sentral beliggenhet på øvre Billingstad. Her bor du med kort avstand til tog, barnehager, skoler, butikker og flotte rekreasjonsområder.
Familieboligen ble betydelig oppgradert på 90-tallet og i 2012, og holder en gjennomtenkt og funksjonell planløsning. Første etasje inneholder en innbydende entré, en stor og lys stue, forstue, kjøkken med spiseplass, vaskerom med egen inngang og hundedusj, samt et separat toalettrom. I andre etasje finner du en privat sone med fire gode soverom, to bad (2023) og en TV-stue. I tillegg har eiendommen et praktisk anneks med adkomst fra en av terrassene.
Uteområdene er pent opparbeidet og byr på flere solrike soner, bl.a. to terrasser og balkong. Her får du også et drivhus, flott utsikt, gode solforhold og en romslig dobbelgarasje.
Innhold og byggemåte
Innhold og byggemåte
Eiendommen
Tømtebakken 3, 1396 BILLINGSTAD
Kommunenummer 3203, gårdsnummer 38, bruksnummer 38, ideell andel 1/1
Kommunenummer 3203, gårdsnummer 38, bruksnummer 692, ideell andel 1/1
Kommunenummer 3203, gårdsnummer 38, bruksnummer 660, ideell andel 1/4
Innhold
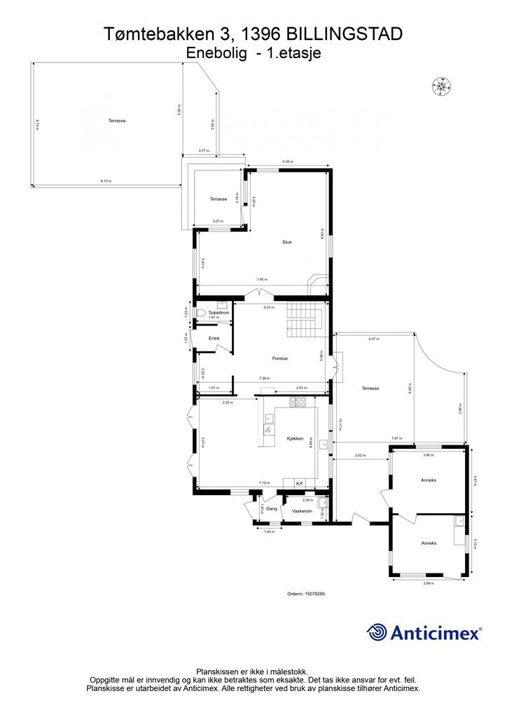
Totalt bruksareal BRA: 308 kvm
BRA-i:
Enebolig:
Kjeller: 10 kvm: Bod
1. etasje 124 kvm: Entré, gang, vaskerom, forstue, kjøkken, stue og toalettrom
2. etasje 102 kvm: Tv-stue, to baderom, fire soverom og tre boder
BRA-e:
Anneks:
1. etasje 26 kvm: Anneks
Garasje:
1. etasje 46 kvm: Garasje med tilliggende bod
Åpent areal:
Enebolig:
1. etasje 125 kvm: To terrasser (utgang fra forstue til terrasse på 53 kvm og utgang fra stue til terrasse på 72 kvm)
2. etasje 7 kvm: Balkong
- Kun deler av arealet i 2.etasje er måleverdig som bruksareal. Arealet har et totalt gulvareal (GUA) på 111 kvm, men grunnet lav takhøyde er kun 102 kvm av arealet måleverdig som bruksareal. De delene av arealene som har lav himlingshøyde (ALH) utgjør 9 kvm.
- Kun deler av arealet i kjelleren er måleverdig som bruksareal. Arealet har et totalt gulvareal (GUA) på 11 kvm, men grunnet lav takhøyde er kun 10 kvm av arealet måleverdig som bruksareal. De delene av arealene som har lav himlingshøyde (ALH) utgjør 1 kvm.
- Boligen har ett frittstående anneks på 26 kvm (BRA-e). Arealet på hems i anneks måles til 13 kvm (ALH), men grunnet lav takhøyde er ingen deler av arealet måleverdig som bruksareal.
- Boligen har et utvendig drivhus oppført i 2024 med grunnflate på 19 kvm.
Vedlagte plantegninger er ikke målbare. De oppgitte arealer er hentet fra rapport med befaringsdato 12.01.2026 utført av Anticimex AS v/Magnus Slåtsveen. Arealene er beregnet og rom er definert etter dagens faktiske bruk, uavhengig av hva som er godkjent av bygningsmyndighetene.
Byggemåte
Selger har fått utarbeidet en tilstandsrapport, dvs. en teknisk gjennomgang av boligen hvor eventuelle avvik, risiko for kjøper og prisoverslag for hva som bør gjøres av oppgradering, er skissert. Se særskilt TGIU (tilstandsgrad ikke undersøkt), samt TG2 og TG3 som viser hva som er boligens normale slitasje, alder og type, hva som er avvik fra dette og hva som bør/må utbedres. Rapporten og selgers egenerklæring er en del av salgsoppgaven og må leses nøye før bud inngis. Kjøper overtar ansvaret for de opplysninger som fremkommer av salgsdokumentasjonen, og kan ikke gjøre gjeldende som mangel noe som burde vært kjent eller som ikke kan anses å ha betydning for avtalen.
Bygningen er iht. tilstandsrapporten oppført i tre. Les for øvrig mer om byggemåte og den tekniske tilstanden i rapporten.
Enebolig over 3 etasjer. Gulv mot grunn av betong. Grunnmur av betong. Bærende yttervegger og skillende dekker av trekonstruksjoner. Utvendige fasader forblendet med trekledning. Yttertak av saltaksform utvendig tekket med takstein. Boligen har profilerte entrédører. Tofløyet balkongdører og balkongdør med to-lags glass fra 1988 og ukjent årstall. De to utgangsdørene på kjøkken er fra 2012. Vinduer med to-lags glass fra ukjent årstall. Oppvarming med elektrisitet, varmepumpe kombinert med vedfyring. Adkomst til kjeller via luke i gulv på kjøkken. Inngang til krypekjeller via luke. Uinnredet kaldtloft. Adkomst via loftsluke. Boligen har elementpiper. Peis i stue. Vedovn på kjøkken og forstue. Pipe på kjøkken/forstue ble rehabilitert med stålpipe i 2023 (i følge eiers opplysninger). Pipe i stue fra 1990. Varmtvannsbereder på ca. 287 liter fra 2011 er plassert i kjeller. Hovedstoppekran og stakeluke er plassert i kjeller. Vannrør av plast, kobber og type rør-i-rør. Synlige avløpsrør av plast. Ventilasjon med tilluftsventiler i vinduer kombinert med mekanisk avtrekk. Ventilasjonsmotor er plassert på kaldt loft. Fordelerskap for rør-i-rør er plassert i bod og soverom 2. Sikringsskap med automatsikringer og måler er plassert i gang. Utgang fra Tv-stue til balkong. Gulvflate belagt med terrassebord. Balkongen har utebelysning. Rekkverk av tre. Rekkverkshøyde er målt til ca. 91 cm. Terrasse over garasje med tilliggende bod. Gulvflate belagt med terrassebord. Rekkverk av tre. Rekkverkshøyde er målt til ca. 90 cm. Utgang fra forstue til terrasse. Gulvflate belagt med terrassebord. Dreneringen er fra ukjent årstall. Forstøtningsmurer i naturstein. Frittstående anneks på 26 m2 med hems med gulvflate på 13 m2 i trekonstruksjoner. Innredet anneks med vegger og himlinger med panel. Gulvflate belagt med gulvbelegg. Garasje med tilliggende bod i betongkonstruksjoner. Frittstående drivhus i metall konstruksjoner.
Det gjøres spesielt oppmerksom på TG2 og TGUI i tilstandsrapporten.
Se supplerende tekst i tilstandsrapporten om bygningsdelene. Kjøper overtar ansvar og risiko for dette.
Standard
Velkommen til et hjem hvor historie, romslighet og varme møtes; en bolig som inviterer til både hverdagsliv og gode øyeblikk. Her får du en sjelden kombinasjon av sjel og moderne komfort, fordelt over to luftige plan, perfekt tilpasset en familie som ønsker å vokse, leve og trives sammen.
Opprinnelig oppført i 1910, bærer boligen med seg en tidløs karakter, samtidig som den er varsomt videreutviklet og modernisert gjennom årene med to store ombygginger på tidlig 90-tall og i 2012. Med gjennomtenkte påbygg tegnet av arkitekt Eivind Eriksen og senere oppgraderinger utført med hjelp av interiørarkitekt Ellen Kongshaug, fremstår hjemmet i dag som både harmonisk og funksjonelt – med en tydelig rød tråd av kvalitet og omtanke.
I 1. etasje finner du en innbydende entré med god plass for yttertøy og sko. Videre har boligen et praktisk forstue og en lys og romslig stue med peis, et perfekt sted for hygge og avslapning. Kjøkkenet er lekkert innredet med benkeplate i stein, og det er god plass til spisebord. Kjøkkenet er utstyrt med frittstående hvitevarer, inkludert gasskomfyr, som gir et praktisk og stilfullt uttrykk. Foruten kjøkkenet har etasjen også et vaskerom og et toalettrom.
I 2. etasje ligger soveromsavdelingen med fire gode soverom og to baderom, begge oppusset i 2023. Den praktiske TV-stuen har utgang til en hyggelig balkong på 7 kvm, hvor du kan nyte utsikten og de gode solforholdene.
Uteområdet er noe helt for seg selv – et sted du virkelig vil tilbringe tid. De to store terrassene legger til rette for alt fra livlige sommerfester til stille morgener med dugg i gresset. Drivhuset (fra 2024) gir rom for grønne prosjekter og små gleder gjennom sesongene, mens den gjennomførte hagen, designet av landskapsarkitekt Helge Strand, skaper en vakker ramme rundt hele eiendommen. Her kan solen nytes fra morgen til kveld, med en utsikt som må oppleves.
Eiendommen byr også på et eget anneks, perfekt som gjestehus, hjemmekontor eller et kreativt fristed, samt en romslig dobbelgarasje med god lagringsplass. Kjeller og loft gir ytterligere fleksibilitet og oppbevaringsmuligheter.
Dette er mer enn en bolig, det er et hjem som er tatt vare på, videreutviklet og fylt med muligheter. Et sted hvor nye minner kan skapes, og hvor både små og store øyeblikk får rom til å vokse.
Løsøre og tilbehør
Vi viser til liste fra Norges Eiendomsmeglerforbund som gjelder fra 01.01.2020 angående løsøre og tilbehør.
Følgende løsøre/tilbehør medfølger ikke boligen:
- Radio/musikkanlegg i forstuen.
Følgende løsøre/tilbehør medfølger boligen:
- Gasskomfyr, oppvaskmaskin, kjøl-/fryseskap, vaskemaskin og tørketrommel, samt kjøleskap og fryseskap i annekset.
Oppvarming
Oppvarming med elektrisitet, varmepumpe kombinert med vedfyring.
Dersom beboelsesrom ikke har vegg- eller fastmonterte varmekilder ved visning, følger dette heller ikke med.
Ferdigattest/brukstillatelse
Kommunen opplyser at det ikke foreligger ferdigattest eller midlertidig brukstillatelse for eiendommen. Det finnes av den grunn ikke dokumentasjon over eiendommens lovlighet. Kjøper overtar eiendommen slik den fremstår på visning med risiko og ansvaret for eventuelle pålegg fra kommunen og kostnader forbundet med dette.
Det foreligger ferdigattest for følgende tiltak:
- Tilbygg og ombygging datert 10.05.1993.
- Garasje datert 10.05.1993
- Rehabilitering av pipe datert 27.01.2025.
Det er forsøkt innhentet originale byggetegninger, men disse finnes ikke i kommunens arkiv. Det finnes tegninger fra tilbygg/ombygging datert 06.11.1987 hvor følgende avviker fra dagens bruk:
- I 1. etasje er deler av kjøkkenet plassert der det opprinnelig var vaskerom og kjølerom. Vaskerommet og gangen er i dag plassert der det var bod og inngangsparti.
Den delen av kjøkkenet er ikke godkjent til varig opphold. Innredning av rommene til bruk for varig opphold er ikke bruksendret/omsøkt og er heller ikke godkjent for denne bruk av kommunen. Konsekvensen ved søknad kan være at rommet ikke godkjennes som varig opphold og at rommet da må brukes som bod/midlertidig oppbevaring. Kjøper overtar alt ansvar, kostnad og risiko for dette videre.
Det gjøres oppmerksom på at det ikke lenger utstedes ferdigattest på tiltak det er søkt om før 1998 jf. plan- og bygningsloven § 21-10. Kommunen vil ikke kreve ferdigattest for disse tiltakene og vil avvise eventuelle søknader. Bestemmelsen innebærer ikke at tiltak med manglende søknad blir lovlige, men at man ikke trenger å avslutte gamle byggesaker. Normalt sett kreves ferdigattest for alle søknadspliktige tiltak som gjøres etter plan- og bygningsloven.
Tinglyste heftelser og rettigheter
Eiendommen overdras fri for pengeheftelser.
Det er tinglyst følgende servitutter på eiendommen:
- Dagboknr 900670, tinglyst 04.02.1921, type heftelse: Bestemmelse om bebyggelse: Megler har forsøkt å finne dokumentet i eldre pantebøker, uten å ha funnet dokumentet. Iht. gammel grunnbok inneholder dokumentet bestemmelser fra et skjøte fra AS Billingstad med bestemmelser om vei, vann, bruk, bebyggelse m.m.
- Dagboknr 35395, tinglyst 11.11.1987, type heftelse: Erklæring/avtale: Avtalen gjelder for gnr. 38, bnr. 660/659/38/657/658 Asker vann- og kloakkvesen har rett til når som helst å avstenge/forsegle den felles hovedstoppekran for fellesanlegget vedr. vann/kloakkledning til eiendommen når det finnes nødvendig eller ønskelig hva enten det er begrunnet av tekniske hensyn eller for å få trufne bestemmelser respektert, uansett hvilke av fellesskapets eiendommer og bygninger det gjelder. Videre forpliktes det i fellesskap med de andre eiendommer å reparere/vedlikeholde de felles vann/kloakkledninger. Fellesskapets eiendommer gis rett til å ha liggende såvel de felles vann/kloakkledninger som de enkelte eiendommers ledninger på eiendommen, samt tillatelse til nødvendig reparasjon/ettersyn av ledningene.
Det er tinglyst følgende rettighet på eiendommen:
- Dagboknr 1419403, tinglyst 27.11.2019, type heftelse: Bestemmelse om veg: Ny adkomstvei til gbnr. 38/38 (Tømtebakken 3) skal gå via adkomstvei til gbnr. 38/48 (Tømtebakken 5) som vist på tegninger som vil bli tilpasset slik at den kommer midtveis mellom de to gatelyktene i nåværende oppkjørsel til gbnr. 38/38.
Servituttene/rettighetene vil følge eiendommen. Kjøpers bank vil få prioritet etter ovennevnte heftelser og servitutter.
Eventuell adgang til utleie
Eiendommen har ikke separat utleieenhet. Det vil normalt være anledning til utleie av hele eiendommen eller enkeltrom, såfremt utleiearealet er bygningsmessig godkjent for varig opphold og har forsvarlige radonnivåer.
Beliggenhet og tomteforhold
Beliggenhet og tomteforhold
Beliggenhet
Eneboligen i Tømtebakken 3 har en særdeles flott beliggenhet, sentralt på øvre Billingstad. Nabolaget har et svært trygt bomiljø med kort gangavstand til flere barnehager, Billingstad barneskole, lekeplasser samt idrettsanlegg og fritidsaktiviteter. Boligen ligger også meget sentralt til med kun ca. 3-400 meter til Billingstad togstasjon og Billingstads egen nærbutikk, Joker, som også er søndagsåpen. Toget har hyppige avganger, ca. hvert 15. minutt mot både Oslo og Asker, og bruker ca. 15 minutter til Lysaker og ca. 25 minutter til Oslo S. På Billingstadsletta er det gode bussforbindelser mot både Asker, Sandvika og Oslo. Det går ekspressbusser til Oslo i rushtiden, samt nattbuss.
Øvre Billingstad er et perfekt utgangspunkt for den aktivitets- og friluftsglade. Her kan man nyte roen, utsikten og særdeles gode solforhold hele dagen, med umiddelbar nærhet til marka og flotte rekreasjonsmuligheter, året rundt.
Boligen ligger svært barnevennlig, med kort og trygg skolevei på ca. 500 meter til Billingstad barneskole. Det ligger flere barnehager i kort gangavstand fra boligen. Blant annet ligger Billingstad Barnehage ca. 600 meter unna. I nærområdet har du også Læringsverkstedet Billingstad. Boligen sokner til Torstad ungdomsskole og det finnes flere videregående skoler i området.
Fra eiendommen er det kun et par hundre meter til den nyoppussede Lyn Aktivitetspark med sandvolleyballbane, grusbane, fotballbinge, downhill sykkelløype og lekestativer, samt en kommende tuftepark. Om vinteren er det her skøytebane og akebakke. Billingstad skole har egen granulatfri kunstgressbane, og på Holmen finnes idrettsanlegg med ishall, kunstgressbane, turnhall, innendørs klatrevegg og tennisbaner. Kort vei er det også til Bjørnegård kunstgressbane og Combihallen. Ved Holmenskjæret ligger det også en flott, nyere svømmehall.
Billingstad er et flott sted for den aktive familien, her har man kort vei til både marka og sjøen. Det er en rekke gang- og sykkelstier i nærområdet som blant annet tar deg mot Sandvika og sjøen, eller oppover mot Vestmarka. Ved Billingstad skole begynner tur- og skiløypene som tar deg inn Vestmarka til Vestmarksetra og Skaugumsåsen. Her er det et stort utvalg av skogsstier (delvis i naturreservat), turløyper, preparerte skispor og egen lysløype. Dette er med andre ord et perfekt utgangspunkt for flotte turopplevelser for hele familien, året rundt. Holmenskjæret, Hvalstrand, Kadettangen og Kalvøya er populære strender om sommeren med fine bademuligheter og store grøntområder. Det er også flere hyggelige badestrender og småbåthavner, som åpner for trivelige sommerdager på og ved Oslofjorden med bading, båtliv og gode fiskemuligheter. Ved Holmen fjordhotell finner du også den lokale kajakklubben.
I tillegg er det flere kjøpesentre i nærheten; Slependen Senter, Holmen Senter og Sandvika Storsenter med sine brede utvalg av butikker, serveringssteder og servicetilbud. Sandvika har de senere år utviklet seg til å bli et moderne sentrum med kino, bibliotek, kulturhus, restauranter, kafeer, Sandvika Storsenter m.m.
Adkomst
Veibeskrivelse se Google Maps - det er enkelt å finne frem i kartet.
Barnehager, skoler og fritid
- Billingstad barnehage
- Læringsverkstedet Billingstad
- Tanum FUS barnehage
- Billingstad barneskole
- Torstad ungdomsskole
Dersom skole- og barnehagetilbud er av betydning for kjøpet, ber vi om at det rettes en særskilt henvendelse til kommunen for oppdatert informasjon.
Beskrivelse av tomt
Eiertomt på 1 377 kvm. Tomt opparbeidet med blant annet asfaltert adkomst med varmekabler, gressplen, trær, prydbusker og diverse beplantning. Hagen og garasjeanlegget er designet av landskapsarkitekt Helge Strand.
Eiendommen har også 370 kvm tomt på gbnr. 38/692 med mulighet for parkering/båtopplag m.m.
Parkering
Parkering i dobbelgarasje og på egen tomt.
Vei, vann og avløp
Eiendommen har adkomst via privat vei med felles vedlikeholdsansvar.
Eiendommen er tilknyttet kommunalt ledningsnett via private stikkledninger. Eier er selv ansvarlig for private stikkledninger til boligen.
Regulerings-og arealplaner
Eiendommen er regulert til "frittliggende småhusbebyggelse" i henhold til reguleringsplan "Del av Vestre Billingstad" med planID 022067 datert 16.03.1922 og "boligbebyggelse-frittliggende småhusbebyggelse" i henhold til reguleringsplan "Tømtebakken 5" med planID 02202015001 datert 01.03.2016.
Utsnitt av plan med tilhørende bestemmelser kan fås ved henvendelse til megler.
Økonomi
Økonomi
Kommunale utgifter
Kommunale avgifter var kr 22 226,- for 2024. I dette inngår gebyr for vann, avløp, renovasjon og feiing/tilsyn.
Nåværende eier har et strømforbruk som tilsvarer ca. 33 300 kwh. pr. år.
Boligen har en årlig forsikringspremie på ca. kr 10 000,-.
Velavgift er kr 300-500,- pr. år (Billingstad Vel, beløpet avhenger av ekstra støtte til idretts-/lekeområde for barn/unge).
Privat brøyting er ca. kr. 5 000,- pr år for hver av de fire eiendommene som er tilknyttet.
Boligen er tilknyttet Telenor som leverandør av internett/TV. Kostnad for dette avhenger av hvilke pakke/avtale som velges.
Boligen er tilknyttet Homely alarmselskap som koster ca. kr 5 000,- pr. år.
Utgiftene er basert på nåværende eiers forbruk og avtaler.
Selger har avtalt Norgespris på strøm på eiendommen for perioden 10/25-01/27, og denne er pt på kr 50 øre inkl mva. Nettleie, avgifter og påslag fra kraftleverandøren kommer i tillegg. Er det fjernvarme vil det også komme kostnader i tillegg.
Denne avtalen vil følge eiendommen i den avtalte perioden.
Les mer om Norgespris her: https://www.regjeringen.no/no/aktuelt/legg-fram-lov-om-norgespris-pa-straum-og-fjernvarme/id3102642/
Formuesverdi
Ved hjelp av skatteetatens boligkalkulator er boligens formuesverdi beregnet til kr. 2 324 517,- for fjoråret når boligen benyttes som primærbolig.
Formuesverdien er en gitt prosent av den beregnede markedsverdien. Beregnet markedsverdi er basert på Statistisk sentralbyrå (SSB) sine opplysninger om omsatte boliger. I beregningen tas det hensyn til boligens beliggenhet, areal, byggeår og boligtype.
Det er eier av boligen som fastsetter formuesverdien, jf. skatteforvaltningsloven § 9-1 første ledd, men skattemyndighetene kan kontrollere at verdien er satt riktig.
Formuesverdi skal ikke overstige:
Primærbolig: 25 % av beregnet eller dokumentert markedsverdi opp til kr. 10 000 000, og deretter 70 % av den overskytende markedsverdi.
Sekundærbolig: 100 % av beregnet eller dokumentert markedsverdi.
Formuesverdier som overstiger disse grensene, kan kreves nedjustert av eier.
Fra 2026 har Stortinget vedtatt en oppdatert modell for beregning av formuesverdi for primærbolig, så avvik kan forekomme.
For mer informasjon se skatteetaten.no
Omkostninger
17 500 000,00 Prisantydning
Omkostninger
437 500,00 Dokumentavgift til staten (2,5% av kjøpesum)
19 900,00 Gjensidige Boligkjøperpakke (valgfri)* (valgfritt)
545,00 Tinglysing panterettsdokument
545,00 Tinglysing skjøte
--------------------------------------------------------
438 590,00 Omkostninger totalt (uten Gjensidige Boligkjøperpakke (valgfri))
458 490,00 Omkostninger totalt (med Gjensidige Boligkjøperpakke (valgfri))
--------------------------------------------------------
17 938 590,00 Totalpris inkl. omkostninger
17 958 490,00 Totalpris inkl. omkostninger (med Gjensidige Boligkjøperpakke (valgfri))
--------------------------------------------------------
Tilbud om lånefinansiering
Megler formidler gjerne kontakt med rådgiver hos vår samarbeidspartner BN Bank. De har konkurransedyktige betingelser samt rask og løsningsorientert behandling av din lånesøknad. Krogsveen mottar et honorar dersom lån opprettes.
Betalingsbetingelser
Kjøpesum inkludert omkostninger, samt pantedokument tilknyttet eventuelt lån, skal være disponibelt hos megler 2 virkedager før overtagelsen.
Annen viktig informasjon
Annen viktig informasjon
Eier
Elisabeth Løw og Rune Løw
Overtakelse
Etter nærmere avtale.
Boligselgerforsikring
Selger har i forbindelse med salget tegnet boligselgerforsikring levert av Gjensidige.
Boligselgerforsikringen dekker selgers ansvar etter avhendingsloven begrenset oppad til kr 14 millioner. Dersom kjøper oppdager forhold ved eiendommen som hen mener utgjør en mangel ved eiendommen, vil Gjensidige behandle reklamasjonen på vegne av selger. Forsikringsvilkår kan fås ved henvendelse til megler.
Vedlagt salgsoppgaven følger selgers egenerklæringsskjema og tilstandsrapport. Interessenter må sette seg inn i dokumentene før bud inngis.
Boligkjøperforsikring
Innen kontraktsmøtet må kjøper ta stilling til om det ønskes å bestille Boligkjøperpakken gjennom Gjensidige. I denne gunstige pakken er boligen ferdig forsikret og inkluderer rettshjelpsforsikring, også kalt Boligkjøperforsikring. Rettshjelpsforsikring gir trygghet og tilgang på profesjonell juridisk hjelp dersom det oppdages uventede feil eller mangler det første året etter overtagelse. Forsikringsselskapet behandler i så fall ethvert mangelskrav kjøper måtte ha overfor selger.
Boligkjøperpakken inkluderer bygningsforsikring for hus og hytte, innboforsikring, flytteforsikring og dobbel rentedekning - i situasjoner hvor kjøper ikke får solgt nåværende primærbolig.
Kjøper mottar ingen særskilt faktura for Boligkjøperpakken da kostnaden det første året legges til kjøpesummen for boligen. Det gjøres oppmerksom på Krogsveen mottar et honorar for denne formidlingen.
Produktark for Boligkjøperpakken ligger vedlagt i salgsoppgaven.
Dersom ikke boligkjøperpakke ønskes kan kun rettshjelpsforsikring, også kalt boligkjøperforsikring, tegnes særskilt via megler. Rettshjelpsforsikringen varer i 5 år fra overtagelse og leveres gjennom Gjensidige. Ta kontakt med megler for ytterligere informasjon.
Selskap og privatpersoner som driver med kjøp/salg/utvikling som ledd i egen næringsvirksomhet kan ikke tegne boligkjøperpakke eller rettshjelpsforsikring.
Budgivning
Forbrukerinformasjon om budgivning er vedlagt denne salgsoppgaven og er også på vår hjemmeside Krogsveen.no. Alle bud og budforhøyelser må inngis skriftlig. I tillegg må legitimasjon være fremlagt sammen med signatur fra budgiver.
Vi oppfordrer til å gi bud elektronisk via GI BUD-knappen på eiendommens hjemmeside på Krogsveen.no. Da vil samtlige vilkår bli oppfylt.
Eventuelle forhøyelser eller endringer av budet kan bekreftes pr SMS eller på e-post. Vi oppfordrer alltid til å kontakte megler pr. telefon i tillegg da forsinkelser i SMS og e-post kan forekomme.
For at budene skal kunne bli behandlet og videreformidlet skriftlig til alle involverte parter, må alle bud ha en tilstrekkelig lang akseptfrist, jf. eiendomsmeglingsforskriften § 6-3.
Selger må også skriftlig akseptere budet før aksept kan formidles til budgiver. Akseptfrist bør derfor være på minimum 30 minutter, og budforhøyelser må derfor skje i god tid før fristens utløp.
Bud i forbrukerforhold kan uansett ikke settes med kortere frist enn kl. 12.00 første virkedag etter siste annonserte visning. I tillegg kan ikke budet ha forbehold om at det skal holdes hemmelig ovenfor øvrige interessenter. Megler har iht lov om eiendomsmegling ikke anledning til å videreformidle disse budene, og de vil dermed heller ikke bli journalført.
Etter at eiendommen er solgt vil kjøper og selger få tilsendt budjournal. Øvrige budgivere kan få utlevert kopi av budjournalen i anonymisert form.
Hvitvaskingsreglene
I henhold til lov om hvitvasking og terrorfinansiering har megler plikt til å gjennomføre kontrolltiltak overfor kunder, herunder fullmektiger. Dette innebærer bl.a. å bekrefte kunders og reelle rettighetshaveres identitet på bakgrunn av fremvist gyldig legitimasjon eller på annen godkjent måte, samt å innhente opplysninger om kundeforholdets formål og tilsiktede art.
Dersom slike kundetiltak ikke kan gjennomføres, kan megler ikke etablere kundeforholdet eller utføre transaksjonen.
Hvis kjøper ikke bidrar til gjennomføring av kundekontrollen og dette fører til at transaksjonen blir forsinket eller ikke kan gjennomføres, vil dette ansees som mislighold av avtalen og gi selger rettigheter etter avhendingslova kapittel 5. I tilfeller der selger ikke bidrar til gjennomføring av løpende kundekontroll underveis i oppdraget, er det selger som misligholder sine forpliktelser etter avtalen og gi kjøper rettigheter etter avhendingslovens kapittel 4. Partene er selv ansvarlige for eventuelle kostnader og ansvar dette kan medføre. Eiendomsmegleren eller eiendomsmeglingsforetaket kan ikke holdes ansvarlig for de konsekvenser dette vil kunne få for partene eller andre som har interesser i eiendomshandelen.
Kjøper oppfordres til å innbetale kjøpesummen som ikke kommer fra låneinstitusjon i én samlet innbetaling fra egen konto i norsk bank. Megler har plikt til å melde fra til Økokrim om eiendomshandler som fremstår som mistenkelige. Melding sendes Økokrim uten at partene varsles.
Personopplysningsloven
I henhold til personopplysningsloven gjør vi oppmerksom på at interessenter kan bli registrert for videre oppfølging.
Lovanvendelse
Generelle bestemmelser
Salgsoppgaven er basert på de opplysningene selger har gitt til megler, den bygningssakyndiges tilstandsrapport, samt opplysninger innhentet fra kommunen, Kartverket og andre tilgjengelige kilder. Det er viktig at kjøper setter seg grundig inn i alle salgsdokumentene, herunder salgsoppgave, tilstandsrapport og selgers egenerklæring. Kjøper anses kjent med forhold som er tydelig beskrevet i salgsdokumentene, og slike forhold kan ikke påberopes som mangler. Dette gjelder uavhengig av om kjøper har lest dokumentene. Alle interessenter oppfordres til å undersøke eiendommen nøye, gjerne sammen med fagkyndig før bud inngis. Kjøper som velger å kjøpe usett kan ikke gjøre gjeldende som mangel noe han burde blitt kjent med ved undersøkelsen.
Dersom det er behov for avklaringer, anbefaler vi at interessenter rådfører seg med eiendomsmegler eller egne rådgivere før det legges inn bud.
En bolig som har blitt brukt i en viss tid, har vanligvis blitt utsatt for slitasje og skader kan ha oppstått. Slik bruksslitasje må kjøper regne med, og det kan avdekkes enkelte forhold etter overtakelse som nødvendiggjør utbedringer. Normal slitasje og skader som nødvendiggjør utbedring, er innenfor hva kjøper må forvente og vil ikke utgjøre en mangel.
Kjøper og selgers rettigheter og plikter reguleres av avtalen mellom partene, samt informasjonen som har vært tilgjengelig for kjøperen i forbindelse med handelen. Avtalen utfylles av avhendingsloven, og det gjelder ulike avtalevilkår avhengig av om kjøper er forbrukerkjøper eller ikke. Dette er nærmere beskrevet nedenfor.
På grunn av ulike avtalevilkår kan selger vurdere bud fra en som ikke er forbruker, ulikt fra en forbrukers bud. Dersom kjøper ikke er forbruker, er selger sitt mulige mangelsansvar begrenset fordi eiendommen selges "som den er". Selger kan ikke ta «som den er»- forbehold overfor en forbrukerkjøper. Selv et lavere bud fra en som ikke er forbruker kan foretrekkes fordi begrensningen i mulig mangelsansvar kan ha egenverdi for selger. Selger står fritt til å forkaste eller akseptere ethvert bud, og er for eksempel ikke forpliktet til å akseptere høyeste bud.
Budgiver skal i budskjema avgi egenerklæring om budgiver er forbruker eller næringsdrivende/ person som hovedsakelig handler som ledd i næringsvirksomhet. Budgivere får informasjon dersom andre bud er inngitt av en som ikke er forbruker.
Forbrukerkjøp - definisjon
Med forbrukerkjøp menes kjøp av eiendom når kjøperen er en fysisk person som ikke hovedsakelig handler som ledd i næringsvirksomhet.
Forbruker – avtalevilkår
Eiendommen har en mangel dersom den ikke er i samsvar med kravene som følger av avtalen, eller det foreligger brudd på bestemmelsene i avhendingsloven §§ 3-2 til 3-8. Hvis eiendommen ikke er i samsvar med det kjøperen må kunne forvente ut ifra alder, type og synlig tilstand, kan det være grunnlag for mangelskrav. Det samme gjelder hvis det er holdt tilbake eller gitt uriktige opplysninger om eiendommen. Dette gjelder likevel bare dersom man kan gå ut ifra at det virket inn på avtalen at opplysningen ikke ble gitt eller at mangelskravet ikke blir rettet i tide på en tydelig måte.
Boligen kan ha en mangel etter avhendingsloven § 3-3 andre ledd, dersom det er avvik mellom opplyst og faktisk innvendig areal, forutsatt at avviket er på 2% eller mer og minimum 1 kvm.
Ved beregning av et eventuelt prisavslag eller erstatning må kjøper selv dekke tap/kostnader opptil et beløp på kr 10 000 (egenandel).
Ikke-forbruker (næringsdrivende) – definisjon
Hvis kjøper er en juridisk person, eller en fysisk person som hovedsakelig handler som ledd i næringsvirksomhet, vil kjøpet ikke anses som et forbrukerkjøp.
Ikke-forbruker – avtalevilkår
Eiendommen har en mangel dersom den ikke er i samsvar med kravene som følger av avtalen.
Eiendommen selges «som den er», og selgers ansvar utover det konkret avtalte er da begrenset etter avhendingsloven § 3-9, første ledd andre setning.
Avhendingsloven § 3-3 andre ledd fravikes, og hvorvidt boligens arealsvikt utgjør en mangel vurderes etter avhendingsloven § 3-8.
Informasjon om kjøpers undersøkelsesplikt, herunder oppfordringen om å undersøke eiendommen nøye, gjelder også for kjøpere som ikke anses som forbrukere.
Det forutsettes at hjemmel overføres til kjøper. Hvis kjøper ikke ønsker hjemmelsoverføring av eiendommen, må det tas forbehold om dette i budet.
Meglers vederlag
Meglers vederlag betales av selger og er avtalt til:
Vederlag: 1,00 % av salgssummen inkl. eventuell fellesgjeld. Minimumsprovisjon er kr 60 000,00
Vederlag:
Foto Enebolig kr 6 500,00
Kontroll av hjemmel og heftelser kr 2 900,00
Markedsføringspakke kr 28 250,00
Oppgjør kr 7 500,00
Tilrettelegging kr 17 000,00
Visninger pr stk / Overtagelse kr 4 000,00
Utlegg:
Innhenting av offentlig opplysninger Asker kommune kr 4 426,00
Tinglysing sikring kr 545,00
Andre utgifter:
Boligselgerforsikring Buysure inkl. tilstandsrapport Anticimex (se eget ark) kr 0,00
Vi er opptatt av verdiskapning, og har knyttet til oss samarbeidspartnere som skal sikre våre kunder de beste produkter og tjenester;
• I forbindelse med forberedelse av salget, innhenter vi informasjon om eiendommen hovedsakelig fra vår samarbeidspartner Amibita.
• Gjensidige leverer boligselgerforsikring og tilbyr bygningsforsikring
• Boligkjøperforsikring leveres av Hiscox og med Sedgwick som skadebehandler, og er formidlet gjennom Gjensidige.
• BN bank tilbyr finansieringsløsninger
• Vår avdeling Krogsveen Pluss tilbyr flyttetjenester som utvask, visningsvask, lager, tømming og transport av flyttelass, i tillegg til å formidle kontakt med Flip for overflateoppussing.
• I forbindelse med overtagelse av eiendommen tilbyr Overo avtale om strøm, alarm og bredbånd.
• Krogsveen er, sammen med øvrige bransjeaktører, medeier i den digitale annonseringsplattformen Hjem som eies av Bomega AS.
Opplysninger om oppdraget
Oppdragsnummer 10-0377/25
Eiendomsmegler Krogsveen AS, avd. Bærum
Gml. Ringeriksvei 40, 1357, BEKKESTUA
950 007 613
Oppdragets KR-kode KR10.25377
Dato
Sist oppdatert: 13. mai 2026 kl. 18:05
Dokumenter
Dokumenter
PDF – 1024 KB
PDF – 635 KB
PDF – 939 KB
PDF – 312 KB
PDF – 29 KB
PDF – 127 KB
PDF – 392 KB
Område
Legg til steder som er viktige for deg
Visning
Unngå doble boligrenter
Vi tilbyr gunstig forsikring.
Vurderer du utleie?
Få et tilbud fra Utleie KrogsveenHva koster lånet?
Sjekk estimert lånekostnadVil du varsles om lignende boliger?
Ved å lagre ditt boligsøk hos oss får du beskjed når vi har en bolig som ligner denne, før den legges ut på markedet!

















































































