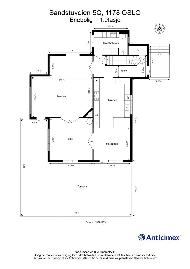
Sandstuveien 5C
19 700 000 kr
303 m²
4 soverom
Solgt
Bekkelaget
Stor og flott villa på 303 kvm | Solrikt | 2 garasjeplasser | Barnevennlig rett ved Holtet hageby
Prisantydning
19 700 000 krOmkostninger
513 490 krTotalpris
20 213 490 kr
Pris
Bruksareal
303 m²BRA-I (internt bruksareal)
303 m²TBA (terrasse-balkongareal)
82 m²
Areal
Byggeår
1921Soverom
4 soveromBad
2 badType
Enebolig - FrittliggendeEierform
EierseksjonFasiliteter
Garasje/P-plass og Balkong/TerrasseEnergimerke
Rød G
Nøkkelinfo
Unngå doble boligrenter
Vi tilbyr gunstig forsikring.
Vurderer du utleie?
Få et tilbud fra Utleie KrogsveenHva koster lånet?
Sjekk estimert lånekostnadBeskrivelse
Kort om eiendommen
Velkommen til Sandstuveien 5C, en solrik og flott klassisk villa ved Holtet hageby.
Stor frittliggende villa på 303 kvm BRA-i
En lekker bolig der det er lagt vekt på å bevare husets klassiske karakter og sjarme
Romslig og innholdsrik planløsning
Flere stuer i 1. etasje og tv-stue i 2. etasje
Påkostet kjøkken fra eksklusive Crown Imperial
4 soverom
3 ildsteder
Stor og solrik hage
Vestvendt balkong i 2. etasje med sjøgløtt
2 garasjeplasser med elbillader i felles garasjeanlegg
Barnevennlig beliggenhet i attraktivt villaområde
Umiddelbar nærhet til Ekebergsletta
Umiddelbar nærhet til Bekkelaget skole og Brannfjell ungdomsskole
Kun 3-4 minutter å gå til trikkeholdeplassen
Kort vei til servicetilbud på Holtet
Område
Legg til steder som er viktige for deg
På flyttefot? Tenk kjøp og salg samtidig.
Få din egen rådgiver gjennom hele kjøps- og salgsprosessen. Det starter med en verdivurdering.
Unngå doble boligrenter
Vi tilbyr gunstig forsikring.
Vurderer du utleie?
Få et tilbud fra Utleie KrogsveenHva koster lånet?
Sjekk estimert lånekostnadVil du varsles om lignende boliger?
Ved å lagre ditt boligsøk hos oss får du beskjed når vi har en bolig som ligner denne, før den legges ut på markedet!
På flyttefot? Slik gjør vi det enklere for deg
Skreddersydd flyttepakke
Vi fikser håndverkere, vask, pakking, lagring og transport, og legger ut for utgiftene underveis.
Hjelp med både kjøp og salg
Hos oss har du din egen rådgiver gjennom hele kjøps- og salgsprosessen.
Hjelp til finansiering
Vårt samarbeid med BN Bank sikrer deg rask og løsningsorientert hjelp, til konkurransedyktige betingelser.




