Velkommen til Bergliots vei 45, en innholdsrik bolig med pent opparbeidet tomt i rolige og barnevennlige omgivelser i blindvei.
Krogsveen avd. Sandnes ved Tom Christer Hovde, inviterer til visning på denne attraktive eiendommen.
Foto: Kristine Tofte
Kart

Bergliots vei 45

4 490 000 kr

177 m²

3 soverom

Komplett salgsoppgave

Tom Christer Hovde
Presenteres av
Tom Christer Hovde

Hommersåk

Innholdsrik enebolig med pent opparbeidet og solrik tomt. Eiendommen grenser til friareal ved flotte Frøylandsvatnet.

    Pris

  • Prisantydning

    4 490 000 kr

  • Omkostninger

    133 240 kr

  • Totalpris

    4 623 240 kr

    Areal

  • Bruksareal

    207 m²

  • BRA-I (internt bruksareal)

    177 m²

  • BRA-E (eksternt bruksareal)

    30 m²

  • TBA (terrasse-balkongareal)

    54 m²

    Nøkkelinfo

  • Byggeår

    1983

  • Soverom

    3 soverom

  • Bad

    2 bad

  • Tomteareal

    452 m² (eiet)

  • Type

    Enebolig - Frittliggende

  • Eierform

    Eiet

  • Fasiliteter

    Garasje/P-plass og Balkong/Terrasse

  • Årlig velavgift

    200 kr

Unngå doble boligrenter

Vi tilbyr gunstig forsikring.

Hva koster lånet?

Sjekk estimert lånekostnad

Beskrivelse

Kort om eiendommen

Krogsveen Sandnes ved Tom Christer Hovde, har gleden av å presentere en pen og innholdsrik enebolig med attraktiv beliggenhet i Maudland på Hommersåk. Dette er et flott område for barnefamilier, blant annet for sin nærhet til skole, barnehage, herlige turområder og ikke minst bademuligheter. Rundt boligen er det usjenerte uteområder som nyter herlige solforhold om sommeren i tillegg til vakker beplantning/opparbeidelse.

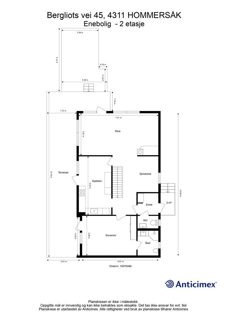
Boligen går over to plan og inneholder blant annet 4 soverom (3 godkjente), 2 stuer, 2 bad, gjeste wc, vaskerom, romslig kjøkken med spiseplass m.m. Det er også frittstående garasje på eiendommen.

Innhold og byggemåte

Eiendommen

Bergliots vei 45, 4311 HOMMERSÅK
Kommunenummer 1108, gårdsnummer 102, bruksnummer 420

Innhold

Totalt bruksareal BRA: 207 kvm

BRA-i:
Enebolig:
Sokkeletasje: 85 kvm: Gang, bad med badekar, vaskerom, badstue, TV-stue, 2 boder, 3 soverom (ene ikke godkjent)
1 etasje: 92 kvm: Entré, gjeste wc, bad med dusj, kjøkken, stue med spisestue del og soverom,

BRA-e:
Enebolig:
Sokkeletasje: 7 kvm: Utvendig bod

Garasje:
1. etasje: 23 kvm: Garasje

Åpent areal:
Enebolig:
1. etasje 54 kvm: Terrasse, platting

Vedlagte plantegninger er ikke målbare. De oppgitte arealer er hentet fra rapport med befaringsdato 22.10.2025 utført av Anticimex v/ Yngve Paulsen. Arealene er beregnet og rom er definert etter dagens faktiske bruk, uavhengig av hva som er godkjent av bygningsmyndighetene.

Byggemåte

Selger har fått utarbeidet en tilstandsrapport, dvs. en teknisk gjennomgang av boligen hvor eventuelle avvik, risiko for kjøper og prisoverslag for hva som bør gjøres av oppgradering, er skissert. Se særskilt TGIU (tilstandsgrad ikke undersøkt), samt TG2 og TG3 som viser hva som er boligens normale slitasje, alder og type, hva som er avvik fra dette og hva som bør/må utbedres. Rapporten og selgers egenerklæring er en del av salgsoppgaven og må leses nøye før bud inngis. Kjøper overtar ansvaret for de opplysninger som fremkommer av salgsdokumentasjonen, og kan ikke gjøre gjeldende som mangel noe som burde vært kjent eller som ikke kan anses å ha betydning for avtalen.  

Bygningen er iht. tilstandsrapporten oppført: Grunnmur av lecablokker. Fundamentert på ukjent byggegrunn. Yttervegger av trekonstruksjoner. Fasaden er kledd med stående og liggende trekledning. Etasjeskillere av trekonstruksjoner. Saltak i trekonstruksjoner (ikke besiktiget). Yttertak er utvendig tekket med takstein. Entrédør med glassfelt. Vinduer, balkong og skyvedør med karmer av tre, og to/tre-lags glass . Les for øvrig mer om byggemåte og den tekniske tilstanden i rapporten.

Det gjøres spesielt oppmerksom på:
Rapporten inneholder 52% TG1 (i orden), 40% TG2 (alder, slitasje, skader mv.), 0% TG3 (strakstiltak nødvendig), 8% TGIU (ikke undersøkt).

Utover vanlig bruksslitasje og alder, er TG2 gitt på følgende:

Våtrom - Bad 2 etasje:
- Slukets plassering i forhold til at vann utenfor dusjsonen kan nå det: Sluket er isolert inne i dusjsonen. Vannsøl eller lekkasjevann utenfor denne sonen har ingen/redusert mulighet til å nå sluket.
- Sanitærutstyr/innredning:Ovenpåliggende servant er skjevt montert.
-Overflater vegger: Vinduets plassering i våtsone er uegnet. Fare for fukt i konstruksjon. Vindu bør skjermes. Det er observert hull i veggflis i dusjsonen. Fare for fuktinntregning i konstruksjonen.
- Fallforhold gulv: Det registreres utilstrekkelig fall til sluk i dusjsonen etter vanntest. Fallforholdet fører ikke til avrenning av alt bruksvannet i nedslagsfeltet.

Våtrom - vaskerom:
- Overflater gulv: Det er riss/sprekker i gulvfliser ved vegg mot soverom.
- Membran, tettesjikt og overgang til sluk: Det kan ikke verifiseres om det er benyttet tilstrekkelig tettesjikt på våtrommets gulvflater/veggflater, eventuelt bør nytt tettesjikt etableres.

Våtrom - Bad 1 etasje:
- Overflater gulv: Det registreres bomlyd (tegn til hulrom) under enkelte gulvfliser.

Øvrige rom:
- Overflater gulv: Det er stedvis knirk/svikt i gulvflater.

Rom under terreng:
- Konstruksjoner: Det er foretatt hulltaking og utført fuktmåling med egnet instrument (Protimeter MMS), i utlektet kjellevegg. Det ble registrert forhøyede fuktverdier. Målingen gir kun et øyeblikksbilde av forholdene og kan endre seg med årstider, fukt- og temperaturforhold. Målingene viser følgende: RH 90,8 %, temperatur 13,2 grader C og duggpunkt 11,8 grader C. Dette kan indikere utettheter/funksjonssvikt. Årsak bør avklares og videre fukttilførsel bør stoppes.

Loft - uinnredet/råloft
- Overflater vegger/undertak: Svertesopp/fuktskjolder observert i undertak ved pipe. Ventiler i yttervegger mangler insektsnetting. Salt/kalkutslag observert på pipe ved kaldtloft.

Yttervegger inkl. fasader og konstruksjon:
- Fasader ink. kledning: Panel er stedvis serkt slitt/råteskadet (ifølge selger er dette øvre del av fasade på vestsiden og ca 5-6 bordlengder) Vegetasjon observert inntil yttervegger. Fare for mose/råteskader.

Balkonger, terrasser, veranda etc:
- Utkragede eller understøttede konstruksjoner: Overflatebehandlingen er slitt/manglende og trenger fornying. Mose er observert på undersiden.

Terrasser/platting på terreng:
- Platting på terreng: Plattingen har høy slitasje/manglende behandling.

Grunnmur, fundamenter:
- Grunnmur: Salt/kalkutslag observert på grunnmurens innside. Ses I sammenheng med alder på dreneringen, samt fuktmåling i kjellervegg.

Drenering:
- Helhetsvurdering

Se supplerende tekst i tilstandsrapporten og selgers egenerklæringsskjema. Kjøper overtar ansvar og risiko for dette. 

Moderniseringer og påkostninger

Selger opplyser følgende:
- 2012: Byttet ut vinduer og balkongdør på kjøkken
- 2014: Nytt sikringsskap
- 2023: Ny varmtvannsbereder

Løsøre og tilbehør

Vi viser til liste fra Norges Eiendomsmeglerforbund som gjelder fra 01.01.2020 angående løsøre og tilbehør.

Kun integrerte hvitevarer som kjøleskap, stekeovn og oppvaskmaskin medfølger i handelen. I tillegg medfølger fryseskap i bod i sokkeletasjen.

Oppvarming

Peisovn og varmepumpe i stue. Vedovn i TV stue i sokkeletasjen.

Varmekabler i gulv på:
Sokkeletasje: grovgang/vaskerom, bad og gang
1.etg: bad

Dersom beboelsesrom ikke har vegg- eller fastmonterte varmekilder ved visning, følger dette heller ikke med. 

Ferdigattest/brukstillatelse

Det foreligger ikke ferdigattest på eiendommen, men midlertidig brukstillatelse ble gitt 28.06.1983.

Tillatelsen er gitt på følgende vilkår:
Underetg.:
1. Taping av langsgående skjøter på gipsplater i himling i.h.h. til godkjenning fra Statens branninspeksjon.
2. Div. innredningsarbeider.
Utvendig:
1. Permanent hovedtrapp med rekkverk.
2. Puss av grunnmur.
3. Planering med fall fra huset.

Det er uklart om dette er utført. Kjøper overtar ansvaret for dette.

Det foreligger tillatelse til Garasje, datert 25.05.1988. Det foreligger ikke ferdigattest på denne.

Det gjøres oppmerksom på at det ikke lenger utstedes ferdigattest på tiltak det er søkt om før 1998 jf. plan- og bygningsloven § 21-10. Kommunen vil ikke kreve ferdigattest for disse tiltakene og vil avvise eventuelle søknader. Bestemmelsen innebærer ikke at tiltak med manglende søknad blir lovlige, men at man ikke trenger å avslutte gamle byggesaker. Normalt sett kreves ferdigattest for alle søknadspliktige tiltak som gjøres etter plan- og bygningsloven. 

Soverom i 1.etg. som ligger nærmest vaskerom er opprinnelig byggemeldt som disponibelt rom jf. godkjente byggetegninger og er ikke godkjent til varig opphold. Innredning av rommene til bruk for varig opphold er ikke bruksendret/omsøkt og er heller ikke godkjent av kommunen. Konsekvensen ved søknad kan være at rommet ikke godkjennes som varig opphold og at rommet da må brukes som bod/midlertidig oppbevaring. 

På fasade vest er der foretatt en fasadeendring. I dag er det her en terrassedør og vindu, samt to små vinduer. Opprinnelig er det godkjent to store gulv til tak vinduer. Det er ikke søkt om fasadeendring.

Kjøper overtar alt ansvar, kostnad og risiko for dette videre. 

Tinglyste heftelser og rettigheter

Eiendommen overdras fri for pengeheftelser.

På eiendommen er det tinglyst følgende heftelser og rettigheter som følger eiendommens matrikkel ved overskjøting til ny hjemmelshaver:

1108/102/420:
14.09.1981 - Dokumentnr: 6965 - Erklæring/avtale
Pliktig medlemskap i huseierforening/velforening m.v.

14.09.1981 - Dokumentnr: 6965 - Erklæring/avtale
Bestemmelse om anlegg og vedlikehold av ledninger m.v.

Eventuell adgang til utleie

Eiendommen har ikke separat utleieenhet. Det vil normalt være anledning til utleie av hele eiendommen eller enkeltrom, såfremt utleiearealet er bygningsmessig godkjent for varig opphold og har forsvarlige radonnivåer. 

Beliggenhet og tomteforhold

Beliggenhet

Boligen har en god plassering på Maudland. Her er det kort vei til skoler, barnehager (Maudland skole, 1-7 klasse og Maudland FUS Barnehage er bare snaue 500 meter unna) og ikke minst noen helt utrolige turområder. Få minutter er det også inn til flere dagligvare butikker og gode servicetilbud. Det er i tillegg kort gangavstand til badeplass/gapahuk og ved Frøylandsvatnet som ligger foran eiendommen. Et yndet rekreasjonsareal for beboere i området.
For pendlere er det gode kollektivmuligheter: Fra bussholdeplassen kort vei unna, går det hyppige avganger til Sandnes og fra kaien på Hommersåk kan du ta båten til Stavanger - en praktisk og naturskjønn reisevei til jobb eller byliv om man ønsker det.

Adkomst

Veibeskrivelse Se Google maps - det er enkelt å finne frem i kartet.

Det vil bli skiltet med Krogsveen visningsskilt ved fellesvisninger.

Barnehager, skoler og fritid

Barnehager:
- Maudland Fus barnehage 0,5 km
- Riska barnehage 1,8 km
- Hommersåk barnehage 1,9 km

Skoler:
- Maudland skole (1-7 kl.) 0,5 km
- Hommersåk skole (1-7 kl.) 1,6 km
- Kyrkjevollen skole (1-7 kl.) 2,7 km
- Riska ungdomsskole (8-10 kl.) 1,9 km
- Vågen videregående skole 13,2 km
- Gand videregående skole 14,7 km

Informasjon om tilhørende skolekretser er hentet fra Prognosesenteret som dataleverandør, og tilhørigheten kan årlig endres av kommunen. Dersom skole- og barnehagetilbud er av betydning for kjøpet, ber vi om at det rettes en særskilt henvendelse til kommunen for oppdatert informasjon.

Beskrivelse av tomt

Eiertomt på 452 kvm.

Bergliots vei 45 ligger i ende av en rolig og barnevennlig blindvei. Tomten er flott opparbeidet med belegningsstein i gårdsrom, diverse beplantninger og et meget romslig og anvendelig plenareal. Perfekt for både barnelek og moro med familie og venner. Det er også etablert lun solplatting bak garasjen og hele utearealet må sies være godt skjermet og privat. Hagen er virkelig et lekkert skue når det blomstrer og spirer, med nydelige trær/hekker/busker. Her er det plomme og epletre, samt solbær og rips busker bare for å nevne noe.

Selger opplyser at tomten er utvidet med ca 3 meter i forkant mot friområdet, i forståelse med kommunen. Dette ble muntlig akseptert og oppfordret til under bygging av boligen og har vært slik siden 1983 ifølge selgere. Samme gjelder for naboeiendommene. Tomtegrensen er ikke endret, så tomten strekker seg ca. 3 meter ut over tomtegrensen på grunnkart.
Kjøper overtar risiko og ansvar for dette videre.

Oppgitt tomteareal er hentet fra digitalt eiendomskart fra Sandnes kommune. Oppgitt/anslått areal kan derfor avvike fra nøyaktig areal.

Parkering

Parkering i garasje på egen tomt.

Vei, vann og avløp

Eiendommen har adkomst via kommunal vei.

Eiendommen er tilknyttet kommunalt ledningsnett via private stikkledninger. Eier er selv ansvarlig for private stikkledninger til boligen.

Regulerings-og arealplaner

Eiendommen er regulert til bolig i henhold til reguleringsplan Id 79323-01 "Bebyggelsesplan for delfelt I, Maudlandslia" datert 15.12.1980 med tilhørende reguleringsbestemmelser.

Eiendommen følger kommuneplan:
Id 202005
Navn Kommuneplan for Sandnes 2023-2038
Plantype 20 - Kommuneplanens arealdel
Status 3 - Endelig vedtatt arealplan
Ikrafttredelse 15.05.2023

Reguleringsplan:
Id 84103
Navn Regulerings- og bebyggelsesplan for Maudlandslia delfelt 4
Plantype 30 - Eldre reguleringsplan
Status 3 - Endelig vedtatt arealplan
Ikrafttredelse 13.11.1984
Delarealer: Regform 400 - Offentlig friområde

Id 79323-01
Navn Bebyggelsesplan for delfelt I, Maudlandslia
Plantype 32 - Bebyggelsesplan ihht. Reguleringsplan
Status 3 - Endelig vedtatt arealplan
Ikrafttredelse 12/15/1980
Delarealer: Feltnavn
Regform 330 - Gatetun
Areal 452.08 kvm

Reguleringsplan under arbeid i nærheten (100 meter):
Id 202503
Navn Detaljregulering tursti Frøylandsvatnet
Plantype 35 - Detaljregulering
Status 1 - Planlegging igangsatt
- Formålet med detaljreguleringen er å tilrettelegge for gruset tursti/turveg med belysning langs Frøylandsvatnet på Hommersåk.

Ca 5,5 kvm av tomten som grenser mot friareal ligger i et området merket med flomfare.

Utsnitt av plan med tilhørende bestemmelser kan fås ved henvendelse til megler.

Økonomi

Kommunale utgifter

Kommunale avgifter er kr 21.207,- for inneværende år. I dette inngår gebyr for vann, avløp, renovasjon og feiing/tilsyn.

Nåværende eier har et strømforbruk som tilsvarer ca. kr 12.000,- pr. år.
I selgers husstand har det bodd to mennesker og det opplyses om at strømforbruket har vært ca 12.000 kwh pr år.
Boligen har en årlig forsikringspremie på kr 8.371,-.
Velavgift er kr 200 pr. år.
Boligen er tilknyttet Lyse som leverandør av kabel-tv og internett og har samlet avgift på kr 869 pr. mnd. Tv-tuner/dekoder medfølger ikke.

Utgiftene er basert på nåværende eiers forbruk og avtaler.

Selger har avtalt Norgespris på strøm på eiendommen frem t.o.m 31.12.2026, og denne er pt på kr 50 øre inkl mva. Nettleie, avgifter og påslag fra kraftleverandøren kommer i tillegg. Er det fjernvarme vil det også komme kostnader i tillegg.

Denne avtalen vil følge eiendommen i den avtalte perioden.

Les mer om Norgespris her: https://www.regjeringen.no/no/aktuelt/legg-fram-lov-om-norgespris-pa-straum-og-fjernvarme/id3102642/

Formuesverdi

Formuesverdi for 2024 var kr 1 191 780,- ifølge Skatteetaten. Beløpet forutsetter at eier bor fast i boligen (primærbolig).

Ved eventuell øvrig bruk av eiendommen (f.eks. fritidsbolig, pendlerbolig, utleieobjekt) var formuesverdien for 2024 kr 4 767 118,-.

Formuesverdien justeres normalt årlig.

Fra 2026 har Stortinget vedtatt en oppdatert modell for beregning av formuesverdi for primærbolig, så avvik kan forekomme.
For mer informasjon se skatteetaten.no

Eiendomsskatt

Det er p.t ikke vedtatt eiendomsskatt for eiendommer i kommunen.

Omkostninger

4 490 000,00 Prisantydning

Omkostninger

112 250,00  Dokumentavgift til staten (2,5% av kjøpesum)
19 900,00  Gjensidige Boligkjøperpakke (valgfri)
545,00  Tinglysing panterettsdokument
545,00  Tinglysing skjøte
--------------------------------------------------------
133 240,00 Omkostninger totalt

--------------------------------------------------------
4 623 240,00 Totalpris inkl. omkostninger

--------------------------------------------------------

Totalpris inkl. omkostninger forutsetter kjøp til prisantydning.
Det tas forbehold om endringer i avgifter og gebyrer.

Tilbud om lånefinansiering

Megler formidler gjerne kontakt med rådgiver hos vår samarbeidspartner BN Bank. De har konkurransedyktige betingelser samt rask og løsningsorientert behandling av din lånesøknad. Krogsveen mottar et honorar dersom lån opprettes. 

Betalingsbetingelser

Kjøpesum inkludert omkostninger, samt pantedokument tilknyttet eventuelt lån, skal være disponibelt hos megler 2 virkedager før overtagelsen.

Annen viktig informasjon

Eier

Ola Bjelland

Overtakelse

Etter nærmere avtale.

Velforening

Boligen er tilknyttet Kanakkamyrveien velforening, og de forpliktelser det medfølger.

Boligselgerforsikring

Selger har i forbindelse med salget tegnet boligselgerforsikring levert av Gjensidige.  
Boligselgerforsikringen dekker selgers ansvar etter avhendingsloven begrenset oppad til kr 14 millioner. Dersom kjøper oppdager forhold ved eiendommen som hen mener utgjør en mangel ved eiendommen, vil Gjensidige behandle reklamasjonen på vegne av selger. Forsikringsvilkår kan fås ved henvendelse til megler.  

Vedlagt salgsoppgaven følger selgers egenerklæringsskjema og tilstandsrapport. Interessenter må sette seg inn i dokumentene før bud inngis. 

Boligkjøperforsikring

Innen kontraktsmøtet må kjøper ta stilling til om det ønskes å bestille Boligkjøperpakken gjennom Gjensidige. I denne gunstige pakken er boligen ferdig forsikret og inkluderer rettshjelpsforsikring, også kalt Boligkjøperforsikring. Rettshjelpsforsikring gir trygghet og tilgang på profesjonell juridisk hjelp dersom det oppdages uventede feil eller mangler det første året etter overtagelse. Forsikringsselskapet behandler i så fall ethvert mangelskrav kjøper måtte ha overfor selger. 

Boligkjøperpakken inkluderer bygningsforsikring for hus og hytte, innboforsikring, flytteforsikring og dobbel rentedekning - i situasjoner hvor kjøper ikke får solgt nåværende primærbolig.   

Kjøper mottar ingen særskilt faktura for Boligkjøperpakken da kostnaden det første året legges til kjøpesummen for boligen. Det gjøres oppmerksom på Krogsveen mottar et honorar for denne formidlingen.
Produktark for Boligkjøperpakken ligger vedlagt i salgsoppgaven.  

Dersom ikke boligkjøperpakke ønskes kan kun rettshjelpsforsikring, også kalt boligkjøperforsikring, tegnes særskilt via megler. Rettshjelpsforsikringen varer i 5 år fra overtagelse og leveres gjennom Gjensidige. Ta kontakt med megler for ytterligere informasjon. 

Selskap og privatpersoner som driver med kjøp/salg/utvikling som ledd i egen næringsvirksomhet kan ikke tegne boligkjøperpakke eller rettshjelpsforsikring. 

Budgivning

Forbrukerinformasjon om budgivning er vedlagt denne salgsoppgaven og er også på vår hjemmeside Krogsveen.no. Alle bud og budforhøyelser må inngis skriftlig. I tillegg må legitimasjon være fremlagt sammen med signatur fra budgiver.

Vi oppfordrer til å gi bud elektronisk via GI BUD-knappen på eiendommens hjemmeside på Krogsveen.no. Da vil samtlige vilkår bli oppfylt.  
Eventuelle forhøyelser eller endringer av budet kan bekreftes pr SMS eller på e-post. Vi oppfordrer alltid til å kontakte megler pr. telefon i tillegg da forsinkelser i SMS og e-post kan forekomme.

For at budene skal kunne bli behandlet og videreformidlet skriftlig til alle involverte parter, må alle bud ha en tilstrekkelig lang akseptfrist, jf. eiendomsmeglingsforskriften § 6-3.

Selger må også skriftlig akseptere budet før aksept kan formidles til budgiver. Akseptfrist bør derfor være på minimum 30 minutter, og budforhøyelser må derfor skje i god tid før fristens utløp.

Bud i forbrukerforhold kan uansett ikke settes med kortere frist enn kl. 12.00 første virkedag etter siste annonserte visning. I tillegg kan ikke budet ha forbehold om at det skal holdes hemmelig ovenfor øvrige interessenter. Megler har iht lov om eiendomsmegling ikke anledning til å videreformidle disse budene, og de vil dermed heller ikke bli journalført.

Etter at eiendommen er solgt vil kjøper og selger få tilsendt budjournal. Øvrige budgivere kan få utlevert kopi av budjournalen i anonymisert form.

Hvitvaskingsreglene

I henhold til lov om hvitvasking og terrorfinansiering har megler plikt til å gjennomføre kontrolltiltak overfor kunder, herunder fullmektiger. Dette innebærer bl.a. å bekrefte kunders og reelle rettighetshaveres identitet på bakgrunn av fremvist gyldig legitimasjon eller på annen godkjent måte, samt å innhente opplysninger om kundeforholdets formål og tilsiktede art.
Dersom slike kundetiltak ikke kan gjennomføres, kan megler ikke etablere kundeforholdet eller utføre transaksjonen.
Hvis kjøper ikke bidrar til gjennomføring av kundekontrollen og dette fører til at transaksjonen blir forsinket eller ikke kan gjennomføres, vil dette ansees som mislighold av avtalen og gi selger rettigheter etter avhendingslova kapittel 5. I tilfeller der selger ikke bidrar til gjennomføring av løpende kundekontroll underveis i oppdraget, er det selger som misligholder sine forpliktelser etter avtalen og gi kjøper rettigheter etter avhendingslovens kapittel 4. Partene er selv ansvarlige for eventuelle kostnader og ansvar dette kan medføre. Eiendomsmegleren eller eiendomsmeglingsforetaket kan ikke holdes ansvarlig for de konsekvenser dette vil kunne få for partene eller andre som har interesser i eiendomshandelen.

Kjøper oppfordres til å innbetale kjøpesummen som ikke kommer fra låneinstitusjon i én samlet innbetaling fra egen konto i norsk bank. Megler har plikt til å melde fra til Økokrim om eiendomshandler som fremstår som mistenkelige. Melding sendes Økokrim uten at partene varsles. 

Personopplysningsloven

I henhold til personopplysningsloven gjør vi oppmerksom på at interessenter kan bli registrert for videre oppfølging.

Lovanvendelse

Generelle bestemmelser
Salgsoppgaven er basert på de opplysningene selger har gitt til megler, den bygningssakyndiges tilstandsrapport, samt opplysninger innhentet fra kommunen, Kartverket og andre tilgjengelige kilder. Det er viktig at kjøper setter seg grundig inn i alle salgsdokumentene, herunder salgsoppgave, tilstandsrapport og selgers egenerklæring. Kjøper anses kjent med forhold som er tydelig beskrevet i salgsdokumentene, og slike forhold kan ikke påberopes som mangler. Dette gjelder uavhengig av om kjøper har lest dokumentene. Alle interessenter oppfordres til å undersøke eiendommen nøye, gjerne sammen med fagkyndig før bud inngis. Kjøper som velger å kjøpe usett kan ikke gjøre gjeldende som mangel noe han burde blitt kjent med ved undersøkelsen. 

Dersom det er behov for avklaringer, anbefaler vi at interessenter rådfører seg med eiendomsmegler eller egne rådgivere før det legges inn bud.

En bolig som har blitt brukt i en viss tid, har vanligvis blitt utsatt for slitasje og skader kan ha oppstått. Slik bruksslitasje må kjøper regne med, og det kan avdekkes enkelte forhold etter overtakelse som nødvendiggjør utbedringer. Normal slitasje og skader som nødvendiggjør utbedring, er innenfor hva kjøper må forvente og vil ikke utgjøre en mangel.

Kjøper og selgers rettigheter og plikter reguleres av avtalen mellom partene, samt informasjonen som har vært tilgjengelig for kjøperen i forbindelse med handelen. Avtalen utfylles av avhendingsloven, og det gjelder ulike avtalevilkår avhengig av om kjøper er forbrukerkjøper eller ikke.  Dette er nærmere beskrevet nedenfor. 

På grunn av ulike avtalevilkår kan selger vurdere bud fra en som ikke er forbruker, ulikt fra en forbrukers bud. Dersom kjøper ikke er forbruker, er selger sitt mulige mangelsansvar begrenset fordi eiendommen selges "som den er".  Selger kan ikke ta «som den er»- forbehold overfor en forbrukerkjøper. Selv et lavere bud fra en som ikke er forbruker kan foretrekkes fordi begrensningen i mulig mangelsansvar kan ha egenverdi for selger. Selger står fritt til å forkaste eller akseptere ethvert bud, og er for eksempel ikke forpliktet til å akseptere høyeste bud.

Budgiver skal i budskjema avgi egenerklæring om budgiver er forbruker eller næringsdrivende/ person som hovedsakelig handler som ledd i næringsvirksomhet. Budgivere får informasjon dersom andre bud er inngitt av en som ikke er forbruker. 

Forbrukerkjøp - definisjon
Med forbrukerkjøp menes kjøp av eiendom når kjøperen er en fysisk person som ikke hovedsakelig handler som ledd i næringsvirksomhet.

Forbruker – avtalevilkår
Eiendommen har en mangel dersom den ikke er i samsvar med kravene som følger av avtalen, eller det foreligger brudd på bestemmelsene i avhendingsloven §§ 3-2 til 3-8. Hvis eiendommen ikke er i samsvar med det kjøperen må kunne forvente ut ifra alder, type og synlig tilstand, kan det være grunnlag for mangelskrav. Det samme gjelder hvis det er holdt tilbake eller gitt uriktige opplysninger om eiendommen. Dette gjelder likevel bare dersom man kan gå ut ifra at det virket inn på avtalen at opplysningen ikke ble gitt eller at mangelskravet ikke blir rettet i tide på en tydelig måte.

Boligen kan ha en mangel etter avhendingsloven § 3-3 andre ledd, dersom det er avvik mellom opplyst og faktisk innvendig areal, forutsatt at avviket er på 2% eller mer og minimum 1 kvm.

Ved beregning av et eventuelt prisavslag eller erstatning må kjøper selv dekke tap/kostnader opptil et beløp på kr 10 000 (egenandel).

Ikke-forbruker (næringsdrivende) – definisjon 
Hvis kjøper er en juridisk person, eller en fysisk person som hovedsakelig handler som ledd i næringsvirksomhet, vil kjøpet ikke anses som et forbrukerkjøp. 

Ikke-forbruker – avtalevilkår
Eiendommen har en mangel dersom den ikke er i samsvar med kravene som følger av avtalen.
Eiendommen selges «som den er», og selgers ansvar utover det konkret avtalte er da begrenset etter avhendingsloven § 3-9, første ledd andre setning. 

Avhendingsloven § 3-3 andre ledd fravikes, og hvorvidt boligens arealsvikt utgjør en mangel vurderes etter avhendingsloven § 3-8. 

Informasjon om kjøpers undersøkelsesplikt, herunder oppfordringen om å undersøke eiendommen nøye, gjelder også for kjøpere som ikke anses som forbrukere.

Det forutsettes at hjemmel overføres til kjøper. Hvis kjøper ikke ønsker hjemmelsoverføring av eiendommen, må det tas forbehold om dette i budet.

Meglers vederlag

Meglers vederlag betales av selger og er avtalt til:
Vederlag er kr 50 000,00

Vederlag:
Kontroll av hjemmel og heftelser  kr 2 900,00
Markedsføringspakke  kr 26 900,00
Oppgjør  kr 7 500,00
Salgsoppgaver vanlige  kr 3 600,00
Tilrettelegging  kr 17 000,00

Utlegg:
Innhenting av offentlig opplysninger Sandnes kommune  kr 3 405,00
Tinglysing sikring  kr 545,00

Andre utgifter:
Boligstyling/rådgivning  kr 1 790,00
Foto  kr 6 500,00
Foto utvendig / drone  kr 3 125,00

Vi er opptatt av verdiskapning, og har knyttet til oss samarbeidspartnere som skal sikre våre kunder de beste produkter og tjenester; 
• I forbindelse med forberedelse av salget, innhenter vi informasjon om eiendommen hovedsakelig fra vår samarbeidspartner Amibita.
• Gjensidige leverer boligselgerforsikring og tilbyr bygningsforsikring
• Boligkjøperforsikring leveres av Hiscox og med Sedgwick som skadebehandler, og er formidlet gjennom Gjensidige.
• BN bank tilbyr finansieringsløsninger
•  Vår avdeling Krogsveen Pluss tilbyr flyttetjenester som utvask, visningsvask, lager, tømming og transport av flyttelass, i tillegg til å formidle kontakt med Flip for overflateoppussing.
• I forbindelse med overtagelse av eiendommen tilbyr Overo avtale om strøm, alarm og bredbånd.
• Krogsveen er, sammen med øvrige bransjeaktører, medeier i den digitale annonseringsplattformen Hjem som eies av Bomega AS.

Opplysninger om oppdraget

Oppdragsnummer 36-0047/25
Eiendomsmegler Krogsveen AS, avd. Sandnes
Brannstasjonsveien 8, 4312, SANDNES
950 007 613
Oppdragets KR-kode KR36.2547

Dato

Sist oppdatert: 07. februar 2026 kl. 22:35

Dokumenter

Utskriftsvennlig salgsoppgave

Område

Legg til steder som er viktige for deg

Prisutvikling for området

Kvadratmeterpris

0 kr/m²

Endring

↘︎ % ()

Visning

For å delta på visning, ber vi om at du melder deg på. Da sikrer vi at du får nødvendig informasjon og at det er satt av tilstrekkelig med tid. Kontakt megler dersom annet tidspunkt ønskes. Husk å lese salgsoppgaven før visningen, så du stiller forberedt.
Ønsker du kun å bli holdt orientert, kan du fra eiendommens hjemmeside få varsel om solgtpris, eller kontakte megler.

Lurer du på noe?

Unngå doble boligrenter

Vi tilbyr gunstig forsikring.

Hva koster lånet?

Sjekk estimert lånekostnad

Vil du varsles om lignende boliger?

Ved å lagre ditt boligsøk hos oss får du beskjed når vi har en bolig som ligner denne, før den legges ut på markedet!

På flyttefot? Slik gjør vi det enklere for deg

Skreddersydd flyttepakke

Vi fikser håndverkere, vask, pakking, lagring og transport, og legger ut for utgiftene underveis.

Hjelp med både kjøp og salg

Hos oss har du din egen rådgiver gjennom hele kjøps- og salgsprosessen.

Hjelp til finansiering

Vårt samarbeid med BN Bank sikrer deg rask og løsningsorientert hjelp, til konkurransedyktige betingelser.