Herumveien 12
14 900 000 kr
464 m²
6 soverom
Komplett salgsoppgave
Ås
Sjelden eiendom med stort potensiale, nær NMBU og Ås sentrum. Enebolig med tilhørende leilighet. Oppussingsbehov.
Prisantydning
14 900 000 krOmkostninger
393 490 krTotalpris
15 293 490 kr
Pris
Bruksareal
493 m²BRA-I (internt bruksareal)
464 m²BRA-E (eksternt bruksareal)
29 m²TBA (terrasse-balkongareal)
41 m²
Areal
Byggeår
1939Soverom
6 soveromBad
2 badTomteareal
3 785 m² (eiet)Type
Hel 2-mannsboligEierform
EietFasiliteter
Garasje/P-plass og Balkong/TerrasseEnergimerke
Lysegrønn D
Nøkkelinfo
Unngå doble boligrenter
Vi tilbyr gunstig forsikring.
Vurderer du utleie?
Få et tilbud fra Utleie KrogsveenHva koster lånet?
Sjekk estimert lånekostnadBeskrivelse
Kort om eiendommen
- Stor og ærverdig eiendom med 464 m2 internt bruksareal.
- Boligen ble ombygd og godkjent som generasjonsbolig i 1972, og egner seg til kollektive boformer. Leiligheten har vært utleid siden 1975.
- Eiendommen er skjermet og ligger sentralt til. 5 min å gå til NMBU, 15 min til Ås sentrum. Kort vei til barnehager, skoler for alle trinn, offentlig transport og turområder.
- Tomten er beregnet av kommunen til ca. 3785 m2. Den har en stor og flott hage, med mange epletrær og gode muligheter for dyrking av bær og grønnsaker. Mulighet for fradeling av tomter. Minste tomtestørrelse for enebolig/enebolig med sekundærleilighet er 700 m2, for tomannsbolig 1100 m2.
- Eiendommen har sjel, mye historikk og stort potensiale. Det er etterslep på vedlikehold, og oppussing må påregnes.
Innhold og byggemåte
Innhold og byggemåte
Eiendommen
Herumveien 12, 1430 ÅS
Kommunenummer 3218, gårdsnummer 43, bruksnummer 11, ideell andel 1/1
Innhold
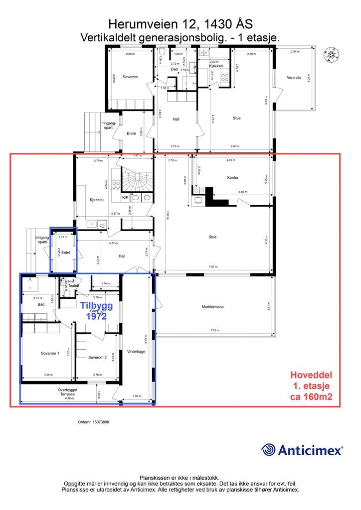
Totalt bruksareal BRA: 493 kvm
BRA-i:
Underetasje: 159 kvm: Gang, vaskekjeller, rom benyttet som kjellerstue, toalettrom, bod/teknisk rom, tre boder og garasje.
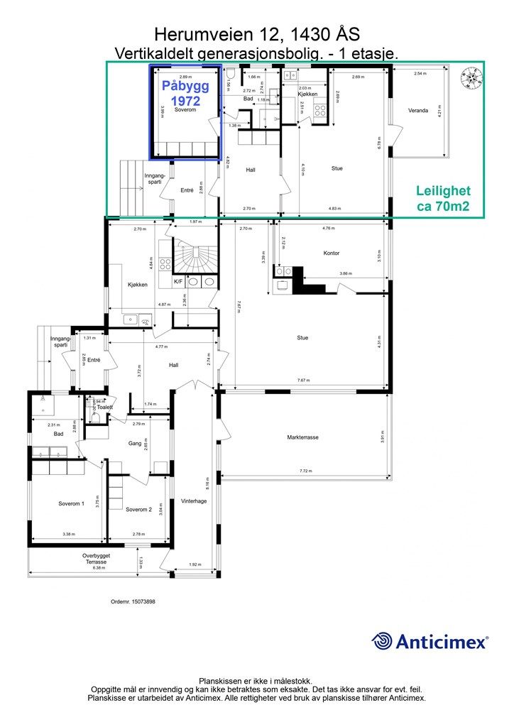
1. etasje 230 kvm: Leilighet: Entré, hall, stue, kjøkken, bad og soverom.
Hoved-del bolig: Entré, hall, gang, toalettrom, bad, stue, kontor, kjøkken, aktivitetsrom, vinterhage og to soverom.
BRA-e:
Frittstående utehus:
1. etasje 29 kvm: Frittstående utehus.
Åpent areal:
1. etasje 41 kvm: Terrasse og markterrasse.
Vedlagte plantegninger er ikke målbare. De oppgitte arealer er hentet fra rapport med befaringsdato 06.08.2025 utført av Anticimex v/ Lars Petter Ausland. Arealene er beregnet og rom er definert etter dagens faktiske bruk, uavhengig av hva som er godkjent av bygningsmyndighetene.
Byggemåte
Selger har fått utarbeidet en tilstandsrapport, dvs. en teknisk gjennomgang av boligen hvor eventuelle avvik, risiko for kjøper og prisoverslag for hva som bør gjøres av oppgradering, er skissert. Se særskilt TGIU (tilstandsgrad ikke undersøkt), samt TG2 og TG3 som viser hva som er boligens normale slitasje, alder og type, hva som er avvik fra dette og hva som bør/må utbedres. Rapporten og selgers egenerklæring er en del av salgsoppgaven og må leses nøye før bud inngis. Kjøper overtar ansvaret for de opplysninger som fremkommer av salgsdokumentasjonen, og kan ikke gjøre gjeldende som mangel noe som burde vært kjent eller som ikke kan anses å ha betydning for avtalen.
Bygningen er iht. tilstandsrapporten oppført med støpt gulv mot grunn og grunnmur av lettklinkerblokker, samt pussede og malte murkonstruksjoner. Etasjeskiller og yttervegger av trekonstruksjoner, med stående trekledning i kombinasjon med liggende trekledning. Takkonstruksjon av saltaksform utvendig tekket med takstein. Boligen har dører og vinduer med ukjent årstall. Les forøvrig mer om byggemåte og den tekniske tilstanden i rapporten.
I rapporten er det gitt 20% TG1, 53% TG2, 25% TG3 og 2% TGIU.
Det gjøres spesielt oppmerksom på:
TG2:
Våtrom/Baderom - Hoveddel: TG 2 er valgt for hele våtrommet på bakgrunn av alder og høy slitasjegrad
Våtrom/Baderom - Leilighet: TG 2 er valgt for hele våtrommet på grunn av alder, høy slitasjegrad og registrerte avvik
- Kan ikke verifiseres at det er benyttet membran på gulvflater
- Skader på gulvfliser ved baderomsdør
- Utførselen bærer preg av ufaglært arbeid
Kjøkken- Leilighet: TG2 er valgt for hele kjøkkenet på bakgrunn av alder og slitasjegrad
Toalettrom - Hoveddel: Deler av rommet har fått TG2 på bakgrunn av alder og registrerte avvik
- Tilluftsspalte er ikke etablert
- Vannrør på bakgrunn av alder
- Fuktmerker i himling
- Gulvoverflate bærer preg av slitasje
Toalettrom - Underetasje: TG2 er valgt for hele rommet på bakgrunn av alder og slitasjegrad
Øvrige rom- Leilighet: TG2 gjelder overflater og innerdører som bærer preg av slitasje
Krypekjeller: Det har blitt registrert forhøyede verdier ved fuktmåling
Innredet loft: TG2 er gitt som en helhetsvurdering på grunn av alder og slitasje, samt mangel på ventiler
Uinnredet loft: TG2 gjelder kontroll av diffusjonssperre. Det er ikke etablert dampsperre mellom kald og varm sone
Ildsteder: TG2 gjelder skorsteiner inne i boligen
- Malingsavskalling på pipe flere steder inne i boligen
- Registrert riss i puss på skorstein
Innvendige trapper:
- Kjellertrapp og trapp til loftsetasje bærer preg av slitasje og alder
- Trappene har ikke håndløper på begge sider
Etasjeskiller: Det er noe skjevheter i kjeller og loftsetasje
Tekniske anlegg m.m:
- Anlegg/radiatorelement på bakgrunn av alder og tilstand
- Avløpsrør på grunn av alder og usikker restlevetid
Elektrisk anlegg: Det er ikke fremlagt samsvarserklæring på det elektriske anlegget
Yttervegger, fasader, konstruksjoner, vinduer m.m:
- Råteskader på ytterkledning
- Entrédører bærer preg av slitasje og alder
- Det kan ikke verifiseres at det er etablert tilstrekkelig lufting i/ved gesims
- Det er registrert stor slitasje og høy alder på renner og nedløp.
- Grunnmur på grunn av alder og riss ved syd-vendt vegg.
- Stedvis lite terrengfall vekk fra grunnmuren
- Det kan ikke verifiseres at grunnmuren har utvendig fuktsperre
- Vann-og avløpsrør på grunn av alder
TG3:
Kjøkken - Hoveddel: TG3 er valgt for hele kjøkkenet på bakgrunn av alder og slitasjegrad, men rommet benyttes slik det står i dag og er fremdeles funksjonelt
Øvrige rom - Hoveddel: TG3 er gitt som en helhetsvurdering
- Alder og slitasje
- Registrerte fuktskader på vegg i kontor
Øvrige rom - Leilighet: TG3 gjelder gulvoverflater som bærer preg av slitasje
Underetasjen: TG3 har blitt gitt for hele underetasjen på bakgrunn av slitasje og registrerte avvik
- Stedvis fuktmerker og pussavskalling på veggflater, samt saltutslag på kjellergulv
- Det har blitt registrert forhøyede verdier ved fuktmåling
- Stedvis slitasje på overflater i rom benyttet som kjellerstue
- Rom benyttet som kjellerstue har vegger under bakkenivå som er utlektet fra grunnmuren.
- Det har blitt registrert forhøyede verdier ved fuktmåling i kjellerstue, samt utlektet vegg.
Uinnredet loft: TG3 gjelder fuktskader i undertak som er vurdert til å være taklekkasje, samt registrert hull i taktro ved pipe og stedvis gamle fuktmerker.
Annet:
- Panel har stedvis råteskader
- Vinduer bærer preg av høy slitasje og har stedvis råteskader
- Terrassedør bærer preg av høy slitasje
- Port/dører til garasje på grunn av alder, slitasje og store skader
- Det er registrert stor slitasje og høy alder på taktekkingen
- Takvinduer bærer preg av høy slitasjegrad
- Terrasse har høy slitasjegrad, samt stedvis råteskader
- Drenering på bakgrunn av alder og symptomer
- Store sprekker og skjevsetninger i forstøtningsmurer
- Frittstående utehus har fått TG3 som en helhetsvurdering på bakgrunn av alder, slitasje, feil og mangler.
Se supplerende tekst i tilstandsrapporten om boligen. Kjøper overtar ansvar og risiko for dette.
Standard
Boligen har vært benyttet som generasjonsbolig og er godkjent med to boenheter. Hoveddelen ble oppført i ca. 1939 og tilbygget i 1971/1972. Boligen har en gjennomgående eldre standard og fremstår som et oppussingsobjekt. Det må påregnes modernisering og oppgraderinger for å møte dagens krav til komfort og estetikk. Samtidig har boligen et svært godt utgangspunkt med generøse rom og en attraktiv organisering som vertikaldelt generasjonsbolig. Her er det gode muligheter til å skape en romslig og funksjonell drømmebolig for hele familien!
E N T R É
Boligen er organisert som en vertikaldelt generasjonsbolig og har derfor to separate inngangspartier. Begge entréene er av praktisk størrelse med plass til garderobeløsning for yttertøy og sko. Vegger er kledd i trepanel, og gulvene er belagt med eldre belegg.
S T U E
Hoveddelen av boligen har en stor og hyggelig stue med peisovn plassert sentralt i rommet, for både varme og hygge. Veggene er kledd med trepanel og gulvet er belagt med lakkert tregulv. Store vindusflater gir godt lys og har utsyn mot hagen, noe som skaper en lys og luftig atmosfære. Fra stuen er det adkomst til et eget kontor/bibliotek som fungerer som en forlengelse av stuen. Utformingen av stuen gjør det lett å møblere og skape ulike soner, for eksempel sofagruppe, spisestue og lesehjørne. Huset har også en koselig vinterhage med adkomst ut til markterrasse og videre ut i hagen.
Leilighetsdelen har en romslig stue med parkett på gulvet og hvite, slette vegger. Herfra er det utgang til en privat veranda med gode solforhold, perfekt for sommerdager.
K J Ø K K E N
Kjøkkenet i hoveddelen er av eldre standard med vegger kledd med trepanel. Innredning er fra ukjent årstall med profilerte fronter i treverk og benkeplate av laminat. Kjøkkenet er utstyrt med benkeskapbelysning, komfyr, oppvaskmaskin og kjøleskap. Kjøkken i leiligheten har innredning med hvite, slette fronter fra ukjent årgang. Gulvet er lagt med laminat og veggene er malt i en lys gul tone. Begge kjøkken er funksjonelle.
B A D E R O M
Det er to bad i boligen, ett i hver vertikal del. Begge badene er fra 1972 og ble pusset opp sist tidlig 2000-tall. De har flislagt gulv med gulvvarme. Veggflater er lagt med våtromsplater og himling lagt med lyse himlingsplater. Det er satt inn dusjkabinett med skyvedører av glass på begge badene. Det er opplegg for vaskemaskin på baderommet i leilighetsdelen. Det er også to separate toalettrom - ett i hovedetasjen og ett i kjelleretasjen.
S O V E R O M
Boligen har totalt seks soverom, og tre av disse ligger i 1. etasje. To soverom er plassert i hoveddelen, samt et soverom i leilighetsdelen. Soverommene i 2. etasje har begge boenhetene en felles trappegang til. To av disse har egne ildsteder og egen vask med kaldt og varmt vann. De fleste soverommene er av generøs størrelse noe som gir gode utnyttelsesmuligheter. Soverommene er av eldre standard med trepanel på vegger og tregulv.
K J E L L E R S T U E
Rom innredet som kjellerstue har vegger i trepaneler og gulv belagt med skifteheller. Det er plassert en eldre vedovn av støpejern sentralt i rommet. Rommet stort men er i dag innredet som kontor med hyller, skrivebord og kontorstol.
V A S K E K J E L L E R
I kjelleretasjen finner man et eget vaskerom med opplegg for vaskemaskin og tørketrommel. Rommet er enkelt utført med betonggulv. Her er det muligheter for å etablere en mer funksjonell vaskesone med moderne innredning.
B O D
Det er flere boder i kjelleretasjen som gir gode oppbevaringsmuligheter. I 2. etasje er det egen bod og kneloft tilknyttet malt soverom, i tillegg til ytterligere tre store kneloft + loft under mønet. Det er også loft over soverom i hoveddelens 1. etasje.
Løsøre og tilbehør
Vi viser til liste fra Norges Eiendomsmeglerforbund som gjelder fra 01.01.2020 angående løsøre og tilbehør så lenge ikke annet er nevnt i salgsoppgaven.
Oppvarming
Oppvarming med elektrisitet, vedfyring og radiatorer tilknyttet varmepumpe/bergvarmesystem.
Dersom beboelsesrom ikke har vegg- eller fastmonterte varmekilder ved visning, følger dette heller ikke med.
Ferdigattest/brukstillatelse
Eiendommen har vært brukt til boligformål siden 1939. Kommunen opplyser at det ikke foreligger tegninger, ferdigattest eller midlertidig brukstillatelse for det opprinnelige bygget.
Tilbygget fra 1971/1972 har ferdigattest datert 12.02.1972. Denne omfatter soverom i leiligheten, samt en deler av hoveddelen i 1.etasje - Vindfang, bad og soverom.
Det gjøres spesielt oppmerksom på at det ikke er søkt om/godkjent innredning av rom benyttet som kjellerstue i boligen og det er heller ikke tatt stilling til om dette lar seg gjøre. Rommet er derfor ikke godkjent for varig opphold. Det er ikke fremlagt plantegning for kjeller og loft.
Kjøper overtar eiendommen slik den fremstår på visning med risiko og ansvaret for eventuelle pålegg fra kommunen og kostnader forbundet med dette.
Tinglyste heftelser og rettigheter
Eiendommen overdras fri for pengeheftelser.
Det er tinglyst følgende servitutter på eiendommen:
Dagboknr 203404, tinglyst 12.07.1963, type heftelse: Erklæring/avtale: Omhandler hvor grensene til tomten er oppmerket.
Servitutten vil følge eiendommen. Kjøpers bank vil få prioritet etter ovennevnte servitutt.
Eventuell adgang til utleie
Boligen er delt i to enheter med separat inngang. Utleieenheten er godkjent som separat boenhet, og kan lovlig leies ut.
Det gjøres oppmerksom på at det er krav til forsvarlige radonnivåer ved utleie. Det er ikke gjennomført radonmåling på denne boligen.
Boligen har tidligere vært benyttet som generasjonsbolig, men leiligheten har i senere år vært utleid.
Diverse
Vi er opptatt av verdiskapning, og har knyttet til oss samarbeidspartnere som skal sikre våre kunder de beste produkter og tjenester;
• Gjensidige leverer boligselgerforsikring og tilbyr bygningsforsikring
• Boligkjøperforsikring leveres av Hiscox og med Sedgwick som skadebehandler, og er formidlet gjennom Gjensidige.
• Trøgstad Sparebank tilbyr finansieringsløsninger
• Vår avdeling Krogsveen Pluss tilbyr flyttetjenester som utvask, visningsvask, lager, tømming og transport av flyttelass, i tillegg til å formidle kontakt med Flip for overflateoppussing.
• I forbindelse med overtagelse av eiendommen tilbyr Overo avtale om strøm, alarm og bredbånd.
• Krogsveen er, sammen med øvrige bransjeaktører, medeier i den digitale annonseringsplattformen Hjem.
Energimerking
Det er blitt utarbeidet to energiattester for boligen. Hovedenheten har fått D2 i karakter og leiligheten har fått F5.
Beliggenhet og tomteforhold
Beliggenhet og tomteforhold
Beliggenhet
Velkommen til Herumveien 12 - en sjelden eiendom i et populært og attraktivt boligområde i Ås. Her bor du med nærhet til natur, skoler, barnehager og kollektivtransport, i et etablert nabolag som passer perfekt for både barnefamilier og studenter, med kort vei til NMBU - Norges miljø-og biovitenskapelige universitet.
Området består hovedsakelig av rekkehus og småhusbebyggelse, noe som gir et rolig og familieorientert bomiljø. Her får du det beste av både natur og sentral beliggenhet – en perfekt kombinasjon for et trygt og praktisk hverdagsliv. Kilehagen/Pentagon er kjent for sitt gode naboskap og sine grønne omgivelser. Området er barnevennlig og populært blant familier, med gangavstand til både skoler og barnehager. NMBU ligger kun 5. minutters gange fra boligen.
Ås sentrum tilbyr et godt utvalg av kaféer, restauranter, dagligvarebutikker, apotek og eget vinmonopol – alt du trenger i hverdagen. For større handleturer ligger det mange kjøpesentre innenfor en radius av 10 minutter med bil, blant annet: Outlet i Vestby, Ski Storsenter og Alti (Vinterbro senter). I tillegg er det kun 8 kilometer til Drøbak sentrum, med sjarmerende småhusbebygglse og flotte basdestrender. Fra Ås stasjon går toget til Ski stasjon på kun 6 minutter og til Oslo S på rundt 19 minutter, noe som gjør området ideelt for pendlere.
Det finnes flere treningssentre i nærheten, og nærmeste er Eika Sportssenter – kun 4 minutters gange fra boligen. Her finner du blant annet klatrevegg, gruppetimer og moderne treningsfasiliteter. Ås IL tilbyr et stort og aktivt idrettsanlegg med et bredt utvalg av lagidretter som fotball, håndball, volleyball og mer. Klubben har et godt miljø for både barn, ungdom og voksne, og gir mulighet for et aktivt fritidsliv i nærmiljøet.
Adkomst
Veibeskrivelse Se Google maps - det er enkelt å finne frem i kartet.
Det vil bli skiltet med Krogsveen visningsskilt ved fellesvisninger. Velkommen til visning!
Barnehager, skoler og fritid
Boligen ligger med gangavstand til flere barnehager. Nærmeste er Åkebakken barnehage og ligger ca. 9 minutters gangavstand fra boligen. Åsgård barneskole, Ås ungdomsskole og Ås videregående skole ligger innenfor gangavstand. NMBU ligger ca. 5 minutters gange fra boligen.
Informasjon om tilhørende skolekretser er hentet fra Prognosesenteret som dataleverandør, og tilhørigheten kan årlig endres av kommunen. Dersom skole- og barnehagetilbud er av betydning for kjøpet, ber vi om at det rettes en særskilt henvendelse til kommunen/bydelsadministrasjonen for oppdatert informasjon.
Beskrivelse av tomt
Eiet tomt på 3 785,4 kvm. Tomten er pent opparbeidet med gruslagt innkjørsel, hekker, gressplen, trær og diverse annen beplantning.
Det gjøres oppmerksom på at grensene på kommunens eiendomskart er merket som mindre nøyaktige samt at det er brukt hjelpelinje mot vest. Historisk oppgitt areal er 3.680 kvm. Dagens beregnede areal viser 3785,4 kvm. Kjøper må påregne at tomtearealet kan avvike ved eventuell ny oppmåling av tomten og kan ikke rette krav mot selger hvis tomten, etter ny oppmåling, skulle vise seg å være mindre enn kommunens beregning.
Parkering
Parkering i garasje eller på gruslagt gårdsplass.
Vei, vann og avløp
Eiendommen har adkomst via kommunal vei, samt intern grusvei frem til boligen.
Eiendommen er tilknyttet kommunalt ledningsnett via private stikkledninger. Eier er selv ansvarlig for private stikkledninger til boligen.
Regulerings-og arealplaner
Eiendommen er regulert til boligbebyggelse(3.777kvm)-frittliggende småhusbebyggelse som formål i henhold til reguleringsplan Områderegulering for frittliggende småhusbebyggelse datert 25.10.2023.
4 kvm ligger under formål annen veigrunn.
Eiendommen ligger innenfor et område med stor tetthet av kulturminner. Denne eiendommen er registrert med kulturminne, men er regulert og undersøkelsesplikten etter kulturminneloven §9 er oppfylt. Det som fremdeles gjelder er meldeplikten. Dersom det under anleggsarbeider eller hagearbeid ol. treffes på automatisk fredete kulturminner, eksempelvis i form av helleristninger, brent leire, keramikk, flint, groper med trekull og/eller brent stein etc., skal arbeidet øyeblikkelig stanses og Akershus Fylkeskommune varsles, jf. Lov om kulturminner av 9. juni 1978 nr. 50, (Kulturminneloven) § 8.
Megler har vært i kontakt med Fylkeskommunen som opplyser at de vil gjøre en forundersøkelse av eiendommen før eventuelle byggearbeider igangsettes. Fylkeskommunen vil motta varsling fra Ås kommune ved byggesøknad.
Reguleringsplaner under arbeid i nærheten (500 meter):
- Detaljreguleringsplan for gang- og sykkelvei langs fylkesvei 152 fra Meierkrysset til Ås sentrum
- Detaljregulering for nordre del av studentbyen Pentagon
Utsnitt av plan med tilhørende bestemmelser kan fås ved henvendelse til megler.
Økonomi
Økonomi
Kommunale utgifter
Kommunale avgifter var kr 24.623,- for inneværende år. I dette inngår gebyr for vann, avløp, renovasjon og feiing/tilsyn.
Eiendommen har mulighet for privat brøyting med årlig kostnad på ca kr 10.000,-.
Selger har ikke bebodd eiendommen og har således ikke kjennskap til øvrige løpende utgifter for eiendommen.
Formuesverdi
Formuesverdi for 2023 var kr 2 264 891,- ifølge skatteetaten. Beløpet forutsetter at eier bor fast i boligen (primærbolig).
Ved eventuell øvrig bruk av eiendommen (f.eks. fritidsbolig, pendlerbolig, utleieobjekt) var formuesverdien for 2023 kr 9 059 564,-/9 059 564,-.
Formuesverdien justeres normalt årlig. Se skatteetaten.no for mer informasjon om fastsettelse av formuesverdien.
Eiendomsskatt
Eiendomsskatten utgjør kr. 4.341,- for 2025.
Omkostninger
14 900 000,00 Prisantydning
Omkostninger
372 500,00 Dokumentavgift til staten (2,5% av kjøpesum)
19 900,00 Gjensidige Boligkjøperpakke (valgfri)
545,00 Tinglysing panterettsdokument
545,00 Tinglysing skjøte
--------------------------------------------------------
393 490,00 Omkostninger totalt
--------------------------------------------------------
15 293 490,00 Totalpris inkl. omkostninger
--------------------------------------------------------
Tilbud om lånefinansiering
Megler formidler gjerne kontakt med rådgiver hos Trøgstad Sparebank. De har konkurransedyktige betingelser samt rask og løsningsorientert behandling av din lånesøknad.
Betalingsbetingelser
Kjøpesum inkludert omkostninger, samt pantedokument tilknyttet eventuelt lån, skal være disponibelt hos megler 2 virkedager før overtagelsen.
Annen viktig informasjon
Annen viktig informasjon
Eier
Jon Ole Hedne, Pål Eirik Hedne og Karin Borgedal Hedne
Overtakelse
Etter nærmere avtale.
Boligselgerforsikring
Selger har i forbindelse med salget tegnet boligselgerforsikring levert av Gjensidige.
Boligselgerforsikringen dekker selgers ansvar etter avhendingsloven begrenset oppad til kr 14 millioner. Dersom kjøper oppdager forhold ved eiendommen som hen mener utgjør en mangel ved eiendommen, vil Gjensidige behandle reklamasjonen på vegne av selger. Forsikringsvilkår kan fås ved henvendelse til megler.
Vedlagt salgsoppgaven følger selgers egenerklæringsskjema og tilstandsrapport. Interessenter må sette seg inn i dokumentene før bud inngis.
Boligkjøperforsikring
Innen kontraktsmøtet må kjøper ta stilling til om det ønskes å bestille Boligkjøperpakken gjennom Gjensidige. I denne gunstige pakken er boligen ferdig forsikret og inkluderer rettshjelpsforsikring, også kalt Boligkjøperforsikring. Rettshjelpsforsikring gir trygghet og tilgang på profesjonell juridisk hjelp dersom det oppdages uventede feil eller mangler det første året etter overtagelse. Forsikringsselskapet behandler i så fall ethvert mangelskrav kjøper måtte ha overfor selger.
Boligkjøperpakken inkluderer bygningsforsikring for hus og hytte, innboforsikring, flytteforsikring og dobbel rentedekning - i situasjoner hvor kjøper ikke får solgt nåværende primærbolig.
Kjøper mottar ingen særskilt faktura for Boligkjøperpakken da kostnaden det første året legges til kjøpesummen for boligen. Det gjøres oppmerksom på Krogsveen mottar et honorar for denne formidlingen.
Produktark for Boligkjøperpakken ligger vedlagt i salgsoppgaven.
Dersom ikke boligkjøperpakke ønskes kan kun rettshjelpsforsikring, også kalt boligkjøperforsikring, tegnes særskilt via megler. Rettshjelpsforsikringen varer i 5 år fra overtagelse og leveres gjennom Gjensidige. Ta kontakt med megler for ytterligere informasjon.
Selskap og privatpersoner som driver med kjøp/salg/utvikling som ledd i egen næringsvirksomhet kan ikke tegne boligkjøperpakke eller rettshjelpsforsikring.
Budgivning
Forbrukerinformasjon om budgivning er vedlagt denne salgsoppgaven og er også på vår hjemmeside Krogsveen.no. Alle bud og budforhøyelser må inngis skriftlig. I tillegg må legitimasjon være fremlagt sammen med signatur fra budgiver.
Vi oppfordrer til å gi bud elektronisk via GI BUD-knappen på eiendommens hjemmeside på Krogsveen.no. Da vil samtlige vilkår bli oppfylt.
Eventuelle forhøyelser eller endringer av budet kan bekreftes pr SMS eller på e-post. Vi oppfordrer alltid til å kontakte megler pr. telefon i tillegg da forsinkelser i SMS og e-post kan forekomme.
For at budene skal kunne bli behandlet og videreformidlet skriftlig til alle involverte parter, må alle bud ha en tilstrekkelig lang akseptfrist, jf. eiendomsmeglingsforskriften § 6-3.
Selger må også skriftlig akseptere budet før aksept kan formidles til budgiver. Akseptfrist bør derfor være på minimum 30 minutter, og budforhøyelser må derfor skje i god tid før fristens utløp.
Bud i forbrukerforhold kan uansett ikke settes med kortere frist enn kl. 12.00 første virkedag etter siste annonserte visning. I tillegg kan ikke budet ha forbehold om at det skal holdes hemmelig ovenfor øvrige interessenter. Megler har iht lov om eiendomsmegling ikke anledning til å videreformidle disse budene, og de vil dermed heller ikke bli journalført.
Etter at eiendommen er solgt vil kjøper og selger få tilsendt budjournal. Øvrige budgivere kan få utlevert kopi av budjournalen i anonymisert form.
Hvitvaskingsreglene
I henhold til lov om hvitvasking og terrorfinansiering har megler plikt til å gjennomføre kontrolltiltak overfor kunder, herunder fullmektiger. Dette innebærer bl.a. å bekrefte kunders og reelle rettighetshaveres identitet på bakgrunn av fremvist gyldig legitimasjon eller på annen godkjent måte, samt å innhente opplysninger om kundeforholdets formål og tilsiktede art.
Dersom slike kundetiltak ikke kan gjennomføres, kan megler ikke etablere kundeforholdet eller utføre transaksjonen.
Hvis kjøper ikke bidrar til gjennomføring av kundekontrollen og dette fører til at transaksjonen blir forsinket eller ikke kan gjennomføres, vil dette ansees som mislighold av avtalen og gi selger rettigheter etter avhendingslova kapittel 5. I tilfeller der selger ikke bidrar til gjennomføring av løpende kundekontroll underveis i oppdraget, er det selger som misligholder sine forpliktelser etter avtalen og gi kjøper rettigheter etter avhendingslovens kapittel 4. Partene er selv ansvarlige for eventuelle kostnader og ansvar dette kan medføre. Eiendomsmegleren eller eiendomsmeglingsforetaket kan ikke holdes ansvarlig for de konsekvenser dette vil kunne få for partene eller andre som har interesser i eiendomshandelen.
Kjøper oppfordres til å innbetale kjøpesummen som ikke kommer fra låneinstitusjon i én samlet innbetaling fra egen konto i norsk bank. Megler har plikt til å melde fra til Økokrim om eiendomshandler som fremstår som mistenkelige. Melding sendes Økokrim uten at partene varsles.
Personopplysningsloven
I henhold til personopplysningsloven gjør vi oppmerksom på at interessenter kan bli registrert for videre oppfølging.
Lovanvendelse
Generelle bestemmelser
Salgsoppgaven er basert på de opplysningene selger har gitt til megler, den bygningssakyndiges tilstandsrapport, samt opplysninger innhentet fra kommunen, Kartverket og andre tilgjengelige kilder. Det er viktig at kjøper setter seg grundig inn i alle salgsdokumentene, herunder salgsoppgave, tilstandsrapport og selgers egenerklæring. Kjøper anses kjent med forhold som er tydelig beskrevet i salgsdokumentene, og slike forhold kan ikke påberopes som mangler. Dette gjelder uavhengig av om kjøper har lest dokumentene. Alle interessenter oppfordres til å undersøke eiendommen nøye, gjerne sammen med fagkyndig før bud inngis. Kjøper som velger å kjøpe usett kan ikke gjøre gjeldende som mangel noe han burde blitt kjent med ved undersøkelsen.
Dersom det er behov for avklaringer, anbefaler vi at interessenter rådfører seg med eiendomsmegler eller egne rådgivere før det legges inn bud.
En bolig som har blitt brukt i en viss tid, har vanligvis blitt utsatt for slitasje og skader kan ha oppstått. Slik bruksslitasje må kjøper regne med, og det kan avdekkes enkelte forhold etter overtakelse som nødvendiggjør utbedringer. Normal slitasje og skader som nødvendiggjør utbedring, er innenfor hva kjøper må forvente og vil ikke utgjøre en mangel.
Kjøper og selgers rettigheter og plikter reguleres av avtalen mellom partene, samt informasjonen som har vært tilgjengelig for kjøperen i forbindelse med handelen. Avtalen utfylles av avhendingsloven, og det gjelder ulike avtalevilkår avhengig av om kjøper er forbrukerkjøper eller ikke. Dette er nærmere beskrevet nedenfor.
På grunn av ulike avtalevilkår kan selger vurdere bud fra en som ikke er forbruker, ulikt fra en forbrukers bud. Dersom kjøper ikke er forbruker, er selger sitt mulige mangelsansvar begrenset fordi eiendommen selges "som den er". Selger kan ikke ta «som den er»- forbehold overfor en forbrukerkjøper. Selv et lavere bud fra en som ikke er forbruker kan foretrekkes fordi begrensningen i mulig mangelsansvar kan ha egenverdi for selger. Selger står fritt til å forkaste eller akseptere ethvert bud, og er for eksempel ikke forpliktet til å akseptere høyeste bud.
Budgiver skal i budskjema avgi egenerklæring om budgiver er forbruker eller næringsdrivende/ person som hovedsakelig handler som ledd i næringsvirksomhet. Budgivere får informasjon dersom andre bud er inngitt av en som ikke er forbruker.
Forbrukerkjøp - definisjon
Med forbrukerkjøp menes kjøp av eiendom når kjøperen er en fysisk person som ikke hovedsakelig handler som ledd i næringsvirksomhet.
Forbruker – avtalevilkår
Eiendommen har en mangel dersom den ikke er i samsvar med kravene som følger av avtalen, eller det foreligger brudd på bestemmelsene i avhendingsloven §§ 3-2 til 3-8. Hvis eiendommen ikke er i samsvar med det kjøperen må kunne forvente ut ifra alder, type og synlig tilstand, kan det være grunnlag for mangelskrav. Det samme gjelder hvis det er holdt tilbake eller gitt uriktige opplysninger om eiendommen. Dette gjelder likevel bare dersom man kan gå ut ifra at det virket inn på avtalen at opplysningen ikke ble gitt eller at mangelskravet ikke blir rettet i tide på en tydelig måte.
Boligen kan ha en mangel etter avhendingsloven § 3-3 andre ledd, dersom det er avvik mellom opplyst og faktisk innvendig areal, forutsatt at avviket er på 2% eller mer og minimum 1 kvm.
Ved beregning av et eventuelt prisavslag eller erstatning må kjøper selv dekke tap/kostnader opptil et beløp på kr 10 000 (egenandel).
Ikke-forbruker (næringsdrivende) – definisjon
Hvis kjøper er en juridisk person, eller en fysisk person som hovedsakelig handler som ledd i næringsvirksomhet, vil kjøpet ikke anses som et forbrukerkjøp.
Ikke-forbruker – avtalevilkår
Eiendommen har en mangel dersom den ikke er i samsvar med kravene som følger av avtalen.
Eiendommen selges «som den er», og selgers ansvar utover det konkret avtalte er da begrenset etter avhendingsloven § 3-9, første ledd andre setning.
Avhendingsloven § 3-3 andre ledd fravikes, og hvorvidt boligens arealsvikt utgjør en mangel vurderes etter avhendingsloven § 3-8.
Informasjon om kjøpers undersøkelsesplikt, herunder oppfordringen om å undersøke eiendommen nøye, gjelder også for kjøpere som ikke anses som forbrukere.
Det forutsettes at hjemmel overføres til kjøper. Hvis kjøper ikke ønsker hjemmelsoverføring av eiendommen, må det tas forbehold om dette i budet.
Meglers vederlag
Meglers vederlag betales av selger og er avtalt til:
Vederlag: 0,6% av salgssummen.
Minimumsvederlag: kr 60.000,-
Tilrettelegging: kr 17.000,-
Oppgjør: kr 7.500,-
Markedspakke: kr 27.400,-
Visninger pr. stk/ Overtagelse: kr 3.500,-
Oppslag eiendomsregister: kr 2.900,-
Salgsoppgave: kr 3.600,-
Utlegg
Innhenting av offentlig opplysninger Ås kommune kr 4.960,-
Tinglysing hjemmelsovergang/erklæring kr 545,-
Tinglysing sikring kr 545,-
Andre utgifter
Boligselgerforsikring for 5 år (valgfri) kr 66.800,-
Fotopakke Premium inkl. dronefoto og Reels video kr 7.000,-
Stylingveiledning for boliger over 100 kvm (valgfri) kr 3.500,-
Tilstandsrapport Anticimex kr 19.950,-
Opplysninger om oppdraget
Oppdragsnummer 46-0143/25
Eiendomsmegler Krogsveen AS, avd. Ski
Kirkeveien 2A, 1400, SKI
950 007 613
Oppdragets KR-kode KR46.25143
Dato
Sist oppdatert: 21. april 2026 kl. 15:18
Dokumenter
Dokumenter
PDF – 657 KB
PDF – 655 KB
PDF – 2 MB
PDF – 1 MB
PDF – 1022 KB
PDF – 312 KB
PDF – 29 KB
PDF – 127 KB
PDF – 392 KB
Område
Legg til steder som er viktige for deg
Visning
Ta kontakt med megler for avtale om privatvisning.
Ønsker du kun å bli holdt orientert, kan du fra eiendommens hjemmeside få varsel om solgtpris, eller kontakte megler.
Lurer du på noe?
Unngå doble boligrenter
Vi tilbyr gunstig forsikring.
Vurderer du utleie?
Få et tilbud fra Utleie KrogsveenHva koster lånet?
Sjekk estimert lånekostnadVil du varsles om lignende boliger?
Ved å lagre ditt boligsøk hos oss får du beskjed når vi har en bolig som ligner denne, før den legges ut på markedet!




