Munkerudveien 30E
12 300 000 kr
163 m²
3 soverom
Solgt
Nordstrand/Sæter
Solrik og pen familiebolig med hage og dobbelgarasje
Prisantydning
12 300 000 krOmkostninger
328 490 krTotalpris
12 628 490 kr
Pris
Bruksareal
199 m²BRA-I (internt bruksareal)
163 m²BRA-E (eksternt bruksareal)
36 m²TBA (terrasse-balkongareal)
35 m²
Areal
Byggeår
1977Soverom
3 soveromBad
2 badTomteareal
370 m² (eiet)Type
Halvpart vertikaldelt boligEierform
EietFasiliteter
Garasje/P-plass og Balkong/TerrasseEnergimerke
Gul E
Nøkkelinfo
Unngå doble boligrenter
Vi tilbyr gunstig forsikring.
Vurderer du utleie?
Få et tilbud fra Utleie KrogsveenHva koster lånet?
Sjekk estimert lånekostnadBeskrivelse
Kort om eiendommen
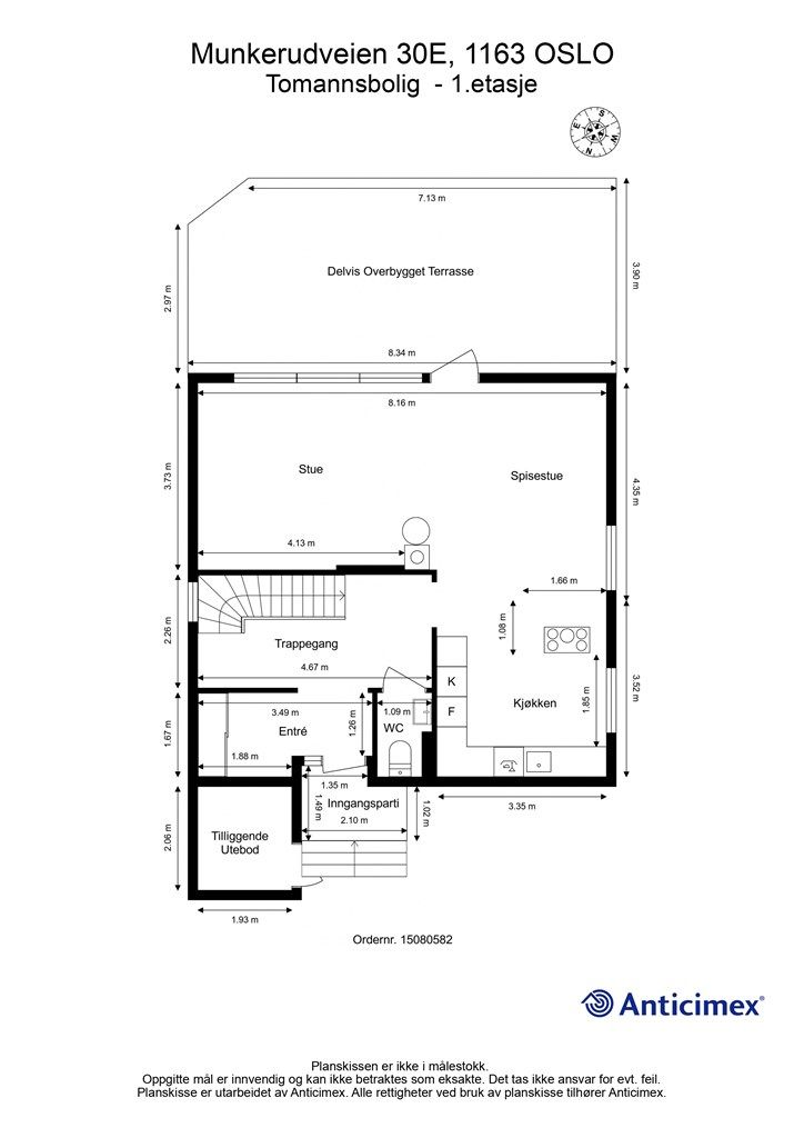
Velkommen til Munkerudveien 30E, en solrik og pen familiebolig med en sentral beliggenhet nær Sæter. Boligen har en innholdsrik og god planløsning med bl.a. romslig hovedetasje med stort oppholdsrom med stue, spisestue og kjøkken i delvis åpen løsning. Store glassflater i stuen gir god kontakt mellom inne- og uterom, samt at det er direkte utgang fra stuen til stor terrasse og videre til en flat og velstelt hage. Egen frittstående dobbelgarasje med elbillader. Barnevennlig beliggenhet med kun få minutters gange til bl.a. Nordseter barne- og ungdomsskole, Nordstrand Arena ("Niffen"), samt til kollektivtransport og et bredt servicetilbud på Sæter.
Område
Legg til steder som er viktige for deg
På flyttefot? Tenk kjøp og salg samtidig.
Få din egen rådgiver gjennom hele kjøps- og salgsprosessen. Det starter med en verdivurdering.
Unngå doble boligrenter
Vi tilbyr gunstig forsikring.
Vurderer du utleie?
Få et tilbud fra Utleie KrogsveenHva koster lånet?
Sjekk estimert lånekostnadVil du varsles om lignende boliger?
Ved å lagre ditt boligsøk hos oss får du beskjed når vi har en bolig som ligner denne, før den legges ut på markedet!
































































