Kjøyaveien 42
4 000 000 kr
71 m²
3 soverom
Komplett salgsoppgave
Bamble - Trosby
Nyere hytte med sjøutsikt, gode solforhold og bilvei helt frem.
Prisantydning
4 000 000 krOmkostninger
101 090 krTotalpris
4 101 090 kr
Pris
Bruksareal
75 m²BRA-I (internt bruksareal)
71 m²BRA-E (eksternt bruksareal)
4 m²TBA (terrasse-balkongareal)
53 m²
Areal
Byggeår
2010Soverom
3 soveromBad
1 badTomteareal
534 m² (eiet)Type
Fritidseiendom ved sjøenEierform
EietEnergimerke
Lysegrønn C
Nøkkelinfo
Vurderer du utleie?
Få et tilbud fra Utleie KrogsveenHva koster lånet?
Sjekk estimert lånekostnadBeskrivelse
Kort om eiendommen
Innhold og byggemåte
Innhold og byggemåte
Eiendommen
Kjøyaveien 42, 3967 STATHELLE
Kommunenummer 4012, gårdsnummer 88, bruksnummer 80, ideell andel 1/1
Innhold
Totalt bruksareal BRA: 75 kvm
BRA-i:
Hytte:
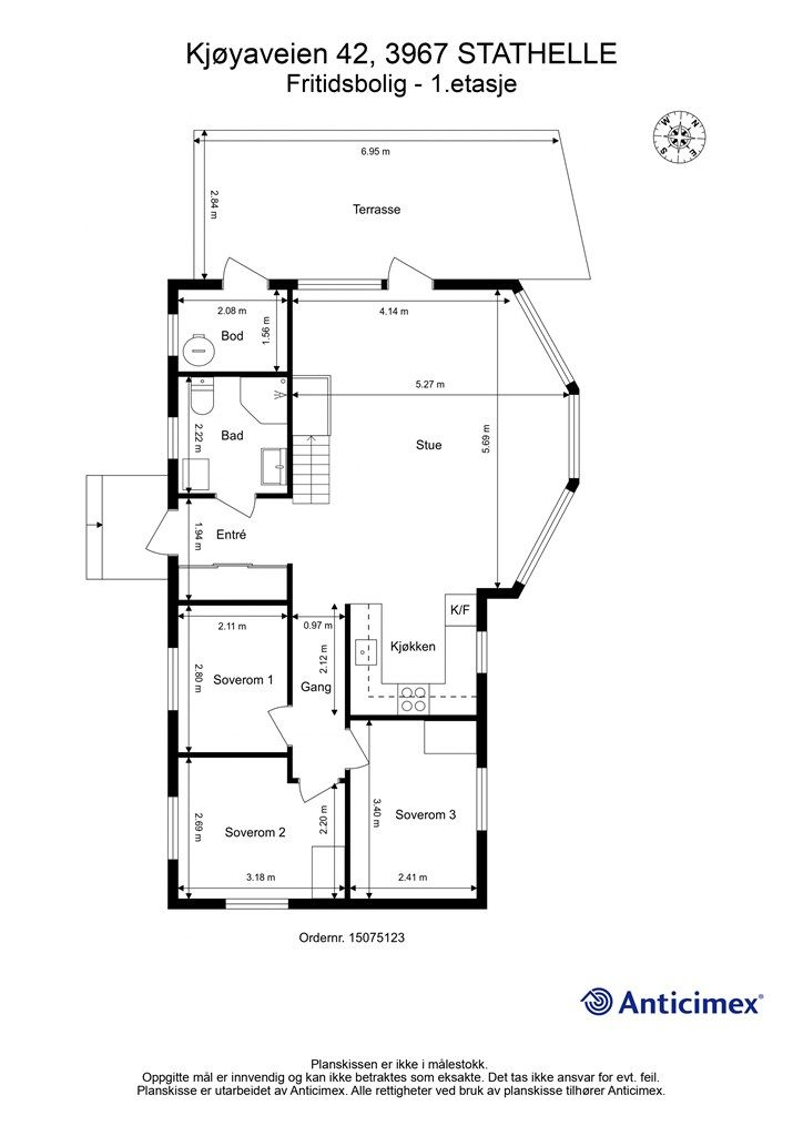
1. etasje 71 kvm: Entre, gang, stue, kjøkken, bad og tre soverom.
BRA-e:
Hytte:
1. etasje 4 kvm: Bod med utvendig adkomst.
Åpent areal:
Hytte:
1. etasje 21 kvm: Terrasse.
1. etasje 32 kvm: Platting.
Kommentar til areal:
Arealet på hems måles til 7 kvm (ALH), men grunnet lav takhøyde er ikke arealet måleverdig som bruksareal.
Plattingen var dekket av snø og is på befaringsdagen og er derfor skjønnsmessig oppmålt. Avvik kan forekomme.
Vegg mellom bod og hoveddel er skjønnsmessig oppmålt. Avvik kan forekomme.
Vedlagte plantegninger er ikke målbare. De oppgitte arealer er hentet fra rapport med befaringsdato 12.02.2026 utført av Anticimex AS v/Bjørn Christian Pedersen . Arealene er beregnet og rom er definert etter dagens faktiske bruk, uavhengig av hva som er godkjent av bygningsmyndighetene.
Byggemåte
Selger har fått utarbeidet en tilstandsrapport, dvs. en teknisk gjennomgang av boligen hvor eventuelle avvik, risiko for kjøper og prisoverslag for hva som bør gjøres av oppgradering, er skissert. Se særskilt TGIU (tilstandsgrad ikke undersøkt), samt TG2 og TG3 som viser hva som er boligens normale slitasje, alder og type, hva som er avvik fra dette og hva som bør/må utbedres. Rapporten og selgers egenerklæring er en del av salgsoppgaven og må leses nøye før bud inngis. Kjøper overtar ansvaret for de opplysninger som fremkommer av salgsdokumentasjonen, og kan ikke gjøre gjeldende som mangel noe som burde vært kjent eller som ikke kan anses å ha betydning for avtalen.
Bygningen er iht. tilstandsrapporten oppført på ringmur i lettklinkerblokker, med bærende bjelkelag i tre. Yttervegger, etasjeskiller og tak i trekonstruksjoner. Fasader med liggende trekledning. Saltak tekket med betongstein. Vinduer og terrassedør med to-lags isolerglass. Les for øvrig mer om byggemåte og den tekniske tilstanden i rapporten.
Denne eiendommen har ingen TG3 i henhold til takstmanns tilstandsrapport.
Det gjøres spesielt oppmerksom på at gjennomføring tilknyttet avtrekksvifte på kjøkkenet ikke er undersøkt grunnet manglende tilkomst. Loftet er ikke inspisert da loftsluken var fastskrudd på befaringsdagen og lot seg ikke åpne. Skjulte skader på loftet kan derfor ikke utelukkes. Eventuell stakeluke er ikke lokalisert. Takkonstruksjonen er lukket og uten mulighet for inspeksjon. Terrassen og plattingen, samt terrengfall fra eiendommens grunnmur er ikke undersøkt grunnet snøforhold på befaringsdagen. Fundamentene til terrassen er skjult av konstruksjonen. Byggegrunnens beskaffenhet er ukjent. Alle forannevnte avvik har fått TGIU i tilstandsrapporten.
Det gjøres videre oppmerksom på følgende avvik som har fått TG 2 i tilstandsrapporten:
Elastiske flisfuger har stedvis manglende vedheft. Tettesjiktet på bad har en alder som tilsier at restlevetiden er usikker. Lokalfall i dusjsonen er mindre enn hva som anbefales. Krypkjelleren har begrenset inspeksjonsmulighet og er derfor ikke forsvarlig kontrollert. Skjulte skader kan ikke utelukkes. Konstruksjonen har erfaringsmessig vist seg skadeutsatt og derfor med høy risiko. Varmtvannsbereder er plassert i et rom uten sluk/overløp eller annen sikring mot fuktskader. Berederen har en alder som tilsier at restlevetid er usikker. Det er observert aldersslitasje på kledningen. Sprekker i endeveden. Vindusomramminger er avsluttet for nært tilliggende vannbrett. Musesperre bak kledning har behov for utbedring og luftespalte bak kledningen er stedvis blokkert. Vinduer og ytterdører bærer preg av alder og slitasje med enkelte råteskader på vinduene. Taket er ikke fysisk inspisert grunnet snøforholdene på befaringsdagen. Avvik er satt for å belyse risiko. Det registreres stedvis sprekker/riss på grunnmuren. Det kan ikke verifiseres at grunnmuren har utvendig fuktsperre. Forholdet øker faren for fuktvandring i konstruksjoner under bakkenivå. Vann fra yttertaket er ikke tilstrekkelig ledet bort fra grunnmuren. Rekkverk på forstøtningsmur har enkelte skjevheter.
Se supplerende tekst i tilstandsrapporten for utfyllende informasjon om alle ovennevnte avvik. Kjøper overtar ansvar og risiko for dette.
Standard
Hytta har normal god standard fra byggeår. Med parkettgulv i oppholdsrom, flislagt gang og baderomsgulv. Vegger med tapet, panelplater og panel. Himlinger med panel. Oppholdsrommet fremstår lyst og luftig med god takhøyde og store vindusflater. Kjøkkenet har innredning med slette fronter og laminert benkeplate, med frittstående hvitevarer. Badet er utstyrt med dusjkabinett, servant og toalett. Opplegg for vaskemaskin og tørketrommel. Praktisk hems med adkomst via fast trapp. Det er montert el-bil lader på hytta.
Løsøre og tilbehør
Vi viser til liste fra Norges Eiendomsmeglerforbund som gjelder fra 01.01.2020 angående løsøre og tilbehør.
Oppvarming
Varmekabler på badet. Ellers elektrisk oppvarming. Dersom beboelsesrom ikke har vegg- eller fastmonterte varmekilder ved visning, følger dette heller ikke med.
Ferdigattest/brukstillatelse
Det foreligger ferdigattest på Fritidsboligen, datert 28.12.2010. Denne kan fås ved henvendelse til megler.
På byggetegninger mottatt av kommunen er ikke uteplass og terrasse inntegnet. Det vites ikke om dette er omsøkt. Det er usikkert om nevnte forhold er å anse som søknadspliktige, men konsekvensen kan være at utearealer må endres og i verste fall tilbakeføres slik de var før bygging av platting og terrasse.
Kjøper overtar alt ansvar, kostnad og risiko for dette videre.
Tinglyste heftelser og rettigheter
Eiendommen overdras fri for pengeheftelser.
Det er ingen tinglyste servitutter på eiendommen.
Eventuell adgang til utleie
Fritidseiendommen har ikke separat utleiedel. Det vil normalt være anledning til utleie av hele eiendommen eller enkeltrom, såfremt utleiearealet er bygningsmessig godkjent for varig opphold.
Diverse
Nåværende eier har tidligere leid båtplass av Trosby sag, men leieforholdet ble avsluttet for en tid tilbake. Utleier opplyser at det vil være mulig å leie plass. Interessenter som ønsker det oppfordres til å ta kontakt for å sjekke pris, tilgjengelighet og vilkår.
Beliggenhet og tomteforhold
Beliggenhet og tomteforhold
Beliggenhet
Hytta ligger fint til på Kjøya Hyttegrend på Trosby, ca. 160 meter fra sjøen, usjenert og solrikt, med utsikt utover Melbyfjorden. Mulighet for å leie båtplass ca. 500 meter fra hytta i Trosbyfjorden. Skjærgården i området er variert og vakker med Tonerleia på utsiden av Melbyfjorden, eller mer skjermet farvann inne i Trosbyfjorden. I umiddelbar nærhet finnes friområder med fine svaberg og sandstrender. Korte båtturer til sommersteder som Valle, Kragerø og Langesund. Ytterst i havet ligger kjente øyer som Jomfruland og Stråholmen. Det er gangavstand til nærbutikk og gatekjøkken på Trosby. Butikken er åpen hver dag hele året. Ytterst på Kjønnøya ligger Havparadiset, en koselig restaurant som ofte har hyggelige arrangementer og intimkonserter om sommeren. Det er ca. 3 km. til golfbane og 5 km. til Valle hvor det er restauranter, diverse butikker, dagligvarebutikk og et yrende liv sommerstid. Det er ca. 20 min. med bil til Stathelle hvor man bl.a. finner stort kjøpesenter.
Adkomst
Fra E18 syd for Grenlansbrua tar du av ved bensinstasjonene Esso og ST1 og følger Gamle E-18 mot Valle. Ta av til venstre etter Bamble kirke ved skilt mot Valle. Følg veien mot Valle. Etter ca. 5 km. tar du til venstre mot Kjønnøya. Følg veien ca. 400 meter og ta til venstre før Trosby Sag. Kjør inn på plass for parkering og båtopplag. Kjør gjenom elektronisk bom og følg Kjøyaveien. Hytte ligger på venstre side på en åpen slette. Det vil bli skiltet med Krogsveen visningsskilt ved fellesvisninger.
Beskrivelse av tomt
Eiet tomt på 534 kvm. Tomten er opparbeidet med gressplen, uteplass med belegningsstein, delvis overbygget terrasse i tre. For øvrig noe naturtomt.
Parkering
Biloppstillingplass for to biler.
Vei, vann og avløp
Eiendommen har adkomst via privat vei med felles vedlikeholdsansvar.
Eiendommen er tilknyttet kommunalt ledningsnett via private stikkledninger. Eier er selv ansvarlig for private stikkledninger til boligen.
Regulerings-og arealplaner
Eiendommen er regulert til fritidsbebyggelse i henhold til reguleringsplan Trosby-Kjøya tomt 24 og 26 datert 03.11.2011 og endring av reguleringsplan for Trosby-Kjøya datert 26.08.2020, med tilhørende reguleringsbestemmelser.
Utsnitt av plan med tilhørende bestemmelser kan fås ved henvendelse til megler.
Økonomi
Økonomi
Kommunale utgifter
Kommunale avgifter er kr. 23.319,- for inneværende år. I dette inngår gebyr for vann, avløp, hytterenovasjon, eiendomsskatt og feiing/tilsyn.
Eiendommen har en årlig veiavgift på kr. 2.147,-.
Eiendommen tilknyttet offentlig vann og avløp via privat vann og avløpslag med en årlig kostnad for drift på kr. 2.147,-.
Eier har ikke gitt megler opplysninger om øvrige løpende kostnader, og megler har derfor ikke kjennskap til hvor store kostnader dagens eier har til strømforbruk, forsikring, tv, internett m.v.
Formuesverdi
Formuesverdi for 2024 var kr. 1.247.813,- ifølge Skatteetaten.
Fra 2026 har Stortinget vedtatt en oppdatert modell for beregning av formuesverdi for primærbolig, så avvik kan forekomme.
For mer informasjon se skatteetaten.no
Omkostninger
4 000 000,00 Prisantydning
Omkostninger
100 000,00 Dokumentavgift til staten (2,5% av kjøpesum)
545,00 Tinglysing panterettsdokument
545,00 Tinglysing skjøte
--------------------------------------------------------
101 090,00 Omkostninger totalt
--------------------------------------------------------
4 101 090,00 Totalpris inkl. omkostninger
--------------------------------------------------------
Tilbud om lånefinansiering
Megler formidler gjerne kontakt med rådgiver hos vår samarbeidspartner BN Bank. De har konkurransedyktige betingelser samt rask og løsningsorientert behandling av din lånesøknad. Krogsveen mottar et honorar dersom lån opprettes.
Betalingsbetingelser
Kjøpesum inkludert omkostninger, samt pantedokument tilknyttet eventuelt lån, skal være disponibelt hos megler 2 virkedager før overtagelsen.
Annen viktig informasjon
Annen viktig informasjon
Eier
Nedre Telemark Tingrett
Konsesjon
Eiendommen er ikke konsesjonspliktig, men det er boplikt i Bamble kommune. For at eiendommen skal kunne overskjøtes må kjøper signere på egenerklæring om konsesjonsfrihet om at boplikten ikke gjelder for denne eiendommen.
Overtakelse
Etter gjeldende regelverk vedr. tvangssalg, konf. megler eller les info. på budskjemaet. Normalt vil eiendommen bli levert ryddet, tømt og rengjort, men dersom dette ikke blir gjort av dagens eier må kjøper selv gjøre dette.
Boligselgerforsikring
Det kan ikke tegnes boligselgerforsikring ved tvangssalg da kontraktspart er Tingretten og salget skjer etter reglene i tvangsfullbyrdelsesloven. Interessenter oppfordres til å sette seg inn i regelverket og lese salgsdokumentasjonen nøye før bud inngis. Det gjøres oppmerksom på at kjøpers muligheter for reklamasjon er redusert ved kjøp av bolig etter tvangsfullbyrdelsesloven.
Boligkjøperforsikring
Det gjøres oppmerksom på at det ikke er mulig å tegne Boligkjøperforsikring i forbindelsen med tvangssalg.
Budgivning
Det gjelder egne budregler for tvangssalg, og disse er beskrevet i «Orientering til kjøpere om tvangssalg ved medhjelper». Budgivere må sette seg inn i orienteringen før man inngir bud.
Alle bud og budforhøyelser må inngis skriftlig. I tillegg må budet være signert og legitimasjon må være fremlagt. På grunn av de spesielle reglene for tvangssalg er det dessverre ikke mulig å inngi bud elektronisk via Krogsveen.no. Eventuelle forhøyelser eller endringer på budet kan skje pr sms eller på e-post.
Kjøper vil som vanlig få tilsendt budjournal etter at eiendommen er solgt. Budgiver kan også få utlevert en kopi av budjournalen i anonymisert form.
Personopplysningsloven
I henhold til personopplysningsloven gjør vi oppmerksom på at interessenter kan bli registrert for videre oppfølging.
Lovanvendelse
Salget av denne eiendommen er et tvangssalg gjennom medhjelper, og selges etter Tvangsfullbyrdelsesloven kapittel 11. Dette innebærer at kjøper har begrensede muligheter til å fremsette eventuelle mangelskrav. Mangel kan foreligge hvis eiendommen ikke svarer til gitte opplysninger om vesentlige forhold, eller det er forsømt å gi opplysninger om vesentlige forhold som medhjelper måtte kjenne til, eller den er i vesentlig dårligere stand enn kjøperen hadde grunn til å regne med. Manglende/feil opplysninger må ha innvirket på kjøpet. Det vises til tvangsfullbyrdelseslovens §11-39 for nærmere informasjon og alle vilkår. Dersom eiendommen har mangler, kan det kreves prisavslag, men kjøpet kan ikke heves. Det kan også forekomme at boligen overleveres uten normal rydding og rengjøring, samt at nøkkelsett ikke er komplett. Omkostninger må i så tilfeller dekkes av kjøper.
Meglers vederlag
Meglers vederlag betales av oppdragsgiver og er avhengig av kjøpesummens størrelse, og beregnes i henhold til satser i Forskrift om tvangssalg ved medhjelper, kap. 3.
I tillegg mottar megler oppgjørshonorar kr. 6.385,- samt dekning av følgende utlegg:
Vederlag:
Markedsføringspakke Fritid og Tomt kr. 29.900,-
Utlegg:
Innhenting av offentlig opplysninger Bamble kommune kr. 3.934,-
TV - Rettsgebyr ved tvangsfullbyrdelse 2024 (7,4R) kr. 9.449,-
Andre utgifter:
Foto - inkl. drone kr. 5.000,-
Innhenting av energiattest hos Ambita kr. 310,-
Opplysninger om oppdraget
Oppdragsnummer 28-0016/25
Eiendomsmegler Krogsveen AS, avd. Bamble og Porsgrunn
Strandgata 22, 3960, STATHELLE
950 007 613
Oppdragets KR-kode KR28.2516
Dato
Sist oppdatert: 24. februar 2026 kl. 19:34
Dokumenter
Dokumenter
PDF – 171 KB
PDF – 792 KB
Område
Legg til steder som er viktige for deg
Visning
For å delta på visning, ber vi om at du melder deg på. Da sikrer vi at du får nødvendig informasjon og at det er satt av tilstrekkelig med tid. Kontakt megler dersom annet tidspunkt ønskes. Husk å lese salgsoppgaven før visningen, så du stiller forberedt.
Ønsker du kun å bli holdt orientert, kan du fra eiendommens hjemmeside få varsel om solgtpris, eller kontakte megler.
Lurer du på noe?
Vurderer du utleie?
Få et tilbud fra Utleie KrogsveenHva koster lånet?
Sjekk estimert lånekostnad



