Røstmyrveien 10
9 000 000 kr
272 m²
4 soverom
Solgt
Konnnerud
Pent oppusset, stor enebolig med hybel. Stor solrik tomt i et attraktivt område på Konnerud. Dobbelgarasje.
Prisantydning
9 000 000 krOmkostninger
245 990 krTotalpris
9 245 990 kr
Pris
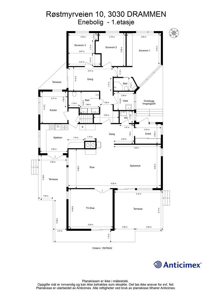
Bruksareal
309 m²BRA-I (internt bruksareal)
272 m²BRA-E (eksternt bruksareal)
37 m²TBA (terrasse-balkongareal)
55 m²
Areal
Byggeår
1950Soverom
4 soveromBad
3 badTomteareal
1 714 m² (eiet)Type
Enebolig - FrittliggendeEierform
EietFasiliteter
Garasje/P-plass og Balkong/TerrasseEnergimerke
Oransje G
Nøkkelinfo
Unngå doble boligrenter
Vi tilbyr gunstig forsikring.
Vurderer du utleie?
Få et tilbud fra Utleie KrogsveenHva koster lånet?
Sjekk estimert lånekostnadBeskrivelse
Kort om eiendommen
Pent oppusset enebolig med hybel. Stor solrik tomt i et attraktivt område på Konnerud.
- Meget innholdsrik bolig med alt du trenger på ett plan
- Hovedel har bla 3 soverom, kontor, 2 bad, toalettrom, 3 stuer
- Hybel i kjeller inneholder entré, stue/kjøkken, bad og soverom
- Delvis overbygd syd/vest vendt terrasse på 49 kvm med adkomst fra stue, kjøkken og TV-stue
- Parkering i dobbelgarasje på 37 kvm og på gårdsplassen
- Litt under 1,8 mål pent opparbeidet tomt med flott beliggenhet på en høyde/pynt
- Kun 200 meter til barnehage og barneskole
- Nærhet til flotte markaområder med merkede stier, lysløyper og turveier
- Kort vei til Konnerud sentrum med blant annet Konnerudsenteret, flere servicetilbud og offentlig transport
Område
Legg til steder som er viktige for deg
På flyttefot? Tenk kjøp og salg samtidig.
Få din egen rådgiver gjennom hele kjøps- og salgsprosessen. Det starter med en verdivurdering.
Unngå doble boligrenter
Vi tilbyr gunstig forsikring.
Vurderer du utleie?
Få et tilbud fra Utleie KrogsveenHva koster lånet?
Sjekk estimert lånekostnadVil du varsles om lignende boliger?
Ved å lagre ditt boligsøk hos oss får du beskjed når vi har en bolig som ligner denne, før den legges ut på markedet!
På flyttefot? Slik gjør vi det enklere for deg
Skreddersydd flyttepakke
Vi fikser håndverkere, vask, pakking, lagring og transport, og legger ut for utgiftene underveis.
Hjelp med både kjøp og salg
Hos oss har du din egen rådgiver gjennom hele kjøps- og salgsprosessen.
Hjelp til finansiering
Vårt samarbeid med BN Bank sikrer deg rask og løsningsorientert hjelp, til konkurransedyktige betingelser.




