P. A. Holms vei 30
13 500 000 kr
265 m²
6 soverom
Solgt
Nordstrand
Stor og innholdsrik enebolig | Tilrettelagt for 2 hybler | Garasje | Blindvei
Prisantydning
13 500 000 krOmkostninger
358 490 krTotalpris
13 858 490 kr
Pris
Bruksareal
296 m²BRA-I (internt bruksareal)
265 m²BRA-E (eksternt bruksareal)
31 m²
Areal
Byggeår
1954Soverom
6 soveromBad
5 badType
Enebolig - FrittliggendeEierform
EierseksjonFasiliteter
Garasje/P-plass og Balkong/TerrasseEnergimerke
Rød G
Nøkkelinfo
Unngå doble boligrenter
Vi tilbyr gunstig forsikring.
Vurderer du utleie?
Få et tilbud fra Utleie KrogsveenHva koster lånet?
Sjekk estimert lånekostnadBeskrivelse
Kort om eiendommen
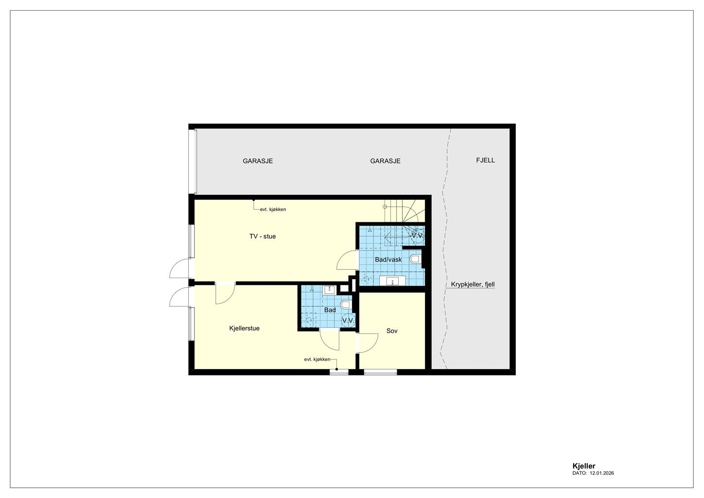
Velkommen til P. A. Holms vei 30, en stor og innholdsrik enebolig med bl.a. mulighet for 2 hybler i nyoppusset underetasje. Stor og romslig hovedetasje med bl.a. 3 soverom, 2 bad, kjøkken og stue/spisestue. 2. etasje inneholder 2 soverom, bad, kjøkken og stue/spisestue. Oppsummert inneholder boligen bl.a. 5 bad (2 nyoppusset i 2024), 6 soverom og 4 stuer. Stort lagringsloft. Romslig hage, garasje på 31 kvm og utvendig parkeringsplass. Boligen har en meget barnevennlig og trafikkskjermet beliggenhet innerst i en blindvei, i umiddelbar nærhet til barnehager, Munkerud skole, buss og nærbutikk. Det er også kort vei til bl.a. servicetilbud på Sæter, trikkeholdeplass og fritidstilbud.
Område
Legg til steder som er viktige for deg
På flyttefot? Tenk kjøp og salg samtidig.
Få din egen rådgiver gjennom hele kjøps- og salgsprosessen. Det starter med en verdivurdering.
Unngå doble boligrenter
Vi tilbyr gunstig forsikring.
Vurderer du utleie?
Få et tilbud fra Utleie KrogsveenHva koster lånet?
Sjekk estimert lånekostnadVil du varsles om lignende boliger?
Ved å lagre ditt boligsøk hos oss får du beskjed når vi har en bolig som ligner denne, før den legges ut på markedet!



































































