Komplett salgsoppgave

Strømtangvegen 21 og 23

4 075 000 kr
98 m²
3 soverom
Illustrasjon på balkong hjørneleilighet mot vest.
Illustrasjon på balkong hjørneleilighet mot vest.
Kart
Del
Porsgrunn - Brevik
Senk skuldrene i prosjektert leilighet på solkysten. Fantastisk utsikt og solforhold.
Sjekk estimert lånekostnad

    Pris

  • Prisantydning
    4 075 000 kr
  • Andel fellesgjeld
    4 075 000 kr
  • Omkostninger
    6 635 kr
  • Totalpris
    8 156 635 kr

    Areal

  • BRUKSAREAL
    103 m²
  • BRA-I (internt bruksareal)
    98 m²
  • BRA-E (eksternt bruksareal)
    5 m²
  • TBA (terrasse-balkongareal)
    16 m²

    Nøkkelinfo

  • Etasje
    4
  • Byggeår
    2026
  • Soverom
    3 soverom
  • Bad
    2 bad
  • Type
    Andelsleilighet
  • Eierform
    Andel
  • Fasiliteter
    Garasje/P-plass, Heis og Balkong/Terrasse
  • Fellesutgifter
    21 826 kr

Interessert?

Dette prosjektet har ingen planlagte visninger, kontakt megler for mer informasjon eller meld din interesse så holder vi deg oppdatert om prosjektet.
Lurer du på noe?

Beskrivelse

Kort om enheten

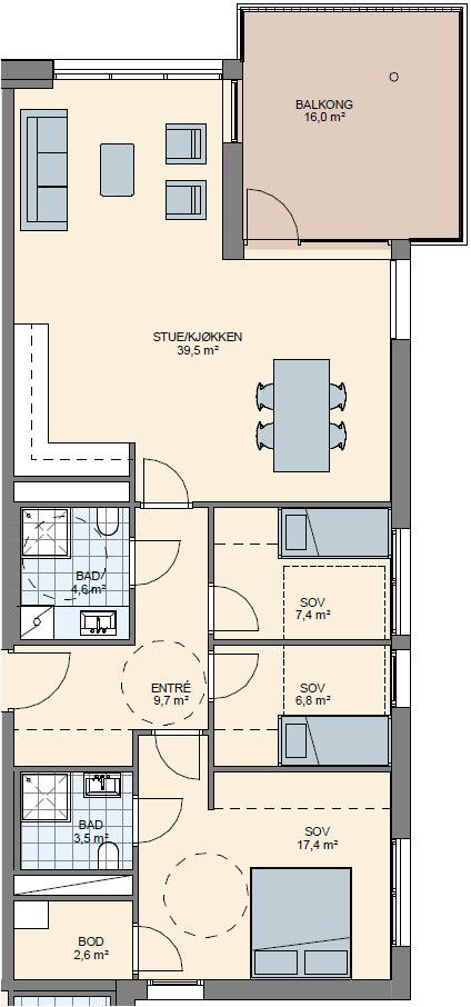
Fantastisk hjørneleilighet med slående utsikt til vannet og en stor solrik balkong. God romløsning med stort oppholdsrom med mye vinduer og åpen kjøkkenløsning. Romslig entré, 3 soverom og 2 bad. I seilskutebyen Brevik planlegges det 78 nye lekre og lyse leiligheter, fordelt på tre såkalte bryggehus, alle med solrike balkonger. På en fantastisk tomt, ved vannkanten i Trosvik, med Brevik sentrum rett rundt svingen, utvikler nå Heimgard Bolig et flott, og svært attraktivt prosjekt. Her blir det heis fra garasjeanlegg til hvert leilighetsnivå, gode solforhold og en utsikt som tar pusten fra de fleste. Leiligheten får god standard med en stavs eikeparkett, malte flater med delikate fargevalg, balansert ventilasjon, vannbåren varme, store fliser på badet og gode kjøkkenløsninger. Leverandører er ennå ikke valgt og det blir gode muligheter for å gjøre tilvalg ved behov og hvis du er tidlig ute i prosessen.

Innhold og byggemåte

Eiendommen

Strømtangvegen 21 og 23, 3950 BREVIK
Kommunenummer 4001, gårdsnummer 83, bruksnummer 218, ideell andel 1/1
Andelsnummer undefined, undefined, organisasjonsnummer undefined

Enhetsbeskrivelse

Totalt bruksareal BRA: 103 kvm
BRA-i:
4. etasje 98 kvm: Entré, stue/kjøkken, 3 soverom, 2 bad og bod.
BRA-e:
4. etasje 5 kvm: Sportsbod
Åpent areal:
4. etasje 16 kvm: Balkong
Arealene er beregnet etter Norsk Standard 3940. BRA-i-arealet angir boarealet inklusive innvendig bod. De oppgitte arealene i markedsføringen er å betrakte som ca. areal. Partene har ingen krav mot hverandre dersom arealet skulle vise seg å være 5 % mindre/større enn markedsført areal.

Kjøkkenleveranse

Det vil bli levert kjøkkeninnredning av anerkjent leverandør med integrerte hvitevarer av god kvalitet. Kjøkken leveres i den utstrekning som vises på plantegningen. Endelig plassering av hvitevarer gjøres i detaljprosjekteringen. Tegninger fås utdelt ifm. tilvalgs prosessen. Ventilasjons hette integrert i overskap, eller takhengt modell der hvor komfyr ikke er langs vegg. Avtrekk fra kjøkken leveres med kullfilter. Se flere detaljer i "romskjema" i prospekt.

Baderomsleveranse

Bad leveres som prefabrikerte våtromskabiner eller plassbygde bad. Det leveres 60x60 cm flis på vegger og gulv og 10x10 flis i dusjsone med innfellbare dusjvegger i glass, vegghengt wc samt heldekkende servant i skuffeseksjon. Det blir også levert speil med integrert belysning. Varmekabler på gulv.

Andre oppholdsrom

Gulv med en-stavs hvitpigmentert eikeparkett. Gulvlister i samme utførelse. Skillevegger mellom leilighetene utføres som isolerte lyd -og brannvegger i gips eller betong. På lydisolerte vegger, kan det bli montert utenpåliggende elektrisk anlegg, grunnet lydkrav. Innvendige lettvegger blir kledd med gipsplater og malt i fargen Washed linen. Himlinger blir malt i fargen Bomull. Det vil være mulighet for å velge blant et gitt utvalg av farger som tilvalg. Det kan bli synlige V-fuger i leiligheter avhengig av valgt produksjonsmetode. Det leveres ikke taklister. Innvendige dører leveres i hvit glatt utførelse. Alt listverk leveres med synlige spikerhull. Generell takhøyde er ca. 2,50 m. Det blir lokale nedforinger og innkassinger. Se mer i "leveransebeskrivelse" i prospekt.

Tilvalgsmuligheter denne enhet

Er du tidlig ute i prosessen, strekker vi oss så langt det er mulig for å tilpasse planløsningen til dine behov.

Viktig informasjon om enheten

Trosvik Brygge blir etablert som et borettslag med en finansieringsløsning på 50% innskudd og 50% andel fellesgjeld. Du vil kunne innløse så mye av fellesgjelden du ønsker etter innflytting. På denne måten regulerer du selv størrelsen på månedlige fellesutgifter i forhold til hvor stor andel fellesgjeld du har og hvor mye renter du betaler pr. mnd. Husk også at det p.t. er 22% fradrag på gjeldsrenter.
Selger planlegger å ferdigstille byggetrinn 1 i 4. kvartal 2027. Dette tidspunktet er foreløpig og ikke bindende og det utløser ikke krav på dagmulkt. Selger har tatt forbehold for gjennomføring av kontrakten, og byggearbeidene blir ikke igangsatt før forbeholdene er frafalt. Et av forbeholdene er bl.a. at det oppnås 50% salg i byggetrinn 1. Se ellers eget punkt om forbehold.
Se fullstendig salgsoppgave/beskrivelser på prosjektets hjemmeside: www.trosvikbrygge.no

Oppvarming

Det tas forbehold om oppvarmingsløsning for varme og tappevann. Det vil bli vannbåren varme via radiator. Se leveransebeskrivelse.

Energimerking

Når en bolig selges før den er ferdig bygget skal selger oppfylle plikten ved å garantere for energi- og oppvarmingskarakter og lage fullstendig energiattest ved ferdigstillelse. Normalt påregnes energiklasse B eller C, man kan dog ende opp med lavere energiklasse uten at dette anses som en mangel.

Beliggenhet og tomteforhold

Parkering

Brevik, en sjarmerende perle som ligger ved kysten i Telemark. Med sin rike historie, idylliske trehusbebyggelse og livlige kystkultur, er Brevik et sted som fanger hjertene til besøkende og innbyggere. Det lille samfunnet har både matbutikk, Telemarks største restaurant med sagnomsust pizza og nytt oppvekstsenter med barnehage, barneskole og flott idrettsanlegg. I tillegg er det kulturhus, bymuseum og kirke hvor det stadig arrangeres teater, konserter og foredrag. Byens innbyggere er stolte av Brevik og får til mye bra. Det er bl.a. en aktiv velforening, historielag, trebåtens venner og idrettslag som arrangerer ulike arrangementer igjennom året. Seilforeningen, som holder til på Seivall, har ukentlige regattaer, og er et fint skue på fjorden. Det er fine turstier i nærområdet, til Utsikten, Dammane og videre til Kjørholt. Du kan også ta den nye elektriske ferga til Sandøya og Bjørkøya. Sommerstid kan du hoppe på bl.a. Skjæløy II, som tar deg på øyhopping i den vakre skjærgården rett utenfor døra. Det er fin badestrand på østsiden av Øya, den er også tilrettelagt for rullestolbrukere. Det er gangavstand til offentlig transport med busser som går mot Porsgrunn og Langesund. Med bil er det ca. 20 minutter til Porsgrunn sentrum. I tillegg er det knutepunkt på Skjelsvik og ved Lasses', for busser videre til Sørlandet og Oslo. Brevik ligger omtrent midt mellom Oslo (ca. 15 mil) og Kristiansand (ca. 16 mil) og like ved E18. Det er også kun ca. 40 minutter med bil til Torp flyplass. Rett over broen, har du Brotovet shoppingsenter med bl.a. klesbutikker, apotek, flere matbutikker og vinmonopol. Her er det også helsetjenester og bank.
Det blir felles garasjeanlegg under alle byggene hvor det er mulighet for å kjøpe 1 p-plass per leilighet. Innkjøring vil bli på byggets østre side. Resterende plasser er avsatt til gjesteplasser.

Økonomi

Boligens kostnader

Da boligene ikke er tatt i bruk, foreligger det ingen eksakt oversikt over faste, løpende kostnader, men rene driftsutgifter er stipulert i prislisten.
Driftskostnadene for den enkelte leilighet er stipulert i henhold til budsjett og fordeles etter areal. Endelig størrelse på driftskostnader vil bli satt opp av forretningsfører/borettslagets styre, ved overtakelse, og styret vil påse at evt. nødvendig endring i driftskostnader innføres.
Driftsutgifter dekker normalt:
• Klargjøring til fiberkabel TV/ Internett
• Bygningsforsikring
• Forretningsførsel av borettslaget, og evt. teknisk forvaltning
• Revisjon
• Andre driftskostnader som f.eks. fellesstrøm og utgifter til garasje/ bodanlegg
• Utvendig vedlikehold
• Brøyting/plenklipping/renhold.
• Eiendomsskatt/kommunale avgifter.
Telefon, strøm, akontobeløp fjernvarme, innboforsikring etc. bekostes av den enkelte beboer.
I tillegg kommer renter på din andel av felleslånet som blir innkrevd fra forretningsfører via månedlige felleskostnader (summen av drifts og rentekostnader).
Kjøper forplikter seg til å respektere den organiseringen og kostnadsfordelingen som selger anser hensiktsmessig. Endelig budsjett fastsettes ved stiftelse av borettslaget.
Det tas forbehold om endringer i stipulerte driftsutgifter, da dette er basert på erfaringstall og budsjett fra forretningsfører.

Formuesverdi

Da boligen selges som bygg under oppføring er formuesverdien ikke fastsatt på nåværende tidspunkt. Formuesverdi fastsettes med utgangspunkt i en formel for kvadratmeterpris som fastsettes av SSB. Den estimerte kvadratmeterprisen er fastsatt ut fra flere kriterier (beliggenhet, alder, areal og boligtype) som danner markedsverdien i området. Boligens faktiske markedspris vil derfor ikke være Skatteetatens grunnlag for den første fastsettelsen av formuesverdi.
Det første året boligeiendommen skal formues verdsettes, må skatteyter påse å gi tilstrekkelig med opplysninger om boligen til skattemyndighetene slik at korrekt estimert markedsverdi og formuesverdi kan beregnes. Formuesverdien vil senere automatisk justeres i takt med prisutviklingen på boliger og beregnet formuesverdi vil fremgå av forhåndsutfylt skattemelding. Se www.skatteetaten.no for beregning av formuesverdi/ligningsverdi.

Annen viktig informasjon

Eier

Trosvik Boligutvikling AS

Opplysninger om oppdraget

Oppdragsnummer 28-0093/24
Eiendomsmegler Krogsveen AS, avd. Bamble og Porsgrunn
Strandgata 22, 3960, STATHELLE
950 007 613
Oppdragets KR-kode KR28.2493

Dato

Sist oppdatert: 16. juni 2025 kl. 10:34

Dokumenter

Utskriftsvennlig salgsoppgave

Område

Legg til steder som er viktige for deg

Prisutvikling for området

Kvadratmeterpris
0 kr/m²
Endring
↘︎ % ()

Interessert?

Dette prosjektet har ingen planlagte visninger, kontakt megler for mer informasjon eller meld din interesse så holder vi deg oppdatert om prosjektet.
Lurer du på noe?

På flyttefot? Slik gjør vi det enklere for deg

Skreddersydd flyttepakke

Vi fikser håndverkere, vask, pakking, lagring og transport, og legger ut for utgiftene underveis.

Hjelp med både kjøp og salg

Hos oss har du din egen rådgiver gjennom hele kjøps- og salgsprosessen.

Hjelp til finansiering

Vårt samarbeid med BN Bank sikrer deg rask og løsningsorientert hjelp, til konkurransedyktige betingelser.