Pettersvollen 5E
2 950 000 kr
38 m²
1 soverom
Komplett salgsoppgave
Konnerud
Meget pen to-roms leilighet med høy standard. Vannbåren gulvvarme. Null fellesgjeld. Heis.
Prisantydning
2 950 000 krOmkostninger
11 040 krTotalpris
2 961 040 kr
Pris
Bruksareal
43 m²BRA-I (internt bruksareal)
38 m²BRA-E (eksternt bruksareal)
5 m²TBA (terrasse-balkongareal)
13 m²
Areal
Etasje
3Byggeår
2023Soverom
1 soveromBad
1 badType
AndelsleilighetEierform
AndelFasiliteter
Heis og Balkong/TerrasseFellesutgifter
3 742 krEnergimerke
Rød C
Nøkkelinfo
Unngå doble boligrenter
Vi tilbyr gunstig forsikring.
Vurderer du utleie?
Få et tilbud fra Utleie KrogsveenHva koster lånet?
Sjekk estimert lånekostnadBeskrivelse
Kort om eiendommen
- Selger har nedbetalt sin andel fellesgjeld og har pr. dd. kr 0,- i andel fellesgjeld
- Leiligheten ligger i 3. etasje fra gateplan, men i 1. etasje fra atrium som kun er tilgjengelig for beboere
- Gulvvarme i alle rom og balansert ventilasjon
- Pent kjøkken og pen flislagt bad
- Leiligheten disponerer en bod på ca. 5 kvm
- Terrasseplatting på ca. 13 kvm
- Heisadkomst til leilighetens etasjeplan
- Gjenværende garanti fra utbygger (5 år fra 2023)
- Pent atrium som kun er for beboere og felles takterrasse
- Leiligheten ligger i nærheten av flott turterreng med lysløype
- Eiendommen er i direkte tilknytning til Konnerudsenteret, som er bydelens naturlige samlingssted for handel
Innhold og byggemåte
Innhold og byggemåte
Eiendommen
Pettersvollen 5E, 3032 DRAMMEN
Kommunenummer 3301, gårdsnummer 80, bruksnummer 1668, ideell andel 1/1
Andelsnummer 2, Konnerud Senter Panorama Borettslag;, organisasjonsnummer 929299868
Innhold
BRA-i (Internt bruksareal):
Andelsleilighet:
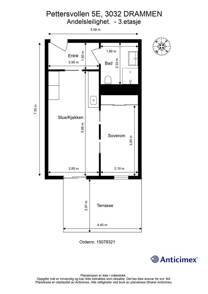
3. etasje 38 kvm: Entre, bad, 1 soverom og åpen stue/kjøkkenløsning
BRA-e (Eksternt bruksareal):
Andelsleilighet:
2. etasje 5 kvm: Bod
Åpent areal (Terrasse- og balkongareal):
Andelsleilighet:
3. etasje 13 kvm: Terrasse
Leiligheten disponerer en boder beliggende i byggets 2. etasje. Det gjøres oppmerksom på at boligens eksterne bod tilhører borettslagets fellesareal, og at boden således ikke eies av den enkelte andelseier. Dette medfører at borettslaget i fellesskap beslutter bruken, og at man ikke selv har eierrett og rettsvern for boden. Borettslaget kan ved vedtak beslutte annet bruk av fellesarealet og disponering av bodarealet kan dermed opphøre.
Vedlagte plantegninger er ikke målbare. De oppgitte arealer er hentet fra rapport med befaringsdato 13.01.2026 utført av Anticimex Sandefjord AS.
Byggemåte
Bygningen er iht. tilstandsrapporten oppført med støpt gulv mot grunn og grunnmur og etasjeskillere i betong. Bærende konstruksjoner i betong med utfyllende yttervegger i tre. Utvendige fasader med trekledning, pussede flater fasadeplater. Vinduer i tre -lags glass med karmer og rammer i tre. Entredør med brannklassifisering B30. Yttertaket er flatt og tekket med papp/folie.
Les for øvrig mer om byggemåte og den tekniske tilstanden i rapporten.
Selger har fått utarbeidet en tilstandsrapport, dvs. en teknisk gjennomgang av boligen hvor eventuelle avvik, risiko for kjøper og prisoverslag for hva som bør gjøres av oppgradering, er skissert. Se særskilt TGIU (tilstandsgrad ikke undersøkt), samt TG2 og TG3 som viser hva som er avvik fra boligens normale slitasje, alder og type, eller som bør/må utbedres. Rapporten og selgers egenerklæring er en del av salgsoppgaven og må leses nøye før bud inngis. Kjøper overtar ansvaret for de opplysninger som fremkommer av salgsdokumentasjonen, og kan ikke gjøre gjeldende som mangel noe som burde vært kjent eller som ikke kan anses å ha betydning for avtalen. Ingen kontrollpunkter/forhold har blitt tildelt TG3 i tilstandsrapporten.
TG2 gir uttrykk for forhold som avviker fra dagens byggetekniske krav i vesentlig og mindre grad. Dette betyr at konstruksjonen enten har feil utførelse, en skade eller tegn på skade, sterk slitasje eller nedsatt funksjon. Vedlikehold eller tiltak må påregnes i nær fremtid. TG3 gir uttrykk for forhold som har store eller alvorlige avvik. Det må påregnes utbedring straks eller utbedring innen kort tid.
Følgende kontrollpunkter/forhold har blitt tildelt TG2:
-Det er ikke mulig å verifisere om slukmansjett og klemring er benyttet eller om monteringen er korrekt.
Øvrige TG2-punkter i rapporten har blitt tildelt tilstandsgraden ut i fra aldringsskader og slitasje.
Se vedlagt tilstandsrapport for supplerende informasjon vedrørende boligens tilstand.
Tilstandsrapporten og selgers egenerklæring er vedlagt salgsoppgaven. Interessenter må sette seg inn i dokumentene før bud inngis.
Standard
Meget lekker to-roms leilighet med høy standard. Leiligheten har en god planløsning og store vindusflater gir mye lys inn i leiligheten. Fin utsikt ut mot felles hage/atrium.
Hele leiligheten er pent malt i lyse delikate farger og gir et meget godt inntrykk. Lys pen parkett i alle rom, bortsett fra badet som har delikate lyse fliser.
Leiligheten ligger i 3. etasje fra gateplan, men i 1. etasje fra atrium som kun er for beboere. Borettslaget har et pent atrium som kun er for beboere, felles takterrasse på naboblokk, som alle kan benytte.
Leiligheten disponerer en bod på ca. 5 kvm beliggende i byggets 2. etasje. Heis- og trappeadkomst til leilighetens etasjeplan. Lyse og pene fellesområder.
Overflater:
Gulv: Fliser og parkett
Vegger: Fliser og malte flater
Himling: Malte flater
Innhold:
Innbydende entré med callinganlegg og plass til å henge fra seg yttertøy. Vannbåren gulvvarme.
Stue med åpen løsning mot kjøkken. Plass til sofa. Utgang til terrasseplatting på ca. 13 kvm. Stue og kjøkken har vannbåren gulvvarme.
Stilfull kjøkkeninnredning fra Crown Imperial. Innredning med mørke slette fronter og benkeplate i laminat med nedfelt oppvaskkum. Nedfelt induksjonstopp. Ventilator med avtrekk. Integrert stekeovn, oppvaskmaskin og kjøleskap. Komfyrvakt og waterguard. Integrerte hvitevarer på kjøkkenet medfølger eiendommen.
Pent flislagt bad med gulvvarme. Downlights i himlingen. Servantskap med hvite slette fronter og heldekkende servant. Speil med integrert lys på. Dusjhjørne med dusjvegger i glass og vegghengt toalett. Mekanisk avtrekk tilkoblet boligens ventilasjonsanlegg. Ny vaskemaskin medfølger.
Soverom med skyvedørsgarderobe. To dører inn til soverommet gir en enkel adkomst om det er dobbeltseng i rommet.
Integrerte hvitevarer på kjøkkenet og vaskemaskin på badet medfølger eiendommen. Videre vises det til liste fra Norges Eiendomsmeglerforbund angående løsøre og tilbehør. Produkter og installasjoner som medfølger overdras uten noen form for garantier, utover eventuell gjenværende leverandørgaranti.
Oppvarming
Varme i alle gulv. Varmekablene er elektrisk på bad og vannbåren i resten av leiligheten. Vannbårne varmen er fra felles elkjele, men jfr utbygger Ticon klargjort for fjernvarme dersom Drammen fjernvarme kommer til Konnerud. Forøvrig balansert ventilasjon med varmegjenvinner. Forøvrig ingen varmekilder i boligen.
Ferdigattest/brukstillatelse
Drammen kommune opplyser om at det ikke foreligger ferdigattest på eiendommen, men midlertidig brukstillatelse ble gitt for 72 boliger og utomhusarealer datert 16.06.2023. Arbeidene som gjenstår er utearealer mot Pettersvollen. Frist for utføring av gjenstående arbeider var satt til 31.12.2023. Arbeid som gjenstår er bygging av fortau, sykkelvei etc. Styreleder informerte til megler januar 2026 at det usikkert når ferdigattest vil komme på plass, da det nå kan se ut som ferdigstillelsen henger sammen med nybygging, fra samme utbygger, på nabotomten. Ferdigattest utstedes mot dokumentasjon på at arbeidet er ferdigstilt.
Kjøper overtar eiendommen slik den framstår på visning
Tinglyste heftelser og rettigheter
Utover andel fellesgjeld overdras leiligheten fri for pengeheftelser.
Borettslaget har legalpant for forfalte felleskostnader og andre krav som følger av borettslagsforholdet iht. burettslagsloven § 5-20. Pantet er begrenset oppad til 2G (G = folketrygdens grunnbeløp).
Det er tinglyst 19 servitutter og rettigheter på borettslagets eiendom. Disse omhandler blant annet tilflukstrom, tilfluktsplasser, torg åpent for allmenheten, bruksrett på felles atrium, adkomstrett for drift/vedlikehold av ledninger/kabler/anlegg, rett til vedlikehold samt utskiftning av bygningskonstruksjon, bruksrett til sykkelparkering, bruksrett til teknisk rom, bruk og vedlikehold av felles avfallsrom, bruk og vedlikehold av felles inngangsparti og bruk og vedlikehold av felles takterrasse. Ingen av disse har direkte betydning for bruken av denne boligen.
Servituttene vil følge eiendommen. Kjøpers bank vil få prioritet etter ovennevnte heftelser og servitutter.
Eventuell adgang til utleie
Andelseier kan ikke uten samtykke fra styret i borettslaget overlate bruken av boligen til andre. Med samtykke kan andelseier overlate boligen til andre i inntil tre år hvis andelseier har bodd i boligen i minst ett av de to siste år. Utleie i andre tilfeller kan godtas ved særlige grunner, jf. burettslagslova § 5-6. Utleie forutsetter at leiligheten har forsvarlige radonverdier. Se også borettslagets vedtekter og konferer megler ved spørsmål.
Diverse
Det opplyses om at bygningen/boligen er oppført i 2023, det foreligger da gjenværende garantistillelse fra utbygger (5 år fra første overtakelsesdato - Juni 2023).
Eiendommen inngår i et dødsbo hvor arvingene er selgere. Arvingene har ikke bebodd eiendommen og kjennskapen til eiendommens tilstand kan være mangelfull. Kjøper må derfor kunne påregne at det kan være flere feil og mangler som normalt oppdages ved bruk av boligen, men som selger av dødsbo ikke har mulighet å vite.
Beliggenhet og tomteforhold
Beliggenhet og tomteforhold
Beliggenhet
Leiligheten ligger meget sentralt til i det nye prosjektet Konnerud Senter Panorama. Eiendommen er i direkte tilknytning til Konnerudsenteret, som er bydelens naturlige samlingssted for handel. Senteret har bl.a. dagligvarebutikker, spisesteder, frisør, apotek og treningssenter. Det er gangavstand til barnehager og skoler.
Konnerud er en bydel som for det meste består av store boligområder. Konnerud har fått status som et velstående strøk. I dag er Konnerud en moderne forstad og et attraktivt boligområde. Hovedtyngden av utbyggingen skjedde i 1980-årene. Konnerud er omgitt av mye fin natur som er ypperlig egnet for fotturer og skiturer. Konnerud er kjent for sine snørike vintre, og er et populært rekreasjonsområde for drammensere, med skigåing på de preparerte løypene dypt inn i Konnerudskogen om vinteren og bademuligheter på Stordammen og Inntaksdammen om sommeren.
Mange fritidstilbud på Konnerud. Leiligheten ligger i nærheten av flott turterreng med lysløype. Konnerud IL. er i dag et av landets største idrettslag med sine ca. 2200 medlemmer, og er aktive i flere idretter med tilhørende idrettsanlegg. Drammens største kunstgressanlegg for fotball, med oppvarmet underlag for helårsbruk. Flott langrennsarena hvor det har vært World Cup arrangement med tilhørende standard, med bla. kunstsnø og milevis med skiløyper. Ca. 10 min. kjøring til Skoger Golfbane. 5 min. kjøring til Konnerudgruvene.
Kort gangavstand til bussholdeplass, det er gode bussforbindelser med hyppige avganger til Drammen sentrum, se www.brakar.no for rutetider. Det er ca. 10 minutters kjøring fra eiendommen til Drammen togstasjon, hvor toget tar deg til Oslo på ca. 35 minutter, se www.vy.no for avganger. Generelt god offentlig kommunikasjon mot Kongsberg, Oslo og Vestfold fra Drammen sentrum.
Adkomst
Det vil bli skiltet med Krogsveen visningsskilt ved fellesvisninger. Se kart i nettannonse eller Google Maps for nærmere veibeskrivelse. Velkommen til visning!
Barnehager, skoler og fritid
Godt sammensatt tilbud av private og offentlige barnehager.
Barnehager: Amicus barnehage (0,3 km), Svensedammen barnehage (0,4 km), Espira Gåserud barnehage (0,5 km).
Skoler: Konnerud barneskole og Svensedammen ungdomsskole.
Det ligger flere videregående skoler i Drammen og Lier, samt Universitetet i Sørøst-Norge som har campus på Papirbredden i Drammen, for mer informasjon se www.usn.no.
Dersom skole- og barnehagetilbud er av betydning for kjøpet, ber vi om at det rettes en særskilt henvendelse til kommunen for oppdatert informasjon.
Beskrivelse av tomt
Felles tomt opparbeidet med atrium med blant annet belegningsstein, diverse beplantninger, plenarealer, terrasse på terreng og sittegrupper. Tomten består av kjøpesenter i de to nederste etasjene og leiligheter over.
Parkering
Gateparkering etter områdets bestemmelser.
Vei, vann og avløp
Eiendommen har adkomst via kommunal vei.
Eiendommen er tilknyttet kommunalt ledningsnett via private stikkledninger.
Borettslaget er ansvarlig for private stikkledninger til bygningen.
Regulerings-og arealplaner
Eiendommen er hovedsakelig regulert til sentrumsformål, i henhold til områdereguleringsplan for Konnerud sentrum datert 26.05.2020. Planen legger opp til en videreutvikling av bydelssentrum på Konnerud og omfatter blant annet bygging av ca. 600 nye boliger. I tillegg vil det bli etablert et nytt torg med nye butikker og andre servicetilbud. Det er allerede flere bygninger som er igangsatt og ferdigstilt. Det må derfor påregnes byggeaktivitet og støy i byggeperioden. Se mer informasjon på kommunen sin hjemmeside
Videre er eiendommen avsatt til sentrumsformål, miljøkvalitet, estetikk, natur, landskap og grønstrukturer ved kommuneplanen datert 18.06.2025.
Det gjøres oppmerksom at på naboeiendommen er det gitt rammetillatelse for oppføring av et boligbygg på 5 etg. og 95 nye leiligheter. Det det må derfor påregnes byggeaktivitet og støy i byggeperioden. Se mer informasjon på kommunen sin hjemmeside.
Utsnitt av plan med tilhørende bestemmelser kan fås ved henvendelse til megler.
Økonomi
Økonomi
Boligens kostnader
Fellesutgiftene er kr 3.742,- pr. mnd. og inkluderer: Vannbåren varme, kommunale avgifter (vann og avløp), renovasjon, tv/internett fiberaksess, felles vedlikehold, felles driftskostnader, snøbrøyting/plenklipping, strøm i fellesarealer, forretningsførsel, revisjon- og administrasjonskostnader, styrehonorar, felles bygningsforsikring m.m.. Felleskostnadene justeres normalt en til to ganger årlig i forhold til borettslagets faktiske utgifter. Felleskostnadene ble sist justert 1/1-26.
Felleskostnadene pr. mnd. fordeles slik:
-Grunnkostnad kr 3.006,-
-Akonto varmt vann kr 304,-
-Akonto kaldt vann kr 304,-
-Bod kr 128,-
TV/Internett. Borettslaget har avtale om Altibox Fiberaksess. Det betyr at den enkelte gjennom felleskostnadene betaler en liten sum for å få tilgang til de tjenestene Altibox leverer. Videre tar man kontakt med Altibox og gjør direkte avtale med de om hvilken "pakke" man ønsker ifht innhold, kapasitet og hastighet. Fiberaksesskostnaden ligger under likedelte kostnader i fellesutgiftene. Abbonement på pakken man velger fra Altibox vil ha en kostnad i tillegg som den enkelte må betale i tillegg som eget abonnement til Viken Viber.
Selger har ikke bebodd boligen og har således ikke kjennskap til øvrige løpende utgifter. Selger anslår et strømforbruk på ca. 5000 kWh pr. år. Det er ikke inngått avtale om Norgespris.
Det må påregnes kostnader til innboforsikring og strøm.
Ovenstående er basert på nåværende eier/husstands senere års forbruk/utgifter. Dette vil variere avhengig av antall beboere, ønsket innetemperatur, egne fordelsavtaler, kanalvalg, hastighet på bredbånd osv.
Formuesverdi
Ved hjelp av skatteetatens boligkalkulator er boligens formuesverdi beregnet til kr. 835 148,- for fjoråret når boligen benyttes som primærbolig.
Formuesverdien er en gitt prosent av den beregnede markedsverdien. Beregnet markedsverdi er basert på Statistisk sentralbyrå (SSB) sine opplysninger om omsatte boliger. I beregningen tas det hensyn til boligens beliggenhet, areal, byggeår og boligtype.
Det er eier av boligen som fastsetter formuesverdien, jf. skatteforvaltningsloven § 9-1 første ledd, men skattemyndighetene kan kontrollere at verdien er satt riktig.
Formuesverdi skal ikke overstige:
Primærbolig: 25 % av beregnet eller dokumentert markedsverdi opp til kr. 10 000 000, og deretter 70 % av den overskytende markedsverdi.
Sekundærbolig: 100 % av beregnet eller dokumentert markedsverdi.
Formuesverdier som overstiger disse grensene, kan kreves nedjustert av eier.
For mer informasjon se skatteetaten.no
Opplysninger om fellesgjeld
Andel formue er kr 12 313,- pr. 31.12.2025
Andel fellesgjeld er kr 0,- pr. 09.01.2026
Total fellesgjeld for boligselskapet er kr 74 820 000,-,- pr. 09.01.2026 og lånevilkårene er:
Lånenummer: 94937056901, Handelsbanken
Annuitetslån, 2 terminer per år.
Rentesats per 09.01.2026: 5.05% pa.
Antall terminer til innfrielse: 75
Saldo per 09.01.2026: 74 820 000
Andel av saldo: 0
Første termin: 30.12.2023. Neste avdrag: 30.12.2038 (siste termin 30.06.2063)
Opprinnelig innfrielse lån (IN): 1 145 000
Nedkvittert saldo innfrielse per d.d. (IN): 1 145 000
Flytende rente
IN-lån flytende rente. Avdragsfritt t.o.m 30.12.38
Laget har avtale om individuell nedbetaling av fellesgjeld (IN-ordning). Det vil si at hver enkelt andelseier helt eller delvis kan velge å nedbetale sin andel av borettslagets fellesgjeld til boligbyggelaget. Selger har nedbetalt alt av andel fellesgjeld for leiligheten og har pr. dd. kr 0,- av andel fellesgjeld. Borettslaget kan i fremtiden gjennomføre prosjekter som kan føre til økt andel fellesgjeld for leiligheten. Det foreligger imidlertid ingen planer om dette per i dag.
Omkostninger
2 950 000,00 Prisantydning
Omkostninger
9 950,00 Gjensidige Boligkjøperpakke (valgfri)
545,00 Tinglysing hjemmel
545,00 Tinglysing panterettsdokument
--------------------------------------------------------
11 040,00 Omkostninger totalt
--------------------------------------------------------
2 961 040,00 Totalpris inkl. omkostninger
--------------------------------------------------------
Dersom kjøper ikke er medlem av boligbyggelaget (NBBO), må det påregnes en innmeldingsavgift og årlig medlemsgebyr pr. ny andelseier. Dette faktureres direkte fra boligbyggelaget.
Dersom forkjøpsrett benyttes skal ny kjøper i tillegg betale et gebyr til boligbyggelaget på kr 8.406,-.
Dersom borettslaget har fellesgjeld, vil leilighetens andel av fellesgjelden komme i tillegg til kjøpesummen. Denne gjelden skal ikke innbetales i oppgjøret, men følger leiligheten.
Det tas forbehold om endringer i avgifter og gebyrer.
Betalingsbetingelser
Kjøpesum inkludert omkostninger, samt pantedokument tilknyttet eventuelt lån, skal være disponibelt hos megler 2 virkedager før overtagelsen.
Annen viktig informasjon
Annen viktig informasjon
Eier
Anita Benedicte Hofstad
Informasjon om borettslaget
Leiligheten er tilknyttet Konnerud Senter Panorama Borettslag.
Borettslaget består av 31 leiligheter, fordelt på 1 bygning.
Forretningsfører er Nedre Buskerud Boligbyggelag, tlf. 32 21 15 00.
Sameiets årsregnskap for 2024 viser et overskudd på kr 299.819,-.
Dugnader tilknyttet borettslaget må påregnes.
Dyrehold er i utgangspunktet tillatt. Beboere som holder dyr skal sørge for at det ikke sjenerer noen, eller etterlater ekskrementer/urin på KSP sitt område, eller på annen måte opptre så det blir skader på bebyggelse eller fellesarealer.
Generalforsamlingen godkjentepå møte avhodt 27.06.2025 retningslinjene for oppsetting av glassrekkeverk på plattinger beliggende på bakkeplan, og gir styret fullmakten til å behandle søknader om
dette.
Bygningsmassen var ferdigstilt sommeren 2023, så det er ikke gjennomført noe vedlikehold på bygningsmassen så langt.
I henhold til borettslagets vedtekter må kjøper godkjennes av styret som ny andelseier. Det er kjøpers ansvar at styregodkjenning blir gitt, men styret kan ikke nekte godkjenning uten saklig grunn. Iht. burettslagslova kan man bare eie en andel i borettslaget. Kun fysiske personer kan være andelseiere.
Borettslaget er tilknyttet Borettslagenes Sikringsordning AS som dekker manglende innbetaling av felleskostnader fra øvrige andelseiere. Avtalen om sikring er gyldig til avtalen sies opp av en av partene. Oppsigelsesfrist er 1 desember med gyldighet fra førstkommende årsskifte.
Borettslagets bygningsmasse er fullverdiforsikret i Gjensidige Forsikring Asa, polisenr.: 92591126.
Dokumenter vedrørende borettslaget kan fås ved henvendelse til megler.
Overtakelse
Etter nærmere avtale. Overtakelse kan tidligst skje etter at forkjøpsretten for øvrige andelseiere i borettslaget og eventuelt medlemmer av boligbyggelaget er avklart, samt at styrets godkjennelse er avklart.
Boligselgerforsikring
Selger har i forbindelse med salget tegnet Boligselgerforsikring levert av Gjensidige. Boligselgerforsikring dekker selgers ansvar etter avhendingsloven begrenset oppad til kr 14 millioner. Dersom kjøper oppdager forhold ved eiendommen som hen mener utgjør en mangel ved eiendommen, vil Gjensidige behandle reklamasjonen på vegne av selger. Forsikringsvilkår kan fås ved henvendelse til megler.
Vedlagt salgsoppgaven følger selgers egenerklæringsskjema og tilstandsrapport. Interessenter må sette seg inn i dokumentene før bud inngis. Egenerklæringen er fylt ut av arvingene iht deres kjennskap om eiendommen. Da de ikke har bebodd eiendommen kan kjennskapen være mangelfull.
Boligkjøperforsikring
Innen kontraktsmøtet må kjøper ta stilling til om det ønskes å bestille Boligkjøperpakken gjennom Gjensidige. I denne gunstige pakken er boligen ferdig forsikret og inkluderer rettshjelpsforsikring, også kalt Boligkjøperforsikring. Rettshjelpsforsikring gir trygghet og tilgang på profesjonell juridisk hjelp dersom det oppdages uventede feil eller mangler det første året etter overtagelse. Forsikringsselskapet behandler i så fall ethvert mangelskrav kjøper måtte ha overfor selger.
Boligkjøperpakken inkluderer bygningsforsikring for hus og hytte, innboforsikring, flytteforsikring og dobbel rentedekning - i situasjoner hvor kjøper ikke får solgt nåværende primærbolig.
Kjøper mottar ingen særskilt faktura for Boligkjøperpakken da kostnaden det første året legges til kjøpesummen for boligen. Det gjøres oppmerksom på Krogsveen mottar et honorar for denne formidlingen.
Produktark for Boligkjøperpakken ligger vedlagt i salgsoppgaven.
Dersom ikke boligkjøperpakke ønskes kan kun rettshjelpsforsikring, også kalt boligkjøperforsikring, tegnes særskilt via megler. Rettshjelpsforsikringen varer i 5 år fra overtagelse og leveres gjennom Gjensidige. Ta kontakt med megler for ytterligere informasjon.
Selskap og privatpersoner som driver med kjøp/salg/utvikling som ledd i egen næringsvirksomhet kan ikke tegne boligkjøperpakke eller rettshjelpsforsikring.
Budgivning
Forbrukerinformasjon om budgivning er vedlagt denne salgsoppgaven og er også på vår hjemmeside Krogsveen.no. Alle bud og budforhøyelser må inngis skriftlig. I tillegg må legitimasjon være fremlagt sammen med signatur fra budgiver.
Vi oppfordrer til å gi bud elektronisk via GI BUD-knappen på eiendommens hjemmeside på Krogsveen.no. Da vil samtlige vilkår bli oppfylt.
Eventuelle forhøyelser eller endringer av budet kan bekreftes pr SMS eller på e-post. Vi oppfordrer alltid til å kontakte megler pr. telefon i tillegg da forsinkelser i SMS og e-post kan forekomme.
For at budene skal kunne bli behandlet og videreformidlet skriftlig til alle involverte parter, må alle bud ha en tilstrekkelig lang akseptfrist, jf. eiendomsmeglingsforskriften § 6-3.
Selger må også skriftlig akseptere budet før aksept kan formidles til budgiver. Akseptfrist bør derfor være på minimum 30 minutter, og budforhøyelser må derfor skje i god tid før fristens utløp.
Bud i forbrukerforhold kan uansett ikke settes med kortere frist enn kl. 12.00 første virkedag etter siste annonserte visning. I tillegg kan ikke budet ha forbehold om at det skal holdes hemmelig ovenfor øvrige interessenter. Megler har iht lov om eiendomsmegling ikke anledning til å videreformidle disse budene, og de vil dermed heller ikke bli journalført.
Etter at eiendommen er solgt vil kjøper og selger få tilsendt budjournal. Øvrige budgivere kan få utlevert kopi av budjournalen i anonymisert form.
Hvitvaskingsreglene
I henhold til lov om hvitvasking og terrorfinansiering har megler plikt til å gjennomføre kontrolltiltak overfor kunder, herunder fullmektiger. Dette innebærer bl.a. å bekrefte kunders og reelle rettighetshaveres identitet på bakgrunn av fremvist gyldig legitimasjon eller på annen godkjent måte, samt å innhente opplysninger om kundeforholdets formål og tilsiktede art.
Dersom slike kundetiltak ikke kan gjennomføres, kan megler ikke etablere kundeforholdet eller utføre transaksjonen.
Hvis kjøper ikke bidrar til gjennomføring av kundekontrollen og dette fører til at transaksjonen blir forsinket eller ikke kan gjennomføres, vil dette ansees som mislighold av avtalen og gi selger rettigheter etter avhendingslova kapittel 5. I tilfeller der selger ikke bidrar til gjennomføring av løpende kundekontroll underveis i oppdraget, er det selger som misligholder sine forpliktelser etter avtalen og gi kjøper rettigheter etter avhendingslovens kapittel 4. Partene er selv ansvarlige for eventuelle kostnader og ansvar dette kan medføre. Eiendomsmegleren eller eiendomsmeglingsforetaket kan ikke holdes ansvarlig for de konsekvenser dette vil kunne få for partene eller andre som har interesser i eiendomshandelen.
Kjøper oppfordres til å innbetale kjøpesummen som ikke kommer fra låneinstitusjon i én samlet innbetaling fra egen konto i norsk bank. Megler har plikt til å melde fra til Økokrim om eiendomshandler som fremstår som mistenkelige. Melding sendes Økokrim uten at partene varsles.
Personopplysningsloven
I henhold til personopplysningsloven gjør vi oppmerksom på at interessenter kan bli registrert for videre oppfølging.
Lovanvendelse
Generelle bestemmelser
Salgsoppgaven er basert på de opplysningene selger har gitt til megler, den bygningssakyndiges tilstandsrapport, samt opplysninger innhentet fra kommunen, Kartverket og andre tilgjengelige kilder. Det er viktig at kjøper setter seg grundig inn i alle salgsdokumentene, herunder salgsoppgave, tilstandsrapport og selgers egenerklæring. Kjøper anses kjent med forhold som er tydelig beskrevet i salgsdokumentene, og slike forhold kan ikke påberopes som mangler. Dette gjelder uavhengig av om kjøper har lest dokumentene. Alle interessenter oppfordres til å undersøke eiendommen nøye, gjerne sammen med fagkyndig før bud inngis. Kjøper som velger å kjøpe usett kan ikke gjøre gjeldende som mangel noe han burde blitt kjent med ved undersøkelsen.
Dersom det er behov for avklaringer, anbefaler vi at interessenter rådfører seg med eiendomsmegler eller egne rådgivere før det legges inn bud.
En bolig som har blitt brukt i en viss tid, har vanligvis blitt utsatt for slitasje og skader kan ha oppstått. Slik bruksslitasje må kjøper regne med, og det kan avdekkes enkelte forhold etter overtakelse som nødvendiggjør utbedringer. Normal slitasje og skader som nødvendiggjør utbedring, er innenfor hva kjøper må forvente og vil ikke utgjøre en mangel.
Kjøper og selgers rettigheter og plikter reguleres av avtalen mellom partene, samt informasjonen som har vært tilgjengelig for kjøperen i forbindelse med handelen. Avtalen utfylles av avhendingsloven, og det gjelder ulike avtalevilkår avhengig av om kjøper er forbrukerkjøper eller ikke. Dette er nærmere beskrevet nedenfor.
På grunn av ulike avtalevilkår kan selger vurdere bud fra en som ikke er forbruker, ulikt fra en forbrukers bud. Dersom kjøper ikke er forbruker, er selger sitt mulige mangelsansvar begrenset fordi eiendommen selges "som den er". Selger kan ikke ta «som den er»- forbehold overfor en forbrukerkjøper. Selv et lavere bud fra en som ikke er forbruker kan foretrekkes fordi begrensningen i mulig mangelsansvar kan ha egenverdi for selger. Selger står fritt til å forkaste eller akseptere ethvert bud, og er for eksempel ikke forpliktet til å akseptere høyeste bud.
Budgiver skal i budskjema avgi egenerklæring om budgiver er forbruker eller næringsdrivende/ person som hovedsakelig handler som ledd i næringsvirksomhet. Budgivere får informasjon dersom andre bud er inngitt av en som ikke er forbruker.
Forbrukerkjøp - definisjon
Med forbrukerkjøp menes kjøp av eiendom når kjøperen er en fysisk person som ikke hovedsakelig handler som ledd i næringsvirksomhet.
Forbruker – avtalevilkår
Eiendommen har en mangel dersom den ikke er i samsvar med kravene som følger av avtalen, eller det foreligger brudd på bestemmelsene i avhendingsloven §§ 3-2 til 3-8. Hvis eiendommen ikke er i samsvar med det kjøperen må kunne forvente ut ifra alder, type og synlig tilstand, kan det være grunnlag for mangelskrav. Det samme gjelder hvis det er holdt tilbake eller gitt uriktige opplysninger om eiendommen. Dette gjelder likevel bare dersom man kan gå ut ifra at det virket inn på avtalen at opplysningen ikke ble gitt eller at mangelskravet ikke blir rettet i tide på en tydelig måte.
Boligen kan ha en mangel etter avhendingsloven § 3-3 andre ledd, dersom det er avvik mellom opplyst og faktisk innvendig areal, forutsatt at avviket er på 2% eller mer og minimum 1 kvm.
Ved beregning av et eventuelt prisavslag eller erstatning må kjøper selv dekke tap/kostnader opptil et beløp på kr 10 000 (egenandel).
Ikke-forbruker (næringsdrivende) – definisjon
Hvis kjøper er en juridisk person, eller en fysisk person som hovedsakelig handler som ledd i næringsvirksomhet, vil kjøpet ikke anses som et forbrukerkjøp.
Ikke-forbruker – avtalevilkår
Eiendommen har en mangel dersom den ikke er i samsvar med kravene som følger av avtalen.
Eiendommen selges «som den er», og selgers ansvar utover det konkret avtalte er da begrenset etter avhendingsloven § 3-9, første ledd andre setning.
Avhendingsloven § 3-3 andre ledd fravikes, og hvorvidt boligens arealsvikt utgjør en mangel vurderes etter avhendingsloven § 3-8.
Informasjon om kjøpers undersøkelsesplikt, herunder oppfordringen om å undersøke eiendommen nøye, gjelder også for kjøpere som ikke anses som forbrukere.
Det forutsettes at hjemmel overføres til kjøper. Hvis kjøper ikke ønsker hjemmelsoverføring av eiendommen, må det tas forbehold om dette i budet.
Meglers vederlag
Meglers vederlag betales av selger og er avtalt til:
Fastpris: 45 000,-
Vederlag:
Kontroll av hjemmel og heftelser kr 3 900,00
Markedsføringspakke kr 29 900,00
Oppgjør kr 8 900,00
Tilrettelegging kr 19 900,00
Visninger pr stk kr 3 500,00
Utlegg:
Eierskiftegebyr forretningsfører NBBO kr 6 725,00
Innhenting av informasjon forretningsfører NBBO kr 5 195,00
Innhenting av off. oppl. Drammen borettslagspakke m/ tegninger kr 1 703,00
Tinglysing sikring kr 545,00
Andre utgifter:
AX tilstandsrapport leilighet kr 10 750,00
Boligfotografering og dronebilder kr 5 150,00
Boligselgerforsikring Gjensidige Andel regnes av prisant. kr 8 070,00
Vi er opptatt av verdiskapning, og har knyttet til oss samarbeidspartnere som skal sikre våre kunder de beste produkter og tjenester;
• I forbindelse med forberedelse av salget, innhenter vi informasjon om eiendommen hovedsakelig fra vår samarbeidspartner Amibita.
• Gjensidige leverer boligselgerforsikring og tilbyr bygningsforsikring
• Boligkjøperforsikring leveres av Hiscox og med Sedgwick som skadebehandler, og er formidlet gjennom Gjensidige.
• BN bank tilbyr finansieringsløsninger
• Vår avdeling Krogsveen Pluss tilbyr flyttetjenester som utvask, visningsvask, lager, tømming og transport av flyttelass, i tillegg til å formidle kontakt med Flip for overflateoppussing.
• I forbindelse med overtagelse av eiendommen tilbyr Overo avtale om strøm, alarm og bredbånd.
• Krogsveen er, sammen med øvrige bransjeaktører, medeier i Bomega AS som tilbyr den digitale annonseringsplattformen Hjem.
Opplysninger om oppdraget
Oppdragsnummer 20-0005/26
Eiendomsmegler Krogsveen AS, avd. Drammen
Nedre Storgate 16, 3015, DRAMMEN
950 007 613
Oppdragets KR-kode KR20.265
Dato
Sist oppdatert: 27. januar 2026 kl. 10:09
Dokumenter
Dokumenter
PDF – 944 KB
PDF – 688 KB
PDF – 398 KB
PDF – 312 KB
PDF – 29 KB
PDF – 127 KB
PDF – 392 KB
Område
Legg til steder som er viktige for deg
Visning
Unngå doble boligrenter
Vi tilbyr gunstig forsikring.
Vurderer du utleie?
Få et tilbud fra Utleie KrogsveenHva koster lånet?
Sjekk estimert lånekostnadVil du varsles om lignende boliger?
Ved å lagre ditt boligsøk hos oss får du beskjed når vi har en bolig som ligner denne, før den legges ut på markedet!




