Briskeveien 64
5 250 000 kr
124 m²
2 soverom
Komplett salgsoppgave
Langhus/Bøleråsen
Halvpart av tomannsbolig med garasje i blindvei. Stor solrik tomt. Meget barnevennlig og attraktivt boligområde.
Prisantydning
5 250 000 krOmkostninger
155 240 krTotalpris
5 405 240 kr
Pris
Bruksareal
158 m²BRA-I (internt bruksareal)
124 m²BRA-E (eksternt bruksareal)
34 m²TBA (terrasse-balkongareal)
34 m²
Areal
Byggeår
1991Soverom
2 soveromBad
2 badTomteareal
670 m² (eiet)Type
Halvpart vertikaldelt boligEierform
EietFasiliteter
Garasje/P-plass og Balkong/TerrasseÅrlig velavgift
4 800 krEnergimerke
Gul D
Nøkkelinfo
Unngå doble boligrenter
Vi tilbyr gunstig forsikring.
Vurderer du utleie?
Få et tilbud fra Utleie KrogsveenHva koster lånet?
Sjekk estimert lånekostnadBeskrivelse
Kort om eiendommen
- Området er meget familievennlig, trygt og anerkjent som et godt sted å bo
- Egen garasje samt plass til en bil ekstra på tomten. Det er godt med gjesteparkering i nærområdet. Bod i bakkant av garasjen.
- Romslig tomt på 669,8 kvm med gode solforhold. Vesentlig større tomt enn standard på feltet.
- Boligen ble malt utvendig i 2022
- Romslig veranda på 22 kvm med utsikt.
- Bad i begge etasjer.
- Koselig vinterhage.
- Mulighet for å etablere et ekstra soverom i underetasjen ved behov. Det var et ekstra soverom i underetasjen på opprinnelige tegninger.
- Gangavstand til barnehager, Bøleråsen barneskole, Haugjordet ungdomsskole
- Gangavstand til buss som går til Vevelstad stasjon og Ski stasjon. Man kan også gå til Vevelstad stasjon. Toget har 4 avganger i timen til Oslo S og Ski.
Innhold og byggemåte
Innhold og byggemåte
Eiendommen
Briskeveien 64, 1405 LANGHUS
Kommunenummer 3207, gårdsnummer 107, bruksnummer 468, ideell andel 1/1
Kommunenummer 3207, gårdsnummer 107, bruksnummer 410, ideell andel 1/131
Innhold
Totalt bruksareal BRA: 158 kvm
BRA-i:
Tomannsbolig:
1. etasje 63 kvm: Entré, stue/kjøkken, bad, bod, soverom.
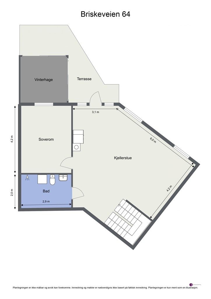
Sokkeletasje 61 kvm: Kjellerstue, bad/vaskerom, soverom.
BRA-e:
Tomannsbolig:
1. etasje 25 kvm: Garasje med bod.
Sokkeletasje 9 kvm: Vinterhage.
Åpent areal:
Tomannsbolig:
1. etasje 22 kvm: Veranda.
Sokkeletasje 12 kvm: Markterrasse.
Vedlagte plantegninger er ikke målbare. De oppgitte arealer er hentet fra rapport med befaringsdato 26.11.2025, utført av Moss Eiendomstaksering AS.
Byggemåte
Selger har fått utarbeidet en tilstandsrapport, dvs. en teknisk gjennomgang av boligen hvor eventuelle avvik, risiko for kjøper og prisoverslag for hva som bør gjøres av oppgradering, er skissert. Se særskilt TGIU (tilstandsgrad ikke undersøkt), samt TG2 og TG3 som viser hva som er boligens normale slitasje, alder og type, hva som er avvik fra dette og hva som bør/må utbedres. Rapporten og selgers egenerklæring er en del av salgsoppgaven og må leses nøye før bud inngis. Kjøper overtar ansvaret for de opplysninger som fremkommer av salgsdokumentasjonen, og kan ikke gjøre gjeldende som mangel noe som burde vært kjent eller som ikke kan anses å ha betydning for avtalen.
Bygningen er iht. tilstandsrapporten oppført med tak tekket med betongtakstein. Renner og nedløp i stål. Montert snøfangere og stigetrinn. Pipe med helbeslag. Yttervegger over grunnmur oppført i isolert bindingsverk. Fasader med liggende trepanel. Saltak med kaldtloft, oppført med w-takstoler og undertak med sutakplater. Adkomst til loft ved nedfellbar loftstrapp. Vinduer med ramme og karm i tre med 2-lags isolerglass. Terrassedør med ramme og karm i tre med 2-lags isolerglass. Veranda 23 kvm oppført i trekonstruksjon med terrassebord på bjelkelag understøttet på trestolper. Rekkverk i tre. Sokkeletasje med utgang til markterrasse oppført med terrassebord på tilfarere. Grunnmur fundamentert på komprimert bærelag. Det er ikke observert vesentlige sprekker som symptom på setninger. Drenssystem uten kjente oppgraderinger. Murt/støpt grunnmur på sålefundamentering. Enkelte riss påvist, men ikke vesentlige sprekker som symptom på setninger. Les for øvrig mer om byggemåte og den tekniske tilstanden i rapporten.
Det gjøres spesielt oppmerksom på:
TG3
- Nedløp og beslag: Det mangler snøfangere på hele eller deler av taket, noe som var krav på byggemeldingstidspunktet. Montert snøfangere over terrassedør, men ikke takflater i tilknytning hovedinngang/garasje. Mer enn halvparten av forventet brukstid er oppbrukt på beslag. Rustdannelser på pipebeslag.
- Pipe og ildsted: Det er påvist brennbart materiale nærmere enn 300 mm. fra sotluke/feieluke. Ildfast plate mangler på gulvet under sotluke/feieluke på pipe.
- Bad, 1. etasje: Membranen er synlig, men avslutningen ved sluket er utett. Belegg skåret/kappet delvis over slukets klemring, dvs. utett avslutning mot sluk. Manglende innfestningsskruer i slukets klemring, medfører utett forbindelse tettesjikt til sluk.
TG2
- Taktekking: Pga. alder på takstein, lekter og undertak.
- Takkonstruksjon/Loft: Mugg-/soppdannelser underside undertaksplater for del av loftet, forårsaket av begrenset lufting/luftlekkasjer fra underliggende varmt rom. Noe fuktskjolder underside undertaksplater ved gjennomføring luftehatt, samt for del av undertak i garasje.
- Vinduer: Pga. alder.
- Dør: Terrassedøren nede er fra byggeåret.
- Overflater: Tapet med stedvis strekk/pløser i hjørner.
- Etasjeskille/gulv mot grunn: Målt høydeforskjell på mellom 10 - 20 mm. innenfor en lengde på 2 meter.
- Rom under terreng: Innvendig påforet kjellervegg er på generelt grunnlag vurdert som risikokonstruksjon.
- Bad/vaskerom: Membran/tettesjikt pga. alder.
- Vannledninger og avløpsrør: Pga. alder.
- Fuktsikring og drenering: Pga. alder.
- Utvendige vann- og avløpsledninger: Pga. alder.
Helse, miljø og sikkerhet:
- Det opplyses at det er utført radonmåling, men dokumentasjon er ikke fremlagt.
- Rekkverket på balkong eller terrasse er for lavt i forhold til dagens krav.
Se supplerende tekst i tilstandsrapporten. Kjøper overtar ansvar og risiko for dette.
Moderniseringer og påkostninger
- Boligen ble malt utvendig i 2022.
- Oppgradert el-skap med underkurser og jordfeilautomater. Montert overspenningsvern i 2017.
- Begge terrassedørene i 1. etasje ble byttet i 2018.
Standard
Arealeffektiv del av tomannsbolig over to etasjer, med vestvendte solrike uteplasser, stor hage og parkering i garasje. Boligen ligger høyt i terrenget og har fin utsikt. Her bor man i et veletablert og meget populært boligområde på Bøleråsen. Det er kort gangavstand til Bøleråsen Senter med Kiwi, treningssenter, frisør og restaurant mm. Fra boligen er det også nærhet til Langhus Nærsenter. Kort avstand til lekeplass og fine turområder.
I tilknytning til inngangspartiet er det en fin og lun krok med plass til hagebord og stoler.
1. etasje
Entré: Man kommer inn i en lys entré med fliser på gulv og skyvedørsgarderobe med speil.
Kjøkken: Kjøkkeninnredning fra Norema med fronter i heltre eik og fliser på vegg over benkeplate. Benkeplaten er av heltre med utslagskum og ettgreps blandebatteri. Kjøkkenet er utstyrt med integrert oppvaskmaskin og mikro. Ellers er det komfyr og kjøleskap. Kjøkkenventilator over kokesone, har avtrekk ut. Hvitevarene på kjøkkenet følger med salget. Fra kjøkken/stue er det direkte utgang til vestvendt veranda på ca. 22 kvm, hvor du kan nyte flott utsikt og gode solforhold. Det er montert markise for de varmeste sommerdagene.
Stue: Stuen kan innredes med sofa, bord, TV og tilhørende møblement. Spisebord og stoler kan plasseres i praktisk tilknytning til kjøkkenet. Stue og kjøkken er i en åpen løsning. Dette gir en luftig romfølelse og store vindusflater slipper inn rikelig med lys.
Bad: Badet ved inngangspartiet har livsløpsstandard (rullestolvennlig). Baderommet er fra byggeår og har vegger med baderomsplater montert med tilhørende profilsystem. Gulvet er lagt med fall mot sluk, som er plassert under dusjkabinettet. Belegget har oppkant på vegger og delvis på terskel, og er tilsluttet PVC-sluk med klemring for god tetting. Rommet er utstyrt med gulvmontert toalett, servantskap og dusjkabinett. Det er mekanisk avtrekk og tilluft kommer via spalte under dørblad.
Sokkeletasje
Kjellerstue: Romslig kjellerstue med murt pipe, tilknyttet elementpeis med innsats. Peisen gir en lun stemning på kjølige kvelder. Stuen kan møbleres med diverse stuemøbler og store vindusflater slipper inn rikelig med naturlig lys. Fra stuen er det utgang til markterrasse på ca. 12 kvm, vinterhage på ca. 9 kvm. og stor hage. Vinterhagen gjør at man kan sitte ¨ute¨, selv om det skulle komme en regnskur.
Bad/vaskerom: Badet er fra byggeår og har vegger med baderomsplater, montert med profilsystem. Gulvet er lagt med fall mot sluk, som er plassert ved dusjnisjen. Belegget har oppkant på vegger og terskel, og er tilsluttet PVC-sluk med klemring for god tetting. Utstyrt med veggmontert servant, gulvmontert toalett, dusjnisje med forheng samt røropplegg for vaskemaskin. Det er mekanisk avtrekk og tilluft kommer via spalte under dørbladet.
Soverom: Boligen har to soverom, et i hver etasje. Soverommene kan innredes med seng, nattbord, garderobeskap og skrivebord. Soverommet i 1. etasje har skyvedørsgarderobe, utgang til veranda og adkomst til kaldtloft.
Bod/oppbevaring: Boligen har en innvendig bod, lagringsplass under trapp og en bod i garasjen.
Løsøre og tilbehør
Vi viser til liste fra Norges Eiendomsmeglerforbund som gjelder fra 01.01.2020 angående løsøre og tilbehør så lenge ikke annet er nevnt i salgsoppgaven.
Følger med salget: Hvitevarer på kjøkkenet.
Fryseren i boden oppe medfølger ikke.
Oppvarming
Boligen er elektrisk oppvarmet, i kombinasjon med peis.
Gulvarme i entre samt bad underetasje. Det er varmekabler i flislagt tram utvendig.
Dersom beboelsesrom ikke har vegg- eller fastmonterte varmekilder ved visning, følger dette heller ikke med.
Ferdigattest/brukstillatelse
Det foreligger ferdigattest på tomannsboligen, datert 20.02.1992. Denne kan fås ved henvendelse til megler.
Ferdigattesten omfatter ikke garasjen, men det foreligger godkjenning fra kommunen på oppføring av garasje, datert 07.10.1992 og bekreftelse på ferdigstilling 09.02.1993.
Det foreligger stemplede tegninger fra kommunen på utvidelse av veranda, vindu i underetasje og dør med vindu i 1. etasje, datert 09.04.1991.
Det gjøres oppmerksom på at originale bygningstegninger ikke stemmer helt med dagens planløsning. I 1. etasje er det etablert en bod, i deler av stuen. Deler av dagens kjellerstue var tidligere soverom og bod. Den del av kjellerstuen som tidligere var bod, er ikke godkjent til bruk for varig opphold er ikke bruksendret/omsøkt og er heller ikke godkjent av kommunen. Konsekvensen ved søknad kan være at denne delen av rommet ikke godkjennes som varig opphold og at denne delen da må brukes som bod/midlertidig oppbevaring.
Kjøper overtar alt ansvar, kostnad og risiko for dette videre.
Det gjøres oppmerksom på at det ikke lenger utstedes ferdigattest på tiltak det er søkt om før 1998 jf. plan- og bygningsloven § 21-10. Kommunen vil ikke kreve ferdigattest for disse tiltakene og vil avvise eventuelle søknader. Bestemmelsen innebærer ikke at tiltak med manglende søknad blir lovlige, men at man ikke trenger å avslutte gamle byggesaker. Normalt sett kreves ferdigattest for alle søknadspliktige tiltak som gjøres etter plan- og bygningsloven.
Tinglyste heftelser og rettigheter
Eiendommen overdras fri for pengeheftelser med unntak av:
Dagboknr. 12848, tinglyst 03.10.1991, type heftelse: Pantsettelseserklæring til grendelaget. Gjelder sikkerhet for grendelagsavgift.
Det er tinglyst følgende servitutter på eiendommen:
Dagboknr. 12848, tinglyst 03.10.1991, type heftelse: Erklæring/avtale. Pliktig medlemskap i velforening/grendelag.
Dagboknr. 12848, tinglyst 03.10.1991, type heftelse: Best. om vann/kloakkledning: Omhandler bestemmelser rundt adkomstrett og garasje/parkering. Omhandler også rettigheter for kommunen til å anlegge og vedlikeholde ledninger.
Servituttene vil følge eiendommen. Kjøpers bank vil få prioritet etter ovennevnte heftelse og servitutter.
Eventuell adgang til utleie
Eiendommen har ikke separat utleieenhet. Det vil normalt være anledning til utleie av hele eiendommen eller enkeltrom, såfremt utleiearealet er bygningsmessig godkjent for varig opphold og har forsvarlige radonnivåer.
Beliggenhet og tomteforhold
Beliggenhet og tomteforhold
Beliggenhet
Velkommen til Briskeveien 64!
Attraktiv tomannsbolig med god planløsning. Stille og skjermet beliggende i et meget populært, veletablert og barnevennlig boligområde på Bøleråsen. Meget lite trafikk - stort sett bare til beboere i Briskeveien. Briskeveien er en blindvei.
Eiendommen har gode solforhold og ligger usjenert til. Det er flere barnehager innenfor gangavstand. Gangavstand til Bøleråsen barneskole og Haugjordet ungdomsskole.
Svært barnevennlig med lekeplasser og marka i umiddelbar nærhet. Sørmarka byr på fin natur og flotte turmuligheter for hele familien.
Det er en stor Kiwi-butikk like i nærheten, samt frisør, legekontor, treningssenter og spisested. Alt er å finne på Bøleråsen nærsenter. Langhus Nærsenter ligger også i nærheten, med servicetilbud som blant annet tannlege, fysioterapeut, diverse butikker, apotek, Meny m.m.
Langhus har et rikt idrettsmiljø for barn og unge med aktive grupper innen de fleste idretter. Det er kort vei til Langhus idrettspark som består av et område på 250 dekar. Området er regulert til idrettsformål. I tillegg til idrettsparken er det fire gymsaler på Langhus. Det er også en flott svømmehall.
Gangavstand til Vevelstad togstasjon. Det er også kort gangavstand til matebussforbindelse, som kjører innom blant annet Vevelstad stasjon på vei til Ski sentrum. Toget har avganger til Ski, eller Oslo hvert kvarter. Ca. 20 km. til Oslo, omkring 7 km. til Ski sentrum.
Ski er regionsenteret i Follo og er et attraktivt handelsområde. I Ski sentrum finner man flere offentlige kontorer, Ski Storsenter, kinosenter, restauranter, kaféer og diverse servicetilbud. Ski er et knutepunkt i forhold til offentlig kommunikasjon. En nyere og moderne togstasjon finner du i sentrum av Ski. Follobanen, som stod ferdig i desember 2022, reduserte reisetiden med tog mellom Ski og Oslo S ned til kun 12 minutter og har opptil åtte avganger i timen.
Med 4 - felts motorvei bruker man ca. 20 minutter inn til Oslo sentrum.
Adkomst
Fra Ski: Kjør riksvei 152 mot Langhus. Ta inn Vevelstadveien til høyre. Følg denne helt til du får Bøleråsen på høyre side. Kjør inn her og etter noen hundre meter ligger Briskeveien på høyre side.
Fra Oslo: Ta av fra E6 ved avkjøringen til Langhus/Siggerud. Ta til høyre i første rundkjøring. Man er da på Vevelstadveien og følger denne rett frem. Bøleråsen får man så på venstre side.
Se evt. Google Maps - det er enkelt å finne frem i kartet.
Det vil bli skiltet med Krogsveen visningsskilt ved fellesvisninger.
Barnehager, skoler og fritid
Det er flere barnehager i nærheten: Bjørkekroken barnehage, Bøleråsen barnehage og Trollskogen barnehage. Det er kort gangavstand til Bøleråsen barneskole og Haugjordet ungdomsskole. Videregående skoler i Ski og på Sofiemyr.
Informasjon om tilhørende skolekretser er hentet fra Prognosesenteret som dataleverandør, og tilhørigheten kan årlig endres av kommunen. Dersom skole- og barnehagetilbud er av betydning for kjøpet, ber vi om at det rettes en særskilt henvendelse til kommunen for oppdatert informasjon.
Beskrivelse av tomt
Eiet tomt på 669,8 kvm. Tomten ligger på to nivåer, hvorav øvre del har asfaltert biloppstillingsplass og belegningsstein frem mot inngangspartiet. Tomten på nedre del er stor og har gressplen, hekk, naturtomt og diverse prydbeplantning. Eiendommen ligger høyt i terrenget og har fin utsikt.
Parkering
Parkering i garasje, samt plass til en bil utenfor garasjen. Det er også en bod i enden av garasjen.
Vei, vann og avløp
Eiendommen har adkomst via privat vei med felles vedlikeholdsansvar for grendelaget.
Eiendommen er tilknyttet kommunalt ledningsnett via private stikkledninger. Eier er selv ansvarlig for private stikkledninger til boligen.
Regulerings-og arealplaner
Eiendommen er regulert til konsentrert småhusbebyggelse i henhold til reguleringsplan for felt Q3 Langhus, med tilhørende reguleringsbestemmelser datert 30.01.1985.
I kommuneplan for Nordre Follo 2023-2034 fremkommer det følgende hensynssone:
- H110: Nedslagsfelt drikkevann.
Utsnitt av plan med tilhørende bestemmelser kan fås ved henvendelse til megler.
Økonomi
Økonomi
Kommunale utgifter
Kommunale avgifter var kr 14.966,- i 2025. I dette inngår gebyr for vann, avløp, renovasjon og feiing/tilsyn. Vil variere med forbruk vann/avløp. Kostnaden er stipulert etter et forbruk på 54m3. Det gjøres oppmerksom på at selger har renovasjonsabonnement type mindre. Hvis man ønsker standard kostet dette 1.146,- mer i 2025.
Bølerkollen grendelag: Grendelagsavgiften innbetales to ganger i året med kr 2.400,- pr. gang. Totalt kr 4.800,- pr. år. Dette dekker avsetning til vedlikehold, drift og vedlikehold av fellesareal og grendehus, tilhørende grendelaget. Ble økt fra 350,- til 400,- pr. måned fra 01/01-26.
Nåværende eier har et strømforbruk som tilsvarer ca. 14.475 kWh. pr. år.
Boligen har en årlig forsikringspremie på kr 8.723,-
Boligen er tilknyttet Telenor som leverandør av kabel-tv og internett. Avgift er på kr 1.747,- pr. mnd. Dekoder medfølger ikke.
Utgiftene er basert på nåværende eiers forbruk og avtaler.
Formuesverdi
Formuesverdi for 2023 var kr 1.439.682,- i følge skatteetaten. Beløpet forutsetter at eier bor fast i boligen (primærbolig).
Ved eventuell øvrig bruk av eiendommen (f.eks. fritidsbolig, pendlerbolig, utleieobjekt) var formuesverdien for 2023 kr 5.758.728,-
Formuesverdien justeres normalt årlig. Se skatteetaten.no for mer informasjon om fastsettelse av formuesverdien.
Omkostninger
5 250 000,00 Prisantydning
Omkostninger
131 250,00 Dokumentavgift til staten (2,5% av kjøpesum)
3 000,00 Eierskiftegebyr til grendelaget
19 900,00 Gjensidige Boligkjøperpakke (valgfri)
545,00 Tinglysing panterettsdokument
545,00 Tinglysing skjøte
--------------------------------------------------------
155 240,00 Omkostninger totalt
--------------------------------------------------------
5 405 240,00 Totalpris inkl. omkostninger
--------------------------------------------------------
Tilbud om lånefinansiering
Megler formidler gjerne kontakt med rådgiver hos Trøgstad Sparebank. De har konkurransedyktige betingelser samt rask og løsningsorientert behandling av din lånesøknad.
Betalingsbetingelser
Kjøpesum inkludert omkostninger, samt pantedokument tilknyttet eventuelt lån, skal være disponibelt hos megler 2 virkedager før overtagelsen.
Annen viktig informasjon
Annen viktig informasjon
Eier
Ellinor Steine
Konsesjon
Da realsameiets tomt er over 2 mål er den i utgangspunktet underlagt konsesjonslovgivning, og kjøper må ved kontrakt undertegne egenerklæring om konsesjonsfrihet. Denne erklæringen må godkjennes fra kommunen før eiendommen kan overskjøtes til kjøper.
Overtakelse
Etter nærmere avtale.
Velforening
Eiendommen er tilknyttet Bølerkollen Grendelag.
Dugnad må påregnes.
Dyrehold er tillatt.
Man må måke egen parkeringsplass.
Ellers henvises det til info på: www.bolerkollen.no
Dokumenter for grendelaget kan fås ved henvendelse til megler.
Stiger lånes ut gratis etter behov. Tilhenger kan leies for 100,- pr. dag for grendelagets beboere og for 200,- pr. dag for eksterne.
Boligselgerforsikring
Selger har i forbindelse med salget tegnet boligselgerforsikring levert av Gjensidige.
Boligselgerforsikringen dekker selgers ansvar etter avhendingsloven begrenset oppad til kr 14 millioner. Dersom kjøper oppdager forhold ved eiendommen som hen mener utgjør en mangel ved eiendommen, vil Gjensidige behandle reklamasjonen på vegne av selger. Forsikringsvilkår kan fås ved henvendelse til megler.
Vedlagt salgsoppgaven følger selgers egenerklæringsskjema og tilstandsrapport. Interessenter må sette seg inn i dokumentene før bud inngis.
Boligkjøperforsikring
Innen kontraktsmøtet må kjøper ta stilling til om det ønskes å bestille Boligkjøperpakken gjennom Gjensidige. I denne gunstige pakken er boligen ferdig forsikret og inkluderer rettshjelpsforsikring, også kalt Boligkjøperforsikring. Rettshjelpsforsikring gir trygghet og tilgang på profesjonell juridisk hjelp dersom det oppdages uventede feil eller mangler det første året etter overtagelse. Forsikringsselskapet behandler i så fall ethvert mangelskrav kjøper måtte ha overfor selger.
Boligkjøperpakken inkluderer bygningsforsikring for hus og hytte, innboforsikring, flytteforsikring og dobbel rentedekning - i situasjoner hvor kjøper ikke får solgt nåværende primærbolig.
Kjøper mottar ingen særskilt faktura for Boligkjøperpakken da kostnaden det første året legges til kjøpesummen for boligen. Det gjøres oppmerksom på Krogsveen mottar et honorar for denne formidlingen.
Produktark for Boligkjøperpakken ligger vedlagt i salgsoppgaven.
Dersom ikke boligkjøperpakke ønskes kan kun rettshjelpsforsikring, også kalt boligkjøperforsikring, tegnes særskilt via megler. Rettshjelpsforsikringen varer i 5 år fra overtagelse og leveres gjennom Gjensidige. Ta kontakt med megler for ytterligere informasjon.
Selskap og privatpersoner som driver med kjøp/salg/utvikling som ledd i egen næringsvirksomhet kan ikke tegne boligkjøperpakke eller rettshjelpsforsikring.
Budgivning
Forbrukerinformasjon om budgivning er vedlagt denne salgsoppgaven og er også på vår hjemmeside Krogsveen.no. Alle bud og budforhøyelser må inngis skriftlig. I tillegg må legitimasjon være fremlagt sammen med signatur fra budgiver.
Vi oppfordrer til å gi bud elektronisk via GI BUD-knappen på eiendommens hjemmeside på Krogsveen.no. Da vil samtlige vilkår bli oppfylt.
Eventuelle forhøyelser eller endringer av budet kan bekreftes pr SMS eller på e-post. Vi oppfordrer alltid til å kontakte megler pr. telefon i tillegg da forsinkelser i SMS og e-post kan forekomme.
For at budene skal kunne bli behandlet og videreformidlet skriftlig til alle involverte parter, må alle bud ha en tilstrekkelig lang akseptfrist, jf. eiendomsmeglingsforskriften § 6-3.
Selger må også skriftlig akseptere budet før aksept kan formidles til budgiver. Akseptfrist bør derfor være på minimum 30 minutter, og budforhøyelser må derfor skje i god tid før fristens utløp.
Bud i forbrukerforhold kan uansett ikke settes med kortere frist enn kl. 12.00 første virkedag etter siste annonserte visning. I tillegg kan ikke budet ha forbehold om at det skal holdes hemmelig ovenfor øvrige interessenter. Megler har iht lov om eiendomsmegling ikke anledning til å videreformidle disse budene, og de vil dermed heller ikke bli journalført.
Etter at eiendommen er solgt vil kjøper og selger få tilsendt budjournal. Øvrige budgivere kan få utlevert kopi av budjournalen i anonymisert form.
Hvitvaskingsreglene
I henhold til lov om hvitvasking og terrorfinansiering har megler plikt til å gjennomføre kontrolltiltak overfor kunder, herunder fullmektiger. Dette innebærer bl.a. å bekrefte kunders og reelle rettighetshaveres identitet på bakgrunn av fremvist gyldig legitimasjon eller på annen godkjent måte, samt å innhente opplysninger om kundeforholdets formål og tilsiktede art.
Dersom slike kundetiltak ikke kan gjennomføres, kan megler ikke etablere kundeforholdet eller utføre transaksjonen.
Hvis kjøper ikke bidrar til gjennomføring av kundekontrollen og dette fører til at transaksjonen blir forsinket eller ikke kan gjennomføres, vil dette ansees som mislighold av avtalen og gi selger rettigheter etter avhendingslova kapittel 5. I tilfeller der selger ikke bidrar til gjennomføring av løpende kundekontroll underveis i oppdraget, er det selger som misligholder sine forpliktelser etter avtalen og gi kjøper rettigheter etter avhendingslovens kapittel 4. Partene er selv ansvarlige for eventuelle kostnader og ansvar dette kan medføre. Eiendomsmegleren eller eiendomsmeglingsforetaket kan ikke holdes ansvarlig for de konsekvenser dette vil kunne få for partene eller andre som har interesser i eiendomshandelen.
Kjøper oppfordres til å innbetale kjøpesummen som ikke kommer fra låneinstitusjon i én samlet innbetaling fra egen konto i norsk bank. Megler har plikt til å melde fra til Økokrim om eiendomshandler som fremstår som mistenkelige. Melding sendes Økokrim uten at partene varsles.
Personopplysningsloven
I henhold til personopplysningsloven gjør vi oppmerksom på at interessenter kan bli registrert for videre oppfølging.
Lovanvendelse
Generelle bestemmelser
Salgsoppgaven er basert på de opplysningene selger har gitt til megler, den bygningssakyndiges tilstandsrapport, samt opplysninger innhentet fra kommunen, Kartverket og andre tilgjengelige kilder. Det er viktig at kjøper setter seg grundig inn i alle salgsdokumentene, herunder salgsoppgave, tilstandsrapport og selgers egenerklæring. Kjøper anses kjent med forhold som er tydelig beskrevet i salgsdokumentene, og slike forhold kan ikke påberopes som mangler. Dette gjelder uavhengig av om kjøper har lest dokumentene. Alle interessenter oppfordres til å undersøke eiendommen nøye, gjerne sammen med fagkyndig før bud inngis. Kjøper som velger å kjøpe usett kan ikke gjøre gjeldende som mangel noe han burde blitt kjent med ved undersøkelsen.
Dersom det er behov for avklaringer, anbefaler vi at interessenter rådfører seg med eiendomsmegler eller egne rådgivere før det legges inn bud.
En bolig som har blitt brukt i en viss tid, har vanligvis blitt utsatt for slitasje og skader kan ha oppstått. Slik bruksslitasje må kjøper regne med, og det kan avdekkes enkelte forhold etter overtakelse som nødvendiggjør utbedringer. Normal slitasje og skader som nødvendiggjør utbedring, er innenfor hva kjøper må forvente og vil ikke utgjøre en mangel.
Kjøper og selgers rettigheter og plikter reguleres av avtalen mellom partene, samt informasjonen som har vært tilgjengelig for kjøperen i forbindelse med handelen. Avtalen utfylles av avhendingsloven, og det gjelder ulike avtalevilkår avhengig av om kjøper er forbrukerkjøper eller ikke. Dette er nærmere beskrevet nedenfor.
På grunn av ulike avtalevilkår kan selger vurdere bud fra en som ikke er forbruker, ulikt fra en forbrukers bud. Dersom kjøper ikke er forbruker, er selger sitt mulige mangelsansvar begrenset fordi eiendommen selges "som den er". Selger kan ikke ta «som den er»- forbehold overfor en forbrukerkjøper. Selv et lavere bud fra en som ikke er forbruker kan foretrekkes fordi begrensningen i mulig mangelsansvar kan ha egenverdi for selger. Selger står fritt til å forkaste eller akseptere ethvert bud, og er for eksempel ikke forpliktet til å akseptere høyeste bud.
Budgiver skal i budskjema avgi egenerklæring om budgiver er forbruker eller næringsdrivende/ person som hovedsakelig handler som ledd i næringsvirksomhet. Budgivere får informasjon dersom andre bud er inngitt av en som ikke er forbruker.
Forbrukerkjøp - definisjon
Med forbrukerkjøp menes kjøp av eiendom når kjøperen er en fysisk person som ikke hovedsakelig handler som ledd i næringsvirksomhet.
Forbruker – avtalevilkår
Eiendommen har en mangel dersom den ikke er i samsvar med kravene som følger av avtalen, eller det foreligger brudd på bestemmelsene i avhendingsloven §§ 3-2 til 3-8. Hvis eiendommen ikke er i samsvar med det kjøperen må kunne forvente ut ifra alder, type og synlig tilstand, kan det være grunnlag for mangelskrav. Det samme gjelder hvis det er holdt tilbake eller gitt uriktige opplysninger om eiendommen. Dette gjelder likevel bare dersom man kan gå ut ifra at det virket inn på avtalen at opplysningen ikke ble gitt eller at mangelskravet ikke blir rettet i tide på en tydelig måte.
Boligen kan ha en mangel etter avhendingsloven § 3-3 andre ledd, dersom det er avvik mellom opplyst og faktisk innvendig areal, forutsatt at avviket er på 2% eller mer og minimum 1 kvm.
Ved beregning av et eventuelt prisavslag eller erstatning må kjøper selv dekke tap/kostnader opptil et beløp på kr 10 000 (egenandel).
Ikke-forbruker (næringsdrivende) – definisjon
Hvis kjøper er en juridisk person, eller en fysisk person som hovedsakelig handler som ledd i næringsvirksomhet, vil kjøpet ikke anses som et forbrukerkjøp.
Ikke-forbruker – avtalevilkår
Eiendommen har en mangel dersom den ikke er i samsvar med kravene som følger av avtalen.
Eiendommen selges «som den er», og selgers ansvar utover det konkret avtalte er da begrenset etter avhendingsloven § 3-9, første ledd andre setning.
Avhendingsloven § 3-3 andre ledd fravikes, og hvorvidt boligens arealsvikt utgjør en mangel vurderes etter avhendingsloven § 3-8.
Informasjon om kjøpers undersøkelsesplikt, herunder oppfordringen om å undersøke eiendommen nøye, gjelder også for kjøpere som ikke anses som forbrukere.
Det forutsettes at hjemmel overføres til kjøper. Hvis kjøper ikke ønsker hjemmelsoverføring av eiendommen, må det tas forbehold om dette i budet.
Meglers vederlag
Meglers vederlag betales av selger og er avtalt til:
Vederlag: 1,25 % av salgssummen. Minimumsprovisjon er kr 60.000,-
Vederlag:
Kontroll av hjemmel og heftelser kr 2.900,-
Markedsføringspakke kr 27.400,-
Oppgjør kr 7.500,-
Salgsoppgaver kr 3.600,-
Tilrettelegging kr 17.000,-
Visninger pr stk/Overtagelse kr 3.500,-
Utlegg:
Innhenting av offentlig opplysninger Nordre Follo - legalpant kr 563,-
Innhenting av offentlig opplysninger Nordre Follo kommune kr 3.300,-
Tinglysing hjemmelsovergang/erklæring kr 545,-
Tinglysing sikring kr 545,-
Andre utgifter:
Boligselgerforsikring Gjensidige Eiet - regnes av prisantydning kr 32.547,-
Fotopakke inkl. høydefoto kr 5.500,-
Stylingveiledning for boliger over 100 kvm (P-rom) kr 3.800,-
Tilstandsrapport fra bygningssakkyndig - faktura til megler kr 6.150,-
Opplysninger om oppdraget
Oppdragsnummer 46-0199/25
Eiendomsmegler Krogsveen AS, avd. Ski
Kirkeveien 2A, 1400, SKI
950 007 613
Oppdragets KR-kode KR46.25199
Dato
Sist oppdatert: 12. januar 2026 kl. 17:50
Dokumenter
Dokumenter
PDF – 939 KB
PDF – 139 KB
PDF – 3 MB
PDF – 312 KB
PDF – 29 KB
PDF – 127 KB
PDF – 392 KB
Område
Legg til steder som er viktige for deg
Visning
For å delta på visning, ber vi om at du melder deg på. Da sikrer vi at du får nødvendig informasjon. Kontakt megler dersom annet tidspunkt ønskes. Husk å lese salgsoppgaven før visningen, så du stiller forberedt.
Ønsker du kun å bli holdt orientert, kan du fra eiendommens hjemmeside få varsel om solgtpris, eller kontakte megler.
Lurer du på noe?
Unngå doble boligrenter
Vi tilbyr gunstig forsikring.
Vurderer du utleie?
Få et tilbud fra Utleie KrogsveenHva koster lånet?
Sjekk estimert lånekostnadVil du varsles om lignende boliger?
Ved å lagre ditt boligsøk hos oss får du beskjed når vi har en bolig som ligner denne, før den legges ut på markedet!




