Blybakken 5
3 980 000 kr
149 m²
3 soverom
Solgt
Konnerud
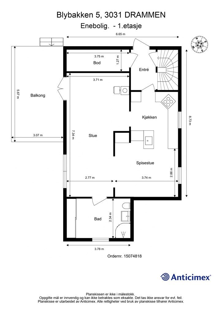
Romslig enebolig med 2 etasjer og kjeller. 2 bad (1 bad fra 2025). Vestvendt balkong. Garasje. Beliggende i blindvei.
Prisantydning
3 980 000 krOmkostninger
120 490 krTotalpris
4 100 490 kr
Pris
Bruksareal
175 m²BRA-I (internt bruksareal)
149 m²BRA-E (eksternt bruksareal)
26 m²TBA (terrasse-balkongareal)
17 m²
Areal
Etasje
3Byggeår
1952Soverom
3 soveromBad
2 badTomteareal
670 m² (eiet)Type
Enebolig - FrittliggendeEierform
EietFasiliteter
Garasje/P-plass og Balkong/TerrasseEnergimerke
Oransje G
Nøkkelinfo
Unngå doble boligrenter
Vi tilbyr gunstig forsikring.
Vurderer du utleie?
Få et tilbud fra Utleie KrogsveenHva koster lånet?
Sjekk estimert lånekostnadBeskrivelse
Kort om eiendommen
Romslig enebolig med 2 etasjer og kjeller.
Lys vinkelstue med frittstående peisovn og luft-til-luft varmepumpe
Profilert kjøkken fra ca. 2011 med medfølgende hvitevarer
Flislagt bad i 1. etg med dusjkabinett og vaskeromsdel
Moderne og delikat bad fra 2025 i 2. etg med regnfallsdusj
Godt med lagringsplass i kjelleretasjen
Enkelte rom og bygningsdeler har et tidsmessig oppgraderingsbehov
Vestvendt balkong fra 2019 på 17 kvm og hageområde
Parkering i frittstående garasje med innlagt strøm og på egen gruset gårdsplass
Beliggende i blindvei som medfører ingen gjennomgangstrafikk
Attraktiv beliggenhet i et barnevennlig og veletablerte boligfelt
Eiendommen ligger godt plassert i forhold til et godt utvalg av servicetilbud og buss
Område
Legg til steder som er viktige for deg
På flyttefot? Tenk kjøp og salg samtidig.
Få din egen rådgiver gjennom hele kjøps- og salgsprosessen. Det starter med en verdivurdering.
Unngå doble boligrenter
Vi tilbyr gunstig forsikring.
Vurderer du utleie?
Få et tilbud fra Utleie KrogsveenHva koster lånet?
Sjekk estimert lånekostnadVil du varsles om lignende boliger?
Ved å lagre ditt boligsøk hos oss får du beskjed når vi har en bolig som ligner denne, før den legges ut på markedet!
På flyttefot? Slik gjør vi det enklere for deg
Skreddersydd flyttepakke
Vi fikser håndverkere, vask, pakking, lagring og transport, og legger ut for utgiftene underveis.
Hjelp med både kjøp og salg
Hos oss har du din egen rådgiver gjennom hele kjøps- og salgsprosessen.
Hjelp til finansiering
Vårt samarbeid med BN Bank sikrer deg rask og løsningsorientert hjelp, til konkurransedyktige betingelser.




