Solstadveien 9
8 750 000 kr
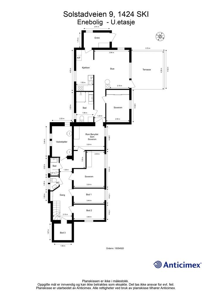
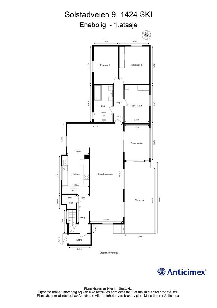
251 m²
5 soverom
Solgt
Ski
BUD INNE | Usjenert enebolig med 70 kvm utleiedel i motsatt husende | Solcellepanel | Solrikt og høytliggende | Blindvei
Prisantydning
8 750 000 krOmkostninger
239 740 krTotalpris
8 989 740 kr
Pris
Bruksareal
263 m²BRA-I (internt bruksareal)
251 m²TBA (terrasse-balkongareal)
42 m²
Areal
Byggeår
1957Soverom
5 soveromBad
3 badTomteareal
1 168 m² (eiet)Type
Enebolig - FrittliggendeEierform
EietFasiliteter
Garasje/P-plass og Balkong/TerrasseEnergimerke
Gul F
Nøkkelinfo
Unngå doble boligrenter
Vi tilbyr gunstig forsikring.
Vurderer du utleie?
Få et tilbud fra Utleie KrogsveenHva koster lånet?
Sjekk estimert lånekostnadBeskrivelse
Kort om eiendommen
- Velholdt familiebolig med god beliggenhet, innerst i blindvei
- Rolig og tilbaketrukket, med kort vei til Ski sentrum
- Utvidet til generasjonbolig i 1997, renovert i etterkant
- 70 kvm utleiedel med gode leieinntekter på 13.800,- pr. mnd. + strøm
- Egen inngang til utleiedelen (i motsatt ende av huset) med egen uteplass og p-plass
- Egner seg godt til, og har tidligere vært benyttet som generasjonsbolig
- Ny varmepumpe oktober 2024
- Veletablert og barnevennlig boligområde
- Fantastisk hage med diverse beplantning
- Fra boligen og ned til Ski sentrum er det ca. 10-12 min gange
- Follobanen Ski - Oslo kun 11 min.
- Utestue på ca. 12 kvm. og sydvestvendt veranda på ca. 26 kvm med flott utsikt!
- Elbillader og garasje
- God oppbevaringsplass
Område
Legg til steder som er viktige for deg
På flyttefot? Tenk kjøp og salg samtidig.
Få din egen rådgiver gjennom hele kjøps- og salgsprosessen. Det starter med en verdivurdering.
Unngå doble boligrenter
Vi tilbyr gunstig forsikring.
Vurderer du utleie?
Få et tilbud fra Utleie KrogsveenHva koster lånet?
Sjekk estimert lånekostnadVil du varsles om lignende boliger?
Ved å lagre ditt boligsøk hos oss får du beskjed når vi har en bolig som ligner denne, før den legges ut på markedet!
På flyttefot? Slik gjør vi det enklere for deg
Skreddersydd flyttepakke
Vi fikser håndverkere, vask, pakking, lagring og transport, og legger ut for utgiftene underveis.
Hjelp med både kjøp og salg
Hos oss har du din egen rådgiver gjennom hele kjøps- og salgsprosessen.
Hjelp til finansiering
Vårt samarbeid med BN Bank sikrer deg rask og løsningsorientert hjelp, til konkurransedyktige betingelser.




