Solveien 42D
17 500 000 kr
267 m²
5 soverom
Komplett salgsoppgave
Nordstrand/Bekkelaget
Stor og solrik enebolig | Flott beliggenhet innerst i stikkvei | Hybelmulighet | Garasje
Prisantydning
17 500 000 krOmkostninger
458 490 krTotalpris
17 958 490 kr
Pris
Bruksareal
300 m²BRA-I (internt bruksareal)
267 m²BRA-E (eksternt bruksareal)
33 m²TBA (terrasse-balkongareal)
109 m²
Areal
Byggeår
1977Soverom
5 soveromBad
2 badTomteareal
1 057 m² (eiet)Type
Enebolig - FrittliggendeEierform
EietFasiliteter
Garasje/P-plass og Balkong/TerrasseEnergimerke
Rød G
Nøkkelinfo
Unngå doble boligrenter
Vi tilbyr gunstig forsikring.
Vurderer du utleie?
Få et tilbud fra Utleie KrogsveenHva koster lånet?
Sjekk estimert lånekostnadBeskrivelse
Kort om eiendommen
Velkommen til Solveien 42D, en stor og solrik enebolig med en tilbaketrukket og barnevennlig beliggenhet innerst i stikkvei fra Solveien. Boligen har en meget innholdsrik og romslig planløsning over 2 store etasjer som inneholder bl.a. 5 soverom, 2 bad, peisestue, stue/spisestue med takhøyde på opptil 3,91 meter, kjøkken med spiseplass, ildsteder og godt med lagringsplass. Store og solrike uteplasser, pent opparbeidet hage og gårdsplass, samt garasje. Mulighet for etablering av hybel med egen inngang i deler av underetasjen. Beliggende i et attraktivt villaområde med kort vei til bl.a. Kastellet skole, kollektivtransport og servicetilbud.
Innhold og byggemåte
Innhold og byggemåte
Eiendommen
Solveien 42D, 1177 OSLO
Kommunenummer 301, gårdsnummer 197, bruksnummer 528, ideell andel 1/1
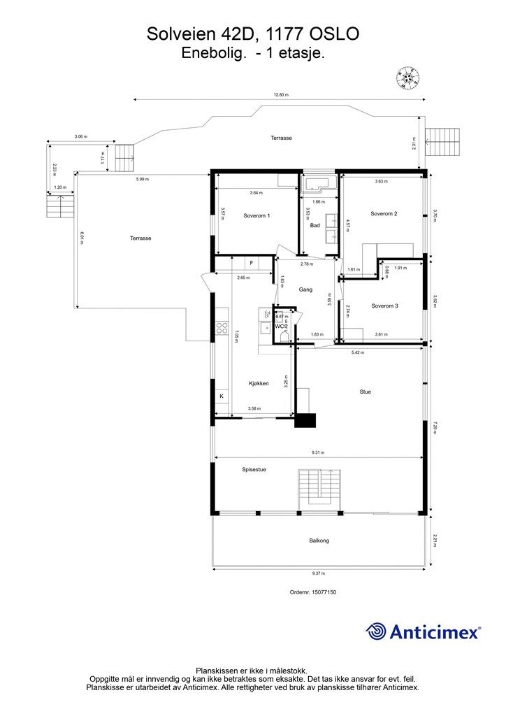
Innhold
Totalt bruksareal: 300 kvm
Totalt BRA-i: 267 kvm
Totalt BRA-e: 33 kvm:
BRA-i 267 kvm:
Underetasje 129 kvm:
Entré, garderoberom, bod/teknisk rom, peisestue, mellomgang, 2 soverom, omkledningsrom, bad, vaskerom, bod og entré/gang.
1. etasje 138 kvm:
Stue/spisestue, kjøkken, mellomgang, bad, toalettrom og 3 soverom.
BRA-e 33 kvm:
Garasje.
Platting ved inngangspartiet på 20 kvm.
Vestvendt og overbygget veranda på 21 kvm utenfor stuen/spisestuen.
Terrasse over garasjen og bak huset på totalt 89 kvm.
Vedlagte plantegninger er ikke målbare. De oppgitte arealer er hentet fra rapport datert 05.12.2025 utført av Anticimex AS. Arealene er beregnet og rom er definert etter dagens faktiske bruk, uavhengig av hva som er godkjent av bygningsmyndighetene.
Byggemåte
Selger har fått utarbeidet en tilstandsrapport, dvs. en teknisk gjennomgang av boligen hvor eventuelle avvik, risiko for kjøper og prisoverslag for hva som bør gjøres av oppgradering, er skissert. Se særskilt TGIU (tilstandsgrad ikke undersøkt), samt TG2 og TG3 som viser hva som er boligens normale slitasje, alder og type, hva som er avvik fra dette og hva som bør/må utbedres. Rapporten og selgers egenerklæring er en del av salgsoppgaven og må leses nøye før bud inngis. Kjøper overtar ansvaret for de opplysninger som fremkommer av salgsdokumentasjonen, og kan ikke gjøre gjeldende som mangel noe som burde vært kjent eller som ikke kan anses å ha betydning for avtalen.
Frittliggende enebolig over 2 etasjer, oppført i 1977.
Bygningen er iht. tilstandsrapporten oppført i tre/mur/betong. Støpt plate på mark.
Grunnmur av lettklinkerblokker og teglsteinsmur.
Yttervegger av trekonstruksjoner utvendig kledd med liggende trekledning.
Takkonstruksjon av saltaksform utvendig tekket med takstein.
Vinduer med to-lags glass fra 1975, 1976 og 2009 samt tre-lags glass fra 2025. Terrassedører/skyvedører med to-lags glass fra 1976 og 1983. Balkongdør med to-lags glass fra 1982. Profilerte entrédører.
Adkomst fra kjøkken til nordvendt terrasse på 38 kvm. Gulvflate belagt med Altaskifer. Rekkverk av treverk og murkonstruksjoner. Skillevegg av treverk.
Østvendt terrasse på 30 kvm mot fjellside. Gulvflate belagt med terrassebord.
Utgang fra stue til vestvendt balkong på 21 kvm. Gulvflate belagt med terrassebord. Rekkverk av treverk
Følgende bygningsdeler har fått TG2 i tilstandsrapporten:
Bad - 1. etasje:
- Tettesjiktet har en alder som tilsier at restlevetiden er usikker.
Bad - Underetasje:
- Mindre hull, samt riss i flisfuger observert på vegg i dusjsonen.
- Tettesjiktet har en alder som tilsier at restlevetiden er usikker.
- Vannrør av kobber er vurdert til å ha en alder som tilsier at anbefalt brukstid er passert.
1. etasje:
- Det registreres stedvise riper/hakk/merker i gulvets overflatemateriale i tregulv i soverommene. Gulvoverflater i soverommene bærer preg av slitasje.
- Ventilasjonen vurderes til å stedvis ikke være tilfredsstillende. Det er ikke registrert ventiler i soverom 2.
Underetasje:
- Deler av gulvoverflate i peisestue har manglende/ikke fungerende gulvvarme.
Etasjeskiller - 1 etasje:
- Det er noe merkbare skjevheter i 1 etasje.
Tekniske anlegg, VVS anlegg:
- Vannrør av kobber er vurdert til å ha en alder som tilsier at anbefalt brukstid er passert.
- Vannbåren varme: Eldre anlegg/element og røropplegg i soverom i underetasje uten påviste skader/lekkasjer. TG2 er valgt på grunn av alder og tilstand.
Elektrisk anlegg:
- Det er kun fremlagt samsvarserklæring/dokumentasjon på deler av utførte arbeider på det elektriske anlegget (tilstandsgrad settes i henhold til NS3600). El-bil lader har kun 6 Amp ladestyrke.
Yttervegger inkl. fasader og konstruksjon:
- Det er usikkert om panelet er montert med lufting.
Dører og vinduer:
- TG2 gjelder vinduer fra årstall 1975 og 1976. Vinduer er av eldre dato, og det må forventes høyere varmetap fra disse vinduene sammenlignet med vinduer fra nyere dato. Til informasjon ble det utført stikkprøvekontroll på vinduer hvor åpne/lukkefunksjon fungerte som forventet. Til informasjon: Vinduer fra årstall 2009 og 2025 har tilstandsgrad 1 (TG1).
- Ytterdører, balkongdør og terrassedører/skyvedører er av eldre dato, og det må forventes høyere varmetap fra disse dørene sammenlignet med dører fra nyere dato. Terrassedør/skyvedør i underetasje har åpne/lukkefunksjon som må utbedres.
Yttertak:
- Selv om det ikke ble observert tegn på lekkasjer eller skader er TG2 satt for å belyse skaderisikoen som følge av alder på taktekkingen.
Nordvendt terrasse over garasje med adkomst fra kjøkken:
- Rekkverkshøyden er under 1,0 meter (96 cm). Avvik fra dagens byggteknisk forskrift. Tettesjiktet er ikke tilgjengelig for inspeksjon, og vurdert til å ha en alder som tilsier usikker tilstand/restlevetid. Konstruksjonen er erfaringsmessig fuktutsatt. TG2 er satt for å belyse risiko.
Drenering:
- Dreneringen er nedgravd og skjult, og tilstanden vurderes derfor i hovedsak ut fra alder. På bakgrunn av dreneringens alder er det derfor grunn til å varsle om risiko for svekket funksjon eller lignende forhold som utvikles over tid.
- Terrenget rundt bygget har stedvis fall mot grunnmuren.
- Det kan ikke verifiseres at hele grunnmuren har utvendig fuktsperre.
Stikkledninger og tanker:
- Utvendige vann- og avløpsrør har en alder som tilsier at anbefalt brukstid er passert.
Les for øvrig mer om byggemåte og den tekniske tilstanden i rapporten.
Standard
Eiendommen ligger tilbaketrukket og barnevennlig til innerst i stikkvei fra Solveien. Et attraktivt villaområde med kort vei til bl.a. Kastellet skole, kollektivtransport og servicetilbud.
En stor og romslig bolig med en innholdsrik og god planløsning over kun 2 etasjer. Planløsningen åpner for flere alternative bruksmuligheter, bl.a. med mulighet for etablering av hybel i underetasjen. Den romslige toppetasjen er skreddersydd for både hverdagsliv og sosiale sammenkomster. Rikelig med vindusflater slipper inn godt med naturlig lys, samtidig som den gode takhøyden i stuen på opptil 3,91 meter gir ekstra romfølelse. Fra stuen/spisestuen er det direkte utgang til vestvendt og solrik veranda, mens det fra kjøkkenet er utgang til stor terrasse – perfekt for lange sommerkvelder og uformelle sammenkomster.
Boligen er oppført i 1977 og fremstår som velholdt med standard fra noe varierende årstall. Selger har i sin eiertid bl.a. pusset opp kjøkkenet i 2005 og pusset opp badet og toalettet i 1. etasje i 2009, samt lagt ny 1-stavs eikeparkett i 2023 i stue/spisestue, kjøkken og mellomgang. Utvendig ble det lagt belegningsstein på gårdsplassen i 2022 og bygget ny terrasse på baksiden av huset i 2025.
Innvendig er innredning og overflater holdt i hovedsakelig lyse og tidløse farger.
1. etasje:
Hovedetasjen er på hele 138 kvm og inneholder stue/spisestue, kjøkken, gang, bad og 3 soverom.
Lys og romslig stue/spisestue med 1-stavs eikeparkett på gulvet (lagt ny i 2023) og takhøyde på opptil hele 3,91 meter. Store vestvendte vindusflater gir rommet godt med lys. Peis i stuedelen for ekstra varme og hygge.
Fra rommet er det utgang til vestvendt og overbygget veranda på 21 kvm. Belysning og stikkontakt på vegg.
Hyggelig kjøkken med doble skyvedører til spisestuen. Kjøkkenet har 1-stavs eikeparkett på gulvet (lagt ny i 2023) og god plass til spisebord (lampe over kjøkkenbordet medfølger ikke). Ekstra god takhøyde på deler av kjøkkenet.
Kjøkkeninnredning fra HTH som ble montert nytt i 2005. Rikelig med skap- og benkeplass. Slette fronter og benkeplater av heltre. Nedsenket oppvaskkum av rustfritt stål med ett-greps armatur. Integrert induksjonstopp, stekeovn, mikrobølgeovn, oppvaskmaskin, kjøleskap og fryseskap. Ventilator med mekanisk avtrekk.
Fra kjøkkenet er det utgang til stor nord- og vestvendt terrasse på 38 kvm med kveldssol. Terrassen ligger over garasjen og er belagt med Altaskifer. Belysning monter på vegg.
Fra terrassen er det adkomst videre til terrasse bak huset som er ny i 2025. Denne er på 30 kvm og er belagt med terrassebord. Adkomst fra terrassen til både hagen og til gårdsplassen.
De 3 soverommene, badet og toalettet ligger praktisk plassert i bakkant av boligen, alle med adkomst fra mellomgangen. 1-stavs eikeparkett på gulvet i mellomgangen (lagt nytt i 2023).
3 gode soverom, alle med garderobeskap. Fra det ene soverommet er det også adkomst til kaldtloft via takluke med stige.
Pent flislagt bad som ble pusset opp i 2009. Varmekabler i gulvet og downlights i himling. Vegghengt hvit servantinnredning med slette fronter og med heldekkende dobbel servant med 2 stk. ett-greps armaturer. Innfelt speil med overbelysning på vegg over servanter. Innfliset badekar med glassdør og dusjarmatur tilkoblet hånddusj.
Toalettrom som ble pusset opp i 2009 med bl.a. flislagt gulv med varmekabler og downlights i himling. Vegghengt servant med ett-greps armatur. Vegghengt toalett med innebygget sisterne.
Underetasje:
Underetasjen er på 129 kvm og inneholder entré, garderoberom, bod/teknisk rom, peisestue, mellomgang, 2 soverom, omkledningsrom, bad, vaskerom, bod og entré/gang.
Entré med gulvfliser med vannbåren gulvvarme.
Utenfor inngangspartiet er det en vestvendt markterrasse på 20 kvm med fliser fra 2022. Utebelysning på vegg.
Ved entréen ligger et praktisk garderoberom med god plass til yttertøy etc.
Her ligger også en bod/teknisk rom med noe lagringsplass. Varmtvannsbereder på 282 liter fra 2016 og fordelerstamme for vannbåren gulvvarme/radiatorer er plassert i bod/teknisk rom.
Stor peisestue med peis og skyvedør ut til hagen. Flislagt gulv med vannbåren gulvvarme i deler av rommet.
Praktisk plassert i bakkant av boligen ligger bl.a. mellomgangen, 2 soverom, omkledningsrommet og badet.
Mellomgang med gulvvarme og garderobeskap. Mulighet for etablering av hybelkjøkken.
2 gode soverom, begge med gulvvarme og plass til garderobeskap.
Praktisk omkledningsrom med garderobeskap.
Flislagt bad med gulvvarme. Badet er innredet med vegghengt servantinnredning med profilerte dører og ovenpåliggende benkeplate med servant og ett-greps armatur. Vegghengt skap og speil med overbelysning og stikkontakt på vegg over servant. Dusjhjørne med skyvedører av glass og dusjarmatur tilkoblet hånddusj. Gulvstående toalett.
I tilknytning til badet ligger vaskerommet (tidligere badstue) med opplegg for vaskemaskin og tørketrommel.
I bakkant av boligen er det også en praktisk lagringsbod og en egen entré som muliggjør evt. etablering av hybel.
Dobbelgarasje på 33 kvm (selve garasjerommet er ca. 30 kvm) med elektrisk garasjeport og sidedør.
Se tilstandsrapport datert 05.12.2025 og selgers egenerklæring for nærmere informasjon om eiendommens standard.
Oppvarming
Boligen er elektrisk oppvarmet med vannbåren varme, elektrisk gulvvarme og panelovner.
Vannbåren gulvvarme i entré og i deler av peisestue ni underetasjen. Elektrisk gulvvarme på begge bad og på toalettet i 1. etasje, samt i mellomgang og begge soverom i underetasjen.
Vedpeis i peisestuen og i stue/spisestue.
Dersom beboelsesrom ikke har vegg- eller fastmonterte varmekilder ved visning, følger dette heller ikke med.
Ferdigattest/brukstillatelse
Det foreligger ferdigattest på boligen datert 01.04.1981.
Det foreligger ferdigattest for bruksendring av rom i underetasjen til bl.a. 2 soverom datert 22.12.2025.
Den del av terrassen bak huset som evt. er høyere enn 50 cm over terreng er ikke å anse som byggemeldt. Konsekvensen ved en evt. søknad kan være at den del av terrassen som overstiger nevnte høyde ikke godkjennes og at det da evt. må fjernes.
Tinglyste heftelser og rettigheter
Eiendommen overdras fri for pengeheftelser.
Det er tinglyst følgende servitutter på eiendommen:
Dagboknr. 64879, tinglyst 16.12.1993.
Erklæring/avtale. Avtale med naboeiendommene om felles ansvar for felles vannledning, avløpsledning og adkomstvei. Felles stikkledninger ligger i adkomstveien og det må ikke gjøres arbeider som kan skade eller gjøre ledningene utilgjengelige.
Følgende rettigheter er tinglyst på eiendommen:
Eiendommen er utskilt fra bnr. 445 og følgende servitutt er tinglyst der før utskillelsen 16.12.1993.
Dagboknr. 25066, tinglyst 16.12.1974.
I anledning deling av eiendommen er eier innforstått med at den søndre parsell har bruksrett til den nødvendige adkomst langs vestgrensen over den nordre parsell, frem til eiendommens fastsatte adkomst til Solveien.
Servituttene vil følge eiendommen. Kjøpers bank vil få prioritet etter ovennevnte heftelser og servitutter.
Eventuell adgang til utleie
Det vil normalt være anledning til utleie av hele eiendommen eller enkeltrom, såfremt utleiearealet er bygningsmessig godkjent for varig opphold og har forsvarlige radonnivåer.
Beliggenhet og tomteforhold
Beliggenhet og tomteforhold
Beliggenhet
Solveien 42D har en solrik og flott beliggenhet, tilbaketrukket og barnevennlig innerst i stikkvei fra Solveien.
Fra eiendommen er det gangavstand til både Holtet og Sæter, områdets lokale handelssentre. På Holtet finner du et rikholdig og variert servicetilbud som bl.a. den populære delikatessebutikken Jacob’s, søndagsåpen matbutikk, Åpent Bakeri/Lofthus Pizza, Kaffebrenneriet, helsesenter/treningssenter (Best Helse), apotek og jernvareforretning. Sæter har et bredt tilbud av butikker, caféer og spisesteder, samt bl.a. vinbar og treningssenter.
Ønsker du et enda bredere servicetilbud er det heller ikke langt til Lambertseter Senter som kan by på et rikelig utvalg av butikker og caféer, samt Vinmonopolet, Deichman bibliotek og Symra Kino.
Sentrum er heller ikke langt unna, og fra eiendommen kan man, om ønskelig, sykle ned til byen med bl.a. Sørenga som et naturlig stoppested.
Kort vei til Sørli trikkestasjon med rute 13 og 19, begge via Oslo sentrum. Kort vei også til bussholdeplass og togstasjon.
(Se Ruter.no for mer informasjon).
Når temperaturen tillater er det bare en liten rusletur ned til Nordstrand Bad. Det er heller ikke lange gåturen via turstien innerst i Bekkelagsterrassen ned til båtforeningene i Paddehavet og til Bekkelagsbadet. Bekkelagsbadet er et park- og badeanlegg som åpnet i 2019, og rommer stupetårn, ballbinge, parkouranlegg, sandvolleyballbane, toalettbygg og utedusj samt et amfi for kulturarrangementer. Parken har lagt til rette for grilling, foodtrucks og iskremvogner – et perfekt sted for de som vil nyte sommerbyen i vannkanten.
Det er også flotte turmuligheter rett i nærheten i bl.a. Byskogen og Ekebergparken. Både Byskogen og Ekebergparken har stier langs hele skråningen med flotte utsiktspunkter, samt skulpturparken i Ekebergparken. Her finner du også restaurant og café. Friområdet er fredet og fikk i 2008 status som Ekebergskråningen naturreservat. Turstiene tar deg også raskt opp på Ekebergsletta der du finner et bla. lysløype, idrettsanlegg, minigolfbane, EKT ridesenter, husdyrpark, og store friområder. Et eldorado for barn, samt at det gir unike tur- og friluftsmuligheter for alle aldersklasser, sommer som vinter.
Et mangfold av tilbud i lokale idrettslag og foreninger, som f.eks.:
Bækkelagets Sportsklub(BSK) - håndball, fotball, ski m.m.
Nordstrand IF («Niffen») med flott håndballhall og fotballbane med kunstgress.
Fotballbane og friidrettsbane på Sportsplassen.
KFUM-hallen og Ekeberghallen ved Ekebergsletta.
Bekkelaget Tennisklubb (BTK) med anlegg innerst i Jomfrubråtveien og Nordstrand Tennisklubb (NTK) med anlegg både i Ekebergveien og Seterveien.
Områdets lokale alpinbakke – Sloreåsen.
Treningsstudio/helsesenter: Best Helse på Holtet, Evo på Sæter og Lambertseter, Sats på Karlsrud og Lambertseter, samt Opptur Helse på Sæter.
Adkomst
Solveien 42D ligger tilbaketrukket og skjermet, innerst i en privat stikkvei i tredje husrekke fra vei. Eiendommen ligger i strekket mellom fra Torsborgveien og Midttunveien.
Litt historie: Solveien strekker seg fra Kongsveien, krysser Nordstrandveien, og ender i Ljabruveien. Veien ble anlagt i flere etapper og har hatt flere navn. Den eldste delen som gikk fra Nordstrandveien til Ljabruveien het Jomfru Andersens vei. Dette navnet fikk veien fra eieren av Vestre Sæter gård som anla veien i 1888. Fra Nordstrandveien og et stykke nordover het veien Bjerckes øvre vei etter O. C. Bjercke som anla denne delen av veien samt en rekke andre veier i området. Den nordligste delen av veien ble privat anlagt i 1890-årene. De to veien ble knyttet sammen ved Kastellet i 1923, og broen over Kastellveien stod ferdig samme år. Veien fikk sitt navn i 1904 og 1917 og navnet kommer av veiens beliggenhet over en åsrygg som gir meget gode solforhold morgen til kveld. (Kilde: Wikipedia).
Barnehager, skoler og fritid
Flere barnehager i nærområdet.
Boligen sogner til Kastellet skole (1.-10. klasse).
Informasjon om tilhørende skolekretser er hentet fra Prognosesenteret som dataleverandør, og tilhørigheten kan årlig endres av kommunen. Dersom skole- og barnehagetilbud er av betydning for kjøpet, ber vi om at det rettes en særskilt henvendelse til kommunen/bydelsadministrasjonen for oppdatert informasjon.
Beskrivelse av tomt
Eiet tomt på 1 057 kvm. Solrik og pent opparbeidet tomt med plenareal, beplantning og terrasser, samt belegningsstein på gårdsplass (lagt nyt i 2022).
Parkering
Garasje på 33 kvm med belysning og elektrisk garasjeport. Gangdør på siden. Elbillader på yttervegg (kun tilkoblet 6 amp). Garasjen har noe lavere takhøyde.
Biloppstillingsplasser på gårdsplassen.
Vei, vann og avløp
Eiendommen har adkomst via kommunal vei (Solveien) og privat stikkvei med felles vedlikeholdsansvar.
Eiendommen er tilknyttet kommunalt ledningsnett via private stikkledninger. Eier er selv ansvarlig for private stikkledninger til boligen.
Regulerings-og arealplaner
Eiendommen er regulert til boligformål i henhold til reguleringsplan S-4220, datert 15.03.2006, med tilhørende bestemmelser. Oslo bystyre vedtok en ny småhusplan 27.09.2023, men planen ble ikke godkjent av Kommunal- og distriktsdepartementet etter innsigelser fra Norges vassdrags- og energidirektorat (NVE). Eiendommer som omfattes av småhusplanen er derfor underlagt et midlertidig forbud mot tiltak (MFT), med enkelte unntak. Søknader som faller inn under unntakene i MFT behandles fortsatt - enten frem til sommeren 2026 eller til en ny plan er vedtatt. Dersom en ny plan ikke er godkjent innen den tid, vil den tidligere småhusplanen igjen kunne tre i kraft. For mer informasjon, ta kontakt med megler.
Området blir berørt av kommuneplanens arealdel fra 2015: «Oslo mot 2030 - Smart, trygg og grønn». Ny kommuneplan «Oslo fram mot 2040: Variert boligbygging og styrking av det grønne» er under revidering, men er ikke endelig vedtatt. Denne planen får betydning for en rekke vedtatte reguleringsplaner i Oslo. Inntil ny arealdel er vedtatt, gjelder arealdelen fra 2015. Henviser til kommunens nettsider for ytterligere informasjon: https://www.oslo.kommune.no/politikk-og-administrasjon/politikk/kommuneplan/.
Utsnitt av plan med tilhørende bestemmelser kan fås ved henvendelse til megler.
Økonomi
Økonomi
Kommunale utgifter
Kommunale avgifter er kr 32 513,- for 2026. I dette inngår gebyr for vann, avløp, renovasjon og feiing/tilsyn.
Eiendomsskatt er kr 15 935,- for 2026.
Nåværende eier har et strømforbruk som tilsvarer ca. 42 972 kwh. pr. år. Selger har avtalt Norgespris på strøm på eiendommen for perioden 01.10.20225-31.12.2026, og denne er pt på kr 50 øre inkl mva. Nettleie, avgifter og påslag fra kraftleverandøren kommer i tillegg. Denne avtalen vil følge eiendommen i den avtalte perioden. Les mer om Norgespris her: https://www.regjeringen.no/no/aktuelt/legg-fram-lov-om-norgespris-pa-straum-og-fjernvarme/id3102642/
Boligen har en årlig forsikringspremie på kr 18 816,-.
Boligen er tilknyttet Viken Fiber/Altibox som leverandør av internett og kabel-tv og har avgift på kr 1 408,-(inkl. 2 dekodere) pr. mnd.
Boligen er tilknyttet Sikkerhetsgruppen Nordstrand alarmselskap som koster kr 5 684,- pr. år. Anlegget kan evt. medfølge ved videreføring av selgers abonnement.
Utgiftene er basert på nåværende eiers forbruk og avtaler.
Formuesverdi
Ved hjelp av skatteetatens boligkalkulator er boligens formuesverdi beregnet til kr 8 043 542,- for fjoråret når boligen benyttes som primærbolig.
Formuesverdien er en gitt prosent av den beregnede markedsverdien. Beregnet markedsverdi er basert på Statistisk sentralbyrå (SSB) sine opplysninger om omsatte boliger. I beregningen tas det hensyn til boligens beliggenhet, areal, byggeår og boligtype.
Det er eier av boligen som fastsetter formuesverdien, jf. skatteforvaltningsloven § 9-1 første ledd, men skattemyndighetene kan kontrollere at verdien er satt riktig.
Formuesverdi skal ikke overstige:
Primærbolig: 25 % av beregnet eller dokumentert markedsverdi opp til kr. 10 000 000, og deretter 70 % av den overskytende markedsverdi.
Sekundærbolig: 100 % av beregnet eller dokumentert markedsverdi.
Formuesverdier som overstiger disse grensene, kan kreves nedjustert av eier.
Fra 2026 har Stortinget vedtatt en oppdatert modell for beregning av formuesverdi for primærbolig, så avvik kan forekomme.
For mer informasjon se skatteetaten.no
Omkostninger
17 500 000,00 Prisantydning
Omkostninger
437 500,00 Dokumentavgift til staten (2,5% av kjøpesum)
19 900,00 Gjensidige Boligkjøperpakke (valgfri)
545,00 Tinglysing panterettsdokument
545,00 Tinglysing skjøte
--------------------------------------------------------
458 490,00 Omkostninger totalt
--------------------------------------------------------
17 958 490,00 Totalpris inkl. omkostninger
--------------------------------------------------------
Totalpris inkl. omkostninger forutsetter kjøp til prisantydning.
Det tas forbehold om endringer i avgifter og gebyrer.
Betalingsbetingelser
Kjøpesum inkludert omkostninger, samt pantedokument tilknyttet eventuelt lån, skal være disponibelt hos megler 2 virkedager før overtagelsen.
Annen viktig informasjon
Annen viktig informasjon
Eier
Gunnar Manum og Cathrine Manum
Overtakelse
Etter nærmere avtale.
Boligselgerforsikring
Selger har i forbindelse med salget tegnet boligselgerforsikring levert av Gjensidige.
Boligselgerforsikringen dekker selgers ansvar etter avhendingsloven begrenset oppad til kr 14 millioner. Dersom kjøper oppdager forhold ved eiendommen som hen mener utgjør en mangel ved eiendommen, vil Gjensidige behandle reklamasjonen på vegne av selger. Forsikringsvilkår kan fås ved henvendelse til megler.
Vedlagt salgsoppgaven følger selgers egenerklæringsskjema og tilstandsrapport. Interessenter må sette seg inn i dokumentene før bud inngis.
Boligkjøperforsikring
Innen kontraktsmøtet må kjøper ta stilling til om det ønskes å bestille Boligkjøperpakken gjennom Gjensidige. I denne gunstige pakken er boligen ferdig forsikret og inkluderer rettshjelpsforsikring, også kalt Boligkjøperforsikring. Rettshjelpsforsikring gir trygghet og tilgang på profesjonell juridisk hjelp dersom det oppdages uventede feil eller mangler det første året etter overtagelse. Forsikringsselskapet behandler i så fall ethvert mangelskrav kjøper måtte ha overfor selger.
Boligkjøperpakken inkluderer bygningsforsikring for hus og hytte, innboforsikring, flytteforsikring og dobbel rentedekning - i situasjoner hvor kjøper ikke får solgt nåværende primærbolig.
Kjøper mottar ingen særskilt faktura for Boligkjøperpakken da kostnaden det første året legges til kjøpesummen for boligen. Det gjøres oppmerksom på Krogsveen mottar et honorar for denne formidlingen.
Produktark for Boligkjøperpakken ligger vedlagt i salgsoppgaven.
Dersom ikke boligkjøperpakke ønskes kan kun rettshjelpsforsikring, også kalt boligkjøperforsikring, tegnes særskilt via megler. Rettshjelpsforsikringen varer i 5 år fra overtagelse og leveres gjennom Gjensidige. Ta kontakt med megler for ytterligere informasjon.
Selskap og privatpersoner som driver med kjøp/salg/utvikling som ledd i egen næringsvirksomhet kan ikke tegne boligkjøperpakke eller rettshjelpsforsikring.
Budgivning
Forbrukerinformasjon om budgivning er vedlagt denne salgsoppgaven og er også på vår hjemmeside Krogsveen.no. Alle bud og budforhøyelser må inngis skriftlig. I tillegg må legitimasjon være fremlagt sammen med signatur fra budgiver.
Vi oppfordrer til å gi bud elektronisk via GI BUD-knappen på eiendommens hjemmeside på Krogsveen.no. Da vil samtlige vilkår bli oppfylt.
Eventuelle forhøyelser eller endringer av budet kan bekreftes pr SMS eller på e-post. Vi oppfordrer alltid til å kontakte megler pr. telefon i tillegg da forsinkelser i SMS og e-post kan forekomme.
For at budene skal kunne bli behandlet og videreformidlet skriftlig til alle involverte parter, må alle bud ha en tilstrekkelig lang akseptfrist, jf. eiendomsmeglingsforskriften § 6-3.
Selger må også skriftlig akseptere budet før aksept kan formidles til budgiver. Akseptfrist bør derfor være på minimum 30 minutter, og budforhøyelser må derfor skje i god tid før fristens utløp.
Bud i forbrukerforhold kan uansett ikke settes med kortere frist enn kl. 12.00 første virkedag etter siste annonserte visning. I tillegg kan ikke budet ha forbehold om at det skal holdes hemmelig ovenfor øvrige interessenter. Megler har iht lov om eiendomsmegling ikke anledning til å videreformidle disse budene, og de vil dermed heller ikke bli journalført.
Etter at eiendommen er solgt vil kjøper og selger få tilsendt budjournal. Øvrige budgivere kan få utlevert kopi av budjournalen i anonymisert form.
Hvitvaskingsreglene
I henhold til lov om hvitvasking og terrorfinansiering har megler plikt til å gjennomføre kontrolltiltak overfor kunder, herunder fullmektiger. Dette innebærer bl.a. å bekrefte kunders og reelle rettighetshaveres identitet på bakgrunn av fremvist gyldig legitimasjon eller på annen godkjent måte, samt å innhente opplysninger om kundeforholdets formål og tilsiktede art.
Dersom slike kundetiltak ikke kan gjennomføres, kan megler ikke etablere kundeforholdet eller utføre transaksjonen.
Hvis kjøper ikke bidrar til gjennomføring av kundekontrollen og dette fører til at transaksjonen blir forsinket eller ikke kan gjennomføres, vil dette ansees som mislighold av avtalen og gi selger rettigheter etter avhendingslova kapittel 5. I tilfeller der selger ikke bidrar til gjennomføring av løpende kundekontroll underveis i oppdraget, er det selger som misligholder sine forpliktelser etter avtalen og gi kjøper rettigheter etter avhendingslovens kapittel 4. Partene er selv ansvarlige for eventuelle kostnader og ansvar dette kan medføre. Eiendomsmegleren eller eiendomsmeglingsforetaket kan ikke holdes ansvarlig for de konsekvenser dette vil kunne få for partene eller andre som har interesser i eiendomshandelen.
Kjøper oppfordres til å innbetale kjøpesummen som ikke kommer fra låneinstitusjon i én samlet innbetaling fra egen konto i norsk bank. Megler har plikt til å melde fra til Økokrim om eiendomshandler som fremstår som mistenkelige. Melding sendes Økokrim uten at partene varsles.
Personopplysningsloven
I henhold til personopplysningsloven gjør vi oppmerksom på at interessenter kan bli registrert for videre oppfølging.
Lovanvendelse
Generelle bestemmelser
Salgsoppgaven er basert på de opplysningene selger har gitt til megler, den bygningssakyndiges tilstandsrapport, samt opplysninger innhentet fra kommunen, Kartverket og andre tilgjengelige kilder. Det er viktig at kjøper setter seg grundig inn i alle salgsdokumentene, herunder salgsoppgave, tilstandsrapport og selgers egenerklæring. Kjøper anses kjent med forhold som er tydelig beskrevet i salgsdokumentene, og slike forhold kan ikke påberopes som mangler. Dette gjelder uavhengig av om kjøper har lest dokumentene. Alle interessenter oppfordres til å undersøke eiendommen nøye, gjerne sammen med fagkyndig før bud inngis. Kjøper som velger å kjøpe usett kan ikke gjøre gjeldende som mangel noe han burde blitt kjent med ved undersøkelsen.
Dersom det er behov for avklaringer, anbefaler vi at interessenter rådfører seg med eiendomsmegler eller egne rådgivere før det legges inn bud.
En bolig som har blitt brukt i en viss tid, har vanligvis blitt utsatt for slitasje og skader kan ha oppstått. Slik bruksslitasje må kjøper regne med, og det kan avdekkes enkelte forhold etter overtakelse som nødvendiggjør utbedringer. Normal slitasje og skader som nødvendiggjør utbedring, er innenfor hva kjøper må forvente og vil ikke utgjøre en mangel.
Kjøper og selgers rettigheter og plikter reguleres av avtalen mellom partene, samt informasjonen som har vært tilgjengelig for kjøperen i forbindelse med handelen. Avtalen utfylles av avhendingsloven, og det gjelder ulike avtalevilkår avhengig av om kjøper er forbrukerkjøper eller ikke. Dette er nærmere beskrevet nedenfor.
På grunn av ulike avtalevilkår kan selger vurdere bud fra en som ikke er forbruker, ulikt fra en forbrukers bud. Dersom kjøper ikke er forbruker, er selger sitt mulige mangelsansvar begrenset fordi eiendommen selges "som den er". Selger kan ikke ta «som den er»- forbehold overfor en forbrukerkjøper. Selv et lavere bud fra en som ikke er forbruker kan foretrekkes fordi begrensningen i mulig mangelsansvar kan ha egenverdi for selger. Selger står fritt til å forkaste eller akseptere ethvert bud, og er for eksempel ikke forpliktet til å akseptere høyeste bud.
Budgiver skal i budskjema avgi egenerklæring om budgiver er forbruker eller næringsdrivende/ person som hovedsakelig handler som ledd i næringsvirksomhet. Budgivere får informasjon dersom andre bud er inngitt av en som ikke er forbruker.
Forbrukerkjøp - definisjon
Med forbrukerkjøp menes kjøp av eiendom når kjøperen er en fysisk person som ikke hovedsakelig handler som ledd i næringsvirksomhet.
Forbruker – avtalevilkår
Eiendommen har en mangel dersom den ikke er i samsvar med kravene som følger av avtalen, eller det foreligger brudd på bestemmelsene i avhendingsloven §§ 3-2 til 3-8. Hvis eiendommen ikke er i samsvar med det kjøperen må kunne forvente ut ifra alder, type og synlig tilstand, kan det være grunnlag for mangelskrav. Det samme gjelder hvis det er holdt tilbake eller gitt uriktige opplysninger om eiendommen. Dette gjelder likevel bare dersom man kan gå ut ifra at det virket inn på avtalen at opplysningen ikke ble gitt eller at mangelskravet ikke blir rettet i tide på en tydelig måte.
Boligen kan ha en mangel etter avhendingsloven § 3-3 andre ledd, dersom det er avvik mellom opplyst og faktisk innvendig areal, forutsatt at avviket er på 2% eller mer og minimum 1 kvm.
Ved beregning av et eventuelt prisavslag eller erstatning må kjøper selv dekke tap/kostnader opptil et beløp på kr 10 000 (egenandel).
Ikke-forbruker (næringsdrivende) – definisjon
Hvis kjøper er en juridisk person, eller en fysisk person som hovedsakelig handler som ledd i næringsvirksomhet, vil kjøpet ikke anses som et forbrukerkjøp.
Ikke-forbruker – avtalevilkår
Eiendommen har en mangel dersom den ikke er i samsvar med kravene som følger av avtalen.
Eiendommen selges «som den er», og selgers ansvar utover det konkret avtalte er da begrenset etter avhendingsloven § 3-9, første ledd andre setning.
Avhendingsloven § 3-3 andre ledd fravikes, og hvorvidt boligens arealsvikt utgjør en mangel vurderes etter avhendingsloven § 3-8.
Informasjon om kjøpers undersøkelsesplikt, herunder oppfordringen om å undersøke eiendommen nøye, gjelder også for kjøpere som ikke anses som forbrukere.
Det forutsettes at hjemmel overføres til kjøper. Hvis kjøper ikke ønsker hjemmelsoverføring av eiendommen, må det tas forbehold om dette i budet.
Meglers vederlag
Meglers vederlag betales av selger og er avtalt til:
Vederlag: 0,90 % av salgssummen
Vederlag:
Kontroll av hjemmel og heftelser kr 2 900,00
Markedsføringspakke Ekstra synlighet kr 29 900,00
Oppgjør kr 7 500,00
Tilrettelegging kr 17 000,00
Visninger pr stk / Overtagelse kr 4 000,00
Utlegg:
Innhenting av offentlig opplysninger Oslo kommunale avgifter kr 265,00
Innhenting av offentlig opplysninger, reguleringsbestemmelser kr 1 045,00
Tinglysing sikring kr 545,00
Andre utgifter:
AX tilstandsrapport enebolig kr 24 687,50
Boligselgerforsikring Gjensidige kr 65 000,00
Foto - Dagfoto + drone, ca kr 8 800,00
Foto - kveldsfoto, ca kr 4 900,00
Vi er opptatt av verdiskapning, og har knyttet til oss samarbeidspartnere som skal sikre våre kunder de beste produkter og tjenester;
• I forbindelse med forberedelse av salget, innhenter vi informasjon om eiendommen hovedsakelig fra vår samarbeidspartner Amibita.
• Gjensidige leverer boligselgerforsikring og tilbyr bygningsforsikring
• Boligkjøperforsikring leveres av Hiscox og med Sedgwick som skadebehandler, og er formidlet gjennom Gjensidige.
• BN bank tilbyr finansieringsløsninger
• Vår avdeling Krogsveen Pluss tilbyr flyttetjenester som utvask, visningsvask, lager, tømming og transport av flyttelass, i tillegg til å formidle kontakt med Flip for overflateoppussing.
• I forbindelse med overtagelse av eiendommen tilbyr Overo avtale om strøm, alarm og bredbånd.
• Krogsveen er, sammen med øvrige bransjeaktører, medeier i den digitale annonseringsplattformen Hjem som eies av Bomega AS.
Opplysninger om oppdraget
Oppdragsnummer 44-0253/25
Eiendomsmegler Krogsveen AS, avd. Nordstrand
Ekebergveien 228 B, 1162, OSLO
950 007 613
Oppdragets KR-kode KR44.25253
Dato
Sist oppdatert: 24. februar 2026 kl. 11:41
Dokumenter
Dokumenter
PDF – 750 KB
PDF – 1 MB
PDF – 549 KB
PDF – 445 KB
PDF – 312 KB
PDF – 29 KB
PDF – 127 KB
PDF – 392 KB
Område
Legg til steder som er viktige for deg
Visning
For å delta på visning, ber vi om at du melder deg på. Da sikrer vi at du får nødvendig informasjon og at det er satt av tilstrekkelig med tid. Kontakt megler dersom annet tidspunkt ønskes. Husk å lese salgsoppgaven før visningen, så du stiller forberedt.
Ønsker du kun å bli holdt orientert, kan du fra eiendommens hjemmeside få varsel om solgtpris, eller kontakte megler.
Lurer du på noe?
Unngå doble boligrenter
Vi tilbyr gunstig forsikring.
Vurderer du utleie?
Få et tilbud fra Utleie KrogsveenHva koster lånet?
Sjekk estimert lånekostnadVil du varsles om lignende boliger?
Ved å lagre ditt boligsøk hos oss får du beskjed når vi har en bolig som ligner denne, før den legges ut på markedet!




