Linneaveien 15
16 500 000 kr
227 m²
3 soverom
Solgt
Ekeberg/Simensbråten
Flott klassisk villa med utsikt | Innholdsrik | Tilbaketrukket og skjermet | Barnevennlig
Prisantydning
16 500 000 krOmkostninger
433 490 krTotalpris
16 933 490 kr
Pris
Bruksareal
232 m²BRA-I (internt bruksareal)
227 m²BRA-E (eksternt bruksareal)
5 m²TBA (terrasse-balkongareal)
36 m²
Areal
Byggeår
1911Soverom
3 soveromBad
3 badTomteareal
757 m² (eiet)Type
Enebolig - FrittliggendeEierform
EietFasiliteter
Balkong/TerrasseEnergimerke
Rød G
Nøkkelinfo
Unngå doble boligrenter
Vi tilbyr gunstig forsikring.
Vurderer du utleie?
Få et tilbud fra Utleie KrogsveenHva koster lånet?
Sjekk estimert lånekostnadBeskrivelse
Kort om eiendommen
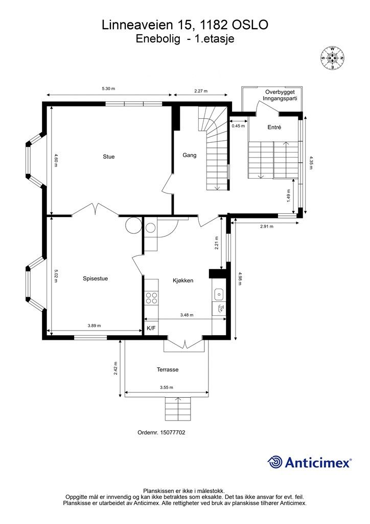
Velkommen til Linneaveien 15, en klassisk og flott villa fra 1911 med utsikt over byen. En sjarmerende og hyggelig bolig der flere av husets særpreg er ivaretatt. Ekstra gode takhøyder kombinert med rikelig med vindusflater gir godt med naturlig lys. En innholdsrik bolig med en romslig og god planløsning med bl.a. 2 stuer, kjøkken, kjellerstue, 3 bad og vaskerom, samt godt med lagringsplass. Solrik og hyggelig hage. Eiendommen ligger tilbaketrukket i andre husrekke fra vei, i et meget barnevennlig villaområde med kort vei til bl.a. Ekeberg skole, Ekebergsletta, kollektivtransport og servicetilbud.
Område
Legg til steder som er viktige for deg
På flyttefot? Tenk kjøp og salg samtidig.
Få din egen rådgiver gjennom hele kjøps- og salgsprosessen. Det starter med en verdivurdering.
Unngå doble boligrenter
Vi tilbyr gunstig forsikring.
Vurderer du utleie?
Få et tilbud fra Utleie KrogsveenHva koster lånet?
Sjekk estimert lånekostnadVil du varsles om lignende boliger?
Ved å lagre ditt boligsøk hos oss får du beskjed når vi har en bolig som ligner denne, før den legges ut på markedet!


































































