Rørvollveien 13
5 450 000 kr
253 m²
4 soverom
Solgt
Konnerud
Innholdsrik & romslig enebolig med kjeller. Balansert ventilasjon. Solrike uteplasser & stor hage. Garasje. Nær sentrum.
Prisantydning
5 450 000 krOmkostninger
157 240 krTotalpris
5 607 240 kr
Pris
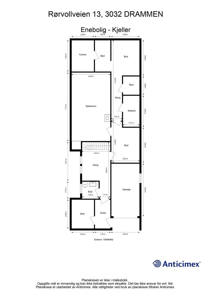
Bruksareal
256 m²BRA-I (internt bruksareal)
253 m²BRA-E (eksternt bruksareal)
3 m²TBA (terrasse-balkongareal)
12 m²
Areal
Etasje
2Byggeår
1968Soverom
4 soveromBad
2 badTomteareal
966 m² (eiet)Type
Enebolig - FrittliggendeEierform
EietFasiliteter
Garasje/P-plass og Balkong/TerrasseEnergimerke
Oransje F
Nøkkelinfo
Unngå doble boligrenter
Vi tilbyr gunstig forsikring.
Vurderer du utleie?
Få et tilbud fra Utleie KrogsveenHva koster lånet?
Sjekk estimert lånekostnadBeskrivelse
Kort om eiendommen
Innholdsrik og romslig enebolig med kjeller.
Romslig stue og spisestue med varmepumpe (2020) samt peisinnsats
Pent kjøkken (delvis fra 2019) med medfølgende hvitevarer
Separat vaskerom, praktisk ekstra wc-rom og 2 bad
Balansert ventilasjon fra 2004 med varmegjenvinning i boligen
Oppgradert sikringsskap med automatsikringer i 2016
Enkelte rom og bygningsdeler har et tidsmessig oppgraderingsbehov
Overbygget sydvendt veranda på ca. 4 kvm og sydvendt uteplass på ca. 8 kvm
Romslig hageområde med frukttrær og god boltreplass
Parkering i integrert garasje og asfaltert gårdsplass
Umiddelbar nærhet til matbutikk og Jarlsbergsenteret
Gangavstand til bussholdeplass, Konnerudsenteret og idrettsanlegg
Under 1 km til barnehager og skoler
Område
Legg til steder som er viktige for deg
På flyttefot? Tenk kjøp og salg samtidig.
Få din egen rådgiver gjennom hele kjøps- og salgsprosessen. Det starter med en verdivurdering.
Unngå doble boligrenter
Vi tilbyr gunstig forsikring.
Vurderer du utleie?
Få et tilbud fra Utleie KrogsveenHva koster lånet?
Sjekk estimert lånekostnadVil du varsles om lignende boliger?
Ved å lagre ditt boligsøk hos oss får du beskjed når vi har en bolig som ligner denne, før den legges ut på markedet!
På flyttefot? Slik gjør vi det enklere for deg
Skreddersydd flyttepakke
Vi fikser håndverkere, vask, pakking, lagring og transport, og legger ut for utgiftene underveis.
Hjelp med både kjøp og salg
Hos oss har du din egen rådgiver gjennom hele kjøps- og salgsprosessen.
Hjelp til finansiering
Vårt samarbeid med BN Bank sikrer deg rask og løsningsorientert hjelp, til konkurransedyktige betingelser.




