Spireaveien 10 B

3 600 000 kr

32 m²

1 soverom

Komplett salgsoppgave

Emir Mekic
Silje Gregussen
Presenteres av
Emir Mekic og Silje Gregussen

Økern / Løren

Lys og gjennomgående 2-roms. Vestvendt balkong på 6 m². Moderniseringsbehov. Fjernvarme. Heis. Godt førstegangskjøp

    Pris

  • Prisantydning

    3 600 000 kr

  • Andel fellesgjeld

    190 463 kr

  • Omkostninger

    11 040 kr

  • Totalpris

    3 801 503 kr

    Areal

  • Bruksareal

    37 m²

  • BRA-I (internt bruksareal)

    32 m²

  • BRA-E (eksternt bruksareal)

    5 m²

  • TBA (terrasse-balkongareal)

    6 m²

    Nøkkelinfo

  • Etasje

    3

  • Byggeår

    2007

  • Soverom

    1 soverom

  • Bad

    1 bad

  • Type

    Andelsleilighet

  • Eierform

    Andel

  • Fasiliteter

    Heis og Balkong/Terrasse

  • Fellesutgifter

    4 422 kr

  • Energimerke

    Lysegrønn B

Unngå doble boligrenter

Vi tilbyr gunstig forsikring.

Hva koster lånet?

Sjekk estimert lånekostnad

Beskrivelse

Kort om eiendommen

Emir Mekic ved Krogsveen har gleden av å presentere Spireaveien 10 B - arealeffektiv 2-roms hjørneleilighet i 3.etasje. Verdt å merke seg om boligen:
  • Lys 2-roms hjørneleilighet fra 2007
  • Vestvendt balkong på 6 m²
  • Moderniseringsbehov
  • Gjennomgående planløsning
  • Godt førstegangskjøp
  • Fjernvarme, varmtvann og fibernett inkl. i felleskostnader
  • IN-ordning, felleskostnader vil reduseres med p.t. kr 1.127,- ved innfrielse
  • Sportsbod på 5 m²
  • Heis i bygget
  • Kort vei til offentlig transport, kaféer, spisesteder, turområder mv.
  • Innhold og byggemåte

    Eiendommen

    Spireaveien 10 B, 0580 OSLO
    Kommunenummer 301, gårdsnummer 124, bruksnummer 112
    Andelsnummer 52, Spireaveien 10 B Borettslag, organisasjonsnummer 991 692 339

    Innhold

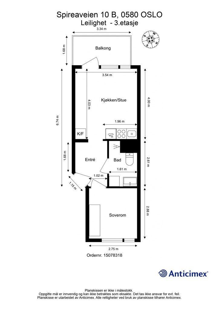
    Totalt bruksareal BRA: 37 m²

    BRA-i:
    3. etasje 32 m²: Entré, bad, stue/kjøkken og soverom

    BRA-e:
    -1. etasje 5 m²: Bod

    Åpent areal:
    3. etasje 6 m²: Balkong

    Boligen disponerer 1 sportsbod i kjeller merket nr. 52. Det gjøres oppmerksom på at boligens eksterne boder tilhører borettslagets fellesareal, og at boden således ikke eies av den enkelte andelseier. Dette medfører at borettslaget i fellesskap beslutter bruken, og at man ikke selv har eierrett og rettsvern for boden. Borettslaget kan ved vedtak beslutte annet bruk av fellesarealet og disponering av bodarealet kan dermed opphøre.

    De oppgitte arealer er hentet fra rapport med befaringsdato 21.01.2026 utført av Anticimex v/Ståle Gran Skøien.

    Byggemåte

    Selger har fått utarbeidet en tilstandsrapport, dvs. en teknisk gjennomgang av boligen hvor eventuelle avvik, risiko for kjøper og prisoverslag for hva som bør gjøres av oppgradering, er skissert. Se særskilt TGIU (tilstandsgrad ikke undersøkt), samt TG2 og TG3 som viser hva som er boligens normale slitasje, alder og type, hva som er avvik fra dette og hva som bør/må utbedres. Rapporten og selgers egenerklæring er en del av salgsoppgaven og må leses nøye før bud inngis. Kjøper overtar ansvaret for de opplysninger som fremkommer av salgsdokumentasjonen, og kan ikke gjøre gjeldende som mangel noe som burde vært kjent eller som ikke kan anses å ha betydning for avtalen.  
    Bygningen er iht. tilstandsrapporten oppført i tre/betong. Boligbygg over fem etasjer samt kjeller. Bygningen har støpt gulv mot grunn. Grunnmur, bærende konstruksjoner og skillende dekker i hovedsak av
    betong med utfyllende bindingsverk av trekonstruksjoner. Fasader utført i pussede og malte flater samt panel og fasadeplater. Tilnærmet flat takkonstruksjon utvendig tekket med takpapp/membran (taket er ikke besiktiget). Entrédør i brannklasse B30 og lydklasse 35dB. Balkongdør og vinduer med karmer av tre i 2-lags glass fra byggeår. Les for øvrig mer om byggemåte og den tekniske tilstanden i rapporten.

    Det gjøres spesielt oppmerksom på TG2:
    Bad:
    - Membran, tettesjikt og overgang til sluk: Alder. Rommets lekkasjesikkerhet kan derfor ikke verifiseres, eventuelt bør nytt tettesjikt etableres.
    - Annet: Svelleskader på karmlist tilhørende innerdør. Vurdert til å være fra vannsøl i dusjsonen. Tegn til bakenforliggende skader ikke registrert på befaringstidspunktet, men bakenforliggende skader kan ikke utelukkes.
    - Overflater vegger: Stedvis riss/sprekker i flisfuger ved/over toalett. Tegn til bakenforliggende skader er ikke observert på befaringstidspunktet, men kan ikke utelukkes.
    Øvrige rom:
    - Overflater vegger: Stedvis preg av slitasje.
    - Overflater gulv: Stedvis preg av slitasje og riper/hakk/merker i overflatemateriale, samt riss/sprekker mellom parkettbord.

    TGIU:
    Bad, herunder fukt i tilliggende konstruksjoner: Våtrommet er bygget som prefabrikkert modul og det er derfor ikke utført hulltaking/fuktmåling. Utført et overflatesøk med fuktindikasjonsinstrument. Ikke oppdaget forhold som kan tolkes til fuktskade.
    Tekniske anlegg, VVS-anlegg, herunder stakeluke: Avløpsrørene er skjult og eventuell stakeluke er ikke lokalisert.

    Se supplerende tekst i tilstandsrapporten om bad/øvrige rom/tekniske anlegg, VVS-anlegg. Kjøper overtar ansvar og risiko for dette. 

    Det er påvist forekomst av skjeggkre i borettslaget. Det ble gjort tiltak i 2019. Skjeggkre kan ifølge skadedyrfirmaene bekjempes ved sanering av skadedyrfirmaer, bruk av limfeller samt regelmessig støvsuging/rengjøring. Kjøper overtar risikoen for dette forholdet. Konferer med megler for ytterligere informasjon.

    Standard

    E N T R É:
    Entré med adkomst til alle rom i leiligheten. Plass til oppheng av tøy og oppbevaring av sko. Parkett på gulv.

    S T U E / K J Ø K K E N:
    Kjøkken med åpen løsning mot stue. Kjøkkeninnredningen består av slette fronter, benkeplate av laminat og fliser mellom kjøkkenbenk og overskap. Videre består kjøkkenet av oppvaskmaskin under benk, integrert komfyr med nedfelt induksjonstopp, nedfelt oppvaskkum i rustfritt stål med ett-greps armatur, stikkontakter under overskap, samt ventilator under overskap tilkoblet avtrekkskanal og mekanisk avtrekksvifte. Plass til frittstående kjøl/frys. Vegghengt tv med stativ, samt alle hvitevarer på kjøkken medfølger.
    Stue med store vindusflater som slipper inn lys. Plass til sofa, tv-møblement og mindre spisebord og spisestoler. Parkett på gulv.

    B A D E R O M:
    Lyst og flislagt bad med gulvvarme. Badet består av dusj på gulv med glassdør, dusjarmatur tilkoblet veggmontert hånddusj, vegghengt servantskap med dører.
    Vaskemaskin og tørketrommel medfølger.

    S O V E R O M:
    Soverom med plass til blant annet seng, kontorbord og kontorstol. Stort garderobeskap med god plass til klær. Parkett på gulv.

    B A L K O N G:
    Vestvendt balkong på 6 m² med utsikt mot hyggelig fellesområde. Plass til blant annet utemøbler og grill. Her kan man nyte lunsjen og middagen, samt invitere gjester på selskap. Balkongen har markise og stikkontakt. Balkongen er belagt med terrassebord og har rekkverk av metall.

    Kjekt å vite:
    - Parkettgulv
    - Vannbåren varme med radiatorer
    - Varmekabler i gulv på bad
    - Vannrør av typen rør-i-rør
    - Synlige avløpsrør av plast og støpejern
    - Mekanisk avtrekk på bad og kjøkken i kombinasjon med tilluftsventiler i yttervegger
    - Sikringsskap med automatsikringer plassert i entré. Leiligheten har hovedsakelig skjult elektrisk anlegg.
    - Entrédør i brannklasse B30 og lydklasse 35dB
    - Balkongdør og vinduer med karmer av tre i 2-lags glass fra byggeår
    - Sentralt brannvarslingssystem

    Løsøre og tilbehør

    Veggmontert TV, kjøl/frys, oppvaskmaskin, vaskemaskin og tørketrommel medfølger.
    For øvrig viser vi til liste fra Norges Eiendomsmeglerforbund som gjelder fra 01.01.2020 angående løsøre og tilbehør.

    Oppvarming

    Oppvarming med gulvvarme på bad samt radiatorer.
    Dersom beboelsesrom ikke har vegg- eller fastmonterte varmekilder ved visning, følger dette heller ikke med. 

    Ferdigattest/brukstillatelse

    Det foreligger ferdigattest på eiendommen datert 27.10.2009, samt ferdigattest for montering av brannalarmanlegg i hele bygningen datert 28.02.2022. Disse kan fås ved henvendelse til megler.

    Kjøper overtar eiendommen slik den framstår på visning.

    Tinglyste heftelser og rettigheter

    Utover andel fellesgjeld overdras leiligheten fri for pengeheftelser.

    Borettslaget har legalpant for forfalte felleskostnader og andre krav som følger av borettslagsforholdet iht. burettslagsloven § 5-20. Pantet er begrenset oppad til 2G (G = folketrygdens grunnbeløp).

    Det er tinglyst 5 servitutter på borettslagets eiendom. Disse omhandler blant annet 1 bestemmelse om veg (kloakkledning, benyttelse mfl.) og 4 erklæring/avtale (ang. lagerbrakke, vedtak av Oslo kommunes vann- og kloakkreglement, ang. lagerbygning og forpliktelse til å overdra vederlagsfritt til Oslo kommune den nødvendige veigrunn av inntil 10 meter med bruksrett til skjærings- og fyllingsarealer).

    Servituttene vil følge eiendommen. Kjøpers bank vil få pant etter ovennevnte heftelser og servitutter.

    Eiendommen har tinglyst rett til adkomst. Rettigheten er tinglyst på gnr. 124, bnr. 198, dagboknr 19803, tinglyst 10.04.1992.

    Eventuell adgang til utleie

    Andelseier kan ikke uten samtykke fra styret i borettslaget overlate bruken av boligen til andre. Med samtykke kan andelseier overlate boligen til andre i inntil tre år hvis andelseier har bodd i boligen i minst ett av de to siste år. Utleie i andre tilfeller kan godtas ved særlige grunner, jf. burettslagslova § 5-6. Utleie forutsetter at leiligheten har forsvarlige radonverdier. Se også borettslagets vedtekter og konferer megler ved spørsmål.

    Diverse

    Boligens selges ved fullmektig. Fullmektigen har ikke selv bebodd eiendommen og har derfor ikke kunnskap om eiendommens tilstand utover det som fremkommer i salgsoppgave og tilstandsrapport.
    Leiligheten er rengjort før vask og det vil ikke bli foretatt ytterligere utvask.

    Beliggenhet og tomteforhold

    Beliggenhet

    Spireaveien ligger i et attraktivt område mellom Løren og Økern. Forretninger, kafeer og restauranter innen gangavstand. Peppes Pizza, den indiske restauranten Sanjay's, Baker Hansen, Baker Nordby og Kaffebrenneriet er hyggelige møtesteder. Ved Krydderhagen finner du WB Samson, Sugar & Spice, 8 Fish Sushi, Smoothie Zone og Stykke Pizza. Hasle Linie Gastropub på Vinslottet frister også. Borterst i Lørenveien finner du Noa, og Tiffany's (burgers and bowls) i Peter Møllers vei. Snart åpner Phin restaurant med vietnamesisk mat i Lørenveien. Gastropuben Fryd og Kammis Grill finner du på Løren Torg. Nabolaget har to nye hotell: Quality Hotel Hasle Linie med Bistro X og Bar X ved Vinslottet og Radisson RED-hotell i Økern Portal, hvor du også finner Studio Jobbsprek samt et utvalg av spisesteder.

    Dagligvarer handler du hos Meny, Rema 1000 eller Kiwi. Joker og Løren Frukt & Grønt har begge søndagsåpent. Domino's Pizza og UMai Sushi har også mye godt i diskene sine. Bokhandler Norli tilbyr skrivesaker og lesestoff. I tillegg finnes frisør, hudpleie, fysioterapeut, kiropraktor, Empet Løren Dyreklinikk, Green Kids second hand, Friperie, Blomsterpikene, renseri, Squeeze, Europris, Apotek 1 og Sinsenklinikken legesenter og STERK treningsstudio for den som vil noe mer med treningen sin. EVO Løren ligger like ved.
    På Vinslottet finner du Spar Mat, Norex Market, Apotek 1, frisører, Jysk, Synsam, Claire Woman, Sterk Legevakt Øst, Elsykkelbutikken og du kan stikke innom Kitch'n og interiørbutikken Houz for å få hjelp til å pynte opp hjemme. Barna har det gøy på leke- og læringssenteret Lille Lab/Mini slottet.

    Kort vei til Oslos nye legevakt på Aker Sykehus. Post-i-butikk hos Bunnpris i Grenseveien og pakkeutlevering på Rema 1000 på Løren. Vinmonopolet finner du på Carl Berner. Hasle Torg bidrar også til et enda større servicetilbud i nabolaget. Fint med mini-gjenbruksstasjon i Peter Møllers vei.

    Det er et stort aktivitetstilbud for store og små i nabolaget. Kanonhallen som brukes til kulturarrangementer som julemesse, konserter og utstillinger ligger like ved. Det er en rekke aktiviteter på Løren. Løren aktivitetspark og flerbrukshall på 2.500 kvm åpnet i september. Hasle-Løren IL holder til ved Lørenhallen og har et bredt tilbud og tilbyr fotball, ishockey, sykkel, ski, multisport, innebandy og håndball. Sinsen-Refstad (SRIL), driver aktivitetstilbud for barn og unge i området Sinsen, Refstad, Løren, Frydenberg og Hasle.

    Det er også Taekwon-Do, Wushu og andre kampsportklubber i området. Sinsen Tennisklubb har fire grusbaner og sandvolleyballbane, samt Tennis Arena hall på Hasle med 11 tennisbaner inne. Danseskolen Danseløvene med mange spennende kurs, samt Sinsen Musikkorps som tilbyr fine aktiviteter for beboerne på Løren. Aktivitetsskolen er også en fin møteplass for barna.

    Løren Velforening er dyktig til å få fokus på Løren og har fått inn flere midler som bidrar til utvikling av området. I løpet av året arrangeres det flere kulturbegivenheter: karneval for de minste, Quiz-kvelder, utendørs kino i parken, Lørendagen og Hallo-Venn om høsten, tenning av julegrana på Løren Torg, julemarked og juletrefest som alle samler naboene.

    Økern er ikke langt unna sentrum og har godt kollektivtilbud. Ca. 800 m til Økern hvor t-banelinjene 4 og 5 stopper, samt busslinjene 23, 24, 60, 67, 28, 345, FB3 og 125 E. Buss stopper også på Sinsen og på ring 3. Flybussen stopper 400 m unna i Dag Hammarskjölds vei samt ringveisbussene 23 og 24. Fra Sinsenterrassen kan du også reise med trikk. Bysyklene er også et fint alternativ i sommerhalvåret. Gangavstand til Carl Berner, Sinsen, Aker Sykehus, Storo, Økern, Hasle, m.m.

    Fra Løren er det også kort vei til fantastiske Grefsenkollen hvor du finner en av de beste utsiktene i byen over Oslo og Oslofjorden. Det er også et av de mest populære turmålene i Lillomarka, enten du kommer hit for utsikten eller planlegger å overnatte i hengekøye.

    Nærmeste nabolag, Økernområdet er i stadig utvikling, og er spådd til å bli et av Oslos viktigste knutepunkter. Økern Sentrums hovedfokus er å ta et helhetsgrep om stedsutviklingen og skape et moderne og integrert bysentrum med mangfold. Målet er å etablere et totalt tilbud for befolkningen. Økern skal utvikles til å bli en levende og spennende by for alle. Stikkord: Rekreasjon, kunst, kultur – og fritidstilbud, spennende arkitektur og utsmykning, alternativ utforming av bomiljøer, kaféliv, kunst og designerbutikker, bevaring av historiske spor, osv.

    Les mer om Løren på www.loren.no og "nye" Økern på https://vimeo.com/523755815

    Adkomst

    Med buss:
    Linje FB3, 23 og 24 til bussholdeplassen Lørenvangen. Boligen er ca. 4 minutters gange unna.

    Med t-bane:
    Linje 4 og 5 til t-banestoppet Økern T. Boligen er ca. 11 minutters gange unna.

    Med trikk:
    Linje 17 til trikkestoppet Sinsenkrysset. Boligen er ca. 16 minutters gange unna.

    Med tog:
    Linje RE30 og R31 til togstasjonen Grefsen stasjon. Boligen er ca. 22 minutters gange unna.

    Det vil bli skiltet med Krogsveen visningsskilt ved fellesvisninger.

    Barnehager, skoler og fritid

    Det er kort vei til skoler og barnehager i området.

    Skoler:
    Løren skole (1-7 kl.): 0.4 km
    Refstad skole (1-7 kl.): 1 km
    Sinsen skole (1-7 kl.): 1.3 km
    Wang Ung Oslo (8-10 kl.): 1.| km
    Frydenberg skole (8-10 kl.): 1.1 km
    Kuben videregående skole: 1.5 km

    Barnehager:
    Espira Spirea barnehage (1-6 år): 0.2 km
    Refstad barnehage (1-6 år): 0.5 km
    Espira Gartnerløkka barnehage (1-6 år): 0.5 km

    Informasjon om tilhørende skolekretser er hentet fra Prognosesenteret som dataleverandør og tilhørigheten kan årlig endres av kommunen. Dersom skole- og barnehagetilbud er av betydning for kjøpet, ber vi om at det rettes en særskilt henvendelse til kommunen/bydelsadministrasjonen for oppdatert informasjon.

    Beskrivelse av tomt

    Eiertomt på 2.687 m² som tilhører borettslaget. Fellesområder opparbeidet med asfalterte internveier/adkomstveier, sittebenker, sykkelparkering, plenarealer, trær, prydbusker og diverse beplantning.

    Parkering

    Boligen disponerer ikke garasjeplass. Ifølge borettslagets regler er salg/utleie av parkeringsplass kun tillatt til andre andelseiere av dette borettslaget. Styret fører oversikt over hvilke biloppstillingsplasser i kjeller som ligger til hvilken andel/leilighet. Styret skal informeres for godkjenning før salg/utleie gjennomføres. Andelseiere med garasjeplass betaler garasjeleie i tillegg til felleskostnader.

    Det er innført beboerparkering i dette området (indre by). Dette betyr at du kan parkere fritt døgnet rundt på parkeringsplassene regulert til beboerparkering i området rundt din bolig for kun kr. 3.850- pr. år for fossile biler, dieselbil, hybridbil, ladbar hybrid.
    Har du el-bil så betaler du kr. 1.300,- pr år, hydrogenbil og el-varebil er gratis.
    Motorsykkel og moped kr 1.925,- pr år.
    El-motorsykkel og el-moped kr 650,- pr år.

    Se Oslo kommune sine nettsider for mer informasjon og priser for ytre by.

    Vei, vann og avløp

    Eiendommen har adkomst via kommunal vei og via privat vei med felles vedlikeholdsansvar.

    Eiendommen er tilknyttet kommunalt ledningsnett via private stikkledninger. Eier er selv ansvarlig for private stikkledninger til boligen.

    Regulerings-og arealplaner

    Eiendommen er regulert til boligbebyggelse i henhold til reguleringsplan S-4222 datert 15.03.2006 med tilhørende reguleringsbestemmelser.

    Boligen inngår i kommunedelplanene KDP-15 og KDP-17, veiledende plan for offentlig rom - Løren/Økern og strategisk plan for Hovinbyen.

    Området er under utvikling og byggearbeider må påregnes.

    Det er flere byggesaker i området, blant annet:
    - Saksnr. 202463186 og 202504509, byggesak: Spireaveien 20 - Opparbeidelse av parkanlegg - Refstadparken. Etablering av parkanlegg som består av møteplasser, turdrag, gang- og sykkelveier, lekeområder pergolaer og toalettbygg. Søknaden omfatter også åpen overvannshåndtering, åpning av Refstadbekken og klopper over bekken. Per 30.09.2025 ble det gitt igangsettingstillatelse og per 29.10.2025 ble det lagt ut gjennomføringsplan.

    - Saksnr. 202460280 og 202506747, reguleringssak: Økern Torgvei 6. Planområdet er på ca. 17.565 m². Hensikten er å utvide parken med 6.800 m² og legge til rette for bolig og næring (forretning/bevertning), torg og møteplasser. Muligheten for Omsorg+-boliger og studentboliger skal undersøkes i planarbeidet, og idrettsflater skal vurderes på deler av parkutvidelsen. I avklaringsmøte om parken er det enighet om å legge inn en viss fleksibilitet når parken reguleres, slik at 7'erbanen (36 x 56 meter) sikres, så kan de andre foreslåtte aktivitetene vurderes nærmere ved gjennomføring av parkutvidelsen. Det ses på kombinasjoner av ordinære boliger og omsorgsboliger, inkl. omsorgsboliger for demente. I planprosessen skal det vurderes om Omsorg+-boliger kan etableres i kombinasjon med kommunale utleieboliger og selveierboliger. Nye kombinasjoner; bofellesskap for eldre, utviklingshemmende, studenter og ordinære boliger, samt næring og fellesfunksjoner. Per 01.09.2025 ble det sendt referat. Prosjektet kan bli synlig fra svalgangen og den siden av leiligheten som vender mot svalgangen.

    - Saksnr. 201610267 og 202506787, reguleringssak: Spireaveien 3 - Flerbrukshall - Refstad flerbrukshall. Planområdet foreslås regulert til bebyggelse og anlegg- idrettsanlegg, kombinert formål bebyggelse og anlegg - idrettsanlegg/friområde, renovasjonsanlegg, samferdselsanlegg og teknisk infrastruktur – kjøreveg, torg og parkering og grønnstruktur – friområde. Planforslaget fremmes med to alternativer der alternativ 1 plasserer flerbrukshallen i nordøst og i alternativ 2 plasseres den noe lenger mot vest. Ishallen foreslås plassert på samme sted som eksisterende ishall i syd, mot Spireaveien. Begge planalternativene foreslår en grad av utnyttelse på BRA= 10.100 m² , der flerbrukshallen utgjør 3.500 m² , driftsgarasje utgjør 100 m² og ishallen utgjør 6.000 m². For begge alternativer er gesimshøyden for flerbrukshallen foreslått til kote 130,5, som gir en høyde på ca. 12 m. Gesimshøyden til ishallen er foreslått til kote 126,5, og delvis kote 124, som tilsvarer en høyde på ca. 12 og 14,5 m. Driftsgarasjen har gesimshøyde foreslått til kote 123, som gir en høyde på ca. 4,9 m. Eksisterende fotballbaner foreslås utvidet til standard mål, og det skal anlegges to nye 5` er baner, en basketballbane og en utendørs isbane. I alternativ 2 er det også foreslått en sandhåndballbane/ sandvolleyballbane. Arealene mellom Mørtelverksbakken og ballbanene foreslås regulert til torg. Torget ligger mellom flerbrukshallen og ishallen og foreslås opparbeidet med vegetasjon og være et areal for opphold, spill og lek. Planforslaget legger til rette for en utvidelse av kjørearealet i snuplassen i Mørtelverksbakken, som gir plass til av- og påstigningsplasser. Det er avsatt parkeringsareal på vestsiden av Mørtelverksbakken, som gir plass til en bussoppstillingsplass. Arealene nord og vest for idrettsanlegget foreslås regulert til grønnstruktur-friområde som tidligere. Turveiene gjennom området skal opprettholdes og planforslaget legger til rette for at Refstadbekken kan reetableres som våtmarkssig/fuktdrag innenfor planområdet. Per 11.12.2025 ble det sendt svar på vurdering av endring.

    - Saksnr. 201908559 og 202506931, reguleringssak: Økernveien 145 med flere (Økern sentrum) - Flerfunksjonelt bysentrum med høy andel bolig. Forslagsstiller Økern Sentrum ANS ønsker å endre reguleringsplanen for sentrale deler av Økern til et nytt bysentrum, men opprettholder hovedsakelig arealbruk fra gjeldende plan, herunder bolig, kontor, forretning, allmennyttig formål (kultur, helse), bevertning og samferdselsareal. I tillegg avsettes 6.000 m² til blågrønn struktur med gjenåpnet Hovinbekken og Refstadbekken gjennom området, aktivitetspark på 3.500 m², og 7.000 m² eksisterende grønnstruktur sikres oppgradert med vegetasjon og gang- og sykkelvei. I planforslaget legges det opp til 220.000 m² ny bebyggelse, hvorav 128.000 m² BRA bolig (opp til 1300 boliger), minst 11.500 m² forretning og bevertning og minst 10.500 m² andre utadrettede formål (kultur, idrett, barnehage) hovedsakelig plassert i første etasjer, og byggehøyder opp til 70 m. Plan- og bygningsetaten mener at planforslaget i all hovedsak er godt, men anbefaler ikke planforslaget og fremmer alternativ 2 med lavere utnyttelse, færre og lavere høyhus, lavere generelle byggehøyder, mer areal til bl.a. kultur og idrett inkl. mulighet for etablering av bad, høyere bokvalitet og flere trær. Per 22.12.2025 ble det oversendt korrigerte reguleringsbestemmelser.

    - Saksnr. 202006656, reguleringssak: Økern Torgvei 1 og Økernveien 148 - 150 - Vedtatt plan, S-5242. Bonum AS og Fram eiendom foreslår å omregulere Økern torgvei 1 og Økernveien 148-150
    nord på Økern fra lager og industri til et bymessig boligområde med butikker, servering og felleslokaler mot gatene og turvei og grøntområde i bakkant. Det planlegges for ca. 260 boliger i bygg på 5-8 etasjer. Plan- og bygningsetaten anbefaler ikke planforslaget og fremmer alternativ med lavere byggehøyder, større leiligheter og bevaring av flere trær for å sikre god tilpasning til kulturminner og omgivelsene, bokvaliteter og biologisk mangfold. Planen legger opp til at industribygg rives for å bygge boliger med publikumsfunksjoner i første etasje. Sammen med bygging av boligene skal det opparbeides en turvei i nord og gis ny utforming til gatene rundt. Per 29.01.2025 ble detaljregulering egengodkjent av bystyret.

    - Saksnr. 202314801 og 202508518, byggesak: Spireaveien 2 A-D - Oppføring av ungdomsskole, barnehage og flerbrukshall - Økern skole. Prosjektet vil inneholde en 8-parallells ungdomsskole med avdeling for tre mottaksgrupper, en 8-avdelings barnehage og flerbrukshall. Per 29.09.2025 ble det gitt igangsettingstillatelse del 9.

    På tomten til Bjerke travbane er det lagt frem et omfattende planinitiativ. Selvaag Bolig ønsker å starte opp en omregulering av felt N4-N8, Torgbyen på Bjerke, i tråd med føringene i planprogram om felles regulering av disse feltene. I den forbindelse er det utarbeidet et planinitiativ for det kommende planarbeidet som skal vise hva som skal vurderes i plansaken. Det er potensiale for opp mot 600-700 boliger i Nordfeltet (Torgbyen) og 1100 boliger i Sørfeltet (Parkbyen). Det planlegges med en forventet ferdigstillelse av 150-200 boliger per år i en 10-årsperiode.

    - Saksnr. 202213600 og 202506705, plansak (Bjerke Syd, Parkbyen): Parkbyen skal utvikles som et tilnærmet rent boligområde med om lag 700 boliger og en ny 8-10-avdelings barnehage. Det reguleres inn næringsareal for utadrettet virksomhet mot torget og overgangen til parken. Per 31.12.2025 ble det oversendt planforslag og per 12.01.2026 ble det sendt referat fra fellesmøte.

    - Saksnr. 202213772 og 202506905, plansak (Bjerke Nord, Torgbyen): Torgbyen skal utvikles til et nytt nabolagssentrum med urbane kvaliteter samtidig som travets virksomhet videreføres og utvikles. Planen tillater oppføring av ny bebyggelse, med kombinert bolig og næringsformål, mellom travarenaen og Refstadveien. Bebyggelsen er organisert som kvartaler. Kvartalsbebyggelsen har stort sett bebyggelse mellom 5-7 etasjer. Planforslaget tillater to høyere punkthus. Disse to punkthusene er angitt med bestemmelsesområde #7 som angir absolutt maks høyde 42 meter. Per 24.01.2026 ble det kalt inn til møte angående komplettering.

    Saksnummer kan søkes opp hos Plan- og bygningsetaten. Listen er ikke uttømmende og det er flere pågående saker på Løren/Økern.

    Utsnitt av plan med tilhørende bestemmelser kan fås ved henvendelse til megler.

    Økonomi

    Boligens kostnader

    Felleskostnadene er kr 4.422,- pr. mnd. og inkluderer: Fjernvarme, fibernett, vaktmestertjeneste, renhold, felles bygningsforsikring, renter og avdrag andel fellesgjeld, generelle driftsutgifter, kommunale avgifter, forretningsførsel, drift, vedlikehold mv.
    Felleskostnadene justeres normalt en til to ganger årlig i forhold til borettslagets faktiske utgifter og ble sist justert 01.01.2026 med en økning i posten driftsutgifter med 9,6% og reduksjon i posten tv/internett til kr 189,-.
    Felleskostnadene fordeles slik:
    Lån nr: 9820790469; IN lån 1 - Akonto renter kr 555,36,-
    Lån nr: 9820790469; IN lån 1 - Akonto avdrag kr 662,96,-
    Fjernvarme kr 690,-
    Internett kr 189,-
    Driftsutgifter kr 2.324,-

    Eiendomsskatten er kr 0,- pr år.

    Selger har ikke bebodd eiendommen og har således ikke kjennskap til øvrige løpende utgifter for eiendommen.

    Boligen er tilknyttet GlobalConnect AS som leverandør av fibernett. Andre tjenester bestilles og betales av den enkelte. Tv-tuner/dekoder medfølger ikke.

    Kjøper må selv tegne innboforsikring.

    Formuesverdi

    Formuesverdi for 2024 var kr 818.581,- ifølge selgers skattemelding. Beløpet forutsetter at eier bor fast i boligen (primærbolig).

    Ved eventuell øvrig bruk av eiendommen (f.eks. fritidsbolig, pendlerbolig, utleieobjekt) var formuesverdien for 2024 kr 3.274.322,-.

    Formuesverdien justeres normalt årlig. Se skatteetaten.no for mer informasjon om fastsettelse av formuesverdien.

    Opplysninger om fellesgjeld

    Andel formue er kr 5.525,- pr. 31.12.2024
    Andel fellesgjeld er kr 190.463,- pr. 12.01.2026

    Total fellesgjeld for boligselskapet er kr 12.186.382,- pr. 12.01.2026 og lånevilkårene er:

    Lånenr.: 98207904694
    Lånetype: Annuitetslån
    Rentesats: 5,19%
    Restsaldo kr 7.429.762,-
    Innfrielsesdato: 30.09.2037
    Type rente: Flytende rente
    Terminer i året: 12
    IN-avtale: Ja

    Lånenr.: 98208537431
    Lånetype: Annuitetslån
    Rentesats: 5,19%
    Restsaldo kr 4.756.620,-
    Innfrielsesdato: 30.04.2055
    Type rente: Flytende rente
    Terminer i året: 12
    IN-avtale: Nei

    Dette borettslaget har tilrettelagt for individuell nedbetaling av andel fellesgjeld (IN-ordning) på ett lån. Det vil si at hver enkelt andelseier helt eller delvis kan velge å nedbetale sin andel av borettslagets fellesgjeld til boligbyggelaget. Dette vil i så fall medføre en reduksjon av de månedlige felleskostnadene (andel av renter og avdrag på fellesgjelden). Nedbetalt andel av fellesgjeld knyttes til andelen og følger andelen ved et eventuelt salg.
    kr 127.754,36,- av fellesgjelden p.t. kan innløses. Dette vil medføre en reduksjon i felleskostnadene med p.t. kr 1.127,13,-.

    Omkostninger

    3 600 000,00 Prisantydning
    191 116,00 Andel av fellesgjeld
    --------------------------------------------------------
    3 791 116,00 Pris inkl. fellesgjeld

    Omkostninger

    9 950,00  Gjensidige Boligkjøperpakke (valgfri)
    545,00  Tinglysing hjemmel
    545,00  Tinglysing panterettsdokument
    --------------------------------------------------------
    11 040,00 Omkostninger totalt

    --------------------------------------------------------
    3 802 156,00 Totalpris inkl. omkostninger

    --------------------------------------------------------

    Dersom kjøper ikke er medlem av boligbyggelaget, må det påregnes en innmeldingsavgift og årlig medlemsgebyr pr. ny andelseier. Dette faktureres direkte fra boligbyggelaget.
    Dersom borettslaget har fellesgjeld, vil leilighetens andel av fellesgjelden komme i tillegg til kjøpesummen. Denne gjelden skal ikke innbetales i oppgjøret, men følger leiligheten.
    Det tas forbehold om endringer i avgifter og gebyrer.

    Tilbud om lånefinansiering

    Megler formidler gjerne kontakt med rådgiver hos vår samarbeidspartner BN Bank. De har konkurransedyktige betingelser samt rask og løsningsorientert behandling av din lånesøknad. Krogsveen mottar et honorar dersom lån opprettes. 

    Betalingsbetingelser

    Kjøpesum inkludert omkostninger, samt pantedokument tilknyttet eventuelt lån, skal være disponibelt hos megler 2 virkedager før overtagelsen.

    Annen viktig informasjon

    Eier

    Niksa Radic

    Informasjon om borettslaget

    Leiligheten er tilknyttet Spireaveien 10 B Borettslag. Borettslaget består av 61 leiligheter.
    Forretningsfører er OBOS, tlf. 22 86 56 00.
    Dugnad må påregnes.
    Dyrehold er tillatt i borettslaget under forutsetning av at eier aksepterer borettslagets regler for dyrehold. Søknadsskjema med vilkår finnes på borettslagets hjemmesider. Utfylt skjema sendes til styret på vibbo/e-post.
    Borettslaget praktiserer ikke forkjøpsrett.

    Foretatt påkostninger de senere år: 
    2025:
    Utført vedlikeholdsoppgaver og større prosjekter. Prosjekter som reparasjon av veibane utenfor bygget, vedlikehold av byggets fasade, samt utskifting av noen vinduer i 5. etasje, forårsaket av vannlekkasje. Knyttet til utskiftning av vinduer i 5.etasje, ble taket utredet og reparert. Vedlikehold av garasjen.
    2024/2025:
    Service på heis. Utbedret utfordringer med sikringer og kabler til lys i fellesganger. Håndtert noen feilkoblinger av både sikringer og kabler ute. Noen av feilene i sikringsskapet som er direkte koblet til leilighet har også blitt håndtert. Sensor på utsiden ble skiftet ut, og noen lamper ble byttet ut.
    2023/2024:
    Garasjevask. Startet opp igjen arbeidet med utbedringen av veibanen inn til hovedinngangen. Malt vegger og gulv på svalganger, i alle plan. Har startet arbeidet med å få på plass en 10-års vedlikeholdsplan. Drift og gjennomføring av servicer.
    2022:
    Utført garasjevask. Gjennomført tilstandsvurdering av eksternt firma Soon Takst as, denne skal danne grunnlag for en 10 års vedlikeholdsplan. Engasjert Aktiv Brannvern AS for å få justert brannvarslingsanlegget til et nivå som ikke medfører unødvendige brannalarmer. Det har vært fokus på normal drift og at alle servicer har blitt gjennomført.
    2021-2022:
    Avskallinger fra betongelementene på balkongene, strakstiltak og undersøkelser ble gjort umiddelbart. Engasjert Ateam inneklimaservice for utskifting av defekte deler på ventilasjonsanlegg i kjeller. Vannlekkasje fra svalgang og inn i enkelte leiligheter. Engasjert Coor eiendomsdrift for å utføre tiltak. Maling. Oppfølging av ventilasjon i gjenstående leiligheter. Ny nummerering og skilt på parkeringsplassene. Ferdig montert og aktivert brannvarslingsanlegg. Kontroll av det elektriske anlegget. Engasjert Multiconsult ifm. forarbeider til prosjektet med veiarbeid. Engasjert Ateam inneklimaservice for tiltak mot frostdannelse på rør til et av aggregatene i bodene. Montert opp ny lyssensor nederst i trappeløpet utenfor heisen

    Planlagte påkostninger:
    Etter e-post fra styret 25.01.2026 opplyses det om:
    - Gjesteparkering med oppmerking og skilting. Det vil bli malt opp plasser på asfalten og et fungerende gjesteparkeringssystem vil bli innført for borettslaget. Dette vil bli gjennomført når snø og is smelter.
    - Årskontroll av det elektriske anlegget blir gjennomført etter kapasitet denne våren.
    - Nødvendig videre arbeid med heisproblematikken vil følges tett opp, der videre planlegging av modernisering må gjennomføres på sikt. Rapporten viser dessverre at heisen vår har behov for en større påkostet
    modernisering i fremtiden, forårsaket av slitasje over lengre tid, da heisen har vært i drift i 18 år. Dette er ikke en prioritet foreløpig, men tiltak for langsiktig besparelse mot det er aktuelt.

    Videre opplyser styret om at det p.t. ikke er planer om økning av felleskostnader og ikke planer om låneopptak.

    I henhold til borettslagets vedtekter må kjøper godkjennes av styret som ny andelseier. Det er kjøpers ansvar at styregodkjenning blir gitt, men styret kan ikke nekte godkjenning uten saklig grunn.
    Iht. burettslagslova kan man bare eie én andel i borettslaget. Kun fysiske personer kan være andelseiere.

    Borettslaget er tilknyttet Borettslagenes Sikringsordning AS som dekker manglende innbetaling av felleskostnader fra øvrige andelseiere.  Avtalen om sikring er gyldig til avtalen sies opp av en av partene. Oppsigelsesfrist er 1 desember med gyldighet fra førstkommende årsskifte.

    Dokumenter for borettslaget kan fås ved henvendelse til megler.

    Overtakelse

    Etter nærmere avtale. Overtakelse kan tidligst skje etter at styrets godkjennelse er avklart. 

    Boligselgerforsikring

    Selger har i forbindelse med salget tegnet boligselgerforsikring levert av Gjensidige.  
    Boligselgerforsikringen dekker selgers ansvar etter avhendingsloven begrenset oppad til kr 14 millioner. Dersom kjøper oppdager forhold ved eiendommen som hen mener utgjør en mangel ved eiendommen, vil Gjensidige behandle reklamasjonen på vegne av selger. Forsikringsvilkår kan fås ved henvendelse til megler.  

    Vedlagt salgsoppgaven følger selgers egenerklæringsskjema og tilstandsrapport. Interessenter må sette seg inn i dokumentene før bud inngis. 

    Boligkjøperforsikring

    Innen kontraktsmøtet må kjøper ta stilling til om det ønskes å bestille Boligkjøperpakken gjennom Gjensidige. I denne gunstige pakken er boligen ferdig forsikret og inkluderer rettshjelpsforsikring, også kalt Boligkjøperforsikring. Rettshjelpsforsikring gir trygghet og tilgang på profesjonell juridisk hjelp dersom det oppdages uventede feil eller mangler det første året etter overtagelse. Forsikringsselskapet behandler i så fall ethvert mangelskrav kjøper måtte ha overfor selger. 

    Boligkjøperpakken inkluderer bygningsforsikring for hus og hytte, innboforsikring, flytteforsikring og dobbel rentedekning - i situasjoner hvor kjøper ikke får solgt nåværende primærbolig.   

    Kjøper mottar ingen særskilt faktura for Boligkjøperpakken da kostnaden det første året legges til kjøpesummen for boligen. Det gjøres oppmerksom på Krogsveen mottar et honorar for denne formidlingen.
    Produktark for Boligkjøperpakken ligger vedlagt i salgsoppgaven.  

    Dersom ikke boligkjøperpakke ønskes kan kun rettshjelpsforsikring, også kalt boligkjøperforsikring, tegnes særskilt via megler. Rettshjelpsforsikringen varer i 5 år fra overtagelse og leveres gjennom Gjensidige. Ta kontakt med megler for ytterligere informasjon. 

    Selskap og privatpersoner som driver med kjøp/salg/utvikling som ledd i egen næringsvirksomhet kan ikke tegne boligkjøperpakke eller rettshjelpsforsikring. 

    Budgivning

    Forbrukerinformasjon om budgivning er vedlagt denne salgsoppgaven og er også på vår hjemmeside Krogsveen.no. Alle bud og budforhøyelser må inngis skriftlig. I tillegg må legitimasjon være fremlagt sammen med signatur fra budgiver.

    Vi oppfordrer til å gi bud elektronisk via GI BUD-knappen på eiendommens hjemmeside på Krogsveen.no. Da vil samtlige vilkår bli oppfylt.  
    Eventuelle forhøyelser eller endringer av budet kan bekreftes pr SMS eller på e-post. Vi oppfordrer alltid til å kontakte megler pr. telefon i tillegg da forsinkelser i SMS og e-post kan forekomme.

    For at budene skal kunne bli behandlet og videreformidlet skriftlig til alle involverte parter, må alle bud ha en tilstrekkelig lang akseptfrist, jf. eiendomsmeglingsforskriften § 6-3.

    Selger må også skriftlig akseptere budet før aksept kan formidles til budgiver. Akseptfrist bør derfor være på minimum 30 minutter, og budforhøyelser må derfor skje i god tid før fristens utløp.

    Bud i forbrukerforhold kan uansett ikke settes med kortere frist enn kl. 12.00 første virkedag etter siste annonserte visning. I tillegg kan ikke budet ha forbehold om at det skal holdes hemmelig ovenfor øvrige interessenter. Megler har iht lov om eiendomsmegling ikke anledning til å videreformidle disse budene, og de vil dermed heller ikke bli journalført.

    Etter at eiendommen er solgt vil kjøper og selger få tilsendt budjournal. Øvrige budgivere kan få utlevert kopi av budjournalen i anonymisert form.

    Hvitvaskingsreglene

    I henhold til lov om hvitvasking og terrorfinansiering har megler plikt til å gjennomføre kontrolltiltak overfor kunder, herunder fullmektiger. Dette innebærer bl.a. å bekrefte kunders og reelle rettighetshaveres identitet på bakgrunn av fremvist gyldig legitimasjon eller på annen godkjent måte, samt å innhente opplysninger om kundeforholdets formål og tilsiktede art.
    Dersom slike kundetiltak ikke kan gjennomføres, kan megler ikke etablere kundeforholdet eller utføre transaksjonen.
    Hvis kjøper ikke bidrar til gjennomføring av kundekontrollen og dette fører til at transaksjonen blir forsinket eller ikke kan gjennomføres, vil dette ansees som mislighold av avtalen og gi selger rettigheter etter avhendingslova kapittel 5. I tilfeller der selger ikke bidrar til gjennomføring av løpende kundekontroll underveis i oppdraget, er det selger som misligholder sine forpliktelser etter avtalen og gi kjøper rettigheter etter avhendingslovens kapittel 4. Partene er selv ansvarlige for eventuelle kostnader og ansvar dette kan medføre. Eiendomsmegleren eller eiendomsmeglingsforetaket kan ikke holdes ansvarlig for de konsekvenser dette vil kunne få for partene eller andre som har interesser i eiendomshandelen.

    Kjøper oppfordres til å innbetale kjøpesummen som ikke kommer fra låneinstitusjon i én samlet innbetaling fra egen konto i norsk bank. Megler har plikt til å melde fra til Økokrim om eiendomshandler som fremstår som mistenkelige. Melding sendes Økokrim uten at partene varsles. 

    Personopplysningsloven

    I henhold til personopplysningsloven gjør vi oppmerksom på at interessenter kan bli registrert for videre oppfølging.

    Lovanvendelse

    Generelle bestemmelser
    Salgsoppgaven er basert på de opplysningene selger har gitt til megler, den bygningssakyndiges tilstandsrapport, samt opplysninger innhentet fra kommunen, Kartverket og andre tilgjengelige kilder. Det er viktig at kjøper setter seg grundig inn i alle salgsdokumentene, herunder salgsoppgave, tilstandsrapport og selgers egenerklæring. Kjøper anses kjent med forhold som er tydelig beskrevet i salgsdokumentene, og slike forhold kan ikke påberopes som mangler. Dette gjelder uavhengig av om kjøper har lest dokumentene. Alle interessenter oppfordres til å undersøke eiendommen nøye, gjerne sammen med fagkyndig før bud inngis. Kjøper som velger å kjøpe usett kan ikke gjøre gjeldende som mangel noe han burde blitt kjent med ved undersøkelsen. 

    Dersom det er behov for avklaringer, anbefaler vi at interessenter rådfører seg med eiendomsmegler eller egne rådgivere før det legges inn bud.

    En bolig som har blitt brukt i en viss tid, har vanligvis blitt utsatt for slitasje og skader kan ha oppstått. Slik bruksslitasje må kjøper regne med, og det kan avdekkes enkelte forhold etter overtakelse som nødvendiggjør utbedringer. Normal slitasje og skader som nødvendiggjør utbedring, er innenfor hva kjøper må forvente og vil ikke utgjøre en mangel.

    Kjøper og selgers rettigheter og plikter reguleres av avtalen mellom partene, samt informasjonen som har vært tilgjengelig for kjøperen i forbindelse med handelen. Avtalen utfylles av avhendingsloven, og det gjelder ulike avtalevilkår avhengig av om kjøper er forbrukerkjøper eller ikke.  Dette er nærmere beskrevet nedenfor. 

    På grunn av ulike avtalevilkår kan selger vurdere bud fra en som ikke er forbruker, ulikt fra en forbrukers bud. Dersom kjøper ikke er forbruker, er selger sitt mulige mangelsansvar begrenset fordi eiendommen selges "som den er".  Selger kan ikke ta «som den er»- forbehold overfor en forbrukerkjøper. Selv et lavere bud fra en som ikke er forbruker kan foretrekkes fordi begrensningen i mulig mangelsansvar kan ha egenverdi for selger. Selger står fritt til å forkaste eller akseptere ethvert bud, og er for eksempel ikke forpliktet til å akseptere høyeste bud.

    Budgiver skal i budskjema avgi egenerklæring om budgiver er forbruker eller næringsdrivende/ person som hovedsakelig handler som ledd i næringsvirksomhet. Budgivere får informasjon dersom andre bud er inngitt av en som ikke er forbruker. 

    Forbrukerkjøp - definisjon
    Med forbrukerkjøp menes kjøp av eiendom når kjøperen er en fysisk person som ikke hovedsakelig handler som ledd i næringsvirksomhet.

    Forbruker – avtalevilkår
    Eiendommen har en mangel dersom den ikke er i samsvar med kravene som følger av avtalen, eller det foreligger brudd på bestemmelsene i avhendingsloven §§ 3-2 til 3-8. Hvis eiendommen ikke er i samsvar med det kjøperen må kunne forvente ut ifra alder, type og synlig tilstand, kan det være grunnlag for mangelskrav. Det samme gjelder hvis det er holdt tilbake eller gitt uriktige opplysninger om eiendommen. Dette gjelder likevel bare dersom man kan gå ut ifra at det virket inn på avtalen at opplysningen ikke ble gitt eller at mangelskravet ikke blir rettet i tide på en tydelig måte.

    Boligen kan ha en mangel etter avhendingsloven § 3-3 andre ledd, dersom det er avvik mellom opplyst og faktisk innvendig areal, forutsatt at avviket er på 2% eller mer og minimum 1 kvm.

    Ved beregning av et eventuelt prisavslag eller erstatning må kjøper selv dekke tap/kostnader opptil et beløp på kr 10 000 (egenandel).

    Ikke-forbruker (næringsdrivende) – definisjon 
    Hvis kjøper er en juridisk person, eller en fysisk person som hovedsakelig handler som ledd i næringsvirksomhet, vil kjøpet ikke anses som et forbrukerkjøp. 

    Ikke-forbruker – avtalevilkår
    Eiendommen har en mangel dersom den ikke er i samsvar med kravene som følger av avtalen.
    Eiendommen selges «som den er», og selgers ansvar utover det konkret avtalte er da begrenset etter avhendingsloven § 3-9, første ledd andre setning. 

    Avhendingsloven § 3-3 andre ledd fravikes, og hvorvidt boligens arealsvikt utgjør en mangel vurderes etter avhendingsloven § 3-8. 

    Informasjon om kjøpers undersøkelsesplikt, herunder oppfordringen om å undersøke eiendommen nøye, gjelder også for kjøpere som ikke anses som forbrukere.

    Det forutsettes at hjemmel overføres til kjøper. Hvis kjøper ikke ønsker hjemmelsoverføring av eiendommen, må det tas forbehold om dette i budet.

    Meglers vederlag

    Meglers vederlag betales av selger og er avtalt til:
    Vederlag: 2,00 % av salgssummen inkl. eventuell fellesgjeld.

    Vederlag:
    Kontroll av hjemmel og heftelser  kr 3.900,00
    Krogsveen Pluss - Pakking, flytting, lager og vask fra kr 30.000,00
    Markedsføringspakke  kr 30.900,00
    Oppgjør  kr 8.900,00
    Tilrettelegging  kr 19.900,00
    Visning / Overtagelse  kr 3.990,00

    Utlegg:
    Eierskiftegebyr forretningsfører - OBOS  kr 6.725,00
    Innhenting av informasjon forretningsfører - OBOS kr 4.375,00
    Tinglysing sikring  kr 545,00

    Andre utgifter:
    Boligens visittkort  kr 600,00
    Foto og møblert plantegning  kr 5.500,00
    Tilstandsrapport og målsatt plantegning fra takstmann - faktura til megler  kr 9.950,00

    Opplysninger om oppdraget

    Oppdragsnummer 54-0003/26
    Eiendomsmegler Krogsveen AS, avd. Løren
    Lørenveien 50, 0585, OSLO
    950 007 613
    Oppdragets KR-kode KR54.263

    Dato

    Sist oppdatert: 02. februar 2026 kl. 21:09

    Dokumenter

    Utskriftsvennlig salgsoppgave

    Område

    Legg til steder som er viktige for deg

    Prisutvikling for området

    Kvadratmeterpris

    0 kr/m²

    Endring

    ↘︎ % ()

    Visning

    Annonsert fellesvisning eller etter avtale med megler.

    Lurer du på noe?

    Unngå doble boligrenter

    Vi tilbyr gunstig forsikring.

    Hva koster lånet?

    Sjekk estimert lånekostnad

    Vil du varsles om lignende boliger?

    Ved å lagre ditt boligsøk hos oss får du beskjed når vi har en bolig som ligner denne, før den legges ut på markedet!

    På flyttefot? Slik gjør vi det enklere for deg

    Skreddersydd flyttepakke

    Vi fikser håndverkere, vask, pakking, lagring og transport, og legger ut for utgiftene underveis.

    Hjelp med både kjøp og salg

    Hos oss har du din egen rådgiver gjennom hele kjøps- og salgsprosessen.

    Hjelp til finansiering

    Vårt samarbeid med BN Bank sikrer deg rask og løsningsorientert hjelp, til konkurransedyktige betingelser.