Hallingrudveien 5
9 490 000 kr
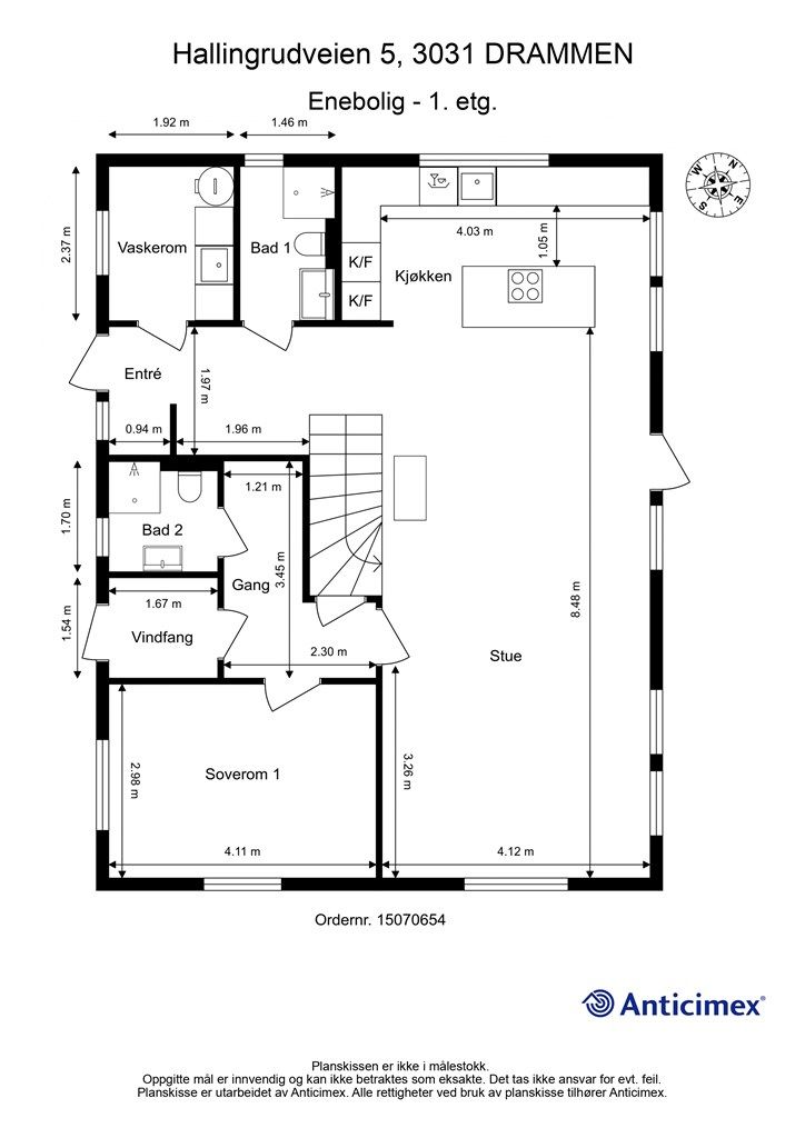
167 m²
5 soverom
Solgt
Konnerud
Moderne & påkostet enebolig fra 2024 med 2,2 mål tomt med en usjenert beliggenhet. 5 sov. 3 bad. Nær barneskole & marka.
Prisantydning
9 490 000 krOmkostninger
258 240 krTotalpris
9 748 240 kr
Pris
Bruksareal
167 m²BRA-I (internt bruksareal)
167 m²
Areal
Etasje
2Byggeår
2024Soverom
5 soveromBad
3 badTomteareal
2 283 m² (eiet)Type
Enebolig - FrittliggendeEierform
EietEnergimerke
Oransje B
Nøkkelinfo
Unngå doble boligrenter
Vi tilbyr gunstig forsikring.
Vurderer du utleie?
Få et tilbud fra Utleie KrogsveenHva koster lånet?
Sjekk estimert lånekostnadBeskrivelse
Kort om eiendommen
Velkommen til Hallingrudveien 5
Vil du bo usjenert og tilbaketrukket til, men likevel ha kort gangavstand til barneskole, badevann og marka med milevis av turmuligheter? Hallingrudveien 5 er en nyoppført bolig som er svært energieffektiv og påkostet med en tomt på hele 2.2 mål med stort potensiale!
Standard fra 2024 og nesten ubebodd bolig
5 romslige soverom
3 bad og vaskerom
Lys stue med åpen løsning til kjøkken med kjøkkenøy
Påkostet kjøkken fra Designa med god lagringsplass
Store vindusflater med godt lysinnslipp
Svært romslig tomt med stort potensiale
Gangavstand til barneskole, Stordammen og marka
13 min med bil/buss til Drammen sentrum med hyppig togavganger
Velkommen til visning!
Område
Legg til steder som er viktige for deg
På flyttefot? Tenk kjøp og salg samtidig.
Få din egen rådgiver gjennom hele kjøps- og salgsprosessen. Det starter med en verdivurdering.
Unngå doble boligrenter
Vi tilbyr gunstig forsikring.
Vurderer du utleie?
Få et tilbud fra Utleie KrogsveenHva koster lånet?
Sjekk estimert lånekostnadVil du varsles om lignende boliger?
Ved å lagre ditt boligsøk hos oss får du beskjed når vi har en bolig som ligner denne, før den legges ut på markedet!
På flyttefot? Slik gjør vi det enklere for deg
Skreddersydd flyttepakke
Vi fikser håndverkere, vask, pakking, lagring og transport, og legger ut for utgiftene underveis.
Hjelp med både kjøp og salg
Hos oss har du din egen rådgiver gjennom hele kjøps- og salgsprosessen.
Hjelp til finansiering
Vårt samarbeid med BN Bank sikrer deg rask og løsningsorientert hjelp, til konkurransedyktige betingelser.




