Bråtan 63
4 450 000 kr
161 m²
2 soverom
Komplett salgsoppgave
Åssiden
Praktisk enebolig med separat 2-roms utleiedel i kjeller. Sydvendte verandaer med utsikt. Gårdsplass. Øren skolekrets.
Prisantydning
4 450 000 krOmkostninger
132 240 krTotalpris
4 582 240 kr
Pris
Bruksareal
161 m²BRA-I (internt bruksareal)
161 m²TBA (terrasse-balkongareal)
39 m²
Areal
Etasje
3Byggeår
1987Soverom
2 soveromBad
2 badTomteareal
767 m² (eiet)Type
Enebolig med utleiedelEierform
EietFasiliteter
Balkong/TerrasseEnergimerke
Gul D
Nøkkelinfo
Unngå doble boligrenter
Vi tilbyr gunstig forsikring.
Vurderer du utleie?
Få et tilbud fra Utleie KrogsveenHva koster lånet?
Sjekk estimert lånekostnadBeskrivelse
Kort om eiendommen
Innhold og byggemåte
Innhold og byggemåte
Eiendommen
Bråtan 63, 3022 DRAMMEN
Kommunenummer 3301, gårdsnummer 116, bruksnummer 1912, ideell andel 1/1
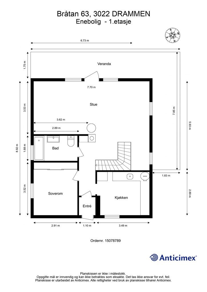
Innhold
Totalt bruksareal BRA: 161 kvm
BRA-i:
1. etasje:
69 kvm: Entré, gang, kjøkken, bad, soverom og stue.
2. etasje:
24 kvm: Tv-stue.
Kjeller/Utleiedel:
68 kvm:
Utleiedel: Entré, kjøkken, stue, soverom, bod og bad.
Hoveddel: Trapperom og bod.
Terrasse- og balkongareal (TBA):
1. etasje 26 kvm: Veranda.
2. etasje 13 kvm: Veranda.
Loftsetasjen (2. etasje) har et totalt gulvareal (GUA) på 37 kvm, men grunnet skråtak/lav takhøyde er kun 24 kvm av arealet måleverdig som bruksareal. De delene av arealene som har lav himlingshøyde (ALH) utgjør 13 kvm.
De oppgitte arealer er hentet fra rapport med befaringsdato 05.02.2026 utført av Anticimex AS v/Amund Kjeldsaas. Arealene er beregnet og rom er definert etter dagens faktiske bruk, uavhengig av hva som er godkjent av bygningsmyndighetene.
Byggemåte
Selger har fått utarbeidet en tilstandsrapport for eiendommen, dvs. en teknisk gjennomgang av boligen hvor eventuelle avvik, risiko for kjøper og prisoverslag for hva som bør gjøres av oppgradering, er skissert. Se særskilt TGIU (tilstandsgrad ikke undersøkt), samt TG2 og TG3 som viser hva som er avvik fra boligens normale slitasje, alder og type, eller som bør/må utbedres. Rapporten og selgers egenerklæring er en del av salgsoppgaven og må leses nøye før bud inngis. Kjøper overtar ansvaret for de opplysninger som fremkommer av salgsdokumentasjonen, og kan ikke gjøre gjeldende som mangel noe som burde vært kjent eller som ikke kan anses å ha betydning for avtalen.
Bygningen er iht. tilstandsrapport en enebolig med utleiedel over to etasjer samt kjeller, oppført i 1987. Boligen er oppført med grunnmur av betongkonstruksjoner/sprøytebetong, mens bærende konstruksjoner og etasjeskiller er av tre. Ytterveggene er trekonstruksjoner utvendig kledd med stående trekledning. Takkonstruksjonen er utført i tre i en saltaksform, og yttertaket er belagt med takstein fra byggeår. Vinduer har karmer av tre med to-lags glass fra byggeår. Entrédøren er fra 2015 og terrassedøren i 1. etasje er fra 2014.
Det gjøres spesielt oppmerksom på at følgende bygningsdeler er gitt Tilstandsgrad 3 (TG3) — Store eller alvorlige avvik:
Utvendige trapper
- Helhetsvurdering: Sprekker og riss samt løse fliser. Det er registrert bomlyd i enkelte fliser.
Forstøtningsmurer
- Forstøtningsmurer: Det er til dels store skjevheter og deformasjoner på forstøtningsmurer.
Følgende bygningsdeler er gitt Tilstandsgrad 2 (TG2) — Avvik som kan kreve tiltak:
Våtrom
- Bad 1.etasje - Helhetsvurdering: Våtrommet er vurdert ut fra alder og slitasje. Gulvbelegg er benyttet som fuktsikring. Tettesjikt, vannrør av kobber og avløpsrør har passert anbefalt brukstid, med usikker restlevetid.
- Utleiedel kjeller - Helhetsvurdering: Våtrommet er vurdert ut fra alder og slitasje. Det er påvist misfarging/svertesopp på flisfuger og elastiske fuger, og elastiske fuger har stedvis manglende vedheft. Tettesjikt, vannrør av kobber og avløpsrør har passert anbefalt brukstid, med usikker restlevetid. Dusjkabinettet bærer preg av slitasje og elde.
Kjøkken 1.etasje
- Overflater gulv: Gulvoverflater bærer preg av slitasje.
- Vannrør: Vannrør i kjøkkenet har en alder som tilsier at anbefalt brukstid er passert.
- Avløpsrør: Avløpsrør har en alder som tilsier at anbefalt brukstid er passert.
- Varmtvannsbereder: Berederens alder gir usikker restlevetid. Den er plassert i rom uten sluk/overløp eller annen sikring mot fuktskader.
Kjøkken utleiedel
- Ventilasjon og avtrekk: Det er usikkert om ventilatoren gir tilstrekkelig avtrekk. Ved funksjonstest ble det registrert liten effekt, og det ble observert løse deler.
- Overflater gulv: Gulvoverflater bærer preg av slitasje.
- Vannrør: Vannrør av kobber har en alder som tilsier at anbefalt brukstid er passert.
- Avløpsrør: Avløpsrør har en alder som tilsier at anbefalt brukstid er passert.
Øvrige rom
- Overflater vegger: Veggoverflater bærer preg av slitasje.
- Overflater gulv: Gulvoverflater bærer preg av slitasje.
Rom under terreng
- Overflater gulv: Gulvoverflater bærer preg av slitasje. Det er også registrert stedvis riper, hakk og merker.
- Innerdører: Innerdører har skader/slitasje. Dørbladet til innerdør ved soverom har kontakt med dørterskel og gulv.
- Konstruksjoner (tilfarergulv, himling og vegger): Etasjen har utlektede vegger under bakkenivå. Konstruksjonen er lukket, og oppbyggingen er ukjent.
- Spesielle observasjoner: Det er påvist skrukketroll og diverse insekter i etasjen.
Loft - uinnredet / råloft
- Inspeksjonsmulighet: Det er ikke tilkomst for inspeksjon av uinnredet loft, og oppbyggingen er ukjent.
Etasjeskiller
- Skjevhetsmåling: Største målte avvik er 15 mm i gangen i 1. etasje. Målingene er foretatt i en eldre bygning, hvor skjevheter er mer påregnelige.
Tekniske anlegg, VVS anlegg
- Vannrør: Vannrør av kobber har en alder som tilsier at anbefalt brukstid er passert.
- Hovedstoppekran: Stoppekranen er av eldre type og har passert anbefalt brukstid.
- Avløpsrør: Avløpsrør har en alder som tilsier at anbefalt brukstid er passert.
- Varmtvannsbereder: Berederens alder gir usikker restlevetid. Den er plassert i rom uten sluk eller annen sikring mot fuktskader.
Yttervegger
- Fasader ink. kledning: Utvendige flater trenger overflatebehandling/fornying.
Dører og vinduer
- Vinduer: Vinduene er av eldre dato og har behov for oppgraderinger/overflatebehandling. Flere av vinduene er vanskelige/trege å åpne.
- Dører: Ytterdører av eldre dato har behov for oppgraderinger/overflatebehandling/utskifting.
Yttertak
- Tekking (undertak, lekter og yttertekking): Det er registrert symptomer på elde og slitasje.
Drenering
- Alder: Dreneringens alder og observerte symptomer tilsier at levetiden er passert. Tilstanden er vurdert ut fra alder, da den er nedgravd og skjult. Opplysningen bør ses i sammenheng med observasjoner gjort fra innsiden (på bad).
- Terrengfall fra grunnmur: Det er stedvis lite terrengfall vekk fra grunnmuren.
- Fuktsikring av grunnmur: Grunnmurens utvendige fuktsperre er ikke avsluttet med beslag/topplist.
Stikkledninger og tanker
- Vann- og avløpsledninger: Alder og materialvalg på vann- og avløpsrør tilsier at anbefalt brukstid er passert. Rørene er skjult i grunnen, så tilstanden er vurdert ut fra alder.
Følgende bygningsdeler er ikke undersøkt (TGIU). Det anbefales ytterligere undersøkelser av disse punktene:
Tekniske anlegg, VVS anlegg
- Stakeluke: Avløpsrørene er skjult og eventuell stakeluke er ikke lokalisert.
Radon
- Radon: Det er ukjent om radonmåling er gjennomført i boligen.
Yttertak
- Takgjennomføringer: Ikke besiktiget grunnet sikkerhetsmessige årsaker og snødekte flater.
- Skorsteiner over tak: Ikke besiktiget grunnet sikkerhetsmessige årsaker og snødekte flater.
Grunnmur, fundamenter
- Byggegrunn: Byggegrunnens beskaffenhet er ukjent.
- Fundamenter: Fundamenter er naturgitt skjult, og det er ingen sikre opplysninger om type fundamenter.
Det opplyses i tillegg følgende i rapporten: Huseier er ikke tilgjengelig for å besvare spørsmål som gjelder for det elektriske anlegget (elektrisk anlegg). Betongfundamenter til søyler har sprekker påvist i konstruksjonen (balkonger, terrasser, veranda etc.). Tresøyler er skadet/råteskader (balkonger, terrasser, veranda etc.).
Se vedlagt tilstandsrapport for supplerende informasjon vedrørende boligens tilstand. Kjøper overtar ansvar og risiko for dette.
Tilstandsrapporten og selgers egenerklæring er vedlagt salgsoppgaven. Interessenter må sette seg inn i dokumentene før bud inngis.
Moderniseringer og påkostninger
Følgende moderniseringer er foretatt de senere år:
2015:
- Ny entrédør med glassfelt og karmer av tre.
2014:
- Ny terrassedør i 1. etasje med karmer av tre og 2-lags glass.
Standard
Løsøre og tilbehør
Hvitevarer på kjøkkenet (1. etasje og kjeller) medfølger ikke i handelen.
Videre vises det til liste fra Norges Eiendomsmeglerforbund angående løsøre og tilbehør. Produkter og installasjoner som medfølger overdras uten noen form for garantier, utover eventuell gjenværende leverandørgaranti.
Hoveddelen ble rengjort før markedsføringstart, og vil som utgangspunkt ikke bli ytterligere rengjort før overtakelse.
Oppvarming
Boligen varmes opp med elektrisitet og vedfyring. Det er gulvvarme på bad i utleiedel. Peisovn i stuer (1. etasje og kjeller).
Det har blitt foretatt en kontroll av pipe og ildsted i 2017, utført av Drammensregionens brannvesen IKS. Følgende bemerkninger ble konstatert under tilsynet: Brennbart materiale er montert for nær sot/feieluke (underetasje - utleiedel). Kjøper overtar alt ansvar og risiko for dette videre.
Siste feiing ble utført 07.11.2025.
Dersom det ikke er vegg- eller fastmonterte varmekilder i rom ved visning, følger dette heller ikke med.
Ferdigattest/brukstillatelse
Det er utstedt midlertidig brukstillatelse for ny enebolig med sokkelleilighet datert 25.03.1988 med godkjente byggetegninger datert 20.03.1987. I følge tillatelsen gjensto småarbeider/mangler som måtte være utført før ferdigattest kunne gis. Det foreligger ikke ferdigattest i kommunens arkiver.
Det gjøres oppmerksom på at det ikke lenger utstedes ferdigattest på tiltak det er søkt om før 1998 jf. plan- og bygningsloven § 21-10. Kommunen vil ikke kreve ferdigattest for disse tiltakene og vil avvise eventuelle søknader. Bestemmelsen innebærer ikke at tiltak med manglende søknad blir lovlige, men at man ikke trenger å avslutte gamle byggesaker. Normalt sett kreves ferdigattest for alle søknadspliktige tiltak som gjøres etter plan- og bygningsloven.
Det anføres at nåværende tv-stue er opprinnelig byggemeldt som loftrom iht. godkjent byggetegninger. Dog har kommunen godkjent produktbeskrivelse av Moelven seksjonshus (20.02.1987), hvor det anføres følgende i bilag 1 (nærmere beskrivelse av konstruksjonssystem og montasje): "Ved loft med 340 takvinkel kan loftet brukes til varig opphold. Det må da monteres knevegger 1,2 m fra takfot etter produsentens anvisninger. Midtunderstøttelse (bærevegg eller limtrebjelke) plasseres slik at lengste spennvidde (mellom knevegg og understøttelse) blir 3,6 m". Videre er det på godkjente byggetegninger målsatt 340 takvinkel og knevegger 1,2 m fra takfot på snittegning av bygningen.
Kjøper overtar alt ansvar, kostnad og risiko for dette videre.
Tinglyste heftelser og rettigheter
Eiendommen overdras fri for pengeheftelser.
Dagboknummer: 12015
Tinglysningsdato: 27.11.1987
Servitutten omhandler: Eiendommen har en maksimal utnyttelsesgrad på 20% og skal bebygges med enebolig, generasjonsbolig eller enebolig m/hybelleilighet. Permanent adkomst via planlagt adkomstvei/gang- og sykkelvei. Felles vei, vann og avløp med Gnr. 116, Bnr. 1911, med tilhørende rettigheter og forpliktelser. Eier må tåle at elektriske ledninger, telefonledninger, vann- og kloakkledninger samt elektriske kabler trekkes over og ligger i grunnen. Disse må ikke overbygges eller skades, og ledningseier har rett til ettersyn, reparasjon og omlegging. Eier har ansvar for renhold og opprenskning av veigrøft. Kommunen kan vederlagsfritt legge skjærings- og fyllingsskråninger innenfor parsellgrensene. Trær på eiendommen kan ikke hogges uten samtykke.
Servitutten vil følge eiendommen. Kjøpers bank vil få pant etter ovennevnte heftelser og servitutter som ikke skal slettes ved overdragelse.
Eventuell adgang til utleie
Utleieenheten er godkjent som separat boenhet, og kan lovlig leies ut.
Det gjøres oppmerksom på at det er krav til forsvarlige radonnivåer ved utleie. Det er ikke gjennomført radonmåling på denne boligen.
Utleiedelen er utleid i dag for kr 11.500,- per måned.
Leieforholdet har en gjensidig oppsigelsestid på 3 måneder (regnet fra den 1. i påfølgende måned). I forbindelse med boligsalget har leieboer mulighet til å påberope seg 1 måned oppsigelsestid dersom det skal gjøres vesentlig oppussing/renovering i hovedboligen av nye eier.
Diverse
Eiendommen inngår i dødsbo under offentlig skifte hvor boet er selger. Selger har således ikke kunnskap om eiendommens tilstand.
Hjemmel vil stå på avdøde frem til overskjøting til ny kjøper. Det gjøres oppmerksom på at det ikke vil bli tinglyst pantedokument med sperre eller annen form for pantesikkerhet på eiendommen før overskjøting. Oppgjør vil skje mot tinglyst skjøte.
Energimerking
Komplett energiattest inkludert oppvarmingskarakter fås ved henvendelse til megler eller lastes ned fra www.krogsveen.no.
Beliggenhet og tomteforhold
Beliggenhet og tomteforhold
Beliggenhet
Eiendommen har en flott beliggenhet i høyden i et attraktivt og barnevennlig boligområde. Fra boligen er det flott utsikt mot Gulskogen. Kort vei til offentlig kommunikasjon og servicetilbud. Markaområder med tur- og friluftsmuligheter i nærheten, flotte tur- og rekreasjonsmuligheter både sommer og vinter.
Åssiden har meget gode fritids- og sportstilbud, med blant annet Skimore Drammen (tidligere Drammen skisenter) som kan tilby alpinanlegg (vinterstid) med 4-seters ekspressheis, terrengsykling, klatrepark og zipline på sommerstid. Åssiden IF med mange aktiviteter, se www.aif.no. Flere treningssentre i nærmiljøet. Aron Skiklubb med organisert trening, skileik m.m. Lysløype inn mot Solbergelva og Drammensmarka. Berskaug hallen med mulighet for ballspill m.m. og Berskaug idrettsplass med fotballbaner, skøytebane og tennisanlegg.
Gode bussforbindelser med kort vei til bussholdeplass langs Bråtan/Knut Bjørhuus vei, hyppige avganger til Drammen sentrum, se www.brakar.no for rutetider. Kort kjørevei fra eiendommen til Drammen togstasjon og Gulskogen togstasjon, hvor toget tar deg til Oslo på ca. 35 minutter fra Drammen, se www.vy.no for avganger. Flytoget bruker ca. 60 minutter fra togstasjonen i Drammen til Gardermoen flyplass, se www.flytoget.no for mer informasjon. Det gjøres oppmerksom på at regjeringen har vedtatt en nedleggelse av Flytoget fra og med 2028, hvor Vy vil overta trafikken på strekningene. Ifbm. dette vil Drammen bli et startpunkt for et timinutterssystem til både Oslo og Gardermoen (min. åtte avganger i timen). Generelt god offentlig kommunikasjon mot Kongsberg, Oslo og Tønsberg fra Drammen sentrum.
Adkomst
Det vil bli skiltet med Krogsveen visningsskilt ved fellesvisninger. Se kart i nettannonse eller Google Maps for nærmere veibeskrivelse. Velkommen til visning!
Barnehager, skoler og fritid
Godt sammensatt tilbud av private og offentlige barnehager.
Barnehager: Åssiden barnehage (1,1 km), Bacheparken barnehage (1,4 km), Øren andelsbarnehage (1,4 km).
Skoler: Øren barneskole (1,5 km) og Børresen ungdomsskole (2,9 km).
Drammen kommune har tre private barne- og ungdomsskoler, Drammen Realfagsskole Heltberg, Norlights Montessoriskole Drammen og Rosendal skole (Mjøndalen).
Det ligger flere videregående skoler i Drammen og Lier, samt Universitetet i Sørøst-Norge som har campus på Papirbredden i Drammen, for mer informasjon se www.usn.no.
Dersom skole- og barnehagetilbud er av betydning for kjøpet, ber vi om at det rettes en særskilt henvendelse til kommunen for oppdatert informasjon.
Beskrivelse av tomt
Eiet tomt på 766.6 m². Tilnærmet flat tomt over to nivåer som er opparbeidet med diverse beplantning, prydbusker, plenområder, steinlagt uteplass og gruslagt gårdsplass. Diverse forstøtningsmurer av betong og stein.
Deler av opparbeidet innkjørsel/gårdsplass mot nord/nordvest eies av kommunen, se kartutsnitt for tomtegrenser. Kjøper påtar seg risikoen for fortsatt bruk og fremtidig bruk samt eventuelle pålegg fra kommunen.
Parkering
Parkering på eiendommens gruslagte gårdsplass.
Vei, vann og avløp
Eiendommen har adkomst via kommunal vei.
Eiendommen er tilknyttet kommunalt ledningsnett via private stikkledninger. Eier er selv ansvarlig for private stikkledninger til boligen.
Regulerings-og arealplaner
Eiendommen er regulert til boliger (604,9 m²) og kjørevei (161,7 m²) i henhold til reguleringsplan "Regulering av Åssiden bydel", vedtatt 15.10.1953.
Eiendommen omfattes av Kommuneplanens arealdel for Drammen kommune 2025-2037, vedtatt 18.06.2025. I kommuneplanen er 766,55 m² av eiendommen avsatt til boligbebyggelse (nåværende).
Eiendommen berøres av hensynssone H310.3: Ras- og skredfare. I henhold til kommuneplanens bestemmelser § 18.6.1 gjelder følgende: "I områder utsatt for jord, snø og flomskred kreves det i forbindelse med utarbeidelse av regulering og før søknad om tiltak nærmere fagkyndig utredning/undersøkelse. Nødvendige sikringstiltak/avbøtende tiltak må utføres i tråd med utredningens anbefalinger."
Deler av eiendommen berøres av hensynssone H370: Faresone høyspentanlegg (inkludert høyspentkabler). I henhold til kommuneplanens bestemmelser § 18.13 gjelder følgende: "Det er ikke tillatt med bygninger, konstruksjoner eller infrastruktur innenfor byggeforbudssonene til anleggene. Begrensningene gjelder også konstruksjoner og infrastruktur i bakken. For alle tiltak på, i eller ved høyspentanlegg skal netteier kontaktes."
Deler av eiendommen er regulert til kjørevei, det er også regulert kjørevei fra Bråtan til Henrik Ibsens gate (forbi denne eiendommen) i henhold til reguleringsplan datert 15.10.1953. Det har ikke blitt gitt informasjon fra kommunen som tilsier at veien vil bli gjennomført.
Det pågår planarbeid i området. "Kommuneplanens arealdel for Drammen kommune 2027-2039", er under arbeid.
På naboeiendommen er det en reguleringsplan som er under arbeid, dette gjelder "Detaljregulering for Åslyveien 54". Hensikten med planen er å legge til rette for etablering av serveringssted eventuelt kombinert med boligbebyggelse på eiendommen gbnr 116/723, Åslyveien 54 i Drammen. Eiendommen er bebygd og er i bruk til gatekjøkken i dag. Det foreslås ikke vesentlig utvidelse av dagens bebyggelse utover et tilbygg på baksiden av eksisterende bygning. Foreløpig status for planen er "planlegging igangsatt" og det ble kunngjort oppstart av planarbeidet den 22.12.2021, se kommunens hjemmeside for mer info. Tidshorisont og endelig utforming av prosjektet er pt. ikke klart, det må påregnes støy o.l. fra byggeprosjektet under utbyggingen (med forbehold om at planen blir vedtatt).
Utsnitt av plan med tilhørende bestemmelser kan fås ved henvendelse til megler.
Økonomi
Økonomi
Kommunale utgifter
Kommunale avgifter (vann og avløp): kr 14.256,- pr. år (3 terminer), fakturert på eiendommen i 2025. Avgiftene omfatter to boenheter og vil variere etter forbruket i boligene.
Renovasjonskostnader: kr 8.323,- pr. år (2 terminer). Type renovasjonsordning: Samarbeid, 2026.
Det opplyses om at Drammen kommune har varslet om en vesentlig fremtidig økning av kommunale avgifter.
I tillegg påløper det en kostnad på kr 608,- pr. år for boliger med minst ett aktivt røykrør (kostnad pr. 2026). Det påløper også kostnader for feiing av ildsted, kontroll av fyringsanlegg m.m. Frekvens på feiing samt tilsyn er avhengig av behov og vurderes av feieren.
Boligen har en årlig forsikringspremie via IF Skadeforsikring.
Det må påregnes kostnader til strøm og nettleie, dette vil variere avhengig av strøm-/nettselskap. Nåværende eier har hatt et strømforbruk på ca. 16.014 kWh for 2025 og 18.239 kWh for 2024 - for hoveddelen. Strømkostnader tilknyttet utleiedelen må påregnes.
Det opplyses om at det har vært benyttet mobilt bredbånd som internettleverandør.
Selger har ikke bebodd eiendommen og har således ikke kjennskap til øvrige løpende utgifter for eiendommen.
Det må påregnes kostnader til tv/internett, bygningsforsikring og innboforsikring.
Ovenstående er basert på nåværende eier/husstands senere års forbruk/utgifter. Dette vil variere avhengig av antall beboere, ønsket innetemperatur, egne fordelsavtaler, kanalvalg, hastighet på bredbånd m.m.
Formuesverdi
Formuesverdi for 2024 var kr 1 216 344,- ifølge selgers Skatteetaten. Beløpet forutsetter at eier bor fast i boligen (primærbolig).
Ved eventuell øvrig bruk av eiendommen (f.eks. fritidsbolig, pendlerbolig, utleieobjekt) var formuesverdien for 2024 kr 4 865 374,-.
Fra 2026 har Stortinget vedtatt en oppdatert modell for beregning av formuesverdi for primærbolig, så avvik kan forekomme.
For mer informasjon se skatteetaten.no
Omkostninger
4 450 000,00 Prisantydning
Omkostninger
111 250,00 Dokumentavgift til staten (2,5% av kjøpesum)
19 900,00 Gjensidige Boligkjøperpakke (valgfri)
545,00 Tinglysing panterettsdokument
545,00 Tinglysing skjøte
--------------------------------------------------------
132 240,00 Omkostninger totalt
--------------------------------------------------------
4 582 240,00 Totalpris inkl. omkostninger
--------------------------------------------------------
Totalpris inkl. omkostninger forutsetter kjøp til prisantydning.
Det tas forbehold om endringer i avgifter og gebyrer.
Tilbud om lånefinansiering
Megler formidler gjerne kontakt med rådgiver hos vår samarbeidspartner BN Bank. De har konkurransedyktige betingelser samt rask og løsningsorientert behandling av din lånesøknad. Krogsveen mottar et honorar dersom lån opprettes.
Betalingsbetingelser
Kjøpesum inkludert omkostninger, samt pantedokument tilknyttet eventuelt lån, skal være disponibelt hos megler 2 virkedager før overtagelsen.
Annen viktig informasjon
Annen viktig informasjon
Eier
Boet etter Bjørg Tove Nielsen
Overtakelse
Etter nærmere avtale.
Boligselgerforsikring
Selger har i forbindelse med salget tegnet Boligselgerforsikring levert av Gjensidige. Boligselgerforsikring dekker selgers ansvar etter avhendingsloven begrenset oppad til kr 14 millioner. Dersom kjøper oppdager forhold ved eiendommen som hen mener utgjør en mangel ved eiendommen, vil Gjensidige behandle reklamasjonen på vegne av selger. Forsikringsvilkår kan fås ved henvendelse til megler.
Vedlagt salgsoppgaven følger selgers egenerklæringsskjema og tilstandsrapport. Interessenter må sette seg inn i dokumentene før bud inngis. Egenerklæringen er fylt ut av arvingene iht deres kjennskap om eiendommen. Da de ikke har bebodd eiendommen kan kjennskapen være mangelfull.
Boligkjøperforsikring
Innen kontraktsmøtet må kjøper ta stilling til om det ønskes å bestille Boligkjøperpakken gjennom Gjensidige. I denne gunstige pakken er boligen ferdig forsikret og inkluderer rettshjelpsforsikring, også kalt Boligkjøperforsikring. Rettshjelpsforsikring gir trygghet og tilgang på profesjonell juridisk hjelp dersom det oppdages uventede feil eller mangler det første året etter overtagelse. Forsikringsselskapet behandler i så fall ethvert mangelskrav kjøper måtte ha overfor selger.
Boligkjøperpakken inkluderer bygningsforsikring for hus og hytte, innboforsikring, flytteforsikring og dobbel rentedekning - i situasjoner hvor kjøper ikke får solgt nåværende primærbolig.
Kjøper mottar ingen særskilt faktura for Boligkjøperpakken da kostnaden det første året legges til kjøpesummen for boligen. Det gjøres oppmerksom på Krogsveen mottar et honorar for denne formidlingen.
Produktark for Boligkjøperpakken ligger vedlagt i salgsoppgaven.
Dersom ikke boligkjøperpakke ønskes kan kun rettshjelpsforsikring, også kalt boligkjøperforsikring, tegnes særskilt via megler. Rettshjelpsforsikringen varer i 5 år fra overtagelse og leveres gjennom Gjensidige. Ta kontakt med megler for ytterligere informasjon.
Selskap og privatpersoner som driver med kjøp/salg/utvikling som ledd i egen næringsvirksomhet kan ikke tegne boligkjøperpakke eller rettshjelpsforsikring.
Budgivning
Forbrukerinformasjon om budgivning er vedlagt denne salgsoppgaven og er også på vår hjemmeside Krogsveen.no. Alle bud og budforhøyelser må inngis skriftlig. I tillegg må legitimasjon være fremlagt sammen med signatur fra budgiver.
Vi oppfordrer til å gi bud elektronisk via GI BUD-knappen på eiendommens hjemmeside på Krogsveen.no. Da vil samtlige vilkår bli oppfylt.
Eventuelle forhøyelser eller endringer av budet kan bekreftes pr SMS eller på e-post. Vi oppfordrer alltid til å kontakte megler pr. telefon i tillegg da forsinkelser i SMS og e-post kan forekomme.
For at budene skal kunne bli behandlet og videreformidlet skriftlig til alle involverte parter, må alle bud ha en tilstrekkelig lang akseptfrist, jf. eiendomsmeglingsforskriften § 6-3.
Selger må også skriftlig akseptere budet før aksept kan formidles til budgiver. Akseptfrist bør derfor være på minimum 30 minutter, og budforhøyelser må derfor skje i god tid før fristens utløp.
Bud i forbrukerforhold kan uansett ikke settes med kortere frist enn kl. 12.00 første virkedag etter siste annonserte visning. I tillegg kan ikke budet ha forbehold om at det skal holdes hemmelig ovenfor øvrige interessenter. Megler har iht lov om eiendomsmegling ikke anledning til å videreformidle disse budene, og de vil dermed heller ikke bli journalført.
Etter at eiendommen er solgt vil kjøper og selger få tilsendt budjournal. Øvrige budgivere kan få utlevert kopi av budjournalen i anonymisert form.
Hvitvaskingsreglene
I henhold til lov om hvitvasking og terrorfinansiering har megler plikt til å gjennomføre kontrolltiltak overfor kunder, herunder fullmektiger. Dette innebærer bl.a. å bekrefte kunders og reelle rettighetshaveres identitet på bakgrunn av fremvist gyldig legitimasjon eller på annen godkjent måte, samt å innhente opplysninger om kundeforholdets formål og tilsiktede art.
Dersom slike kundetiltak ikke kan gjennomføres, kan megler ikke etablere kundeforholdet eller utføre transaksjonen.
Hvis kjøper ikke bidrar til gjennomføring av kundekontrollen og dette fører til at transaksjonen blir forsinket eller ikke kan gjennomføres, vil dette ansees som mislighold av avtalen og gi selger rettigheter etter avhendingslova kapittel 5. I tilfeller der selger ikke bidrar til gjennomføring av løpende kundekontroll underveis i oppdraget, er det selger som misligholder sine forpliktelser etter avtalen og gi kjøper rettigheter etter avhendingslovens kapittel 4. Partene er selv ansvarlige for eventuelle kostnader og ansvar dette kan medføre. Eiendomsmegleren eller eiendomsmeglingsforetaket kan ikke holdes ansvarlig for de konsekvenser dette vil kunne få for partene eller andre som har interesser i eiendomshandelen.
Kjøper oppfordres til å innbetale kjøpesummen som ikke kommer fra låneinstitusjon i én samlet innbetaling fra egen konto i norsk bank. Megler har plikt til å melde fra til Økokrim om eiendomshandler som fremstår som mistenkelige. Melding sendes Økokrim uten at partene varsles.
Personopplysningsloven
I henhold til personopplysningsloven gjør vi oppmerksom på at interessenter kan bli registrert for videre oppfølging.
Lovanvendelse
Generelle bestemmelser
Salgsoppgaven er basert på de opplysningene selger har gitt til megler, den bygningssakyndiges tilstandsrapport, samt opplysninger innhentet fra kommunen, Kartverket og andre tilgjengelige kilder. Det er viktig at kjøper setter seg grundig inn i alle salgsdokumentene, herunder salgsoppgave, tilstandsrapport og selgers egenerklæring. Kjøper anses kjent med forhold som er tydelig beskrevet i salgsdokumentene, og slike forhold kan ikke påberopes som mangler. Dette gjelder uavhengig av om kjøper har lest dokumentene. Alle interessenter oppfordres til å undersøke eiendommen nøye, gjerne sammen med fagkyndig før bud inngis. Kjøper som velger å kjøpe usett kan ikke gjøre gjeldende som mangel noe han burde blitt kjent med ved undersøkelsen.
Dersom det er behov for avklaringer, anbefaler vi at interessenter rådfører seg med eiendomsmegler eller egne rådgivere før det legges inn bud.
En bolig som har blitt brukt i en viss tid, har vanligvis blitt utsatt for slitasje og skader kan ha oppstått. Slik bruksslitasje må kjøper regne med, og det kan avdekkes enkelte forhold etter overtakelse som nødvendiggjør utbedringer. Normal slitasje og skader som nødvendiggjør utbedring, er innenfor hva kjøper må forvente og vil ikke utgjøre en mangel.
Kjøper og selgers rettigheter og plikter reguleres av avtalen mellom partene, samt informasjonen som har vært tilgjengelig for kjøperen i forbindelse med handelen. Avtalen utfylles av avhendingsloven, og det gjelder ulike avtalevilkår avhengig av om kjøper er forbrukerkjøper eller ikke. Dette er nærmere beskrevet nedenfor.
På grunn av ulike avtalevilkår kan selger vurdere bud fra en som ikke er forbruker, ulikt fra en forbrukers bud. Dersom kjøper ikke er forbruker, er selger sitt mulige mangelsansvar begrenset fordi eiendommen selges "som den er". Selger kan ikke ta «som den er»- forbehold overfor en forbrukerkjøper. Selv et lavere bud fra en som ikke er forbruker kan foretrekkes fordi begrensningen i mulig mangelsansvar kan ha egenverdi for selger. Selger står fritt til å forkaste eller akseptere ethvert bud, og er for eksempel ikke forpliktet til å akseptere høyeste bud.
Budgiver skal i budskjema avgi egenerklæring om budgiver er forbruker eller næringsdrivende/ person som hovedsakelig handler som ledd i næringsvirksomhet. Budgivere får informasjon dersom andre bud er inngitt av en som ikke er forbruker.
Forbrukerkjøp - definisjon
Med forbrukerkjøp menes kjøp av eiendom når kjøperen er en fysisk person som ikke hovedsakelig handler som ledd i næringsvirksomhet.
Forbruker – avtalevilkår
Eiendommen har en mangel dersom den ikke er i samsvar med kravene som følger av avtalen, eller det foreligger brudd på bestemmelsene i avhendingsloven §§ 3-2 til 3-8. Hvis eiendommen ikke er i samsvar med det kjøperen må kunne forvente ut ifra alder, type og synlig tilstand, kan det være grunnlag for mangelskrav. Det samme gjelder hvis det er holdt tilbake eller gitt uriktige opplysninger om eiendommen. Dette gjelder likevel bare dersom man kan gå ut ifra at det virket inn på avtalen at opplysningen ikke ble gitt eller at mangelskravet ikke blir rettet i tide på en tydelig måte.
Boligen kan ha en mangel etter avhendingsloven § 3-3 andre ledd, dersom det er avvik mellom opplyst og faktisk innvendig areal, forutsatt at avviket er på 2% eller mer og minimum 1 kvm.
Ved beregning av et eventuelt prisavslag eller erstatning må kjøper selv dekke tap/kostnader opptil et beløp på kr 10 000 (egenandel).
Ikke-forbruker (næringsdrivende) – definisjon
Hvis kjøper er en juridisk person, eller en fysisk person som hovedsakelig handler som ledd i næringsvirksomhet, vil kjøpet ikke anses som et forbrukerkjøp.
Ikke-forbruker – avtalevilkår
Eiendommen har en mangel dersom den ikke er i samsvar med kravene som følger av avtalen.
Eiendommen selges «som den er», og selgers ansvar utover det konkret avtalte er da begrenset etter avhendingsloven § 3-9, første ledd andre setning.
Avhendingsloven § 3-3 andre ledd fravikes, og hvorvidt boligens arealsvikt utgjør en mangel vurderes etter avhendingsloven § 3-8.
Informasjon om kjøpers undersøkelsesplikt, herunder oppfordringen om å undersøke eiendommen nøye, gjelder også for kjøpere som ikke anses som forbrukere.
Det forutsettes at hjemmel overføres til kjøper. Hvis kjøper ikke ønsker hjemmelsoverføring av eiendommen, må det tas forbehold om dette i budet.
Meglers vederlag
Meglers vederlag betales av selger og er avtalt til:
Vederlag: 1,30 % av salgssummen
Vederlag:
Kontroll av hjemmel og heftelser kr 3 900,00
Markedsføringspakke kr 29 900,00
Oppgjør kr 8 900,00
Tilrettelegging kr 19 900,00
Visninger pr. stk. (gjelder fellesvisninger eller privatvisninger etter kl16/helgedag) kr 4 500,00
Utlegg:
Innhenting av feierrapport fra Drammensreg. Brannvesen kr 573,00
Innhenting av off. oppl. Drammen kommune inkl. tegninger og RFD kr 2 833,00
Tinglysing sikring kr 545,00
Andre utgifter:
Boligfotografering inkl drone kr 6 500,00
Digital styling på bilder - pris per bilde (forslag vil være 3 bilder) kr 1 400,00
TIlstandsrapport fra Anticimex med målsatte plantegninger kr 20 625,00
Vi er opptatt av verdiskapning, og har knyttet til oss samarbeidspartnere som skal sikre våre kunder de beste produkter og tjenester;
• I forbindelse med forberedelse av salget, innhenter vi informasjon om eiendommen hovedsakelig fra vår samarbeidspartner Amibita.
• Gjensidige leverer boligselgerforsikring og tilbyr bygningsforsikring
• Boligkjøperforsikring leveres av Hiscox og med Sedgwick som skadebehandler, og er formidlet gjennom Gjensidige.
• BN bank tilbyr finansieringsløsninger
• Vår avdeling Krogsveen Pluss tilbyr flyttetjenester som utvask, visningsvask, lager, tømming og transport av flyttelass, i tillegg til å formidle kontakt med Flip for overflateoppussing.
• I forbindelse med overtagelse av eiendommen tilbyr Overo avtale om strøm, alarm og bredbånd.
• Krogsveen er, sammen med øvrige bransjeaktører, medeier i den digitale annonseringsplattformen Hjem som eies av Bomega AS.
Opplysninger om oppdraget
Oppdragsnummer 20-0024/26
Eiendomsmegler Krogsveen AS, avd. Drammen
Nedre Storgate 16, 3015, DRAMMEN
950 007 613
Oppdragets KR-kode KR20.2624
Dato
Sist oppdatert: 05. mars 2026 kl. 19:48
Dokumenter
Dokumenter
PDF – 929 KB
PDF – 168 KB
PDF – 523 KB
PDF – 696 KB
PDF – 312 KB
PDF – 29 KB
PDF – 127 KB
PDF – 392 KB
Område
Legg til steder som er viktige for deg
Visning
Eiendommen kan besiktiges på oversiden på eget initiativ. Besiktigelse på nedsiden utenfor avtalt visningstid bes unngått av hensyn til leieboer.
Husk å lese salgsoppgaven før visningen, så du stiller forberedt. For å delta på visning, ber vi om at du melder deg på. Da sikrer vi at du får nødvendig informasjon og at det er satt av tilstrekkelig med tid.
Ønsker du kun å bli holdt orientert, kan du fra eiendommens hjemmeside få varsel om solgtpris, eller kontakte megler.
Lurer du på noe?
Unngå doble boligrenter
Vi tilbyr gunstig forsikring.
Vurderer du utleie?
Få et tilbud fra Utleie KrogsveenHva koster lånet?
Sjekk estimert lånekostnadVil du varsles om lignende boliger?
Ved å lagre ditt boligsøk hos oss får du beskjed når vi har en bolig som ligner denne, før den legges ut på markedet!




